
| 賃料 | 予想金額:175,000〜195,000円程度 | 管理費 | 予想金額:8,000〜12,000円程度 |
| 礼金/敷金 | 非公開(アーカイブ) | 平米数 | 44.04㎡ |
| 初期費用概算(参考) | 目安:519,000〜619,000 円 | みなし賃料(月額・参考) | 193,000〜213,000 円 |
| 備考 | 本ページは過去募集のアーカイブです。表示の金額は周辺相場・過去募集を踏まえた参考レンジであり、実際の契約金額・条件ではありません。 | ||
※上記みなし賃料(月額)は仲介手数料割引・無料&キャッシュバックを加味した高級賃貸バイブル限定の金額です。一般的なみなし賃料とは異なります。
【建物ページ】リビオレゾン東銀座の詳細・最新空室はこちら▶▶選ばれる理由
仲介手数料無料・キャンペーン情報(毎月15名様限定)
〇仲介手数料割引キャンペーン
リビオレゾン東銀座 9階 44.04㎡の口コミ・レビュー
リビオレゾン東銀座 9階 44.04㎡。まるで都会の真ん中に佇む貴族の館のように、この物件は洗練された美しさと居心地の良さを兼ね備え、あなたを待ち焦がれています。エレガントな外観に足を踏み入れると、まず感じるのは、洗練された空気と心地よい静けさ。そして、9階からの眺望は、まるで東銀座の街並みがあなたのために広がっているかのように、心を癒してくれます。
あなたがこの場所に住むことで、毎日が映画のワ…リビオレゾン東銀座 9階 44.04㎡。まるで都会の真ん中に佇む貴族の館のように、この物件は洗練された美しさと居心地の良さを兼ね備え、あなたを待ち焦がれています。エレガントな外観に足を踏み入れると、まず感じるのは、洗練された空気と心地よい静けさ。そして、9階からの眺望は、まるで東銀座の街並みがあなたのために広がっているかのように、心を癒してくれます。
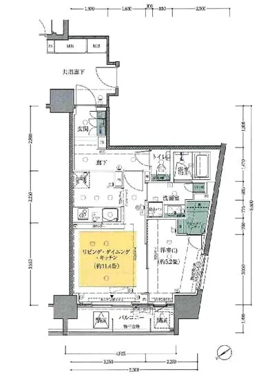
あなたがこの場所に住むことで、毎日が映画のワンシーンのように輝き始めます。リビオレゾン東銀座 9階 44.04㎡のドアを開けると、広がるのは11.4帖のLDK。ここはあなたの心の拠り所、様々な物語が生まれる場所です。大きな窓から差し込む陽光が、床を優しく照らし、気持ちの良い光のシャワーとなります。バルコニーに出て、北西の風に包まれながら、一口の香り豊かなカフェラテを味わう。コーヒーの香りが漂う中で、街の喧騒が遠くに感じられ、心が豊かに満たされていくのです。
この物件は単なる住まいではなく、あなたに寄り添うパートナーです。5.2帖の洋室は、夢の中にいるような安らぎを与えてくれる空間。心地よい寝具に身をゆだねると、心の底からリフレッシュできるのを実感します。毎朝、日の光が房からこぼれ、柔らかな光に包まれながら目を覚ますことができるのは、この物件ならではの贅沢です。
リビオレゾン東銀座 9階 44.04㎡の生活を彩る設備もまた、あなたの暮らしを一層豊かにするために存在しています。オートロックやTVモニターホンは、安全で安心な暮らしを提供してくれる頼もしい相棒。宅配ボックスは、あなたのライフスタイルに合わせた柔軟性をもたらし、忙しい合間にもスムーズな受け取りをサポートします。また、駐車場やバイク置場は、自由な移動を可能にし、あなたの冒険を広げてくれることでしょう。
リビオレゾン東銀座は、ただの住まいでなく、歴史と文化に包まれた都会のオアシスです。周囲には多くのアートスポットや美味しいレストランが点在し、まるで一つの大きなアートギャラリーの中にいるかのよう。「どこに行こうか?」と迷うのは、街の魅力が溢れ出ている証拠です。新富町駅まで徒歩2分という立地は、あなたのライフスタイルをより一層豊かにし、都心へのアクセスも抜群です。
リビオレゾン東銀座 9階 44.04㎡。あなたの心の中に、常に変わらぬ特別な場所を作り上げることでしょう。日々の喧騒を忘れ、特別なひとときを過ごすための、最高の舞台がここにあります。さあ、新たな物語の幕を開ける準備は整っていますか?あなたの人生の一ページを、この特別な場所で彩りましょう。
あなたがこの場所に住むことで、毎日が映画のワ…リビオレゾン東銀座 9階 44.04㎡。まるで都会の真ん中に佇む貴族の館のように、この物件は洗練された美しさと居心地の良さを兼ね備え、あなたを待ち焦がれています。エレガントな外観に足を踏み入れると、まず感じるのは、洗練された空気と心地よい静けさ。そして、9階からの眺望は、まるで東銀座の街並みがあなたのために広がっているかのように、心を癒してくれます。
あなたがこの場所に住むことで、毎日が映画のワンシーンのように輝き始めます。リビオレゾン東銀座 9階 44.04㎡のドアを開けると、広がるのは11.4帖のLDK。ここはあなたの心の拠り所、様々な物語が生まれる場所です。大きな窓から差し込む陽光が、床を優しく照らし、気持ちの良い光のシャワーとなります。バルコニーに出て、北西の風に包まれながら、一口の香り豊かなカフェラテを味わう。コーヒーの香りが漂う中で、街の喧騒が遠くに感じられ、心が豊かに満たされていくのです。
この物件は単なる住まいではなく、あなたに寄り添うパートナーです。5.2帖の洋室は、夢の中にいるような安らぎを与えてくれる空間。心地よい寝具に身をゆだねると、心の底からリフレッシュできるのを実感します。毎朝、日の光が房からこぼれ、柔らかな光に包まれながら目を覚ますことができるのは、この物件ならではの贅沢です。
リビオレゾン東銀座 9階 44.04㎡の生活を彩る設備もまた、あなたの暮らしを一層豊かにするために存在しています。オートロックやTVモニターホンは、安全で安心な暮らしを提供してくれる頼もしい相棒。宅配ボックスは、あなたのライフスタイルに合わせた柔軟性をもたらし、忙しい合間にもスムーズな受け取りをサポートします。また、駐車場やバイク置場は、自由な移動を可能にし、あなたの冒険を広げてくれることでしょう。
リビオレゾン東銀座は、ただの住まいでなく、歴史と文化に包まれた都会のオアシスです。周囲には多くのアートスポットや美味しいレストランが点在し、まるで一つの大きなアートギャラリーの中にいるかのよう。「どこに行こうか?」と迷うのは、街の魅力が溢れ出ている証拠です。新富町駅まで徒歩2分という立地は、あなたのライフスタイルをより一層豊かにし、都心へのアクセスも抜群です。
リビオレゾン東銀座 9階 44.04㎡。あなたの心の中に、常に変わらぬ特別な場所を作り上げることでしょう。日々の喧騒を忘れ、特別なひとときを過ごすための、最高の舞台がここにあります。さあ、新たな物語の幕を開ける準備は整っていますか?あなたの人生の一ページを、この特別な場所で彩りましょう。
バイブルスコア
バイブルスコア: 15.7
高級な物件でない場合は割高な物件です。。
※バイブルスコア詳細はこちら
バイブルスコアとは独自のAI機械学習技術を利用した物件評価システムで、物件のおすすめ度を示します。最高得点は100点で、スコアが高いほど、よりおすすめの物件と評価されています。
写真
契約条件
| 賃料 | 予想金額:175,000〜195,000円程度 | 管理費 | 予想金額:8,000〜12,000円程度 |
| 礼金 | 非公開(アーカイブ) | 敷金 | 非公開(アーカイブ) |
| フリーレント | なし | 平米数 | 44.04㎡ |
| 間取り | 1LDK | 大型収納 | WIC |
| 契約期間 |
| 方角 | 北西 |
| 更新料 | 契約形態 | 普通賃貸借契約 | |
| 取引態様 | 媒介 | 内見状況 | 入居中 |
| 入居時期 | 入居中 | SOHO・事務所 | |
| ペット | ペット可 | 間取り内訳 | 洋:5.2 LDK:11.4 |
| キャンペーン情報・備考 | 本情報は賃料改定交渉の資料作成、収益物件の利回り試算、周辺エリアや最寄り駅の坪単価分析、次回募集開始時期の予測などにご活用いただけます。 | ||
※「どの不動産に頼めばいいのか分からない」「信頼できる営業マンの話を聞きたい」「一番親切な会社と契約したい」とお悩みの方におすすめなのが「高級賃貸バイブル」です。
高級賃貸バイブルは業界10年以上の熟練スタッフ群がお客様ファーストで対応します。
下記ボタンから、まずは無料でご相談下さい。
※内覧をご希望の際には、どうぞ物件のエントランス前にてお待ち合わせくださいませ。ご内覧後は、同じ場所でお別れとさせていただきます。お客様のご都合に合わせたスムーズなご案内を心がけておりますので、ご質問等がございましたら何なりとお申し付けください。 物件概要
| 物件名 |
| 築年月 |
|
|---|---|---|---|
| 所在地 | |||
| 交通 | |||
| 総戸数 |
| 総階数 |
|
| 構造 |
| ||
地図
物件までの道のりは、「拡大地図を表示」をクリックしてナビ機能をご利用ください。
部屋設備

















建物設備

TVモニターホン

エレベーター

オートロック

バイク置場

宅配ボックス

敷地内ゴミ置場

管理人

駐車場平置き

駐車場機械式

駐輪場
リビオレゾン東銀座の現在募集中のお部屋
- No rooms found for this property.























