
| 賃料 | 予想金額:310,000〜330,000円程度 | 管理費 | 予想金額:13,000〜17,000円程度 |
| 礼金/敷金 | 非公開(アーカイブ) | 平米数 | 71.88㎡ |
| 初期費用概算(参考) | 目安:1,184,000〜1,284,000 円 | みなし賃料(月額・参考) | 344,042〜364,042 円 |
| 備考 | 本ページは過去募集のアーカイブです。表示の金額は周辺相場・過去募集を踏まえた参考レンジであり、実際の契約金額・条件ではありません。 | ||
※上記みなし賃料(月額)は仲介手数料割引・無料&キャッシュバックを加味した高級賃貸バイブル限定の金額です。一般的なみなし賃料とは異なります。
【建物ページ】プレミアスイート外苑の杜の詳細・最新空室はこちら▶▶選ばれる理由
仲介手数料無料・キャンペーン情報(毎月15名様限定)
〇仲介手数料割引キャンペーン
プレミアスイート外苑の杜 2階 71.88㎡の口コミ・レビュー
「プレミアスイート外苑の杜 2階 71.88㎡」は、まるで一流のオーケストラが奏でるシンフォニーのように、優雅でありながら、心の奥深くに響く美しさを秘めております。この物件は、あなたが新しい生活の幕を開けるための舞台です。2階という位置は、外苑の豊かな緑に溢れ、朝日が差し込む贅沢な空間を演出します。まるで薄い絹のカーテンを透かして、優しい光が部屋に舞い込んでくるかのようです。
71.88㎡の空間…「プレミアスイート外苑の杜 2階 71.88㎡」は、まるで一流のオーケストラが奏でるシンフォニーのように、優雅でありながら、心の奥深くに響く美しさを秘めております。この物件は、あなたが新しい生活の幕を開けるための舞台です。2階という位置は、外苑の豊かな緑に溢れ、朝日が差し込む贅沢な空間を演出します。まるで薄い絹のカーテンを透かして、優しい光が部屋に舞い込んでくるかのようです。
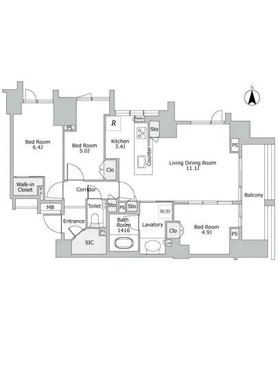
71.88㎡の空間は、3LDKの間取りを持ち、生活のシーンに合わせてその顔を変えます。LDは11.1帖と広々としており、友人を招いてのティータイムや、家族での団らんの時間が心なごむひと時に変わることでしょう。ゆったりとした空間に、香ばしいコーヒーの香りが漂い、窓からは柔らかな風が吹き込むことで、自然の息吹を感じることができます。
各洋室はそれぞれ異なる個性を持ち、6.4帖の主寝室には、日の出と共に目覚める至福のひとときを演出します。一歩踏み入れると、木の温もりに包まれ、まるで森の中にいるような心地良さを感じることでしょう。5帖の洋室は、書斎や趣味の部屋として活用でき、あなたのクリエイティブなエネルギーを呼び覚まします。4.9帖の洋室は、ゲストのための隠れ家として、そこで交わされる会話や笑い声が、あなたの記憶に美しい色を添えます。
この「プレミアスイート外苑の杜」には、24時間管理の安心感があり、オートロックや宅配ボックス、エレベーターといった先進的な設備が整っています。まるで高級ホテルに住んでいるかのような贅沢な暮らしを手に入れることができるのです。真夜中の静けさの中、玄関を開けると、外苑からの心地よい夜風が、あなたを包み込むでしょう。
東京都新宿区南元町14-2に位置するこの物件は、文化と歴史が交差する地に、静かな佇まいを見せています。信濃町駅から徒歩5分という至便なロケーションは、あなたの日常に無限の可能性をもたらします。周囲には、洗練されたカフェや店舗が立ち並び、毎日の買い物がまるで旅のように心躍る経験になることでしょう。
「プレミアスイート外苑の杜 2階 71.88㎡」での暮らしは、まるで自分だけの映画の主人公になるかのよう。あなたの新しい物語がここから始まります。日々の生活の中に、贅沢さと安心をもたらすこの場所で、心穏やかな時を刻んでいってほしいと、静かに語りかけてくるのです。さあ、この特別な住まいで、あなた自身の物語を描いてみませんか。
71.88㎡の空間…「プレミアスイート外苑の杜 2階 71.88㎡」は、まるで一流のオーケストラが奏でるシンフォニーのように、優雅でありながら、心の奥深くに響く美しさを秘めております。この物件は、あなたが新しい生活の幕を開けるための舞台です。2階という位置は、外苑の豊かな緑に溢れ、朝日が差し込む贅沢な空間を演出します。まるで薄い絹のカーテンを透かして、優しい光が部屋に舞い込んでくるかのようです。
71.88㎡の空間は、3LDKの間取りを持ち、生活のシーンに合わせてその顔を変えます。LDは11.1帖と広々としており、友人を招いてのティータイムや、家族での団らんの時間が心なごむひと時に変わることでしょう。ゆったりとした空間に、香ばしいコーヒーの香りが漂い、窓からは柔らかな風が吹き込むことで、自然の息吹を感じることができます。
各洋室はそれぞれ異なる個性を持ち、6.4帖の主寝室には、日の出と共に目覚める至福のひとときを演出します。一歩踏み入れると、木の温もりに包まれ、まるで森の中にいるような心地良さを感じることでしょう。5帖の洋室は、書斎や趣味の部屋として活用でき、あなたのクリエイティブなエネルギーを呼び覚まします。4.9帖の洋室は、ゲストのための隠れ家として、そこで交わされる会話や笑い声が、あなたの記憶に美しい色を添えます。
この「プレミアスイート外苑の杜」には、24時間管理の安心感があり、オートロックや宅配ボックス、エレベーターといった先進的な設備が整っています。まるで高級ホテルに住んでいるかのような贅沢な暮らしを手に入れることができるのです。真夜中の静けさの中、玄関を開けると、外苑からの心地よい夜風が、あなたを包み込むでしょう。
東京都新宿区南元町14-2に位置するこの物件は、文化と歴史が交差する地に、静かな佇まいを見せています。信濃町駅から徒歩5分という至便なロケーションは、あなたの日常に無限の可能性をもたらします。周囲には、洗練されたカフェや店舗が立ち並び、毎日の買い物がまるで旅のように心躍る経験になることでしょう。
「プレミアスイート外苑の杜 2階 71.88㎡」での暮らしは、まるで自分だけの映画の主人公になるかのよう。あなたの新しい物語がここから始まります。日々の生活の中に、贅沢さと安心をもたらすこの場所で、心穏やかな時を刻んでいってほしいと、静かに語りかけてくるのです。さあ、この特別な住まいで、あなた自身の物語を描いてみませんか。
バイブルスコア
バイブルスコア: 23.1
平均的なスコアです。
※バイブルスコア詳細はこちら
バイブルスコアとは独自のAI機械学習技術を利用した物件評価システムで、物件のおすすめ度を示します。最高得点は100点で、スコアが高いほど、よりおすすめの物件と評価されています。
写真
契約条件
| 賃料 | 予想金額:310,000〜330,000円程度 | 管理費 | 予想金額:13,000〜17,000円程度 |
| 礼金 | 非公開(アーカイブ) | 敷金 | 非公開(アーカイブ) |
| フリーレント | なし | 平米数 | 71.88㎡ |
| 間取り | 3LDK | 大型収納 | WIC+SIC |
| 契約期間 |
| 方角 | 東 |
| 更新料 | 契約形態 | 普通賃貸借契約 | |
| 取引態様 | 媒介 | 内見状況 | 入居中 |
| 入居時期 | 入居中 | SOHO・事務所 | |
| ペット | 間取り内訳 | 洋:6.4 洋:5 洋:4.9 LD:11.1 K:3.4 | |
| キャンペーン情報・備考 | 本情報は賃料改定交渉の資料作成、収益物件の利回り試算、周辺エリアや最寄り駅の坪単価分析、次回募集開始時期の予測などにご活用いただけます。 | ||
※「どの不動産に頼めばいいのか分からない」「信頼できる営業マンの話を聞きたい」「一番親切な会社と契約したい」とお悩みの方におすすめなのが「高級賃貸バイブル」です。
高級賃貸バイブルは業界10年以上の熟練スタッフ群がお客様ファーストで対応します。
下記ボタンから、まずは無料でご相談下さい。
※内覧をご希望の際には、どうぞ物件のエントランス前にてお待ち合わせくださいませ。ご内覧後は、同じ場所でお別れとさせていただきます。お客様のご都合に合わせたスムーズなご案内を心がけておりますので、ご質問等がございましたら何なりとお申し付けください。 物件概要
| 物件名 |
| 築年月 |
|
|---|---|---|---|
| 所在地 | |||
| 交通 | |||
| 総戸数 |
| 総階数 |
|
| 構造 |
| ||
地図
物件までの道のりは、「拡大地図を表示」をクリックしてナビ機能をご利用ください。
部屋設備

















建物設備

24時間管理

TVモニターホン

エレベーター

オートロック

宅配ボックス

敷地内ゴミ置場

管理人

駐車場平置き

駐車場機械式

駐輪場
プレミアスイート外苑の杜の現在募集中のお部屋
- No rooms found for this property.




















