
| 賃料 | 予想金額:185,000〜205,000円程度 | 管理費 | 予想金額:0〜2,000円程度 |
| 礼金/敷金 | 非公開(アーカイブ) | 平米数 | 51.57㎡ |
| 初期費用概算(参考) | 目安:919,000〜1,019,000 円 | みなし賃料(月額・参考) | 201,125〜221,125 円 |
| 備考 | 本ページは過去募集のアーカイブです。表示の金額は周辺相場・過去募集を踏まえた参考レンジであり、実際の契約金額・条件ではありません。 | ||
※上記みなし賃料(月額)は仲介手数料割引・無料&キャッシュバックを加味した高級賃貸バイブル限定の金額です。一般的なみなし賃料とは異なります。
【建物ページ】グローリオ戸越銀座の詳細・最新空室はこちら▶▶選ばれる理由
仲介手数料無料・キャンペーン情報(毎月15名様限定)
〇仲介手数料割引キャンペーン
グローリオ戸越銀座 703の口コミ・レビュー
グローリオ戸越銀座 703。ここに、都市の喧騒から一歩離れた特別な空間が存在します。この703号室は、あなたを迎えるために優雅に待っています。東京都品川区平塚の心地よい朝日を浴びながら、魅力的な生活が始まるのです。東と北の両方に面しているこの部屋は、自然光をたっぷり取り入れ、一日の始まりを祝うかのように温かい光で包み込みます。
あなたがこの家に足を踏み入れると、まず感じるのは、広々としたLDK1…グローリオ戸越銀座 703。ここに、都市の喧騒から一歩離れた特別な空間が存在します。この703号室は、あなたを迎えるために優雅に待っています。東京都品川区平塚の心地よい朝日を浴びながら、魅力的な生活が始まるのです。東と北の両方に面しているこの部屋は、自然光をたっぷり取り入れ、一日の始まりを祝うかのように温かい光で包み込みます。
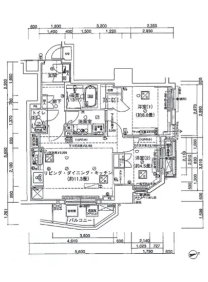
あなたがこの家に足を踏み入れると、まず感じるのは、広々としたLDK11.3帖の寛ぎの空間です。そこは、まるで友人と集まって語らいのひとときを過ごすための特別なシアターのよう。柔らかな光に照らされたリビングは、あなたの心を優しく包み込み、訪れる人々を魅了します。心地良いソファに身を沈め、そのまま穏やかな時間へと漂っていく感覚は、まるで海に浮かぶ小舟のようです。
洋室に目を向けると、6帖の空間は、まるで美術館の一角にいるかのような静けさをもたらします。白い壁に映えるアートは、あなたの感性を刺激し、創造的なインスピレーションを与えてくれるでしょう。4.5帖の洋室は、あなたのプライベートなオアシス。温かい色合いに包まれ、思わず長居したくなる心地よさがあります。ここでは、本を読みふけったり、好きな音楽を流したり、静かな時間を楽しんだりすることができます。
そして、グローリオ戸越銀座 703はただの居住空間ではありません。24時間管理がなされているため、セキュリティが高く、安心して暮らせます。オートロックやテレビモニターホンが、まるであなたの生活を守る番人のように働き、その存在を感じさせます。宅配ボックスも完備されているため、忙しい日常でも荷物がしっかりと受け取れる安心感があります。
周囲の環境もまた、生活を豊かにする要素です。都営地下鉄浅草線戸越駅までわずか徒歩1分という立地は、まるで時間を操る魔法の杖のように、すぐに都心へとアクセスできます。さらに、戸越銀座商店街が近く、地元の文化や人々とのふれあいが日常の中に息づいています。焼き立てのパンやほかほかの惣菜の香りが漂う商店街を散策すれば、まるで映画のワンシーンのように、心が踊ることでしょう。
グローリオ戸越銀座 703は、ただの物件ではなく、あなたの新たなストーリーの舞台です。ここでの生活は、日常の中に特別な瞬間を呼び起こし、五感に響く美しいドラマを紡ぎ出します。この空間で、あなた自身の幸せを見つけてください。まるで夢のような暮らしが待っています。
あなたがこの家に足を踏み入れると、まず感じるのは、広々としたLDK1…グローリオ戸越銀座 703。ここに、都市の喧騒から一歩離れた特別な空間が存在します。この703号室は、あなたを迎えるために優雅に待っています。東京都品川区平塚の心地よい朝日を浴びながら、魅力的な生活が始まるのです。東と北の両方に面しているこの部屋は、自然光をたっぷり取り入れ、一日の始まりを祝うかのように温かい光で包み込みます。
あなたがこの家に足を踏み入れると、まず感じるのは、広々としたLDK11.3帖の寛ぎの空間です。そこは、まるで友人と集まって語らいのひとときを過ごすための特別なシアターのよう。柔らかな光に照らされたリビングは、あなたの心を優しく包み込み、訪れる人々を魅了します。心地良いソファに身を沈め、そのまま穏やかな時間へと漂っていく感覚は、まるで海に浮かぶ小舟のようです。
洋室に目を向けると、6帖の空間は、まるで美術館の一角にいるかのような静けさをもたらします。白い壁に映えるアートは、あなたの感性を刺激し、創造的なインスピレーションを与えてくれるでしょう。4.5帖の洋室は、あなたのプライベートなオアシス。温かい色合いに包まれ、思わず長居したくなる心地よさがあります。ここでは、本を読みふけったり、好きな音楽を流したり、静かな時間を楽しんだりすることができます。
そして、グローリオ戸越銀座 703はただの居住空間ではありません。24時間管理がなされているため、セキュリティが高く、安心して暮らせます。オートロックやテレビモニターホンが、まるであなたの生活を守る番人のように働き、その存在を感じさせます。宅配ボックスも完備されているため、忙しい日常でも荷物がしっかりと受け取れる安心感があります。
周囲の環境もまた、生活を豊かにする要素です。都営地下鉄浅草線戸越駅までわずか徒歩1分という立地は、まるで時間を操る魔法の杖のように、すぐに都心へとアクセスできます。さらに、戸越銀座商店街が近く、地元の文化や人々とのふれあいが日常の中に息づいています。焼き立てのパンやほかほかの惣菜の香りが漂う商店街を散策すれば、まるで映画のワンシーンのように、心が踊ることでしょう。
グローリオ戸越銀座 703は、ただの物件ではなく、あなたの新たなストーリーの舞台です。ここでの生活は、日常の中に特別な瞬間を呼び起こし、五感に響く美しいドラマを紡ぎ出します。この空間で、あなた自身の幸せを見つけてください。まるで夢のような暮らしが待っています。
バイブルスコア
バイブルスコア: 27.3
平均的なスコアです。
※バイブルスコア詳細はこちら
バイブルスコアとは独自のAI機械学習技術を利用した物件評価システムで、物件のおすすめ度を示します。最高得点は100点で、スコアが高いほど、よりおすすめの物件と評価されています。
写真
現在写真が登録されていません契約条件
| 賃料 | 予想金額:185,000〜205,000円程度 | 管理費 | 予想金額:0〜2,000円程度 |
| 礼金 | 非公開(アーカイブ) | 敷金 | 非公開(アーカイブ) |
| フリーレント | なし | 平米数 | 51.57㎡ |
| 間取り | 2LDK | 大型収納 | WIC |
| 契約期間 |
| 方角 | 東 / 北 |
| 更新料 | 契約形態 | 普通賃貸借契約 | |
| 取引態様 | 媒介 | 内見状況 | 入居中 |
| 入居時期 | 入居中 | SOHO・事務所 | |
| ペット | 間取り内訳 | 洋:6 洋:4.5 LDK:11.3 | |
| キャンペーン情報・備考 | 本情報は賃料改定交渉の資料作成、収益物件の利回り試算、周辺エリアや最寄り駅の坪単価分析、次回募集開始時期の予測などにご活用いただけます。 | ||
※「どの不動産に頼めばいいのか分からない」「信頼できる営業マンの話を聞きたい」「一番親切な会社と契約したい」とお悩みの方におすすめなのが「高級賃貸バイブル」です。
高級賃貸バイブルは業界10年以上の熟練スタッフ群がお客様ファーストで対応します。
下記ボタンから、まずは無料でご相談下さい。
※内覧をご希望の際には、どうぞ物件のエントランス前にてお待ち合わせくださいませ。ご内覧後は、同じ場所でお別れとさせていただきます。お客様のご都合に合わせたスムーズなご案内を心がけておりますので、ご質問等がございましたら何なりとお申し付けください。 物件概要
| 物件名 |
| 築年月 |
|
|---|---|---|---|
| 所在地 | |||
| 交通 | |||
| 総戸数 |
| 総階数 |
|
| 構造 |
| ||
地図
物件までの道のりは、「拡大地図を表示」をクリックしてナビ機能をご利用ください。
部屋設備













建物設備

24時間管理

TVモニターホン

エレベーター

オートロック

宅配ボックス

敷地内ゴミ置場

管理人

駐輪場
グローリオ戸越銀座の現在募集中のお部屋
- No rooms found for this property.
