
| 賃料 | 予想金額:660,000〜680,000円程度 | 管理費 | 予想金額:0〜2,000円程度 |
| 礼金/敷金 | 非公開(アーカイブ) | 平米数 | 105.97㎡ |
| 初期費用概算(参考) | 目安:3,056,500〜3,156,500 円 | みなし賃料(月額・参考) | 710,760〜730,760 円 |
| 備考 | 本ページは過去募集のアーカイブです。表示の金額は周辺相場・過去募集を踏まえた参考レンジであり、実際の契約金額・条件ではありません。 | ||
※上記みなし賃料(月額)は仲介手数料割引・無料&キャッシュバックを加味した高級賃貸バイブル限定の金額です。一般的なみなし賃料とは異なります。
【建物ページ】ザ・パークハウスグラン南青山高樹町の詳細・最新空室はこちら▶▶選ばれる理由
仲介手数料無料・キャンペーン情報(毎月15名様限定)
〇仲介手数料割引キャンペーン
ザ・パークハウスグラン南青山高樹町 6階 105.97㎡の口コミ・レビュー
ザ・パークハウスグラン南青山高樹町 6階 105.97㎡は、まるで都会の喧騒を避けた静謐な隠れ家のように、あなたを迎え入れます。この美しい住空間には、洗練されたデザインが詰まっており、開放的な空間が広がる中、心を豊かにする瞬間が溢れています。
この物件がその存在感を発揮するのは、まずその広さ、105.97㎡という恵まれたスペース。まるで空に浮かぶ雲のごとく、自由自在にレイアウトできるLDKは17…ザ・パークハウスグラン南青山高樹町 6階 105.97㎡は、まるで都会の喧騒を避けた静謐な隠れ家のように、あなたを迎え入れます。この美しい住空間には、洗練されたデザインが詰まっており、開放的な空間が広がる中、心を豊かにする瞬間が溢れています。
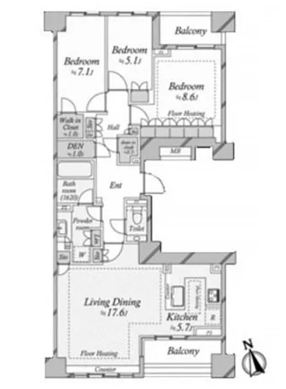
この物件がその存在感を発揮するのは、まずその広さ、105.97㎡という恵まれたスペース。まるで空に浮かぶ雲のごとく、自由自在にレイアウトできるLDKは17.6帖、キッチン5.7帖、そして3つの洋室が8.6帖、7.1帖、5.1帖。各部屋が奏でるハーモニーのように、あなたの生活と美しい調和を描き出します。明るい南向きの窓からは、昼間の柔らかな日差しが心地よく差し込み、そこにいるだけで心が解放されていくのを感じます。
そして、住まいはただの物理的空間ではなく、人生の舞台でもあります。ザ・パークハウスグラン南青山高樹町 6階での生活は、まるであなたが主人公の映画のワンシーンのよう。朝、目が覚めると、キッチンから漂う自家製のパンの香ばしい香りに包まれます。パンが焼かれる音が、朝の静けさを和らげ、次第に活気をもたらします。あなたがリビングでくつろぎながら、窓を開けると、近隣の歴史的な街並みを歩く人々の笑い声が心に響き渡り、まるでその一部になったかのよう。
特にこの南青山という立地は、ただの住所ではありません。アートや文化が息づく街で、人々の心にインスピレーションを与えている生きた舞台です。周囲には洗練されたカフェやギャラリーがあり、訪れるたびに新たな発見が待っています。それはまるで、一歩外に出るごとに新しい物語が始まるかのようです。
夜には、ザ・パークハウスグラン南青山高樹町 6階のフロントサービスが、安心感をもたらします。オートロックで守られた空間は、まるで宝石箱のようにあなたを大切に包み込み、その日常が特別なものであると語りかけてきます。高級感溢れるラウンジで、本を広げ、静かに流れる時間に身を委ねながら、アートに触れる贅沢なひとときを楽しむことができます。
また、宅配ボックスや駐車場、駐輪場といった充実した設備が日々の生活をさらに快適にしてくれます。手間なく受け取る宅配便は、まるであなたの生活を支えてくれる魔法のようです。生活のあらゆるシーンに、普段の生活にはない特別感が漂い、毎日が映画の一コマのように感じられます。
ザ・パークハウスグラン南青山高樹町 6階 105.97㎡での生活は、まさにあなた自身が描き出す憧れのストーリー。日々の忙しさを忘れ、心豊かな瞬間を大切にするための場所として、ここにしかない特別な体験を提供します。あなたも、この素晴らしい空間で新たな人生のページをめくってみませんか。
この物件がその存在感を発揮するのは、まずその広さ、105.97㎡という恵まれたスペース。まるで空に浮かぶ雲のごとく、自由自在にレイアウトできるLDKは17…ザ・パークハウスグラン南青山高樹町 6階 105.97㎡は、まるで都会の喧騒を避けた静謐な隠れ家のように、あなたを迎え入れます。この美しい住空間には、洗練されたデザインが詰まっており、開放的な空間が広がる中、心を豊かにする瞬間が溢れています。
この物件がその存在感を発揮するのは、まずその広さ、105.97㎡という恵まれたスペース。まるで空に浮かぶ雲のごとく、自由自在にレイアウトできるLDKは17.6帖、キッチン5.7帖、そして3つの洋室が8.6帖、7.1帖、5.1帖。各部屋が奏でるハーモニーのように、あなたの生活と美しい調和を描き出します。明るい南向きの窓からは、昼間の柔らかな日差しが心地よく差し込み、そこにいるだけで心が解放されていくのを感じます。
そして、住まいはただの物理的空間ではなく、人生の舞台でもあります。ザ・パークハウスグラン南青山高樹町 6階での生活は、まるであなたが主人公の映画のワンシーンのよう。朝、目が覚めると、キッチンから漂う自家製のパンの香ばしい香りに包まれます。パンが焼かれる音が、朝の静けさを和らげ、次第に活気をもたらします。あなたがリビングでくつろぎながら、窓を開けると、近隣の歴史的な街並みを歩く人々の笑い声が心に響き渡り、まるでその一部になったかのよう。
特にこの南青山という立地は、ただの住所ではありません。アートや文化が息づく街で、人々の心にインスピレーションを与えている生きた舞台です。周囲には洗練されたカフェやギャラリーがあり、訪れるたびに新たな発見が待っています。それはまるで、一歩外に出るごとに新しい物語が始まるかのようです。
夜には、ザ・パークハウスグラン南青山高樹町 6階のフロントサービスが、安心感をもたらします。オートロックで守られた空間は、まるで宝石箱のようにあなたを大切に包み込み、その日常が特別なものであると語りかけてきます。高級感溢れるラウンジで、本を広げ、静かに流れる時間に身を委ねながら、アートに触れる贅沢なひとときを楽しむことができます。
また、宅配ボックスや駐車場、駐輪場といった充実した設備が日々の生活をさらに快適にしてくれます。手間なく受け取る宅配便は、まるであなたの生活を支えてくれる魔法のようです。生活のあらゆるシーンに、普段の生活にはない特別感が漂い、毎日が映画の一コマのように感じられます。
ザ・パークハウスグラン南青山高樹町 6階 105.97㎡での生活は、まさにあなた自身が描き出す憧れのストーリー。日々の忙しさを忘れ、心豊かな瞬間を大切にするための場所として、ここにしかない特別な体験を提供します。あなたも、この素晴らしい空間で新たな人生のページをめくってみませんか。
バイブルスコア
バイブルスコア: 33.6
平均的なスコアです。
※バイブルスコア詳細はこちら
バイブルスコアとは独自のAI機械学習技術を利用した物件評価システムで、物件のおすすめ度を示します。最高得点は100点で、スコアが高いほど、よりおすすめの物件と評価されています。
写真
契約条件
| 賃料 | 予想金額:660,000〜680,000円程度 | 管理費 | 予想金額:0〜2,000円程度 |
| 礼金 | 非公開(アーカイブ) | 敷金 | 非公開(アーカイブ) |
| フリーレント | なし | 平米数 | 105.97㎡ |
| 間取り | 3LDK | 大型収納 | WIC+SIC |
| 契約期間 | 方角 | 南 | |
| 更新料 | 契約形態 | 定期借家契約 | |
| 取引態様 | 媒介 | 内見状況 | 入居中 |
| 入居時期 | 入居中 | SOHO・事務所 | |
| ペット | 間取り内訳 | LD:17.6 K:5.7 洋:8.6 洋:7.1 洋:5.1 | |
| キャンペーン情報・備考 | 本情報は賃料改定交渉の資料作成、収益物件の利回り試算、周辺エリアや最寄り駅の坪単価分析、次回募集開始時期の予測などにご活用いただけます。 | ||
※「どの不動産に頼めばいいのか分からない」「信頼できる営業マンの話を聞きたい」「一番親切な会社と契約したい」とお悩みの方におすすめなのが「高級賃貸バイブル」です。
高級賃貸バイブルは業界10年以上の熟練スタッフ群がお客様ファーストで対応します。
下記ボタンから、まずは無料でご相談下さい。
※内覧をご希望の際には、どうぞ物件のエントランス前にてお待ち合わせくださいませ。ご内覧後は、同じ場所でお別れとさせていただきます。お客様のご都合に合わせたスムーズなご案内を心がけておりますので、ご質問等がございましたら何なりとお申し付けください。 物件概要
| 物件名 |
| 築年月 |
|
|---|---|---|---|
| 所在地 | |||
| 交通 | |||
| 総戸数 |
| 総階数 |
|
| 構造 |
| ||
地図
物件までの道のりは、「拡大地図を表示」をクリックしてナビ機能をご利用ください。
部屋設備


















建物設備

24時間管理

TVモニターホン

エレベーター

オートロック

フロントサービス

ラウンジ

宅配ボックス

敷地内ゴミ置場

管理人

駐車場平置き

駐車場機械式

駐輪場
ザ・パークハウスグラン南青山高樹町の現在募集中のお部屋
- No rooms found for this property.



















