
| 賃料 | 予想金額:1,390,000〜1,410,000円程度 | 管理費 | 予想金額:0〜2,000円程度 |
| 礼金/敷金 | 非公開(アーカイブ) | 平米数 | 298.14㎡ |
| 初期費用概算(参考) | 目安:10,558,000〜10,658,000 円 | みなし賃料(月額・参考) | 1,581,833〜1,601,833 円 |
| 備考 | 本ページは過去募集のアーカイブです。表示の金額は周辺相場・過去募集を踏まえた参考レンジであり、実際の契約金額・条件ではありません。 | ||
※上記みなし賃料(月額)は仲介手数料割引・無料&キャッシュバックを加味した高級賃貸バイブル限定の金額です。一般的なみなし賃料とは異なります。
【建物ページ】松濤クレストハウスの詳細・最新空室はこちら▶▶選ばれる理由
仲介手数料無料・キャンペーン情報(毎月15名様限定)
〇仲介手数料割引キャンペーン
松濤クレストハウス 203の口コミ・レビュー
松濤クレストハウス 203は、まるで夢の世界から抜け出したかのような優雅な存在感を放つ、高級賃貸のオアシスです。あなたがこの扉を開ける瞬間、静かで穏やかな空気が優しくあなたを迎え入れ、自分だけの特別な空間が広がります。298.14㎡もの広さを感じさせるこの住まいは、まさに「居住する芸術作品」と言えるでしょう。
まず、南西向きの窓から注ぎ込む陽光が、木々の葉を透かし、柔らかな光のカーテンを作り出し…松濤クレストハウス 203は、まるで夢の世界から抜け出したかのような優雅な存在感を放つ、高級賃貸のオアシスです。あなたがこの扉を開ける瞬間、静かで穏やかな空気が優しくあなたを迎え入れ、自分だけの特別な空間が広がります。298.14㎡もの広さを感じさせるこの住まいは、まさに「居住する芸術作品」と言えるでしょう。
まず、南西向きの窓から注ぎ込む陽光が、木々の葉を透かし、柔らかな光のカーテンを作り出します。リビングダイニングは35帖という広さで、まるで大舞台に立つかのような開放感。家族や友人と共に過ごす時間は、まるで映画のワンシーンのように美しく、笑い声と香ばしい料理の香りが空間を満たします。特に、13帖のキッチンでは、愛情を込めた料理が生まれ、暖かな家庭の味が広がります。それはまるで、心をこめた料理が家族を癒す魔法のようです。
松濤クレストハウス 203では、4つの洋室がそれぞれ独自の物語を持っています。6.9帖の洋室は、穏やかな眠りへと誘う穏やかな空間であり、5.9帖の洋室は、趣味の部屋にぴったりのクリエイティブな雰囲気が漂います。その中で、13.9帖の洋室は大切なプライベート空間。目を閉じれば、心安らぐ音楽と共に、思い出の詰まった書籍に囲まれる至福の時間が流れます。
物件の周囲は、文化的な香りが漂っています。渋谷区松濤という名は、歴史的な街並みと共に育まれたアートの聖地。地元のアーティストたちの作品が息づく通りを散策すれば、心地よい風と共に、色彩豊かなインスピレーションが舞い込むことでしょう。街の歴史的な建物と、先端のスタイルが融合したこのエリアは、感性を豊かにする素晴らしい環境を提供してくれます。
松濤クレストハウス 203には、24時間体制の管理人が居住者を見守り、安心感を提供。オートロックとエレベーター、宅配ボックスが整い、生活の利便性も高められています。駐車場や駐輪場も完備されており、まさに心温まる生活がここから始まります。外出先から帰宅する際に、心地よい厳かな静けさに包まれる瞬間は、まるで映画のワンシーンのように印象的です。
この高級賃貸物件は、ただの住まいではなく、人生の新たな章を綴るための舞台です。あなたの物語は、松濤クレストハウス 203で始まるのです。色とりどりの生活の香りに囲まれ、五感を奮い立たせる優雅な日々が待っています。この場所で、あなた自身の愛と感動を紡いでみませんか。
まず、南西向きの窓から注ぎ込む陽光が、木々の葉を透かし、柔らかな光のカーテンを作り出し…松濤クレストハウス 203は、まるで夢の世界から抜け出したかのような優雅な存在感を放つ、高級賃貸のオアシスです。あなたがこの扉を開ける瞬間、静かで穏やかな空気が優しくあなたを迎え入れ、自分だけの特別な空間が広がります。298.14㎡もの広さを感じさせるこの住まいは、まさに「居住する芸術作品」と言えるでしょう。
まず、南西向きの窓から注ぎ込む陽光が、木々の葉を透かし、柔らかな光のカーテンを作り出します。リビングダイニングは35帖という広さで、まるで大舞台に立つかのような開放感。家族や友人と共に過ごす時間は、まるで映画のワンシーンのように美しく、笑い声と香ばしい料理の香りが空間を満たします。特に、13帖のキッチンでは、愛情を込めた料理が生まれ、暖かな家庭の味が広がります。それはまるで、心をこめた料理が家族を癒す魔法のようです。
松濤クレストハウス 203では、4つの洋室がそれぞれ独自の物語を持っています。6.9帖の洋室は、穏やかな眠りへと誘う穏やかな空間であり、5.9帖の洋室は、趣味の部屋にぴったりのクリエイティブな雰囲気が漂います。その中で、13.9帖の洋室は大切なプライベート空間。目を閉じれば、心安らぐ音楽と共に、思い出の詰まった書籍に囲まれる至福の時間が流れます。
物件の周囲は、文化的な香りが漂っています。渋谷区松濤という名は、歴史的な街並みと共に育まれたアートの聖地。地元のアーティストたちの作品が息づく通りを散策すれば、心地よい風と共に、色彩豊かなインスピレーションが舞い込むことでしょう。街の歴史的な建物と、先端のスタイルが融合したこのエリアは、感性を豊かにする素晴らしい環境を提供してくれます。
松濤クレストハウス 203には、24時間体制の管理人が居住者を見守り、安心感を提供。オートロックとエレベーター、宅配ボックスが整い、生活の利便性も高められています。駐車場や駐輪場も完備されており、まさに心温まる生活がここから始まります。外出先から帰宅する際に、心地よい厳かな静けさに包まれる瞬間は、まるで映画のワンシーンのように印象的です。
この高級賃貸物件は、ただの住まいではなく、人生の新たな章を綴るための舞台です。あなたの物語は、松濤クレストハウス 203で始まるのです。色とりどりの生活の香りに囲まれ、五感を奮い立たせる優雅な日々が待っています。この場所で、あなた自身の愛と感動を紡いでみませんか。
バイブルスコア
バイブルスコア: 60.2
かなり条件の良い物件です、即仮押さえをおすすめする物件です!
このお部屋は、現在ご入居中のため空室情報はございません。ただし、将来的に募集が開始される際、バイブルスコアにおいて非常に高い評価が期待されます。特にご興味をお持ちの方は、今のうちにブックマークやお気に入りに登録していただくと、募集開始のお知らせをすぐに受け取ることができます。是非ともご検討くださいませ。
※バイブルスコア詳細はこちら
バイブルスコアとは独自のAI機械学習技術を利用した物件評価システムで、物件のおすすめ度を示します。最高得点は100点で、スコアが高いほど、よりおすすめの物件と評価されています。
写真
契約条件
| 賃料 | 予想金額:1,390,000〜1,410,000円程度 | 管理費 | 予想金額:0〜2,000円程度 |
| 礼金 | 非公開(アーカイブ) | 敷金 | 非公開(アーカイブ) |
| フリーレント | なし | 平米数 | 298.14㎡ |
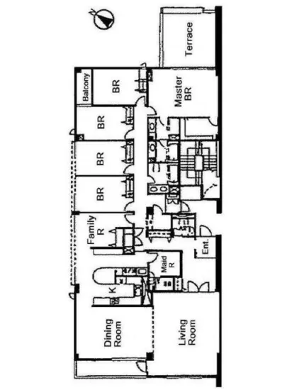
| 間取り | 5LDK | 大型収納 | WIC+SIC+N |
| 契約期間 | 2年 | 方角 | 南西 |
| 更新料 | 1ヶ月 | 契約形態 | 普通賃貸借契約 |
| 取引態様 | 媒介 | 内見状況 | 入居中 |
| 入居時期 | 入居中 | SOHO・事務所 | 不可 |
| ペット | ペット可 | 間取り内訳 | 洋:13.9 洋:6.9 洋:6.9 洋:5.9 洋: LD:35 K:13 |
| キャンペーン情報・備考 | 本情報は賃料改定交渉の資料作成、収益物件の利回り試算、周辺エリアや最寄り駅の坪単価分析、次回募集開始時期の予測などにご活用いただけます。 | ||
※「どの不動産に頼めばいいのか分からない」「信頼できる営業マンの話を聞きたい」「一番親切な会社と契約したい」とお悩みの方におすすめなのが「高級賃貸バイブル」です。
高級賃貸バイブルは業界10年以上の熟練スタッフ群がお客様ファーストで対応します。
下記ボタンから、まずは無料でご相談下さい。
※内覧をご希望の際には、どうぞ物件のエントランス前にてお待ち合わせくださいませ。ご内覧後は、同じ場所でお別れとさせていただきます。お客様のご都合に合わせたスムーズなご案内を心がけておりますので、ご質問等がございましたら何なりとお申し付けください。 物件概要
| 物件名 |
| 築年月 |
|
|---|---|---|---|
| 所在地 | |||
| 交通 | |||
| 総戸数 |
| 総階数 |
|
| 構造 |
| ||
地図
物件までの道のりは、「拡大地図を表示」をクリックしてナビ機能をご利用ください。
部屋設備



















建物設備

24時間管理

TVモニターホン

エレベーター

オートロック

宅配ボックス

敷地内ゴミ置場

管理人

駐車場平置き

駐車場機械式

駐輪場
松濤クレストハウスの現在募集中のお部屋
- No rooms found for this property.























