
| 賃料 | 予想金額:323,000〜343,000円程度 | 管理費 | 予想金額:8,000〜12,000円程度 |
| 礼金/敷金 | 非公開(アーカイブ) | 平米数 | 50.36㎡ |
| 初期費用概算(参考) | 目安:1,309,857〜1,409,857 円 | みなし賃料(月額・参考) | 354,393〜374,393 円 |
| 備考 | 本ページは過去募集のアーカイブです。表示の金額は周辺相場・過去募集を踏まえた参考レンジであり、実際の契約金額・条件ではありません。 | ||
※上記みなし賃料(月額)は仲介手数料割引・無料&キャッシュバックを加味した高級賃貸バイブル限定の金額です。一般的なみなし賃料とは異なります。
【建物ページ】カーササクシード麻布十番の詳細・最新空室はこちら▶▶選ばれる理由
仲介手数料無料・キャンペーン情報(毎月15名様限定)
〇仲介手数料割引キャンペーン
カーササクシード麻布十番 301の口コミ・レビュー
カーササクシード麻布十番 301。これは単なる住まいではありません。あなたを未知なる世界へと誘う、夢の舞台です。東京都港区東麻布3-10に位置するこの物件は、まるで洗練されたアートのように、日常の中に非日常を巧みに織り交ぜてくれます。北を向くこの住まいは、朝日が差し込む煌めきを背後に、静かに穏やかな時間を提供してくれることでしょう。
想像してみてください。LDK12.6帖の広がりは、まるで友人た…カーササクシード麻布十番 301。これは単なる住まいではありません。あなたを未知なる世界へと誘う、夢の舞台です。東京都港区東麻布3-10に位置するこの物件は、まるで洗練されたアートのように、日常の中に非日常を巧みに織り交ぜてくれます。北を向くこの住まいは、朝日が差し込む煌めきを背後に、静かに穏やかな時間を提供してくれることでしょう。
想像してみてください。LDK12.6帖の広がりは、まるで友人たちとの笑い声で満たされる温かなカフェのようです。料理の香りが漂い、手料理を囲んで語らう時間には、まるで映画のワンシーンのような特別な瞬間が広がります。風に揺れるカーテンの音が、まるで心に響くセリフのように、日常にリズムを与えてくれます。一方、洋室6帖の空間は、安らぎのオアシスです。心地よい触覚を感じるベッドに身を横たえれば、まるでふわふわの雲の上で眠っているかのよう。夢の中では、あなたはこの部屋の主人公です。
カーササクシード麻布十番 301は、最寄りの東京メトロ南北線麻布十番駅から徒歩2分という立地にあります。この瞬間、まるで都市の中心に身を置く冒険者のようです。周囲には歴史と文化が息づき、落ち着いた街並みと共に、心に残る記憶を紡ぐ場所が広がっています。麻布十番の町の魅力を感じながら、散歩するだけで、五感が刺激されること間違いなしです。美味しい和菓子屋の香り、隣のカフェから漂うコーヒーの芳香、どこか懐かしさを感じる風物詩が、あなたの心を温めてくれることでしょう。
設備もまた、あなたの生活を特別に演出するための大切な要素です。TVモニターホンやオートロック、宅配ボックス、敷地内ゴミ置場があることで、安心と快適さが築かれています。これらは、まるで心の支えとなる優しい友人のようです。暮らしの中で直面する小さな課題を、軽やかに解決へと導いてくれます。
カーササクシード麻布十番 301での生活は、ただの住まいではなく、人生の新たな章が始まる瞬間を意味します。ここでの毎日は、あなた自身の物語を描くためのキャンバスです。無限の可能性が広がるこの空間で、あなたはどんなストーリーを紡ぎますか。新しい生活の扉を開け、さあ、この美しい舞台での冒険を始めましょう。カーササクシード麻布十番 301が、あなたのハートを捉えて、決して手放さない特別な場所になることを、私は確信しています。
想像してみてください。LDK12.6帖の広がりは、まるで友人た…カーササクシード麻布十番 301。これは単なる住まいではありません。あなたを未知なる世界へと誘う、夢の舞台です。東京都港区東麻布3-10に位置するこの物件は、まるで洗練されたアートのように、日常の中に非日常を巧みに織り交ぜてくれます。北を向くこの住まいは、朝日が差し込む煌めきを背後に、静かに穏やかな時間を提供してくれることでしょう。
想像してみてください。LDK12.6帖の広がりは、まるで友人たちとの笑い声で満たされる温かなカフェのようです。料理の香りが漂い、手料理を囲んで語らう時間には、まるで映画のワンシーンのような特別な瞬間が広がります。風に揺れるカーテンの音が、まるで心に響くセリフのように、日常にリズムを与えてくれます。一方、洋室6帖の空間は、安らぎのオアシスです。心地よい触覚を感じるベッドに身を横たえれば、まるでふわふわの雲の上で眠っているかのよう。夢の中では、あなたはこの部屋の主人公です。
カーササクシード麻布十番 301は、最寄りの東京メトロ南北線麻布十番駅から徒歩2分という立地にあります。この瞬間、まるで都市の中心に身を置く冒険者のようです。周囲には歴史と文化が息づき、落ち着いた街並みと共に、心に残る記憶を紡ぐ場所が広がっています。麻布十番の町の魅力を感じながら、散歩するだけで、五感が刺激されること間違いなしです。美味しい和菓子屋の香り、隣のカフェから漂うコーヒーの芳香、どこか懐かしさを感じる風物詩が、あなたの心を温めてくれることでしょう。
設備もまた、あなたの生活を特別に演出するための大切な要素です。TVモニターホンやオートロック、宅配ボックス、敷地内ゴミ置場があることで、安心と快適さが築かれています。これらは、まるで心の支えとなる優しい友人のようです。暮らしの中で直面する小さな課題を、軽やかに解決へと導いてくれます。
カーササクシード麻布十番 301での生活は、ただの住まいではなく、人生の新たな章が始まる瞬間を意味します。ここでの毎日は、あなた自身の物語を描くためのキャンバスです。無限の可能性が広がるこの空間で、あなたはどんなストーリーを紡ぎますか。新しい生活の扉を開け、さあ、この美しい舞台での冒険を始めましょう。カーササクシード麻布十番 301が、あなたのハートを捉えて、決して手放さない特別な場所になることを、私は確信しています。
バイブルスコア
バイブルスコア: 61.5
かなり条件の良い物件です、即仮押さえをおすすめする物件です!
このお部屋は、現在ご入居中のため空室情報はございません。ただし、将来的に募集が開始される際、バイブルスコアにおいて非常に高い評価が期待されます。特にご興味をお持ちの方は、今のうちにブックマークやお気に入りに登録していただくと、募集開始のお知らせをすぐに受け取ることができます。是非ともご検討くださいませ。
※バイブルスコア詳細はこちら
バイブルスコアとは独自のAI機械学習技術を利用した物件評価システムで、物件のおすすめ度を示します。最高得点は100点で、スコアが高いほど、よりおすすめの物件と評価されています。
写真
現在写真が登録されていません契約条件
| 賃料 | 予想金額:323,000〜343,000円程度 | 管理費 | 予想金額:8,000〜12,000円程度 |
| 礼金 | 非公開(アーカイブ) | 敷金 | 非公開(アーカイブ) |
| フリーレント | なし | 平米数 | 50.36㎡ |
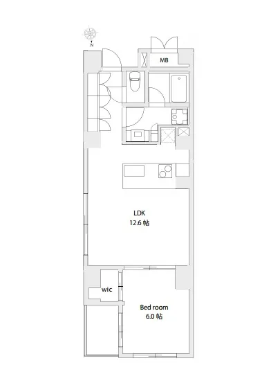
| 間取り | 1LDK+WIC | 大型収納 | WIC |
| 契約期間 | 2年 | 方角 | 北 |
| 更新料 | 1ヶ月 | 契約形態 | 普通賃貸借契約 |
| 取引態様 | 媒介 | 内見状況 | 入居中 |
| 入居時期 | 入居中 | SOHO・事務所 | 不可 |
| ペット | 相談 | 間取り内訳 | LDK12.6帖 洋室6帖 |
| キャンペーン情報・備考 | 本情報は賃料改定交渉の資料作成、収益物件の利回り試算、周辺エリアや最寄り駅の坪単価分析、次回募集開始時期の予測などにご活用いただけます。 | ||
※「どの不動産に頼めばいいのか分からない」「信頼できる営業マンの話を聞きたい」「一番親切な会社と契約したい」とお悩みの方におすすめなのが「高級賃貸バイブル」です。
高級賃貸バイブルは業界10年以上の熟練スタッフ群がお客様ファーストで対応します。
下記ボタンから、まずは無料でご相談下さい。
※内覧をご希望の際には、どうぞ物件のエントランス前にてお待ち合わせくださいませ。ご内覧後は、同じ場所でお別れとさせていただきます。お客様のご都合に合わせたスムーズなご案内を心がけておりますので、ご質問等がございましたら何なりとお申し付けください。 物件概要
| 物件名 |
| 築年月 |
|
|---|---|---|---|
| 所在地 | |||
| 交通 | |||
| 総戸数 |
| 総階数 |
|
| 構造 |
| ||
地図
物件までの道のりは、「拡大地図を表示」をクリックしてナビ機能をご利用ください。
部屋設備













建物設備

TVモニターホン

エレベーター

オートロック

宅配ボックス

敷地内ゴミ置場
カーササクシード麻布十番の現在募集中のお部屋
- No rooms found for this property.
