
| 賃料 | 予想金額:237,000〜257,000円程度 | 管理費 | 予想金額:8,000〜12,000円程度 |
| 礼金/敷金 | 非公開(アーカイブ) | 平米数 | 50.36㎡ |
| 初期費用概算(参考) | 目安:921,000〜1,021,000 円 | みなし賃料(月額・参考) | 262,083〜282,083 円 |
| 備考 | 本ページは過去募集のアーカイブです。表示の金額は周辺相場・過去募集を踏まえた参考レンジであり、実際の契約金額・条件ではありません。 | ||
※上記みなし賃料(月額)は仲介手数料割引・無料&キャッシュバックを加味した高級賃貸バイブル限定の金額です。一般的なみなし賃料とは異なります。
【建物ページ】カーササクシード麻布十番の詳細・最新空室はこちら▶▶選ばれる理由
仲介手数料無料・キャンペーン情報(毎月15名様限定)
〇仲介手数料割引キャンペーン
カーササクシード麻布十番 501の口コミ・レビュー
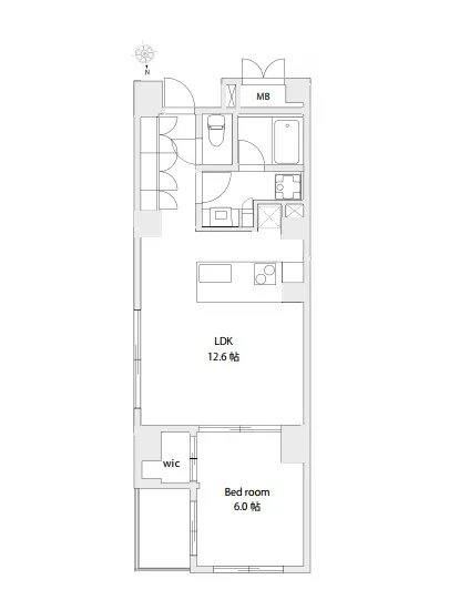
カーササクシード麻布十番 501は、まるで東京の隠れた宝石のように、あなたを待ち焦がれています。501という数字が示すそのフロアは、特別な空間への扉を開く鍵のように、静かなる優雅さと洗練されたスタイルを兼ね備えています。専有面積50.36㎡、巧みなデザインによる1LDKは、居住者の心を豊かにするために創られたオアシスです。
この住まいの中に入れば、まず目を引くのがLDK12.6帖の広々とした空間…カーササクシード麻布十番 501は、まるで東京の隠れた宝石のように、あなたを待ち焦がれています。501という数字が示すそのフロアは、特別な空間への扉を開く鍵のように、静かなる優雅さと洗練されたスタイルを兼ね備えています。専有面積50.36㎡、巧みなデザインによる1LDKは、居住者の心を豊かにするために創られたオアシスです。
この住まいの中に入れば、まず目を引くのがLDK12.6帖の広々とした空間。日々の生活を包み込むように、穏やかな光が優しく差し込んできて、まるで自然のギフトであるかのようです。鼻をくすぐるのは、インテリアから漂う新鮮な香り。デザイナーズの手によって生み出された独自のスタイルが、あなたをワクワクさせることでしょう。
静寂な北の方角に位置するカーササクシード麻布十番 501は、都会の喧騒を遠ざけ、心の平穏を保つために選ばれた場所。窓を開ければ、その先には麻布十番の温もりある街並みが広がります。耳を澄ませば、遠くの公園から響く子どもたちの笑い声と、風に揺れる木々の葉音が心地よいハーモニーを奏でているのです。
住まいの中では、洋室6.0帖という贅沢な空間が、心と体をリラックスさせるためのシェルターとして機能します。お好きな家具を配置し、あなたの個性を反映させるのにうってつけの場所でしょう。踏み込むたびに感じる柔らかな床の感触が、心に安らぎをもたらします。
カーササクシード麻布十番 501では、生活に必要な設備も充実。TVモニターホンやオートロック、宅配ボックスなど、現代の利便性を追求しつつも、そのデザインには洗練された美が宿っています。エレベーターでの上昇は、まるで準備を整えて新たな日常へと飛び立つような期待感を抱かせ、敷地内のゴミ置場が生活の小さなストレスも取り除いてくれます。
最寄りの東京メトロ南北線 麻布十番駅から徒歩2分、というアクセスの良さは、まさに都会の利便性を享受する特権。文化と歴史が交錯するこのエリアは、周囲のアートギャラリーやカフェ、ショップとともに、あなたに刺激的で豊かな日々を提供してくれることでしょう。
カーササクシード麻布十番 501は、ただの住まいではなく、あなたの人生の物語をより美しく彩る舞台です。日々の生活が紡ぐ物語は、ここでの瞬間瞬間が、まるで映画のワンシーンのように鮮やかであることを約束します。この特別な空間に、ぜひ足を踏み入れてみてください。あなた自身が描く新たなストーリーが、ここから始まります。
この住まいの中に入れば、まず目を引くのがLDK12.6帖の広々とした空間…カーササクシード麻布十番 501は、まるで東京の隠れた宝石のように、あなたを待ち焦がれています。501という数字が示すそのフロアは、特別な空間への扉を開く鍵のように、静かなる優雅さと洗練されたスタイルを兼ね備えています。専有面積50.36㎡、巧みなデザインによる1LDKは、居住者の心を豊かにするために創られたオアシスです。
この住まいの中に入れば、まず目を引くのがLDK12.6帖の広々とした空間。日々の生活を包み込むように、穏やかな光が優しく差し込んできて、まるで自然のギフトであるかのようです。鼻をくすぐるのは、インテリアから漂う新鮮な香り。デザイナーズの手によって生み出された独自のスタイルが、あなたをワクワクさせることでしょう。
静寂な北の方角に位置するカーササクシード麻布十番 501は、都会の喧騒を遠ざけ、心の平穏を保つために選ばれた場所。窓を開ければ、その先には麻布十番の温もりある街並みが広がります。耳を澄ませば、遠くの公園から響く子どもたちの笑い声と、風に揺れる木々の葉音が心地よいハーモニーを奏でているのです。
住まいの中では、洋室6.0帖という贅沢な空間が、心と体をリラックスさせるためのシェルターとして機能します。お好きな家具を配置し、あなたの個性を反映させるのにうってつけの場所でしょう。踏み込むたびに感じる柔らかな床の感触が、心に安らぎをもたらします。
カーササクシード麻布十番 501では、生活に必要な設備も充実。TVモニターホンやオートロック、宅配ボックスなど、現代の利便性を追求しつつも、そのデザインには洗練された美が宿っています。エレベーターでの上昇は、まるで準備を整えて新たな日常へと飛び立つような期待感を抱かせ、敷地内のゴミ置場が生活の小さなストレスも取り除いてくれます。
最寄りの東京メトロ南北線 麻布十番駅から徒歩2分、というアクセスの良さは、まさに都会の利便性を享受する特権。文化と歴史が交錯するこのエリアは、周囲のアートギャラリーやカフェ、ショップとともに、あなたに刺激的で豊かな日々を提供してくれることでしょう。
カーササクシード麻布十番 501は、ただの住まいではなく、あなたの人生の物語をより美しく彩る舞台です。日々の生活が紡ぐ物語は、ここでの瞬間瞬間が、まるで映画のワンシーンのように鮮やかであることを約束します。この特別な空間に、ぜひ足を踏み入れてみてください。あなた自身が描く新たなストーリーが、ここから始まります。
バイブルスコア
バイブルスコア: 23.5
平均的なスコアです。
※バイブルスコア詳細はこちら
バイブルスコアとは独自のAI機械学習技術を利用した物件評価システムで、物件のおすすめ度を示します。最高得点は100点で、スコアが高いほど、よりおすすめの物件と評価されています。
写真
現在写真が登録されていません契約条件
| 賃料 | 予想金額:237,000〜257,000円程度 | 管理費 | 予想金額:8,000〜12,000円程度 |
| 礼金 | 非公開(アーカイブ) | 敷金 | 非公開(アーカイブ) |
| フリーレント | なし | 平米数 | 50.36㎡ |
| 間取り | 1LDK | 大型収納 | |
| 契約期間 |
| 方角 | 北 |
| 更新料 | 契約形態 | 普通賃貸借契約 | |
| 取引態様 | 媒介 | 内見状況 | 入居中 |
| 入居時期 | 入居中 | SOHO・事務所 | |
| ペット | ペット可 | 間取り内訳 | 洋6.0 LDK12.6 |
| キャンペーン情報・備考 | 本情報は賃料改定交渉の資料作成、収益物件の利回り試算、周辺エリアや最寄り駅の坪単価分析、次回募集開始時期の予測などにご活用いただけます。 | ||
※「どの不動産に頼めばいいのか分からない」「信頼できる営業マンの話を聞きたい」「一番親切な会社と契約したい」とお悩みの方におすすめなのが「高級賃貸バイブル」です。
高級賃貸バイブルは業界10年以上の熟練スタッフ群がお客様ファーストで対応します。
下記ボタンから、まずは無料でご相談下さい。
※内覧をご希望の際には、どうぞ物件のエントランス前にてお待ち合わせくださいませ。ご内覧後は、同じ場所でお別れとさせていただきます。お客様のご都合に合わせたスムーズなご案内を心がけておりますので、ご質問等がございましたら何なりとお申し付けください。 物件概要
| 物件名 |
| 築年月 |
|
|---|---|---|---|
| 所在地 | |||
| 交通 | |||
| 総戸数 |
| 総階数 |
|
| 構造 |
| ||
地図
物件までの道のりは、「拡大地図を表示」をクリックしてナビ機能をご利用ください。
部屋設備
















建物設備

TVモニターホン

エレベーター

オートロック

宅配ボックス

敷地内ゴミ置場
カーササクシード麻布十番の現在募集中のお部屋
- No rooms found for this property.
