
| 賃料 | 予想金額:330,000〜350,000円程度 | 管理費 | 予想金額:8,000〜12,000円程度 |
| 礼金/敷金 | 非公開(アーカイブ) | 平米数 | 50.36㎡ |
| 初期費用概算(参考) | 目安:1,337,360〜1,437,360 円 | みなし賃料(月額・参考) | 361,820〜381,820 円 |
| 備考 | 本ページは過去募集のアーカイブです。表示の金額は周辺相場・過去募集を踏まえた参考レンジであり、実際の契約金額・条件ではありません。 | ||
※上記みなし賃料(月額)は仲介手数料割引・無料&キャッシュバックを加味した高級賃貸バイブル限定の金額です。一般的なみなし賃料とは異なります。
【建物ページ】カーササクシード麻布十番の詳細・最新空室はこちら▶▶選ばれる理由
仲介手数料無料・キャンペーン情報(毎月15名様限定)
〇仲介手数料割引キャンペーン
カーササクシード麻布十番 701の口コミ・レビュー
カーササクシード麻布十番 701という名の下に、あなたの新しい物語が始まります。この特別な物件は、東京都港区東麻布の華やかな街並みの中に佇み、まるで都会のオアシスのように静寂をたたえています。ここに住むことは、ただの生活ではなく、心地よいリズムで奏でられる生活の交響曲を楽しむことなのです。
この701号室は、北を向いているため、柔らかな朝日が穏やかに室内を包み込み、あなたを優しく起こしてくれます…カーササクシード麻布十番 701という名の下に、あなたの新しい物語が始まります。この特別な物件は、東京都港区東麻布の華やかな街並みの中に佇み、まるで都会のオアシスのように静寂をたたえています。ここに住むことは、ただの生活ではなく、心地よいリズムで奏でられる生活の交響曲を楽しむことなのです。
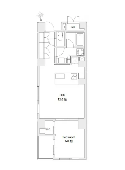
この701号室は、北を向いているため、柔らかな朝日が穏やかに室内を包み込み、あなたを優しく起こしてくれます。その広々としたLDK12.6帖は、明るい光が舞い込み、自然と人々を惹きつける魅力を持っています。友人たちと過ごすひとときを、ここで描く情景を思い描いてみてください。新鮮な食材の香りとともに、キッチンからは料理する音が響き、生活の音楽が奏でられるのです。
また、洋室6帖はまるで秘密の隠れ家のように穏やかな空気を持ち、心の安らぎを与えてくれる場所です。ふかふかのカーペットに足を埋め、柔らかな光に包まれながら、心ゆくまでリラックスすることができるのです。その瞬間、何気ない時間が特別なものに変わることでしょう。
カーササクシード麻布十番 701は、ただの住まいではなく、あなたの人生を豊かに彩る舞台なのです。いつも行き交う路地やカフェ、そのすべてが日常の中の小さな冒険として感じられます。東京メトロ南北線麻布十番駅から徒歩2分という立地は、まさに理想的。街の喧騒からほんの少し離れた場所に位置し、日々の疲れを癒すための完璧な距離感を保っています。
この物件には、TVモニターホンやエレベーター、オートロックといった最新の設備が整っており、安心・安全をしっかりと守ってくれます。宅配ボックスがあるため、忙しい日々でも大切な荷物を確実に受け取れるのは、現代の生活においての嬉しい配慮です。また、敷地内ゴミ置場も完備されており、 Cleanliness is next to Godlinessという言葉を実感しながら、快適な生活を享受することができます。
カーササクシード麻布十番 701は、まさにあなたの人生の詩を紡ぐための舞台です。刻々と変わる生活の一瞬一瞬を大切にしながら、素晴らしい人々や心温まる出来事と出会っていくことでしょう。この物件があなたに与えるのは、単なる住まいだけではなく、無限の可能性が詰まった、新たな人生の旅路なのです。あなたの未来を、この特別な場所で築いてみませんか。
この701号室は、北を向いているため、柔らかな朝日が穏やかに室内を包み込み、あなたを優しく起こしてくれます…カーササクシード麻布十番 701という名の下に、あなたの新しい物語が始まります。この特別な物件は、東京都港区東麻布の華やかな街並みの中に佇み、まるで都会のオアシスのように静寂をたたえています。ここに住むことは、ただの生活ではなく、心地よいリズムで奏でられる生活の交響曲を楽しむことなのです。
この701号室は、北を向いているため、柔らかな朝日が穏やかに室内を包み込み、あなたを優しく起こしてくれます。その広々としたLDK12.6帖は、明るい光が舞い込み、自然と人々を惹きつける魅力を持っています。友人たちと過ごすひとときを、ここで描く情景を思い描いてみてください。新鮮な食材の香りとともに、キッチンからは料理する音が響き、生活の音楽が奏でられるのです。
また、洋室6帖はまるで秘密の隠れ家のように穏やかな空気を持ち、心の安らぎを与えてくれる場所です。ふかふかのカーペットに足を埋め、柔らかな光に包まれながら、心ゆくまでリラックスすることができるのです。その瞬間、何気ない時間が特別なものに変わることでしょう。
カーササクシード麻布十番 701は、ただの住まいではなく、あなたの人生を豊かに彩る舞台なのです。いつも行き交う路地やカフェ、そのすべてが日常の中の小さな冒険として感じられます。東京メトロ南北線麻布十番駅から徒歩2分という立地は、まさに理想的。街の喧騒からほんの少し離れた場所に位置し、日々の疲れを癒すための完璧な距離感を保っています。
この物件には、TVモニターホンやエレベーター、オートロックといった最新の設備が整っており、安心・安全をしっかりと守ってくれます。宅配ボックスがあるため、忙しい日々でも大切な荷物を確実に受け取れるのは、現代の生活においての嬉しい配慮です。また、敷地内ゴミ置場も完備されており、 Cleanliness is next to Godlinessという言葉を実感しながら、快適な生活を享受することができます。
カーササクシード麻布十番 701は、まさにあなたの人生の詩を紡ぐための舞台です。刻々と変わる生活の一瞬一瞬を大切にしながら、素晴らしい人々や心温まる出来事と出会っていくことでしょう。この物件があなたに与えるのは、単なる住まいだけではなく、無限の可能性が詰まった、新たな人生の旅路なのです。あなたの未来を、この特別な場所で築いてみませんか。
バイブルスコア
バイブルスコア: 59
条件のいい物件です、引っ越しが2か月以内の場合は仮申し込みを検討すべき物件です。
このお部屋は、現在ご入居中のため空室情報はございません。ただし、将来的に募集が開始される際、バイブルスコアにおいて非常に高い評価が期待されます。特にご興味をお持ちの方は、今のうちにブックマークやお気に入りに登録していただくと、募集開始のお知らせをすぐに受け取ることができます。是非ともご検討くださいませ。
※バイブルスコア詳細はこちら
バイブルスコアとは独自のAI機械学習技術を利用した物件評価システムで、物件のおすすめ度を示します。最高得点は100点で、スコアが高いほど、よりおすすめの物件と評価されています。
写真
現在写真が登録されていません契約条件
| 賃料 | 予想金額:330,000〜350,000円程度 | 管理費 | 予想金額:8,000〜12,000円程度 |
| 礼金 | 非公開(アーカイブ) | 敷金 | 非公開(アーカイブ) |
| フリーレント | なし | 平米数 | 50.36㎡ |
| 間取り | 1LDK+WIC | 大型収納 | WIC |
| 契約期間 | 2年 | 方角 | 北 |
| 更新料 | 1ヶ月 | 契約形態 | 普通賃貸借契約 |
| 取引態様 | 媒介 | 内見状況 | 入居中 |
| 入居時期 | 入居中 | SOHO・事務所 | 不可 |
| ペット | 相談 | 間取り内訳 | LDK12.6帖 洋室6帖 |
| キャンペーン情報・備考 | 本情報は賃料改定交渉の資料作成、収益物件の利回り試算、周辺エリアや最寄り駅の坪単価分析、次回募集開始時期の予測などにご活用いただけます。 | ||
※「どの不動産に頼めばいいのか分からない」「信頼できる営業マンの話を聞きたい」「一番親切な会社と契約したい」とお悩みの方におすすめなのが「高級賃貸バイブル」です。
高級賃貸バイブルは業界10年以上の熟練スタッフ群がお客様ファーストで対応します。
下記ボタンから、まずは無料でご相談下さい。
※内覧をご希望の際には、どうぞ物件のエントランス前にてお待ち合わせくださいませ。ご内覧後は、同じ場所でお別れとさせていただきます。お客様のご都合に合わせたスムーズなご案内を心がけておりますので、ご質問等がございましたら何なりとお申し付けください。 物件概要
| 物件名 |
| 築年月 |
|
|---|---|---|---|
| 所在地 | |||
| 交通 | |||
| 総戸数 |
| 総階数 |
|
| 構造 |
| ||
地図
物件までの道のりは、「拡大地図を表示」をクリックしてナビ機能をご利用ください。
部屋設備













建物設備

TVモニターホン

エレベーター

オートロック

宅配ボックス

敷地内ゴミ置場
カーササクシード麻布十番の現在募集中のお部屋
- No rooms found for this property.
