
| 賃料 | 予想金額:154,000〜174,000円程度 | 管理費 | 予想金額:14,000〜18,000円程度 |
| 礼金/敷金 | 非公開(アーカイブ) | 平米数 | 44.91㎡ |
| 初期費用概算(参考) | 目安:803,500〜903,500 円 | みなし賃料(月額・参考) | 184,365〜204,365 円 |
| 備考 | 本ページは過去募集のアーカイブです。表示の金額は周辺相場・過去募集を踏まえた参考レンジであり、実際の契約金額・条件ではありません。 | ||
※上記みなし賃料(月額)は仲介手数料割引・無料&キャッシュバックを加味した高級賃貸バイブル限定の金額です。一般的なみなし賃料とは異なります。
【建物ページ】ガーラ・ヒルズ不動前の詳細・最新空室はこちら▶▶選ばれる理由
仲介手数料無料・キャンペーン情報(毎月15名様限定)
〇仲介手数料割引キャンペーン
ガーラ・ヒルズ不動前 5階 44.91㎡の口コミ・レビュー
ガーラ・ヒルズ不動前 5階 44.91㎡。この名を持つ空間は、まるで時が静止したかのように、貴方を優雅な物語の世界へと引き込みます。東京都品川区荏原1-4-1という、歴史を感じる土地に佇むこの物件は、四季折々の美しさに包まれており、北西の風はささやくように心地よい安らぎを運んできます。
家のドアを開けると、まるで美術館の中にいるかのような高級感が漂い、デザイナーズならではの洗練された空間が広がり…ガーラ・ヒルズ不動前 5階 44.91㎡。この名を持つ空間は、まるで時が静止したかのように、貴方を優雅な物語の世界へと引き込みます。東京都品川区荏原1-4-1という、歴史を感じる土地に佇むこの物件は、四季折々の美しさに包まれており、北西の風はささやくように心地よい安らぎを運んできます。
家のドアを開けると、まるで美術館の中にいるかのような高級感が漂い、デザイナーズならではの洗練された空間が広がります。8.1帖のリビングダイニングは、陽光が優雅に舞い込み、キッチンからは素晴らしい料理の香りが漂ってきます。ここでは、お気に入りのレシピを試す歓び、そしてその香ばしい香りが家族や友人との温かなコミュニケーションを引き寄せることでしょう。
このガーラ・ヒルズ不動前の物件は、ただの住まいではなく、生活を楽しむための舞台なのです。ゲストを迎える時、彼らはこの空間の魅力に感動し、色とりどりの会話が耳に響き渡ることでしょう。バルコニーから眺める静かな街並みには、洗練された都市の美が映え、夕暮れ時に赤く染まる空に心が高鳴ります。
この特別な物件の魅力は、その洗練された設備にも表れています。24時間管理され、安心のオートロックシステムによる安全性。TVモニターホンでの確認も簡単で、まさにこの空間の主役である貴方に寄り添うように設計されています。エレベーターでの心地よい移動も、まるで優雅な舞踏のような感覚をもたらし、日常の全てに贅沢を感じさせてくれます。
さらに、ガーラ・ヒルズ不動前は、周辺の文化や歴史とも深く結びついています。近くの公園で耳にする小鳥のさえずりや、静寂の中に感じる風の吹き抜けが、この場所の特別な精神を教えてくれます。芸術に触れ、歴史を感じながら、貴方の毎日がまるで映画の一シーンのように美しく仕立てられていくのです。
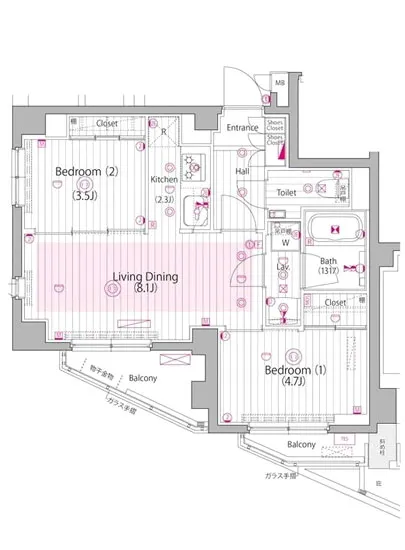
この1LDKの物件は、たった44.91㎡という空間の中に、無限の可能性を秘めています。4.7帖の洋室は、貴方の安らぎの場となり、3.5帖のもう一室は趣味や仕事に没頭するための特別なコーナーとして活躍することでしょう。日々の生活が、心を豊かにし、感性を磨くための特別な舞台であることを、ガーラ・ヒルズ不動前は深く理解しているのです。
さあ、この物件にすれば、あなたの生活はきっと色鮮やかに彩られることでしょう。日々何気なく繰り返される時間が、まるで詩のように美しい瞬間へと変化を遂げる。その幸福を、ガーラ・ヒルズ不動前で実感してみませんか。
家のドアを開けると、まるで美術館の中にいるかのような高級感が漂い、デザイナーズならではの洗練された空間が広がり…ガーラ・ヒルズ不動前 5階 44.91㎡。この名を持つ空間は、まるで時が静止したかのように、貴方を優雅な物語の世界へと引き込みます。東京都品川区荏原1-4-1という、歴史を感じる土地に佇むこの物件は、四季折々の美しさに包まれており、北西の風はささやくように心地よい安らぎを運んできます。
家のドアを開けると、まるで美術館の中にいるかのような高級感が漂い、デザイナーズならではの洗練された空間が広がります。8.1帖のリビングダイニングは、陽光が優雅に舞い込み、キッチンからは素晴らしい料理の香りが漂ってきます。ここでは、お気に入りのレシピを試す歓び、そしてその香ばしい香りが家族や友人との温かなコミュニケーションを引き寄せることでしょう。
このガーラ・ヒルズ不動前の物件は、ただの住まいではなく、生活を楽しむための舞台なのです。ゲストを迎える時、彼らはこの空間の魅力に感動し、色とりどりの会話が耳に響き渡ることでしょう。バルコニーから眺める静かな街並みには、洗練された都市の美が映え、夕暮れ時に赤く染まる空に心が高鳴ります。
この特別な物件の魅力は、その洗練された設備にも表れています。24時間管理され、安心のオートロックシステムによる安全性。TVモニターホンでの確認も簡単で、まさにこの空間の主役である貴方に寄り添うように設計されています。エレベーターでの心地よい移動も、まるで優雅な舞踏のような感覚をもたらし、日常の全てに贅沢を感じさせてくれます。
さらに、ガーラ・ヒルズ不動前は、周辺の文化や歴史とも深く結びついています。近くの公園で耳にする小鳥のさえずりや、静寂の中に感じる風の吹き抜けが、この場所の特別な精神を教えてくれます。芸術に触れ、歴史を感じながら、貴方の毎日がまるで映画の一シーンのように美しく仕立てられていくのです。
この1LDKの物件は、たった44.91㎡という空間の中に、無限の可能性を秘めています。4.7帖の洋室は、貴方の安らぎの場となり、3.5帖のもう一室は趣味や仕事に没頭するための特別なコーナーとして活躍することでしょう。日々の生活が、心を豊かにし、感性を磨くための特別な舞台であることを、ガーラ・ヒルズ不動前は深く理解しているのです。
さあ、この物件にすれば、あなたの生活はきっと色鮮やかに彩られることでしょう。日々何気なく繰り返される時間が、まるで詩のように美しい瞬間へと変化を遂げる。その幸福を、ガーラ・ヒルズ不動前で実感してみませんか。
バイブルスコア
バイブルスコア: 33.2
平均的なスコアです。
※バイブルスコア詳細はこちら
バイブルスコアとは独自のAI機械学習技術を利用した物件評価システムで、物件のおすすめ度を示します。最高得点は100点で、スコアが高いほど、よりおすすめの物件と評価されています。
写真
契約条件
| 賃料 | 予想金額:154,000〜174,000円程度 | 管理費 | 予想金額:14,000〜18,000円程度 |
| 礼金 | 非公開(アーカイブ) | 敷金 | 非公開(アーカイブ) |
| フリーレント | なし | 平米数 | 44.91㎡ |
| 間取り | 1LDK | 大型収納 | |
| 契約期間 |
| 方角 | 北西 |
| 更新料 | 契約形態 | 普通賃貸借契約 | |
| 取引態様 | 媒介 | 内見状況 | 入居中 |
| 入居時期 | 入居中 | SOHO・事務所 | |
| ペット | 間取り内訳 | 洋:4.7 洋:3.5 LD:8.1 K:2.3 | |
| キャンペーン情報・備考 | 本情報は賃料改定交渉の資料作成、収益物件の利回り試算、周辺エリアや最寄り駅の坪単価分析、次回募集開始時期の予測などにご活用いただけます。 | ||
※「どの不動産に頼めばいいのか分からない」「信頼できる営業マンの話を聞きたい」「一番親切な会社と契約したい」とお悩みの方におすすめなのが「高級賃貸バイブル」です。
高級賃貸バイブルは業界10年以上の熟練スタッフ群がお客様ファーストで対応します。
下記ボタンから、まずは無料でご相談下さい。
※内覧をご希望の際には、どうぞ物件のエントランス前にてお待ち合わせくださいませ。ご内覧後は、同じ場所でお別れとさせていただきます。お客様のご都合に合わせたスムーズなご案内を心がけておりますので、ご質問等がございましたら何なりとお申し付けください。 物件概要
| 物件名 |
| 築年月 |
|
|---|---|---|---|
| 所在地 | |||
| 交通 | |||
| 総戸数 |
| 総階数 |
|
| 構造 |
| ||
地図
物件までの道のりは、「拡大地図を表示」をクリックしてナビ機能をご利用ください。
部屋設備














建物設備

24時間管理

TVモニターホン

エレベーター

オートロック

バイク置場

宅配ボックス

敷地内ゴミ置場

管理人

駐車場平置き

駐車場機械式

駐輪場
ガーラ・ヒルズ不動前の現在募集中のお部屋
- No rooms found for this property.






















