
| 賃料 | 予想金額:340,000〜360,000円程度 | 管理費 | 予想金額:0〜2,000円程度 |
| 礼金/敷金 | 非公開(アーカイブ) | 平米数 | 86.19㎡ |
| 初期費用概算(参考) | 目安:1,266,500〜1,366,500 円 | みなし賃料(月額・参考) | 360,135〜380,135 円 |
| 備考 | 本ページは過去募集のアーカイブです。表示の金額は周辺相場・過去募集を踏まえた参考レンジであり、実際の契約金額・条件ではありません。 | ||
※上記みなし賃料(月額)は仲介手数料割引・無料&キャッシュバックを加味した高級賃貸バイブル限定の金額です。一般的なみなし賃料とは異なります。
【建物ページ】ローレルコート新宿夏目坂の詳細・最新空室はこちら▶▶選ばれる理由
仲介手数料無料・キャンペーン情報(毎月15名様限定)
〇仲介手数料割引キャンペーン
ローレルコート新宿夏目坂 105の口コミ・レビュー
ローレルコート新宿夏目坂 105は、あなたの新たな生活の舞台として、まるで夢の中にいるかのような特別な空間を提供します。この物件は、東京都新宿区戸山1-35-10に位置し、南向きの窓からは温かな日の光が差し込み、晴れた日には夕焼けがキャンバスのように広がります。86.19㎡の専有面積は、まるで大きな画布となり、あなたのスタイルと想いを自由に描くことができる場所です。
ローレルコート新宿夏目坂 1…ローレルコート新宿夏目坂 105は、あなたの新たな生活の舞台として、まるで夢の中にいるかのような特別な空間を提供します。この物件は、東京都新宿区戸山1-35-10に位置し、南向きの窓からは温かな日の光が差し込み、晴れた日には夕焼けがキャンバスのように広がります。86.19㎡の専有面積は、まるで大きな画布となり、あなたのスタイルと想いを自由に描くことができる場所です。
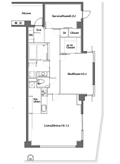
ローレルコート新宿夏目坂 105に足を踏み入れると、16.1帖のリビングダイニングが広がります。その広々とした空間は、心地よい風を感じながら、友人や家族と楽しい時間を共有する場となることでしょう。あなたの料理を待つ声が聞こえてきそうなキッチンでは、香ばしい匂いのする料理が出来上がるたびに、会話が弾むことでしょう。ふんわりとしたパンの香りや、スパイシーなカレーの香りが、居心地の良い空間をさらに彩ります。
洋室は10帖と広さがあり、心ゆくまで自分だけの世界を楽しむことができるスペースをご用意しています。思い描いたデコレーションで彩り、リラックスできる空間が生まれることでしょう。さらに、6.2帖のサービスルームもあり、ここは夢の物語の一幕にぴったりの隠れ家となります。読書に耽ったり、趣味に没頭したり、まるで時間の流れが止まったかのような静寂に包まれる場所です。
ローレルコート新宿夏目坂 105の魅力の一つは、その設備の充実です。オートロックやTVモニターホンが安心感をもたらし、宅配ボックスがあることで、忙しいあなたの生活をサポートします。エレベーターがあるので、心地よい時間を大切にしながら、わずかな手間で自宅へと戻ることができます。バイク置場や駐車場も完備しており、あなたのライフスタイルを存分に楽しむことができる環境が整っています。
この物件は、ただの住まいではありません。ローレルコート新宿夏目坂 105は、歴史ある新宿の街と文化が密接に結びついている場所にあり、街を散策することで、何世代にもわたるアートや文学の息遣いを感じることができるのです。この地に住むことで、あなたはまるで一流の映画の主人公となり、新たな物語を紡いでいくことでしょう。
自宅に帰るたびに、新宿の喧騒から解き放たれて、心が豊かになるこの居住空間。自分の足で歩き、新しい発見をすることで、日々がどれだけ素晴らしいものであるかを実感できるでしょう。ローレルコート新宿夏目坂 105という待望の場所は、あなたを新しい冒険へと誘う場所です。さあ、ぜひこの扉を開けて、未知なる世界へと足を踏み入れてみてください。あなたの新しい物語がここから始まります。
ローレルコート新宿夏目坂 1…ローレルコート新宿夏目坂 105は、あなたの新たな生活の舞台として、まるで夢の中にいるかのような特別な空間を提供します。この物件は、東京都新宿区戸山1-35-10に位置し、南向きの窓からは温かな日の光が差し込み、晴れた日には夕焼けがキャンバスのように広がります。86.19㎡の専有面積は、まるで大きな画布となり、あなたのスタイルと想いを自由に描くことができる場所です。
ローレルコート新宿夏目坂 105に足を踏み入れると、16.1帖のリビングダイニングが広がります。その広々とした空間は、心地よい風を感じながら、友人や家族と楽しい時間を共有する場となることでしょう。あなたの料理を待つ声が聞こえてきそうなキッチンでは、香ばしい匂いのする料理が出来上がるたびに、会話が弾むことでしょう。ふんわりとしたパンの香りや、スパイシーなカレーの香りが、居心地の良い空間をさらに彩ります。
洋室は10帖と広さがあり、心ゆくまで自分だけの世界を楽しむことができるスペースをご用意しています。思い描いたデコレーションで彩り、リラックスできる空間が生まれることでしょう。さらに、6.2帖のサービスルームもあり、ここは夢の物語の一幕にぴったりの隠れ家となります。読書に耽ったり、趣味に没頭したり、まるで時間の流れが止まったかのような静寂に包まれる場所です。
ローレルコート新宿夏目坂 105の魅力の一つは、その設備の充実です。オートロックやTVモニターホンが安心感をもたらし、宅配ボックスがあることで、忙しいあなたの生活をサポートします。エレベーターがあるので、心地よい時間を大切にしながら、わずかな手間で自宅へと戻ることができます。バイク置場や駐車場も完備しており、あなたのライフスタイルを存分に楽しむことができる環境が整っています。
この物件は、ただの住まいではありません。ローレルコート新宿夏目坂 105は、歴史ある新宿の街と文化が密接に結びついている場所にあり、街を散策することで、何世代にもわたるアートや文学の息遣いを感じることができるのです。この地に住むことで、あなたはまるで一流の映画の主人公となり、新たな物語を紡いでいくことでしょう。
自宅に帰るたびに、新宿の喧騒から解き放たれて、心が豊かになるこの居住空間。自分の足で歩き、新しい発見をすることで、日々がどれだけ素晴らしいものであるかを実感できるでしょう。ローレルコート新宿夏目坂 105という待望の場所は、あなたを新しい冒険へと誘う場所です。さあ、ぜひこの扉を開けて、未知なる世界へと足を踏み入れてみてください。あなたの新しい物語がここから始まります。
バイブルスコア
バイブルスコア: 26.1
平均的なスコアです。
※バイブルスコア詳細はこちら
バイブルスコアとは独自のAI機械学習技術を利用した物件評価システムで、物件のおすすめ度を示します。最高得点は100点で、スコアが高いほど、よりおすすめの物件と評価されています。
写真
契約条件
| 賃料 | 予想金額:340,000〜360,000円程度 | 管理費 | 予想金額:0〜2,000円程度 |
| 礼金 | 非公開(アーカイブ) | 敷金 | 非公開(アーカイブ) |
| フリーレント | なし | 平米数 | 86.19㎡ |
| 間取り | 1LDK | 大型収納 | WIC+SIC+S |
| 契約期間 |
| 方角 | 南 |
| 更新料 | 契約形態 | 普通賃貸借契約 | |
| 取引態様 | 媒介 | 内見状況 | 入居中 |
| 入居時期 | 入居中 | SOHO・事務所 | |
| ペット | 間取り内訳 | 洋:10 S:6.2 LD:16.1 | |
| キャンペーン情報・備考 | 本情報は賃料改定交渉の資料作成、収益物件の利回り試算、周辺エリアや最寄り駅の坪単価分析、次回募集開始時期の予測などにご活用いただけます。 | ||
※「どの不動産に頼めばいいのか分からない」「信頼できる営業マンの話を聞きたい」「一番親切な会社と契約したい」とお悩みの方におすすめなのが「高級賃貸バイブル」です。
高級賃貸バイブルは業界10年以上の熟練スタッフ群がお客様ファーストで対応します。
下記ボタンから、まずは無料でご相談下さい。
※内覧をご希望の際には、どうぞ物件のエントランス前にてお待ち合わせくださいませ。ご内覧後は、同じ場所でお別れとさせていただきます。お客様のご都合に合わせたスムーズなご案内を心がけておりますので、ご質問等がございましたら何なりとお申し付けください。 物件概要
| 物件名 |
| 築年月 |
|
|---|---|---|---|
| 所在地 | |||
| 交通 | |||
| 総戸数 |
| 総階数 |
|
| 構造 |
| ||
地図
物件までの道のりは、「拡大地図を表示」をクリックしてナビ機能をご利用ください。
部屋設備














建物設備

TVモニターホン

エレベーター

オートロック

バイク置場

宅配ボックス

敷地内ゴミ置場

管理人

駐車場平置き

駐車場機械式

駐輪場
ローレルコート新宿夏目坂の現在募集中のお部屋
- No rooms found for this property.






