
| 賃料 | 予想金額:190,000〜210,000円程度 | 管理費 | 予想金額:8,000〜12,000円程度 |
| 礼金/敷金 | 非公開(アーカイブ) | 平米数 | 62.43㎡ |
| 初期費用概算(参考) | 目安:756,500〜856,500 円 | みなし賃料(月額・参考) | 212,635〜232,635 円 |
| 備考 | 本ページは過去募集のアーカイブです。表示の金額は周辺相場・過去募集を踏まえた参考レンジであり、実際の契約金額・条件ではありません。 | ||
※上記みなし賃料(月額)は仲介手数料割引・無料&キャッシュバックを加味した高級賃貸バイブル限定の金額です。一般的なみなし賃料とは異なります。
【建物ページ】ウィルローズ月島テラスの詳細・最新空室はこちら▶▶選ばれる理由
仲介手数料無料・キャンペーン情報(毎月15名様限定)
〇仲介手数料割引キャンペーン
ウィルローズ月島テラス 4階 62.43㎡の口コミ・レビュー
ウィルローズ月島テラス 4階 62.43㎡は、まるで一篇の詩が紡がれるかのように、都市の喧騒から逃れ、優雅な日常を約束する住まいです。この洗練された空間は、古き良き日本の伝統と現代のアートが息づく佃の地に位置し、その高い天井と大きな窓から注がれる南西の光は、まるで自然の画布に描かれた光線のように、毎日の暮らしを特別なものへと昇華させます。
この物件は、まるで優雅な舞踏会の主役のように、住む人を迎…ウィルローズ月島テラス 4階 62.43㎡は、まるで一篇の詩が紡がれるかのように、都市の喧騒から逃れ、優雅な日常を約束する住まいです。この洗練された空間は、古き良き日本の伝統と現代のアートが息づく佃の地に位置し、その高い天井と大きな窓から注がれる南西の光は、まるで自然の画布に描かれた光線のように、毎日の暮らしを特別なものへと昇華させます。
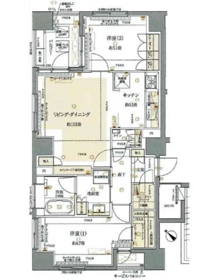
この物件は、まるで優雅な舞踏会の主役のように、住む人を迎え入れます。62.43㎡の広さは、あなたの生活スタイルに応じて自由自在に変化することでしょう。洋室6.7帖と5.1帖、そして広々としたLD10.5帖、さらに香ばしい料理の匂いが漂うキッチン3.5帖は、心を満たす空間を提供し、まるで心地よい音楽が流れるように、あなたの日常を彩ります。日々の生活の中で、友人や家族との幸せな瞬間を刻むための理想的な場所がここにはあります。
ウィルローズ月島テラスは、時の流れに優雅に寄り添う存在です。エレベーター、オートロック、宅配ボックスなどの最新設備が整っていることから感じる安心感は、まるで信頼できる友人に守られているようです。それに加えて、管理人の存在は、あなたの生活をより快適にし、安心感を与えてくれることでしょう。敷地内ゴミ置場や駐輪場も完備されており、利便性も抜群です。
東京メトロ有楽町線の月島駅から徒歩3分という絶好の立地は、まるで都会の喧騒の中に隠れた静寂のオアシスのよう。周囲には古き良き文化と新しいアートが共存し、佃の町はその醸し出す温かみで訪れる人々を魅了しています。地元の食材を生かした居酒屋や、洗練されたカフェで、心温まるひとときを楽しむことができることでしょう。
ここでの日常は、まるで映画のワンシーンのように色彩豊かです。朝には陽ざしが差し込み、温かいコーヒーの香りが漂う中で、ベランダから見える美しい景色を眺める。その瞬間、あなたは自分が主人公であることを確信するでしょう。夜には、都会の夜景を一望しながら、大切な人とともに星空を見上げる時間が待っています。その煌めきは、心に焼き付き、一生忘れられない思い出となることでしょう。
このウィルローズ月島テラスは、ただの住まいではなく、あなたの生活に物語を紡ぎ出す舞台です。五感を刺激し、心を躍らせる景色、人々、文化との出会いが、ここでの生活を特別なものにしてくれるに違いありません。さあ、この美しい空間で、新たな生活の扉を開き、日々の幸福を感じる毎日を始めてみませんか。
この物件は、まるで優雅な舞踏会の主役のように、住む人を迎…ウィルローズ月島テラス 4階 62.43㎡は、まるで一篇の詩が紡がれるかのように、都市の喧騒から逃れ、優雅な日常を約束する住まいです。この洗練された空間は、古き良き日本の伝統と現代のアートが息づく佃の地に位置し、その高い天井と大きな窓から注がれる南西の光は、まるで自然の画布に描かれた光線のように、毎日の暮らしを特別なものへと昇華させます。
この物件は、まるで優雅な舞踏会の主役のように、住む人を迎え入れます。62.43㎡の広さは、あなたの生活スタイルに応じて自由自在に変化することでしょう。洋室6.7帖と5.1帖、そして広々としたLD10.5帖、さらに香ばしい料理の匂いが漂うキッチン3.5帖は、心を満たす空間を提供し、まるで心地よい音楽が流れるように、あなたの日常を彩ります。日々の生活の中で、友人や家族との幸せな瞬間を刻むための理想的な場所がここにはあります。
ウィルローズ月島テラスは、時の流れに優雅に寄り添う存在です。エレベーター、オートロック、宅配ボックスなどの最新設備が整っていることから感じる安心感は、まるで信頼できる友人に守られているようです。それに加えて、管理人の存在は、あなたの生活をより快適にし、安心感を与えてくれることでしょう。敷地内ゴミ置場や駐輪場も完備されており、利便性も抜群です。
東京メトロ有楽町線の月島駅から徒歩3分という絶好の立地は、まるで都会の喧騒の中に隠れた静寂のオアシスのよう。周囲には古き良き文化と新しいアートが共存し、佃の町はその醸し出す温かみで訪れる人々を魅了しています。地元の食材を生かした居酒屋や、洗練されたカフェで、心温まるひとときを楽しむことができることでしょう。
ここでの日常は、まるで映画のワンシーンのように色彩豊かです。朝には陽ざしが差し込み、温かいコーヒーの香りが漂う中で、ベランダから見える美しい景色を眺める。その瞬間、あなたは自分が主人公であることを確信するでしょう。夜には、都会の夜景を一望しながら、大切な人とともに星空を見上げる時間が待っています。その煌めきは、心に焼き付き、一生忘れられない思い出となることでしょう。
このウィルローズ月島テラスは、ただの住まいではなく、あなたの生活に物語を紡ぎ出す舞台です。五感を刺激し、心を躍らせる景色、人々、文化との出会いが、ここでの生活を特別なものにしてくれるに違いありません。さあ、この美しい空間で、新たな生活の扉を開き、日々の幸福を感じる毎日を始めてみませんか。
バイブルスコア
バイブルスコア: 27.7
平均的なスコアです。
※バイブルスコア詳細はこちら
バイブルスコアとは独自のAI機械学習技術を利用した物件評価システムで、物件のおすすめ度を示します。最高得点は100点で、スコアが高いほど、よりおすすめの物件と評価されています。
写真
契約条件
| 賃料 | 予想金額:190,000〜210,000円程度 | 管理費 | 予想金額:8,000〜12,000円程度 |
| 礼金 | 非公開(アーカイブ) | 敷金 | 非公開(アーカイブ) |
| フリーレント | なし | 平米数 | 62.43㎡ |
| 間取り | 2LDK | 大型収納 | WIC+SIC |
| 契約期間 |
| 方角 | 南西 |
| 更新料 | 契約形態 | 普通賃貸借契約 | |
| 取引態様 | 媒介 | 内見状況 | 入居中 |
| 入居時期 | 入居中 | SOHO・事務所 | |
| ペット | 間取り内訳 | 洋:6.7 洋:5.1 LD:10.5 K:3.5 | |
| キャンペーン情報・備考 | 本情報は賃料改定交渉の資料作成、収益物件の利回り試算、周辺エリアや最寄り駅の坪単価分析、次回募集開始時期の予測などにご活用いただけます。 | ||
※「どの不動産に頼めばいいのか分からない」「信頼できる営業マンの話を聞きたい」「一番親切な会社と契約したい」とお悩みの方におすすめなのが「高級賃貸バイブル」です。
高級賃貸バイブルは業界10年以上の熟練スタッフ群がお客様ファーストで対応します。
下記ボタンから、まずは無料でご相談下さい。
※内覧をご希望の際には、どうぞ物件のエントランス前にてお待ち合わせくださいませ。ご内覧後は、同じ場所でお別れとさせていただきます。お客様のご都合に合わせたスムーズなご案内を心がけておりますので、ご質問等がございましたら何なりとお申し付けください。 物件概要
| 物件名 |
| 築年月 |
|
|---|---|---|---|
| 所在地 | |||
| 交通 | |||
| 総戸数 |
| 総階数 |
|
| 構造 |
| ||
地図
物件までの道のりは、「拡大地図を表示」をクリックしてナビ機能をご利用ください。
部屋設備



















建物設備

TVモニターホン

エレベーター

オートロック

宅配ボックス

敷地内ゴミ置場

管理人

駐輪場
ウィルローズ月島テラスの現在募集中のお部屋
- ウィルローズ月島テラス 3階 75.22㎡ - 間取り: 1SLDK+WIC - 賃料: 36万円









