
| 賃料 | 予想金額:255,000〜275,000円程度 | 管理費 | 予想金額:13,000〜17,000円程度 |
| 礼金/敷金 | 非公開(アーカイブ) | 平米数 | 59.86㎡ |
| 初期費用概算(参考) | 目安:1,008,000〜1,108,000 円 | みなし賃料(月額・参考) | 286,521〜306,521 円 |
| 備考 | 本ページは過去募集のアーカイブです。表示の金額は周辺相場・過去募集を踏まえた参考レンジであり、実際の契約金額・条件ではありません。 | ||
※上記みなし賃料(月額)は仲介手数料割引・無料&キャッシュバックを加味した高級賃貸バイブル限定の金額です。一般的なみなし賃料とは異なります。
【建物ページ】プレシス八丁堀リバーフロントの詳細・最新空室はこちら▶▶選ばれる理由
仲介手数料無料・キャンペーン情報(毎月15名様限定)
〇仲介手数料割引キャンペーン
プレシス八丁堀リバーフロント 1304の口コミ・レビュー
プレシス八丁堀リバーフロント 1304。あなたがこの高雅な空間に足を踏み入れると、まるで心の奥から音楽が流れ出すかのようです。北東に広がる景色は、朝日が優しく差し込み、都会の喧騒を忘れさせてくれる素晴らしい眺望を提供します。「ここに住むことは、まるでジャズのメロディが奏でられるかのようです。」とこの物件が語りかけてきます。
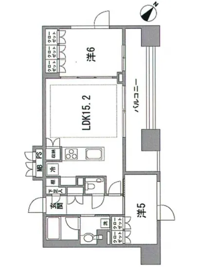
59.86㎡の広さに広がる2LDKの間取りは、まるで優雅な舞踏会のために…プレシス八丁堀リバーフロント 1304。あなたがこの高雅な空間に足を踏み入れると、まるで心の奥から音楽が流れ出すかのようです。北東に広がる景色は、朝日が優しく差し込み、都会の喧騒を忘れさせてくれる素晴らしい眺望を提供します。「ここに住むことは、まるでジャズのメロディが奏でられるかのようです。」とこの物件が語りかけてきます。
59.86㎡の広さに広がる2LDKの間取りは、まるで優雅な舞踏会のために設計されたフロアのように、無駄のない動線と洗練された空間を演出します。LDK15.2帖の広々としたリビングで、友人とワインを手に語り合うひとときを思い描いてください。心地よい光が反射し、木の温もりがほのかに香る空間で、幸せな時間が流れることでしょう。洋室6帖と5帖は、それぞれが静寂のオアシスとなり、疲れた日常を癒してくれる隠れ家のようです。
プレシス八丁堀リバーフロント 1304は、24時間管理されている安心感があり、あなたの生活を守りつつ、洗練されたライフスタイルを実現します。オートロックやTVモニターホン、エレベーターは、現代の贅沢さを象徴し、プライベートな空間を大切にしてくれます。それぞれの設備は、まるで親友のように、あなたの暮らしをサポートしてくれる存在です。
周辺には歴史ある街並みが残り、文化と芸術の薫りが漂っています。八丁堀駅から徒歩6分の立地は、都会生活の利便性と、古き良き日本の面影を両立しています。週末には地域のアートギャラリーを訪れ、心を豊かにする時間を持つことができるでしょう。また、周囲には様々な飲食店が立ち並び、食の探求も楽しめます。四季折々の美味しい料理が、あなたの味覚を刺激し、素晴らしい体験を提供してくれます。
物件のラウンジは、友人との集まりや、静かな読書のひとときを過ごすための最適な場所です。そこに漂うコーヒーの香りは、心を落ち着け、贅沢なひとときを演出します。住まう人々の交流が生まれるこの空間は、まるで舞台のセットのようで、日常に小さなドラマを与えてくれるのです。
プレシス八丁堀リバーフロント 1304は、単なる住まいではなく、あなたの人生の新たな章の始まりでもあります。ここでの生活は、まるで美しい映画のワンシーンのように、情熱と感動に満ちた日々を約束してくれます。新しい生活が、あなたを待っています。さあ、この魅力的な空間に身を委ね、心弾む未来へと一歩踏み出してください。あなたの物語を、ここから始めましょう。
59.86㎡の広さに広がる2LDKの間取りは、まるで優雅な舞踏会のために…プレシス八丁堀リバーフロント 1304。あなたがこの高雅な空間に足を踏み入れると、まるで心の奥から音楽が流れ出すかのようです。北東に広がる景色は、朝日が優しく差し込み、都会の喧騒を忘れさせてくれる素晴らしい眺望を提供します。「ここに住むことは、まるでジャズのメロディが奏でられるかのようです。」とこの物件が語りかけてきます。
59.86㎡の広さに広がる2LDKの間取りは、まるで優雅な舞踏会のために設計されたフロアのように、無駄のない動線と洗練された空間を演出します。LDK15.2帖の広々としたリビングで、友人とワインを手に語り合うひとときを思い描いてください。心地よい光が反射し、木の温もりがほのかに香る空間で、幸せな時間が流れることでしょう。洋室6帖と5帖は、それぞれが静寂のオアシスとなり、疲れた日常を癒してくれる隠れ家のようです。
プレシス八丁堀リバーフロント 1304は、24時間管理されている安心感があり、あなたの生活を守りつつ、洗練されたライフスタイルを実現します。オートロックやTVモニターホン、エレベーターは、現代の贅沢さを象徴し、プライベートな空間を大切にしてくれます。それぞれの設備は、まるで親友のように、あなたの暮らしをサポートしてくれる存在です。
周辺には歴史ある街並みが残り、文化と芸術の薫りが漂っています。八丁堀駅から徒歩6分の立地は、都会生活の利便性と、古き良き日本の面影を両立しています。週末には地域のアートギャラリーを訪れ、心を豊かにする時間を持つことができるでしょう。また、周囲には様々な飲食店が立ち並び、食の探求も楽しめます。四季折々の美味しい料理が、あなたの味覚を刺激し、素晴らしい体験を提供してくれます。
物件のラウンジは、友人との集まりや、静かな読書のひとときを過ごすための最適な場所です。そこに漂うコーヒーの香りは、心を落ち着け、贅沢なひとときを演出します。住まう人々の交流が生まれるこの空間は、まるで舞台のセットのようで、日常に小さなドラマを与えてくれるのです。
プレシス八丁堀リバーフロント 1304は、単なる住まいではなく、あなたの人生の新たな章の始まりでもあります。ここでの生活は、まるで美しい映画のワンシーンのように、情熱と感動に満ちた日々を約束してくれます。新しい生活が、あなたを待っています。さあ、この魅力的な空間に身を委ね、心弾む未来へと一歩踏み出してください。あなたの物語を、ここから始めましょう。
バイブルスコア
バイブルスコア: 52.6
条件のいい物件です、引っ越しが2か月以内の場合は仮申し込みを検討すべき物件です。
このお部屋は、現在ご入居中のため空室情報はございません。ただし、将来的に募集が開始される際、バイブルスコアにおいて非常に高い評価が期待されます。特にご興味をお持ちの方は、今のうちにブックマークやお気に入りに登録していただくと、募集開始のお知らせをすぐに受け取ることができます。是非ともご検討くださいませ。
※バイブルスコア詳細はこちら
バイブルスコアとは独自のAI機械学習技術を利用した物件評価システムで、物件のおすすめ度を示します。最高得点は100点で、スコアが高いほど、よりおすすめの物件と評価されています。
写真
契約条件
| 賃料 | 予想金額:255,000〜275,000円程度 | 管理費 | 予想金額:13,000〜17,000円程度 |
| 礼金 | 非公開(アーカイブ) | 敷金 | 非公開(アーカイブ) |
| フリーレント | なし | 平米数 | 59.86㎡ |
| 間取り | 2LDK | 大型収納 | |
| 契約期間 | 備考を参照 | 方角 | 北東 |
| 更新料 | 備考を参照 | 契約形態 | 定期借家契約 |
| 取引態様 | 媒介 | 内見状況 | 入居中 |
| 入居時期 | 入居中 | SOHO・事務所 | |
| ペット | 間取り内訳 | 洋:6 洋:5 LDK:15.2 | |
| キャンペーン情報・備考 | 本情報は賃料改定交渉の資料作成、収益物件の利回り試算、周辺エリアや最寄り駅の坪単価分析、次回募集開始時期の予測などにご活用いただけます。 | ||
※「どの不動産に頼めばいいのか分からない」「信頼できる営業マンの話を聞きたい」「一番親切な会社と契約したい」とお悩みの方におすすめなのが「高級賃貸バイブル」です。
高級賃貸バイブルは業界10年以上の熟練スタッフ群がお客様ファーストで対応します。
下記ボタンから、まずは無料でご相談下さい。
※内覧をご希望の際には、どうぞ物件のエントランス前にてお待ち合わせくださいませ。ご内覧後は、同じ場所でお別れとさせていただきます。お客様のご都合に合わせたスムーズなご案内を心がけておりますので、ご質問等がございましたら何なりとお申し付けください。 物件概要
| 物件名 |
| 築年月 |
|
|---|---|---|---|
| 所在地 | |||
| 交通 | |||
| 総戸数 |
| 総階数 |
|
| 構造 |
| ||
地図
物件までの道のりは、「拡大地図を表示」をクリックしてナビ機能をご利用ください。
部屋設備













建物設備

24時間管理

TVモニターホン

エレベーター

オートロック

バイク置場

ラウンジ

宅配ボックス

敷地内ゴミ置場

管理人

駐車場平置き

駐車場機械式

駐輪場
プレシス八丁堀リバーフロントの現在募集中のお部屋
- プレシス八丁堀リバーフロント 3階 57.05㎡ - 間取り: 2LDK+WIC+SIC - 賃料: 28.5万円
- プレシス八丁堀リバーフロント 2階 59.86㎡ - 間取り: 2LDK+SIC - 賃料: 29.5万円





























