
| 賃料 | 予想金額:350,000〜370,000円程度 | 管理費 | 予想金額:8,000〜12,000円程度 |
| 礼金/敷金 | 非公開(アーカイブ) | 平米数 | 86.38㎡ |
| 初期費用概算(参考) | 目安:1,676,500〜1,776,500 円 | みなし賃料(月額・参考) | 388,469〜408,469 円 |
| 備考 | 本ページは過去募集のアーカイブです。表示の金額は周辺相場・過去募集を踏まえた参考レンジであり、実際の契約金額・条件ではありません。 | ||
※上記みなし賃料(月額)は仲介手数料割引・無料&キャッシュバックを加味した高級賃貸バイブル限定の金額です。一般的なみなし賃料とは異なります。
【建物ページ】ライオンズタワー月島の詳細・最新空室はこちら▶▶選ばれる理由
仲介手数料無料・キャンペーン情報(毎月15名様限定)
〇仲介手数料割引キャンペーン
ライオンズタワー月島 2406の口コミ・レビュー
ライオンズタワー月島 2406。まるで都会のオアシスのように、あなたを迎え入れるこの美しいタワーマンションは、東京都中央区佃2-10-9という魅惑的な地にそびえ立っています。緑あふれる佃の街並みに包まれたその姿は、まるで高潔な王女が優雅に立ち振る舞うかのようです。この地で新たな生活が始まることに、心が躍っていることでしょう。
階数2406という高層の恵みを享受しながら、86.38㎡という贅沢な広…ライオンズタワー月島 2406。まるで都会のオアシスのように、あなたを迎え入れるこの美しいタワーマンションは、東京都中央区佃2-10-9という魅惑的な地にそびえ立っています。緑あふれる佃の街並みに包まれたその姿は、まるで高潔な王女が優雅に立ち振る舞うかのようです。この地で新たな生活が始まることに、心が躍っていることでしょう。
階数2406という高層の恵みを享受しながら、86.38㎡という贅沢な広さに包まれる瞬間を想像してみてください。心地よい風を感じる大きな窓からは、四季折々の美しい景色が流れ込みます。北東や北西から差し込む柔らかな光が、家の中を優しく照らし、まるで光のシャワーを浴びているかのようです。
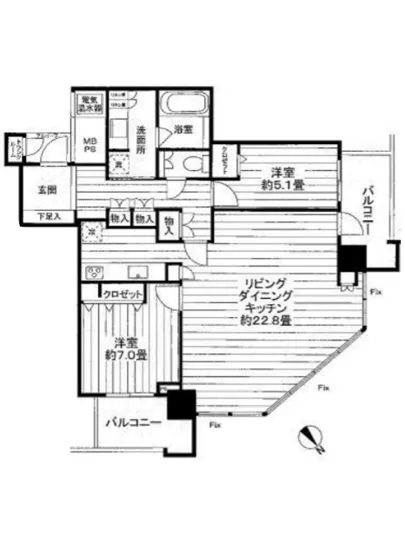
この2LDKの間取りは、洗練されたデザインと機能性を兼ね備えた空間で、LDKは22.8帖の開放感あふれる広さ。ここでは、美味しい料理をじっくりと作り、愛する人たちと共に素晴らしい時間を過ごすことができることでしょう。優雅な洋室は、7帖と5.1帖、どちらも心地よい安らぎを提供し、まるで夢の中の隠れ家のような存在感を放っています。一日の疲れを忘れ、心身ともにリフレッシュできる空間がここにあります。
ライオンズタワー月島 2406は、ただの場所ではなく、あなたの新たな物語の舞台となるのです。24時間管理された安心のセキュリティ、オートロックの厳重な守り、そしてフロントサービスによって、まるで自分が特別な存在であるかのように感じさせてくれます。心地よいラウンジで友人たちと語らい、フィットネスルームで自分磨きをし、ゲストルームで訪れた人々をもてなす。ここでは、全てが素敵な映画の一幕のように展開されていくでしょう。
周囲には歴史ある文化が息づく佃の街。街を散策すれば、懐かしい風情と新しい発見が融合し、まるで時を超えた旅をしているかのような感覚が味わえます。東京メトロ有楽町線の月島駅から徒歩1分という絶好の立地は、都心へのアクセスの良さを誇り、日常生活の便利さを高めてくれます。
さぁ、ライオンズタワー月島 2406で始まる新しい生活。ここで、あなたの心が躍る瞬間を紡いでいきましょう。視覚、聴覚、嗅覚、触覚、味覚すべてが刺激されるこの空間で、あなた自身の物語を創り上げてください。ここに住むことができる特権を、心ゆくまで楽しんでいただけることでしょう。新しい日々が、映画のワンシーンのように響き渡ることを、心から願っております。
階数2406という高層の恵みを享受しながら、86.38㎡という贅沢な広…ライオンズタワー月島 2406。まるで都会のオアシスのように、あなたを迎え入れるこの美しいタワーマンションは、東京都中央区佃2-10-9という魅惑的な地にそびえ立っています。緑あふれる佃の街並みに包まれたその姿は、まるで高潔な王女が優雅に立ち振る舞うかのようです。この地で新たな生活が始まることに、心が躍っていることでしょう。
階数2406という高層の恵みを享受しながら、86.38㎡という贅沢な広さに包まれる瞬間を想像してみてください。心地よい風を感じる大きな窓からは、四季折々の美しい景色が流れ込みます。北東や北西から差し込む柔らかな光が、家の中を優しく照らし、まるで光のシャワーを浴びているかのようです。
この2LDKの間取りは、洗練されたデザインと機能性を兼ね備えた空間で、LDKは22.8帖の開放感あふれる広さ。ここでは、美味しい料理をじっくりと作り、愛する人たちと共に素晴らしい時間を過ごすことができることでしょう。優雅な洋室は、7帖と5.1帖、どちらも心地よい安らぎを提供し、まるで夢の中の隠れ家のような存在感を放っています。一日の疲れを忘れ、心身ともにリフレッシュできる空間がここにあります。
ライオンズタワー月島 2406は、ただの場所ではなく、あなたの新たな物語の舞台となるのです。24時間管理された安心のセキュリティ、オートロックの厳重な守り、そしてフロントサービスによって、まるで自分が特別な存在であるかのように感じさせてくれます。心地よいラウンジで友人たちと語らい、フィットネスルームで自分磨きをし、ゲストルームで訪れた人々をもてなす。ここでは、全てが素敵な映画の一幕のように展開されていくでしょう。
周囲には歴史ある文化が息づく佃の街。街を散策すれば、懐かしい風情と新しい発見が融合し、まるで時を超えた旅をしているかのような感覚が味わえます。東京メトロ有楽町線の月島駅から徒歩1分という絶好の立地は、都心へのアクセスの良さを誇り、日常生活の便利さを高めてくれます。
さぁ、ライオンズタワー月島 2406で始まる新しい生活。ここで、あなたの心が躍る瞬間を紡いでいきましょう。視覚、聴覚、嗅覚、触覚、味覚すべてが刺激されるこの空間で、あなた自身の物語を創り上げてください。ここに住むことができる特権を、心ゆくまで楽しんでいただけることでしょう。新しい日々が、映画のワンシーンのように響き渡ることを、心から願っております。
バイブルスコア
バイブルスコア: 13.9
高級な物件でない場合は割高な物件です。。
※バイブルスコア詳細はこちら
バイブルスコアとは独自のAI機械学習技術を利用した物件評価システムで、物件のおすすめ度を示します。最高得点は100点で、スコアが高いほど、よりおすすめの物件と評価されています。
写真
契約条件
| 賃料 | 予想金額:350,000〜370,000円程度 | 管理費 | 予想金額:8,000〜12,000円程度 |
| 礼金 | 非公開(アーカイブ) | 敷金 | 非公開(アーカイブ) |
| フリーレント | なし | 平米数 | 86.38㎡ |
| 間取り | 2LDK | 大型収納 | |
| 契約期間 |
| 方角 | 北東 / 北西 |
| 更新料 | 契約形態 | 普通賃貸借契約 | |
| 取引態様 | 媒介 | 内見状況 | 入居中 |
| 入居時期 | 入居中 | SOHO・事務所 | |
| ペット | 間取り内訳 | 洋:7 洋:5.1 LDK:22.8 | |
| キャンペーン情報・備考 | 本情報は賃料改定交渉の資料作成、収益物件の利回り試算、周辺エリアや最寄り駅の坪単価分析、次回募集開始時期の予測などにご活用いただけます。 | ||
※「どの不動産に頼めばいいのか分からない」「信頼できる営業マンの話を聞きたい」「一番親切な会社と契約したい」とお悩みの方におすすめなのが「高級賃貸バイブル」です。
高級賃貸バイブルは業界10年以上の熟練スタッフ群がお客様ファーストで対応します。
下記ボタンから、まずは無料でご相談下さい。
※内覧をご希望の際には、どうぞ物件のエントランス前にてお待ち合わせくださいませ。ご内覧後は、同じ場所でお別れとさせていただきます。お客様のご都合に合わせたスムーズなご案内を心がけておりますので、ご質問等がございましたら何なりとお申し付けください。 物件概要
| 物件名 |
| 築年月 |
|
|---|---|---|---|
| 所在地 | |||
| 交通 | |||
| 総戸数 |
| 総階数 |
|
| 構造 |
| ||
地図
物件までの道のりは、「拡大地図を表示」をクリックしてナビ機能をご利用ください。
部屋設備

















建物設備

24時間管理

TVモニターホン

エレベーター

オートロック

ゲストルーム

バイク置場

フィットネス

フロントサービス

ラウンジ

宅配ボックス

敷地内ゴミ置場

管理人

駐車場平置き

駐車場機械式

駐輪場
ライオンズタワー月島の現在募集中のお部屋
- No rooms found for this property.











