
| 賃料 | 予想金額:72,000〜92,000円程度 | 管理費 | 予想金額:6,000〜10,000円程度 |
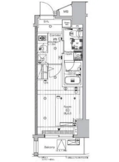
| 礼金/敷金 | 非公開(アーカイブ) | 平米数 | 21.49㎡ |
| 初期費用概算(参考) | 目安:342,250〜442,250 円 | みなし賃料(月額・参考) | 86,953〜106,953 円 |
| 備考 | 本ページは過去募集のアーカイブです。表示の金額は周辺相場・過去募集を踏まえた参考レンジであり、実際の契約金額・条件ではありません。 | ||
※上記みなし賃料(月額)は仲介手数料割引・無料&キャッシュバックを加味した高級賃貸バイブル限定の金額です。一般的なみなし賃料とは異なります。
【建物ページ】シーフォルム学習院下の詳細・最新空室はこちら▶▶選ばれる理由
仲介手数料無料・キャンペーン情報(毎月15名様限定)
〇仲介手数料割引キャンペーン
シーフォルム学習院下 802の口コミ・レビュー
シーフォルム学習院下 802。この名前を耳にするたび、心の奥にある特別な空間への扉が開かれるように感じます。802号室は、まるで貴族の秘密の書斎のように、あなたを迎えてくれるでしょう。21.49㎡の広さは、コンパクトでありながら、想像を超えた無限の可能性を秘めています。ここでは、生活そのものが芸術となり、毎日が映画のワンシーンのように流れゆくのです。
扉を開けると、静寂な空気が香り立ち、まるで時…シーフォルム学習院下 802。この名前を耳にするたび、心の奥にある特別な空間への扉が開かれるように感じます。802号室は、まるで貴族の秘密の書斎のように、あなたを迎えてくれるでしょう。21.49㎡の広さは、コンパクトでありながら、想像を超えた無限の可能性を秘めています。ここでは、生活そのものが芸術となり、毎日が映画のワンシーンのように流れゆくのです。
扉を開けると、静寂な空気が香り立ち、まるで時が止まったかのような心地良さを与えてくれます。洋室6.4帖の大空間が、貴女の自由な発想を存分に受け入れ、あなた自身を豊かに彩ってくれるでしょう。窓から差し込む優しい日差しは、まるで自然のスポットライトのように、あなたの心を明るく照らします。四季折々の風景は、まるで画家が描いた絵画のように変わり、日々の生活に新しい息吹を与えてくれることでしょう。
シーフォルム学習院下 802には、時の流れを感じながらも、現代的な快適さが宿っています。TVモニターホンやオートロックなどの先進的な設備が、あなたの生活を支え、安心・安全な暮らしをお約束します。エレベーターでの上昇は、日常という名の冒険の一部。宅配ボックスの存在は、あなたのライフスタイルを豊かにし、素敵なサプライズをもたらす隠れた友のようです。
周辺には、東京メトロ副都心線の雑司が谷駅が徒歩6分の距離にあり、都市の喧騒からほんの少し離れたところで、静寂と活気の両方を享受できます。豊島区高田は、歴史と文化の交差点。ここには、古き良きものと新しい息吹が共存しており、まるで時空を超えた旅へと誘われるかのようです。
入居すれば、日々の生活が美しいメロディとなり、心の中に深い感動を生み出してくれるでしょう。朝、目覚めるとコーヒーの香りが漂い、バルコニーからの眺めに心を奪われる。窓を開ければ、穏やかな風が頬を撫で、生活の一瞬一瞬を特別なものに変えてくれます。
夜になると、シーフォルム学習院下 802の中は、キャンドルの光に包まれ、柔らかな雰囲気が現れます。ここで過ごす時間は、ただの一人の生活ではなく、心豊かな物語の一部。愛する人と過ごすも良し、心のままに一人の時間を楽しむも良し、あなたのライフスタイルに寄り添う最高の舞台が用意されています。
シーフォルム学習院下 802は、ただの住まいではなく、あなたの人生の舞台であり、これからの新しい章を紡ぐ場所です。心の底から幸福を感じられること間違いなし。さあ、あなたもこの空間で特別な物語を始めてみませんか。
扉を開けると、静寂な空気が香り立ち、まるで時…シーフォルム学習院下 802。この名前を耳にするたび、心の奥にある特別な空間への扉が開かれるように感じます。802号室は、まるで貴族の秘密の書斎のように、あなたを迎えてくれるでしょう。21.49㎡の広さは、コンパクトでありながら、想像を超えた無限の可能性を秘めています。ここでは、生活そのものが芸術となり、毎日が映画のワンシーンのように流れゆくのです。
扉を開けると、静寂な空気が香り立ち、まるで時が止まったかのような心地良さを与えてくれます。洋室6.4帖の大空間が、貴女の自由な発想を存分に受け入れ、あなた自身を豊かに彩ってくれるでしょう。窓から差し込む優しい日差しは、まるで自然のスポットライトのように、あなたの心を明るく照らします。四季折々の風景は、まるで画家が描いた絵画のように変わり、日々の生活に新しい息吹を与えてくれることでしょう。
シーフォルム学習院下 802には、時の流れを感じながらも、現代的な快適さが宿っています。TVモニターホンやオートロックなどの先進的な設備が、あなたの生活を支え、安心・安全な暮らしをお約束します。エレベーターでの上昇は、日常という名の冒険の一部。宅配ボックスの存在は、あなたのライフスタイルを豊かにし、素敵なサプライズをもたらす隠れた友のようです。
周辺には、東京メトロ副都心線の雑司が谷駅が徒歩6分の距離にあり、都市の喧騒からほんの少し離れたところで、静寂と活気の両方を享受できます。豊島区高田は、歴史と文化の交差点。ここには、古き良きものと新しい息吹が共存しており、まるで時空を超えた旅へと誘われるかのようです。
入居すれば、日々の生活が美しいメロディとなり、心の中に深い感動を生み出してくれるでしょう。朝、目覚めるとコーヒーの香りが漂い、バルコニーからの眺めに心を奪われる。窓を開ければ、穏やかな風が頬を撫で、生活の一瞬一瞬を特別なものに変えてくれます。
夜になると、シーフォルム学習院下 802の中は、キャンドルの光に包まれ、柔らかな雰囲気が現れます。ここで過ごす時間は、ただの一人の生活ではなく、心豊かな物語の一部。愛する人と過ごすも良し、心のままに一人の時間を楽しむも良し、あなたのライフスタイルに寄り添う最高の舞台が用意されています。
シーフォルム学習院下 802は、ただの住まいではなく、あなたの人生の舞台であり、これからの新しい章を紡ぐ場所です。心の底から幸福を感じられること間違いなし。さあ、あなたもこの空間で特別な物語を始めてみませんか。
バイブルスコア
バイブルスコア: 36.8
平均的なスコアです。
※バイブルスコア詳細はこちら
バイブルスコアとは独自のAI機械学習技術を利用した物件評価システムで、物件のおすすめ度を示します。最高得点は100点で、スコアが高いほど、よりおすすめの物件と評価されています。
写真
現在写真が登録されていません契約条件
| 賃料 | 予想金額:72,000〜92,000円程度 | 管理費 | 予想金額:6,000〜10,000円程度 |
| 礼金 | 非公開(アーカイブ) | 敷金 | 非公開(アーカイブ) |
| フリーレント | なし | 平米数 | 21.49㎡ |
| 間取り | 1K | 大型収納 | |
| 契約期間 |
| 方角 | |
| 更新料 | 契約形態 | 普通賃貸借契約 | |
| 取引態様 | 媒介 | 内見状況 | 入居中 |
| 入居時期 | 入居中 | SOHO・事務所 | |
| ペット | 間取り内訳 | 洋:6.4 | |
| キャンペーン情報・備考 | 本情報は賃料改定交渉の資料作成、収益物件の利回り試算、周辺エリアや最寄り駅の坪単価分析、次回募集開始時期の予測などにご活用いただけます。 | ||
※「どの不動産に頼めばいいのか分からない」「信頼できる営業マンの話を聞きたい」「一番親切な会社と契約したい」とお悩みの方におすすめなのが「高級賃貸バイブル」です。
高級賃貸バイブルは業界10年以上の熟練スタッフ群がお客様ファーストで対応します。
下記ボタンから、まずは無料でご相談下さい。
※内覧をご希望の際には、どうぞ物件のエントランス前にてお待ち合わせくださいませ。ご内覧後は、同じ場所でお別れとさせていただきます。お客様のご都合に合わせたスムーズなご案内を心がけておりますので、ご質問等がございましたら何なりとお申し付けください。 物件概要
| 物件名 |
| 築年月 |
|
|---|---|---|---|
| 所在地 | |||
| 交通 | |||
| 総戸数 | 総階数 |
| |
| 構造 |
| ||
地図
物件までの道のりは、「拡大地図を表示」をクリックしてナビ機能をご利用ください。
部屋設備










建物設備

TVモニターホン

エレベーター

オートロック

宅配ボックス

敷地内ゴミ置場

管理人

駐輪場
シーフォルム学習院下の現在募集中のお部屋
- No rooms found for this property.
