
| 賃料 | 予想金額:110,000〜130,000円程度 | 管理費 | 予想金額:8,000〜12,000円程度 |
| 礼金/敷金 | 非公開(アーカイブ) | 平米数 | 38.96㎡ |
| 初期費用概算(参考) | 目安:236,500〜336,500 円 | みなし賃料(月額・参考) | 123,469〜143,469 円 |
| 備考 | 本ページは過去募集のアーカイブです。表示の金額は周辺相場・過去募集を踏まえた参考レンジであり、実際の契約金額・条件ではありません。 | ||
※上記みなし賃料(月額)は仲介手数料割引・無料&キャッシュバックを加味した高級賃貸バイブル限定の金額です。一般的なみなし賃料とは異なります。
【建物ページ】アクサス白山の詳細・最新空室はこちら▶▶選ばれる理由
仲介手数料無料・キャンペーン情報(毎月15名様限定)
〇仲介手数料割引キャンペーン
アクサス白山 101の口コミ・レビュー
アクサス白山 101、ここはまるであなたの夢を現実に変えるための舞台です。この特別な住まいは、東京都文京区白山2-20-5という歴史と文化が息づく地に位置し、周囲には都心の喧騒から解き放たれた静けさが広がっています。南向きのお部屋は、温かい日差しが優しくあなたを包み込み、毎朝の目覚めがまるで新たな息吹を感じさせてくれることでしょう。
アクサス白山 101の内部に足を踏み入れると、そこは別世界。3…アクサス白山 101、ここはまるであなたの夢を現実に変えるための舞台です。この特別な住まいは、東京都文京区白山2-20-5という歴史と文化が息づく地に位置し、周囲には都心の喧騒から解き放たれた静けさが広がっています。南向きのお部屋は、温かい日差しが優しくあなたを包み込み、毎朝の目覚めがまるで新たな息吹を感じさせてくれることでしょう。
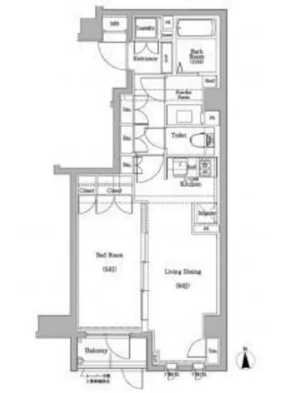
アクサス白山 101の内部に足を踏み入れると、そこは別世界。38.96㎡の空間は、まるで優雅な貴婦人が自らの魅力を発揮するかのように、広々とした1LDKの構成が心地良い開放感を与えます。リビングとダイニングが一体となった空間は、あなたの大切な時間を演出する舞台となり、友人との語らいや、愛する人との貴重なひとときを彩ります。その中で流れる穏やかな時間は、まるで映画のワンシーンのように、心に焼き付いて離れないことでしょう。
デザイナーズによる洗練された空間は、感覚を刺激します。手触りの良い素材選びや、洗練された色合いは、まるで芸術品を愛でるかのように、暮らすあなたに美しさを提供します。TVモニターホンの音色が静寂を打破し、エレベーターの音は静かに生活のリズムを奏でます。オートロックが施されたこの空間は、あなたのプライバシーや安全を第一に守り、まるで守護者のように存在しています。
このアクサス白山 101は、周辺の文化がもたらす恵みを存分に享受できる立地にあります。徒歩10分の距離には、都営地下鉄三田線白山駅があり、都心へのアクセスも良好。周辺には静寂に包まれた公園や、古き良き日本の面影を残す街並みが広がり、散策するだけであなたの心が洗われることでしょう。季節ごとに変わる風景が、あなたの五感を刺激し、毎日が新鮮な発見で溢れています。
味覚を楽しむための選択肢も多彩です。近隣にはこだわりのカフェやレストランがひしめき、まるで贅沢な宴に招待されたかのような感覚を味わうことができます。香ばしいコーヒーの香りが漂う午前中、あなたは窓辺でその一杯を味わいながら、外の風景を眺めるのです。やがて、夕暮れ時には、柔らかな光に包まれたこの空間で、心地よいあたたかさを感じながら静かな時を過ごすことができるのです。
アクサス白山 101は、ただの住まいではありません。あなたの物語を紡ぐための舞台であり、生活を豊かに彩る作品なのです。ここで、あなた自身の物語を描き始めてはいかがでしょうか。心の奥に刻まれるような、感動的な日々が、あなたを待っているのです。
アクサス白山 101の内部に足を踏み入れると、そこは別世界。3…アクサス白山 101、ここはまるであなたの夢を現実に変えるための舞台です。この特別な住まいは、東京都文京区白山2-20-5という歴史と文化が息づく地に位置し、周囲には都心の喧騒から解き放たれた静けさが広がっています。南向きのお部屋は、温かい日差しが優しくあなたを包み込み、毎朝の目覚めがまるで新たな息吹を感じさせてくれることでしょう。
アクサス白山 101の内部に足を踏み入れると、そこは別世界。38.96㎡の空間は、まるで優雅な貴婦人が自らの魅力を発揮するかのように、広々とした1LDKの構成が心地良い開放感を与えます。リビングとダイニングが一体となった空間は、あなたの大切な時間を演出する舞台となり、友人との語らいや、愛する人との貴重なひとときを彩ります。その中で流れる穏やかな時間は、まるで映画のワンシーンのように、心に焼き付いて離れないことでしょう。
デザイナーズによる洗練された空間は、感覚を刺激します。手触りの良い素材選びや、洗練された色合いは、まるで芸術品を愛でるかのように、暮らすあなたに美しさを提供します。TVモニターホンの音色が静寂を打破し、エレベーターの音は静かに生活のリズムを奏でます。オートロックが施されたこの空間は、あなたのプライバシーや安全を第一に守り、まるで守護者のように存在しています。
このアクサス白山 101は、周辺の文化がもたらす恵みを存分に享受できる立地にあります。徒歩10分の距離には、都営地下鉄三田線白山駅があり、都心へのアクセスも良好。周辺には静寂に包まれた公園や、古き良き日本の面影を残す街並みが広がり、散策するだけであなたの心が洗われることでしょう。季節ごとに変わる風景が、あなたの五感を刺激し、毎日が新鮮な発見で溢れています。
味覚を楽しむための選択肢も多彩です。近隣にはこだわりのカフェやレストランがひしめき、まるで贅沢な宴に招待されたかのような感覚を味わうことができます。香ばしいコーヒーの香りが漂う午前中、あなたは窓辺でその一杯を味わいながら、外の風景を眺めるのです。やがて、夕暮れ時には、柔らかな光に包まれたこの空間で、心地よいあたたかさを感じながら静かな時を過ごすことができるのです。
アクサス白山 101は、ただの住まいではありません。あなたの物語を紡ぐための舞台であり、生活を豊かに彩る作品なのです。ここで、あなた自身の物語を描き始めてはいかがでしょうか。心の奥に刻まれるような、感動的な日々が、あなたを待っているのです。
バイブルスコア
バイブルスコア: 47.0
条件のいい物件です、引っ越しが2か月以内の場合は仮申し込みを検討すべき物件です。
※バイブルスコア詳細はこちら
バイブルスコアとは独自のAI機械学習技術を利用した物件評価システムで、物件のおすすめ度を示します。最高得点は100点で、スコアが高いほど、よりおすすめの物件と評価されています。
写真
契約条件
| 賃料 | 予想金額:110,000〜130,000円程度 | 管理費 | 予想金額:8,000〜12,000円程度 |
| 礼金 | 非公開(アーカイブ) | 敷金 | 非公開(アーカイブ) |
| フリーレント | なし | 平米数 | 38.96㎡ |
| 間取り | 1LDK | 大型収納 | |
| 契約期間 |
| 方角 | 南 |
| 更新料 | 契約形態 | 普通賃貸借契約 | |
| 取引態様 | 媒介 | 内見状況 | 入居中 |
| 入居時期 | 入居中 | SOHO・事務所 | |
| ペット | 間取り内訳 | 洋: LD: | |
| キャンペーン情報・備考 | 本情報は賃料改定交渉の資料作成、収益物件の利回り試算、周辺エリアや最寄り駅の坪単価分析、次回募集開始時期の予測などにご活用いただけます。 | ||
※「どの不動産に頼めばいいのか分からない」「信頼できる営業マンの話を聞きたい」「一番親切な会社と契約したい」とお悩みの方におすすめなのが「高級賃貸バイブル」です。
高級賃貸バイブルは業界10年以上の熟練スタッフ群がお客様ファーストで対応します。
下記ボタンから、まずは無料でご相談下さい。
※内覧をご希望の際には、どうぞ物件のエントランス前にてお待ち合わせくださいませ。ご内覧後は、同じ場所でお別れとさせていただきます。お客様のご都合に合わせたスムーズなご案内を心がけておりますので、ご質問等がございましたら何なりとお申し付けください。 物件概要
| 物件名 |
| 築年月 |
|
|---|---|---|---|
| 所在地 | |||
| 交通 | |||
| 総戸数 |
| 総階数 |
|
| 構造 |
| ||
地図
物件までの道のりは、「拡大地図を表示」をクリックしてナビ機能をご利用ください。
部屋設備















建物設備

TVモニターホン

エレベーター

オートロック

バイク置場

宅配ボックス

敷地内ゴミ置場

管理人

駐車場平置き

駐車場機械式

駐輪場
アクサス白山の現在募集中のお部屋
- No rooms found for this property.









