
| 賃料 | 予想金額:190,000〜210,000円程度 | 管理費 | 予想金額:13,000〜17,000円程度 |
| 礼金/敷金 | 非公開(アーカイブ) | 平米数 | 57.64㎡ |
| 初期費用概算(参考) | 目安:764,000〜864,000 円 | みなし賃料(月額・参考) | 217,792〜237,792 円 |
| 備考 | 本ページは過去募集のアーカイブです。表示の金額は周辺相場・過去募集を踏まえた参考レンジであり、実際の契約金額・条件ではありません。 | ||
※上記みなし賃料(月額)は仲介手数料割引・無料&キャッシュバックを加味した高級賃貸バイブル限定の金額です。一般的なみなし賃料とは異なります。
【建物ページ】ザ・パークハウス東品川の詳細・最新空室はこちら▶▶選ばれる理由
仲介手数料無料・キャンペーン情報(毎月15名様限定)
〇仲介手数料割引キャンペーン
ザ・パークハウス東品川 6階 57.64㎡の口コミ・レビュー
ザ・パークハウス東品川 6階 57.64㎡へようこそ。あなたの心の幕が開き、新しい生活が始まる舞台がここにあります。この物件は、まるで一篇の詩のように、日々の暮らしを愛おしいものへと変えていく力を秘めています。高級デザイナーズマンションであるザ・パークハウス東品川は、まるで芸術品のような佇まいを持ちながらも、あなたのスタイルに見事に寄り添います。
西向きの窓から滴り落ちる午後の陽射しは、柔らかな…ザ・パークハウス東品川 6階 57.64㎡へようこそ。あなたの心の幕が開き、新しい生活が始まる舞台がここにあります。この物件は、まるで一篇の詩のように、日々の暮らしを愛おしいものへと変えていく力を秘めています。高級デザイナーズマンションであるザ・パークハウス東品川は、まるで芸術品のような佇まいを持ちながらも、あなたのスタイルに見事に寄り添います。
西向きの窓から滴り落ちる午後の陽射しは、柔らかな金色のシルク布のように室内を包み込むでしょう。LDKは15.2帖の広さを誇り、家族や友人との会話が自然と弾む空間を創り出します。お料理をしながら、窓の外に広がる青空と雲の流れを眺める幸福。思わず味わいたくなる、香ばしい香りがキッチンから漂い、心地よい音楽が流れる中で、料理の腕が鳴る瞬間が訪れます。
2つの洋室、6.1帖と5帖は、それぞれ異なる雰囲気を持ち、まるであなたの心の内を映し出すかのようです。ひとつの部屋は、心を落ち着けるための静けさを提供し、もうひとつは、愛らしいグリーンを添えることで心を躍らせてくれる空間を作ります。朝の光が差し込む中、心地よい寝ざめを迎え、カーテンを開ける瞬間に感じるのは、まるで新しい一日の始まりを告げる小鳥のさえずりのようです。
ザ・パークハウス東品川は、あなたのプライバシーを守るためのオートロックと、安心感を与えてくれる24時間管理の体制を整えています。自宅に帰る道のりは、まるで森の中を散策するような心地よさを感じさせ、心地よい風がほほをなで、あなたを迎え入れてくれることでしょう。宅配ボックスや駐車場、駐輪場などの便利な設備も整い、慌ただしい生活の中にこそ、優雅さを失わない整然とした流れが生まれます。
この物件が位置する品川区は、歴史と文化が息づく地。徒歩圏内には、深い緑に囲まれた公園や、地元の美術館などが点在し、まるで絵画のような風景が広がっています。アートの香り漂う街で、ザ・パークハウス東品川に住むことで、日常の一瞬一瞬が美しい映画のワンシーンとなることを、あなたは実感することでしょう。
人生の舞台、ザ・パークハウス東品川 6階 57.64㎡で、心の豊かさを育て、新たな物語を紡いでいく喜びを味わってください。この空間で感じるすべての瞬間が、あなたを優雅へと導いてくれるのです。さあ、新しい生活の幕を上げましょう。あなたの特別な日々が、ここから始まります。
西向きの窓から滴り落ちる午後の陽射しは、柔らかな…ザ・パークハウス東品川 6階 57.64㎡へようこそ。あなたの心の幕が開き、新しい生活が始まる舞台がここにあります。この物件は、まるで一篇の詩のように、日々の暮らしを愛おしいものへと変えていく力を秘めています。高級デザイナーズマンションであるザ・パークハウス東品川は、まるで芸術品のような佇まいを持ちながらも、あなたのスタイルに見事に寄り添います。
西向きの窓から滴り落ちる午後の陽射しは、柔らかな金色のシルク布のように室内を包み込むでしょう。LDKは15.2帖の広さを誇り、家族や友人との会話が自然と弾む空間を創り出します。お料理をしながら、窓の外に広がる青空と雲の流れを眺める幸福。思わず味わいたくなる、香ばしい香りがキッチンから漂い、心地よい音楽が流れる中で、料理の腕が鳴る瞬間が訪れます。
2つの洋室、6.1帖と5帖は、それぞれ異なる雰囲気を持ち、まるであなたの心の内を映し出すかのようです。ひとつの部屋は、心を落ち着けるための静けさを提供し、もうひとつは、愛らしいグリーンを添えることで心を躍らせてくれる空間を作ります。朝の光が差し込む中、心地よい寝ざめを迎え、カーテンを開ける瞬間に感じるのは、まるで新しい一日の始まりを告げる小鳥のさえずりのようです。
ザ・パークハウス東品川は、あなたのプライバシーを守るためのオートロックと、安心感を与えてくれる24時間管理の体制を整えています。自宅に帰る道のりは、まるで森の中を散策するような心地よさを感じさせ、心地よい風がほほをなで、あなたを迎え入れてくれることでしょう。宅配ボックスや駐車場、駐輪場などの便利な設備も整い、慌ただしい生活の中にこそ、優雅さを失わない整然とした流れが生まれます。
この物件が位置する品川区は、歴史と文化が息づく地。徒歩圏内には、深い緑に囲まれた公園や、地元の美術館などが点在し、まるで絵画のような風景が広がっています。アートの香り漂う街で、ザ・パークハウス東品川に住むことで、日常の一瞬一瞬が美しい映画のワンシーンとなることを、あなたは実感することでしょう。
人生の舞台、ザ・パークハウス東品川 6階 57.64㎡で、心の豊かさを育て、新たな物語を紡いでいく喜びを味わってください。この空間で感じるすべての瞬間が、あなたを優雅へと導いてくれるのです。さあ、新しい生活の幕を上げましょう。あなたの特別な日々が、ここから始まります。
バイブルスコア
バイブルスコア: 16.8
高級な物件でない場合は割高な物件です。。
※バイブルスコア詳細はこちら
バイブルスコアとは独自のAI機械学習技術を利用した物件評価システムで、物件のおすすめ度を示します。最高得点は100点で、スコアが高いほど、よりおすすめの物件と評価されています。
写真
契約条件
| 賃料 | 予想金額:190,000〜210,000円程度 | 管理費 | 予想金額:13,000〜17,000円程度 |
| 礼金 | 非公開(アーカイブ) | 敷金 | 非公開(アーカイブ) |
| フリーレント | なし | 平米数 | 57.64㎡ |
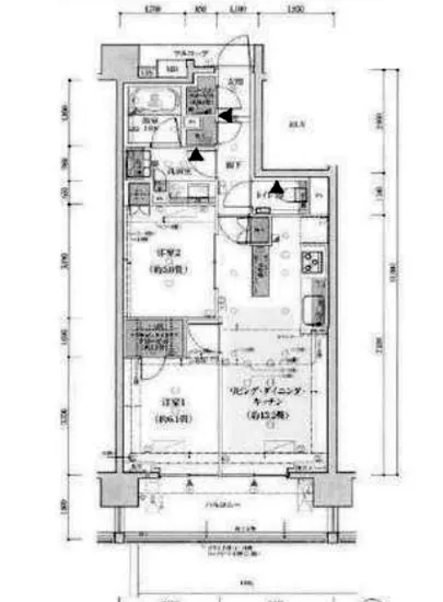
| 間取り | 2LDK | 大型収納 | WIC+SIC |
| 契約期間 |
| 方角 | 西 |
| 更新料 | 契約形態 | 普通賃貸借契約 | |
| 取引態様 | 媒介 | 内見状況 | 入居中 |
| 入居時期 | 入居中 | SOHO・事務所 | |
| ペット | 間取り内訳 | 洋:6.1 洋:5 LDK:15.2 | |
| キャンペーン情報・備考 | 本情報は賃料改定交渉の資料作成、収益物件の利回り試算、周辺エリアや最寄り駅の坪単価分析、次回募集開始時期の予測などにご活用いただけます。 | ||
※「どの不動産に頼めばいいのか分からない」「信頼できる営業マンの話を聞きたい」「一番親切な会社と契約したい」とお悩みの方におすすめなのが「高級賃貸バイブル」です。
高級賃貸バイブルは業界10年以上の熟練スタッフ群がお客様ファーストで対応します。
下記ボタンから、まずは無料でご相談下さい。
※内覧をご希望の際には、どうぞ物件のエントランス前にてお待ち合わせくださいませ。ご内覧後は、同じ場所でお別れとさせていただきます。お客様のご都合に合わせたスムーズなご案内を心がけておりますので、ご質問等がございましたら何なりとお申し付けください。 物件概要
地図
物件までの道のりは、「拡大地図を表示」をクリックしてナビ機能をご利用ください。
部屋設備

















建物設備

24時間管理

TVモニターホン

エレベーター

オートロック

宅配ボックス

敷地内ゴミ置場

管理人

駐車場平置き

駐車場機械式

駐輪場
ザ・パークハウス東品川の現在募集中のお部屋
- No rooms found for this property.









