
| 賃料 | 予想金額:410,000〜430,000円程度 | 管理費 | 予想金額:8,000〜12,000円程度 |
| 礼金/敷金 | 非公開(アーカイブ) | 平米数 | 77.01㎡ |
| 初期費用概算(参考) | 目安:1,543,000〜1,643,000 円 | みなし賃料(月額・参考) | 444,438〜464,438 円 |
| 備考 | 本ページは過去募集のアーカイブです。表示の金額は周辺相場・過去募集を踏まえた参考レンジであり、実際の契約金額・条件ではありません。 | ||
※上記みなし賃料(月額)は仲介手数料割引・無料&キャッシュバックを加味した高級賃貸バイブル限定の金額です。一般的なみなし賃料とは異なります。
【建物ページ】モアクレスト神宮前の詳細・最新空室はこちら▶▶選ばれる理由
仲介手数料無料・キャンペーン情報(毎月15名様限定)
〇仲介手数料割引キャンペーン
モアクレスト神宮前 4階 77.01㎡の口コミ・レビュー
モアクレスト神宮前 4階 77.01㎡。この名は、ただの住まいではなく、あなたの新たな物語の舞台に他なりません。美しい街並みが織りなす渋谷区神宮前に位置し、朝日が差し込み、北西の風が心地よく吹き抜けるこの場所は、まるで映画のワンシーンのように、日々のドラマを演出します。
玄関を開けると、あなたを迎え入れるのは優雅なLDK21.6帖の空間。広がるリビングは、天井高に心が躍り、ふわりとした光が舞い込…モアクレスト神宮前 4階 77.01㎡。この名は、ただの住まいではなく、あなたの新たな物語の舞台に他なりません。美しい街並みが織りなす渋谷区神宮前に位置し、朝日が差し込み、北西の風が心地よく吹き抜けるこの場所は、まるで映画のワンシーンのように、日々のドラマを演出します。
玄関を開けると、あなたを迎え入れるのは優雅なLDK21.6帖の空間。広がるリビングは、天井高に心が躍り、ふわりとした光が舞い込んで、まるで自然の中にいるかのよう。あなたの目の前には、自由にアートを飾ったり、大切な人たちと食事を囲むための広々としたスペースが広がっています。心地よい風が吹き抜ける窓の外では、街のざわめきが静かに響き、耳をすませば、どこかのカフェから流れるジャズのメロディーが心を豊かに彩るでしょう。
この空間には、都市の喧騒を忘れさせる魔法があります。心の底からくつろげる場所を求めているあなたに、洋室8帖、洋室6.8帖、洋室5帖という心地よい個室の数々が、プライベートなひとときを提供します。昼下がりの光が柔らかく差し込む室内で、あなたは静寂の中に身を委ね、読書や趣味に没頭する贅沢を味わえます。時折、風に乗ってくる桜の香りや、近くの公園で戯れる子供たちの笑い声が、心の隙間を埋めていくでしょう。
モアクレスト神宮前は、ただの住居ではなく、生活の質を高めるためのデザイナーズ空間として誕生しました。24時間管理されるこの場所では、安心と快適さが同居し、オートロックやTVモニターホンがあなたを守ります。そして、宅配ボックスや駐車場、さらには駐輪場まで完備されているため、都市生活の利便性を存分に享受できるのです。
渋谷区神宮前の歴史と文化に触れながら、あなたはこの特別な場所に溶け込んでいくでしょう。近くには、歴史的な神宮が静かに佇み、その荘厳さに心を奪われる瞬間もあるはず。文化的なイベントやアート展が行われるこのエリアで、地域住民とともに豊かな時間を過ごすことができるのです。
最後に、モアクレスト神宮前の窓から望む景色は、季節の移り変わりを感じさせてくれます。春の桜、夏の緑、秋の紅葉、冬の雪景色—それぞれの瞬間が、あなたの心に深く刻まれることでしょう。ここに住むことで、ただの生活が、まるで映画のワンシーンになり、毎日が特別なものに変わるのです。あなたの新しい日々が、モアクレスト神宮前で始まることを、心から願っております。
玄関を開けると、あなたを迎え入れるのは優雅なLDK21.6帖の空間。広がるリビングは、天井高に心が躍り、ふわりとした光が舞い込…モアクレスト神宮前 4階 77.01㎡。この名は、ただの住まいではなく、あなたの新たな物語の舞台に他なりません。美しい街並みが織りなす渋谷区神宮前に位置し、朝日が差し込み、北西の風が心地よく吹き抜けるこの場所は、まるで映画のワンシーンのように、日々のドラマを演出します。
玄関を開けると、あなたを迎え入れるのは優雅なLDK21.6帖の空間。広がるリビングは、天井高に心が躍り、ふわりとした光が舞い込んで、まるで自然の中にいるかのよう。あなたの目の前には、自由にアートを飾ったり、大切な人たちと食事を囲むための広々としたスペースが広がっています。心地よい風が吹き抜ける窓の外では、街のざわめきが静かに響き、耳をすませば、どこかのカフェから流れるジャズのメロディーが心を豊かに彩るでしょう。
この空間には、都市の喧騒を忘れさせる魔法があります。心の底からくつろげる場所を求めているあなたに、洋室8帖、洋室6.8帖、洋室5帖という心地よい個室の数々が、プライベートなひとときを提供します。昼下がりの光が柔らかく差し込む室内で、あなたは静寂の中に身を委ね、読書や趣味に没頭する贅沢を味わえます。時折、風に乗ってくる桜の香りや、近くの公園で戯れる子供たちの笑い声が、心の隙間を埋めていくでしょう。
モアクレスト神宮前は、ただの住居ではなく、生活の質を高めるためのデザイナーズ空間として誕生しました。24時間管理されるこの場所では、安心と快適さが同居し、オートロックやTVモニターホンがあなたを守ります。そして、宅配ボックスや駐車場、さらには駐輪場まで完備されているため、都市生活の利便性を存分に享受できるのです。
渋谷区神宮前の歴史と文化に触れながら、あなたはこの特別な場所に溶け込んでいくでしょう。近くには、歴史的な神宮が静かに佇み、その荘厳さに心を奪われる瞬間もあるはず。文化的なイベントやアート展が行われるこのエリアで、地域住民とともに豊かな時間を過ごすことができるのです。
最後に、モアクレスト神宮前の窓から望む景色は、季節の移り変わりを感じさせてくれます。春の桜、夏の緑、秋の紅葉、冬の雪景色—それぞれの瞬間が、あなたの心に深く刻まれることでしょう。ここに住むことで、ただの生活が、まるで映画のワンシーンになり、毎日が特別なものに変わるのです。あなたの新しい日々が、モアクレスト神宮前で始まることを、心から願っております。
バイブルスコア
バイブルスコア: 45.4
条件のいい物件です、引っ越しが2か月以内の場合は仮申し込みを検討すべき物件です。
※バイブルスコア詳細はこちら
バイブルスコアとは独自のAI機械学習技術を利用した物件評価システムで、物件のおすすめ度を示します。最高得点は100点で、スコアが高いほど、よりおすすめの物件と評価されています。
写真
契約条件
| 賃料 | 予想金額:410,000〜430,000円程度 | 管理費 | 予想金額:8,000〜12,000円程度 |
| 礼金 | 非公開(アーカイブ) | 敷金 | 非公開(アーカイブ) |
| フリーレント | なし | 平米数 | 77.01㎡ |
| 間取り | 2LDK+WIC | 大型収納 | WIC |
| 契約期間 | 2年 | 方角 | 北西 |
| 更新料 | 1ヶ月 | 契約形態 | 普通賃貸借契約 |
| 取引態様 | 媒介 | 内見状況 | 入居中 |
| 入居時期 | 入居中 | SOHO・事務所 | 不可 |
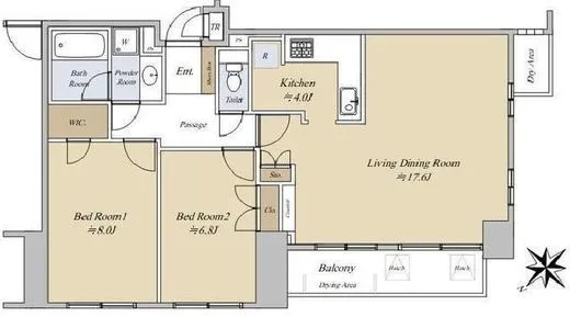
| ペット | 可 | 間取り内訳 | LDK21.6帖 洋室8帖 洋室6.8帖 洋室5帖 |
| キャンペーン情報・備考 | 本情報は賃料改定交渉の資料作成、収益物件の利回り試算、周辺エリアや最寄り駅の坪単価分析、次回募集開始時期の予測などにご活用いただけます。 | ||
※「どの不動産に頼めばいいのか分からない」「信頼できる営業マンの話を聞きたい」「一番親切な会社と契約したい」とお悩みの方におすすめなのが「高級賃貸バイブル」です。
高級賃貸バイブルは業界10年以上の熟練スタッフ群がお客様ファーストで対応します。
下記ボタンから、まずは無料でご相談下さい。
※内覧をご希望の際には、どうぞ物件のエントランス前にてお待ち合わせくださいませ。ご内覧後は、同じ場所でお別れとさせていただきます。お客様のご都合に合わせたスムーズなご案内を心がけておりますので、ご質問等がございましたら何なりとお申し付けください。 物件概要
| 物件名 |
| 築年月 |
|
|---|---|---|---|
| 所在地 | |||
| 交通 |
| ||
| 総戸数 |
| 総階数 |
|
| 構造 |
| ||
地図
物件までの道のりは、「拡大地図を表示」をクリックしてナビ機能をご利用ください。
部屋設備













建物設備

24時間管理

TVモニターホン

エレベーター

オートロック

宅配ボックス

敷地内ゴミ置場

管理人

駐車場平置き

駐車場機械式

駐輪場
モアクレスト神宮前の現在募集中のお部屋
- No rooms found for this property.


