
| 賃料 | 予想金額:400,000〜420,000円程度 | 管理費 | 予想金額:0〜2,000円程度 |
| 礼金/敷金 | 非公開(アーカイブ) | 平米数 | 97.2㎡ |
| 初期費用概算(参考) | 目安:1,886,500〜1,986,500 円 | みなし賃料(月額・参考) | 431,802〜451,802 円 |
| 備考 | 本ページは過去募集のアーカイブです。表示の金額は周辺相場・過去募集を踏まえた参考レンジであり、実際の契約金額・条件ではありません。 | ||
※上記みなし賃料(月額)は仲介手数料割引・無料&キャッシュバックを加味した高級賃貸バイブル限定の金額です。一般的なみなし賃料とは異なります。
【建物ページ】パークコート学芸大学デュアルプレイスの詳細・最新空室はこちら▶▶選ばれる理由
仲介手数料無料・キャンペーン情報(毎月15名様限定)
〇仲介手数料割引キャンペーン
パークコート学芸大学デュアルプレイス 120の口コミ・レビュー
パークコート学芸大学デュアルプレイス 120は、まるであなたを迎え入れるかのように、静寂な街並みに優雅に佇む極上の住処です。この物件は、東京都世田谷区下馬6-29-6という閑静なロケーションの中で、南西と北西の両方からの心地よい光が差し込むスペースを提供します。内装はデザイナーズにこだわり、100㎡近くの広さを持つこの住まいは、生活の質を格段に引き上げることでしょう。
エレベーターで上がった先に…パークコート学芸大学デュアルプレイス 120は、まるであなたを迎え入れるかのように、静寂な街並みに優雅に佇む極上の住処です。この物件は、東京都世田谷区下馬6-29-6という閑静なロケーションの中で、南西と北西の両方からの心地よい光が差し込むスペースを提供します。内装はデザイナーズにこだわり、100㎡近くの広さを持つこの住まいは、生活の質を格段に引き上げることでしょう。
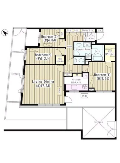
エレベーターで上がった先に広がる住空間には、さまざまな物語が待っています。玄関を開けると、まず目に飛び込んでくるのは、17.2帖の広々としたリビングダイニングです。大きな窓からは、穏やかな光が注ぎ込み、やわらかな風が部屋を舞い上がります。その瞬間、あなたはまるで映画の主人公になったかのような高揚感を覚えるでしょう。友人を招いてホームパーティを開くのも、家族と静かに過ごすのも、この空間であればこそ際立っています。
キッチンは4.4帖の広さを誇り、あなたの料理の腕を存分に発揮させる場所です。香ばしいパンの焼ける匂い、彩り豊かな野菜を切る音、そして、心地よい音楽が流れる中での料理は、充実した時間を演出します。あなたの手から生まれる料理は、家族や友人との会話をより一層豊かにし、食卓を彩ることでしょう。
この住まいには3つの寝室も備わり、それぞれが異なる個性を持っています。8.6帖のマスターベッドルームは、まるでパリの高級ホテルの一室のように、落ち着いた色合いと上質な空間が自慢です。ここでのひとときは、まるで夢の世界にいるかのように、心を和ませてくれることでしょう。6.2帖と4.8帖の他の寝室も、柔らかな光に包まれ、あなたのプライベートな時間を大切にしてくれます。
パークコート学芸大学デュアルプレイス 120には、快適な生活のための多彩な設備も整っています。オートロックで安心感を、宅配ボックスで便利さを、そして、低層階ならではの穏やかな環境を享受できます。駐車場も平置きと機械式を準備し、あなたのライフスタイルに合わせた選択が可能です。
この物件が位置するエリアは、文化と芸術が息づく場所でもあります。学芸大学駅から徒歩7分という立地は、街の活気に包まれながらも、静寂が守られた住宅街の魅力を引き立てています。近隣のカフェやアートギャラリーでのふとした出会いが、あなたの日常をより豊かにすることでしょう。
さあ、パークコート学芸大学デュアルプレイス 120で新しい生活を始める準備を整えましょう。ここでの毎日は、あなたの人生のストーリーを彩る一つの章として、時に優雅に、時に情熱的に、そしていつも何気ない幸せに満ちた瞬間で溢れることでしょう。あなたの新しい生活の舞台が、ここに広がっています。
エレベーターで上がった先に…パークコート学芸大学デュアルプレイス 120は、まるであなたを迎え入れるかのように、静寂な街並みに優雅に佇む極上の住処です。この物件は、東京都世田谷区下馬6-29-6という閑静なロケーションの中で、南西と北西の両方からの心地よい光が差し込むスペースを提供します。内装はデザイナーズにこだわり、100㎡近くの広さを持つこの住まいは、生活の質を格段に引き上げることでしょう。
エレベーターで上がった先に広がる住空間には、さまざまな物語が待っています。玄関を開けると、まず目に飛び込んでくるのは、17.2帖の広々としたリビングダイニングです。大きな窓からは、穏やかな光が注ぎ込み、やわらかな風が部屋を舞い上がります。その瞬間、あなたはまるで映画の主人公になったかのような高揚感を覚えるでしょう。友人を招いてホームパーティを開くのも、家族と静かに過ごすのも、この空間であればこそ際立っています。
キッチンは4.4帖の広さを誇り、あなたの料理の腕を存分に発揮させる場所です。香ばしいパンの焼ける匂い、彩り豊かな野菜を切る音、そして、心地よい音楽が流れる中での料理は、充実した時間を演出します。あなたの手から生まれる料理は、家族や友人との会話をより一層豊かにし、食卓を彩ることでしょう。
この住まいには3つの寝室も備わり、それぞれが異なる個性を持っています。8.6帖のマスターベッドルームは、まるでパリの高級ホテルの一室のように、落ち着いた色合いと上質な空間が自慢です。ここでのひとときは、まるで夢の世界にいるかのように、心を和ませてくれることでしょう。6.2帖と4.8帖の他の寝室も、柔らかな光に包まれ、あなたのプライベートな時間を大切にしてくれます。
パークコート学芸大学デュアルプレイス 120には、快適な生活のための多彩な設備も整っています。オートロックで安心感を、宅配ボックスで便利さを、そして、低層階ならではの穏やかな環境を享受できます。駐車場も平置きと機械式を準備し、あなたのライフスタイルに合わせた選択が可能です。
この物件が位置するエリアは、文化と芸術が息づく場所でもあります。学芸大学駅から徒歩7分という立地は、街の活気に包まれながらも、静寂が守られた住宅街の魅力を引き立てています。近隣のカフェやアートギャラリーでのふとした出会いが、あなたの日常をより豊かにすることでしょう。
さあ、パークコート学芸大学デュアルプレイス 120で新しい生活を始める準備を整えましょう。ここでの毎日は、あなたの人生のストーリーを彩る一つの章として、時に優雅に、時に情熱的に、そしていつも何気ない幸せに満ちた瞬間で溢れることでしょう。あなたの新しい生活の舞台が、ここに広がっています。
バイブルスコア
バイブルスコア: 13.7
高級な物件でない場合は割高な物件です。。
※バイブルスコア詳細はこちら
バイブルスコアとは独自のAI機械学習技術を利用した物件評価システムで、物件のおすすめ度を示します。最高得点は100点で、スコアが高いほど、よりおすすめの物件と評価されています。
写真
契約条件
| 賃料 | 予想金額:400,000〜420,000円程度 | 管理費 | 予想金額:0〜2,000円程度 |
| 礼金 | 非公開(アーカイブ) | 敷金 | 非公開(アーカイブ) |
| フリーレント | なし | 平米数 | 97.2㎡ |
| 間取り | 3LDK | 大型収納 | 2WIC |
| 契約期間 | 方角 | 南西 / 北西 | |
| 更新料 | 契約形態 | 定期借家契約 | |
| 取引態様 | 媒介 | 内見状況 | 入居中 |
| 入居時期 | 入居中 | SOHO・事務所 | |
| ペット | 間取り内訳 | LD=17.2J / K=4.4J / BR=8.6J / BR=6.2J / BR=4.8J | |
| キャンペーン情報・備考 | 本情報は賃料改定交渉の資料作成、収益物件の利回り試算、周辺エリアや最寄り駅の坪単価分析、次回募集開始時期の予測などにご活用いただけます。 | ||
※「どの不動産に頼めばいいのか分からない」「信頼できる営業マンの話を聞きたい」「一番親切な会社と契約したい」とお悩みの方におすすめなのが「高級賃貸バイブル」です。
高級賃貸バイブルは業界10年以上の熟練スタッフ群がお客様ファーストで対応します。
下記ボタンから、まずは無料でご相談下さい。
※内覧をご希望の際には、どうぞ物件のエントランス前にてお待ち合わせくださいませ。ご内覧後は、同じ場所でお別れとさせていただきます。お客様のご都合に合わせたスムーズなご案内を心がけておりますので、ご質問等がございましたら何なりとお申し付けください。 物件概要
| 物件名 |
| 築年月 |
|
|---|---|---|---|
| 所在地 | |||
| 交通 | |||
| 総戸数 |
| 総階数 |
|
| 構造 |
| ||
地図
物件までの道のりは、「拡大地図を表示」をクリックしてナビ機能をご利用ください。
部屋設備



















建物設備

TVモニターホン

エレベーター

オートロック

宅配ボックス

敷地内ゴミ置場

管理人

駐車場平置き

駐車場機械式

駐輪場
パークコート学芸大学デュアルプレイスの現在募集中のお部屋
- No rooms found for this property.























