
| 賃料 | 予想金額:83,000〜103,000円程度 | 管理費 | 予想金額:10,000〜14,000円程度 |
| 礼金/敷金 | 非公開(アーカイブ) | 平米数 | 23.1㎡ |
| 初期費用概算(参考) | 目安:401,500〜501,500 円 | みなし賃料(月額・参考) | 102,469〜122,469 円 |
| 備考 | 本ページは過去募集のアーカイブです。表示の金額は周辺相場・過去募集を踏まえた参考レンジであり、実際の契約金額・条件ではありません。 | ||
※上記みなし賃料(月額)は仲介手数料割引・無料&キャッシュバックを加味した高級賃貸バイブル限定の金額です。一般的なみなし賃料とは異なります。
【建物ページ】コンシェリア豊洲マスターズヴィラの詳細・最新空室はこちら▶▶選ばれる理由
仲介手数料無料・キャンペーン情報(毎月15名様限定)
〇仲介手数料割引キャンペーン
コンシェリア豊洲マスターズヴィラ 9階 23.1㎡の口コミ・レビュー
コンシェリア豊洲マスターズヴィラ 9階 23.1㎡。この物件は、ただの住居に留まらず、まるであなたの生活そのものを舞台にした映画のセットのようです。江東区の枝川にそびえ立つこのヴィラは、南東の光を浴びることで、昼夜を問わず美しい光景を提供します。ここでの毎日は、あなたを主役にする特別な物語が始まります。
コンシェリア豊洲マスターズヴィラは、洗練されたデザインの中で、フレッシュな風とともに過ごすひ…コンシェリア豊洲マスターズヴィラ 9階 23.1㎡。この物件は、ただの住居に留まらず、まるであなたの生活そのものを舞台にした映画のセットのようです。江東区の枝川にそびえ立つこのヴィラは、南東の光を浴びることで、昼夜を問わず美しい光景を提供します。ここでの毎日は、あなたを主役にする特別な物語が始まります。
コンシェリア豊洲マスターズヴィラは、洗練されたデザインの中で、フレッシュな風とともに過ごすひとときが約束された空間です。エレベーターで9階に到着すると、重厚感のあるオートロックの扉が、まるで高貴な宮殿のようにあなたを迎え入れます。そして、その扉を開けた瞬間、広がるのは温かみのある洋室7帖の空間。ここには、あなたのセンスが光るインテリアが似合うことでしょう。落ち着いた色合いの壁と、ナチュラルな質感のフローリングが優しく調和し、心に安らぎを与えます。あなたが好きなアートやお気に入りの家具を配置すれば、まるで美術館の一角のように、唯一無二の空間が完成します。
また、コンシェリア豊洲マスターズヴィラには、24時間管理やTVモニターホンなどの充実した設備が整い、安心して暮らすための心強い味方となります。宅配ボックスやバイク置場も完備されているため、あなたのライフスタイルに柔軟に対応します。そして、外に出れば、周辺には豊洲の豊かな文化や歴史が息づいています。東京メトロ有楽町線の豊洲駅から徒歩8分の立地は、都心へのアクセスも抜群。通勤や通学の道が、あなたの日常を彩る冒険の始まりです。
思い描くのは、朝の光が差し込む中で、あなたの好きな香りのコーヒーを淹れ、バルコニーから見える朝日を楽しむ情景。夕暮れ時には、窓際に腰かけ、ゆったりとした音楽を聴きながら、日が沈む瞬間を見守る贅沢なひとときを過ごせます。暮らしの中の小さな瞬間が、映画のワンシーンのように鮮やかに心に刻まれることでしょう。
この特別なコンシェリア豊洲マスターズヴィラ 9階 23.1㎡での生活は、まさに新たな人生の章の幕開けです。日々の喧騒を忘れ、心豊かな時間を手に入れることができるこの空間で、ぜひともあなた自身の物語を紡いでみてください。あなたの選ぶセンスが、このヴィラに新しい風を吹き込み、歴史の一部となるのです。
コンシェリア豊洲マスターズヴィラは、洗練されたデザインの中で、フレッシュな風とともに過ごすひ…コンシェリア豊洲マスターズヴィラ 9階 23.1㎡。この物件は、ただの住居に留まらず、まるであなたの生活そのものを舞台にした映画のセットのようです。江東区の枝川にそびえ立つこのヴィラは、南東の光を浴びることで、昼夜を問わず美しい光景を提供します。ここでの毎日は、あなたを主役にする特別な物語が始まります。
コンシェリア豊洲マスターズヴィラは、洗練されたデザインの中で、フレッシュな風とともに過ごすひとときが約束された空間です。エレベーターで9階に到着すると、重厚感のあるオートロックの扉が、まるで高貴な宮殿のようにあなたを迎え入れます。そして、その扉を開けた瞬間、広がるのは温かみのある洋室7帖の空間。ここには、あなたのセンスが光るインテリアが似合うことでしょう。落ち着いた色合いの壁と、ナチュラルな質感のフローリングが優しく調和し、心に安らぎを与えます。あなたが好きなアートやお気に入りの家具を配置すれば、まるで美術館の一角のように、唯一無二の空間が完成します。
また、コンシェリア豊洲マスターズヴィラには、24時間管理やTVモニターホンなどの充実した設備が整い、安心して暮らすための心強い味方となります。宅配ボックスやバイク置場も完備されているため、あなたのライフスタイルに柔軟に対応します。そして、外に出れば、周辺には豊洲の豊かな文化や歴史が息づいています。東京メトロ有楽町線の豊洲駅から徒歩8分の立地は、都心へのアクセスも抜群。通勤や通学の道が、あなたの日常を彩る冒険の始まりです。
思い描くのは、朝の光が差し込む中で、あなたの好きな香りのコーヒーを淹れ、バルコニーから見える朝日を楽しむ情景。夕暮れ時には、窓際に腰かけ、ゆったりとした音楽を聴きながら、日が沈む瞬間を見守る贅沢なひとときを過ごせます。暮らしの中の小さな瞬間が、映画のワンシーンのように鮮やかに心に刻まれることでしょう。
この特別なコンシェリア豊洲マスターズヴィラ 9階 23.1㎡での生活は、まさに新たな人生の章の幕開けです。日々の喧騒を忘れ、心豊かな時間を手に入れることができるこの空間で、ぜひともあなた自身の物語を紡いでみてください。あなたの選ぶセンスが、このヴィラに新しい風を吹き込み、歴史の一部となるのです。
バイブルスコア
バイブルスコア: 46.6
条件のいい物件です、引っ越しが2か月以内の場合は仮申し込みを検討すべき物件です。
※バイブルスコア詳細はこちら
バイブルスコアとは独自のAI機械学習技術を利用した物件評価システムで、物件のおすすめ度を示します。最高得点は100点で、スコアが高いほど、よりおすすめの物件と評価されています。
写真
契約条件
| 賃料 | 予想金額:83,000〜103,000円程度 | 管理費 | 予想金額:10,000〜14,000円程度 |
| 礼金 | 非公開(アーカイブ) | 敷金 | 非公開(アーカイブ) |
| フリーレント | なし | 平米数 | 23.1㎡ |
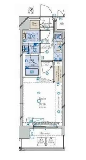
| 間取り | 1K | 大型収納 | なし |
| 契約期間 | 2年 | 方角 | 南東 |
| 更新料 | 1ヶ月 | 契約形態 | 普通賃貸借契約 |
| 取引態様 | 媒介 | 内見状況 | 入居中 |
| 入居時期 | 入居中 | SOHO・事務所 | 不可 |
| ペット | 可 | 間取り内訳 | 洋室7帖 |
| キャンペーン情報・備考 | 本情報は賃料改定交渉の資料作成、収益物件の利回り試算、周辺エリアや最寄り駅の坪単価分析、次回募集開始時期の予測などにご活用いただけます。 | ||
※「どの不動産に頼めばいいのか分からない」「信頼できる営業マンの話を聞きたい」「一番親切な会社と契約したい」とお悩みの方におすすめなのが「高級賃貸バイブル」です。
高級賃貸バイブルは業界10年以上の熟練スタッフ群がお客様ファーストで対応します。
下記ボタンから、まずは無料でご相談下さい。
※内覧をご希望の際には、どうぞ物件のエントランス前にてお待ち合わせくださいませ。ご内覧後は、同じ場所でお別れとさせていただきます。お客様のご都合に合わせたスムーズなご案内を心がけておりますので、ご質問等がございましたら何なりとお申し付けください。 物件概要
| 物件名 |
| 築年月 |
|
|---|---|---|---|
| 所在地 | |||
| 交通 | |||
| 総戸数 |
| 総階数 |
|
| 構造 |
| ||
地図
物件までの道のりは、「拡大地図を表示」をクリックしてナビ機能をご利用ください。
部屋設備










建物設備

24時間管理

TVモニターホン

エレベーター

オートロック

バイク置場

宅配ボックス

敷地内ゴミ置場

管理人

駐車場平置き

駐車場機械式

駐輪場
コンシェリア豊洲マスターズヴィラの現在募集中のお部屋
- No rooms found for this property.






















