
| 賃料 | 予想金額:340,000〜360,000円程度 | 管理費 | 予想金額:11,000〜15,000円程度 |
| 礼金/敷金 | 非公開(アーカイブ) | 平米数 | 79.02㎡ |
| 初期費用概算(参考) | 目安:1,652,500〜1,752,500 円 | みなし賃料(月額・参考) | 381,177〜401,177 円 |
| 備考 | 本ページは過去募集のアーカイブです。表示の金額は周辺相場・過去募集を踏まえた参考レンジであり、実際の契約金額・条件ではありません。 | ||
※上記みなし賃料(月額)は仲介手数料割引・無料&キャッシュバックを加味した高級賃貸バイブル限定の金額です。一般的なみなし賃料とは異なります。
【建物ページ】クオリア千代田御茶ノ水の詳細・最新空室はこちら▶▶選ばれる理由
仲介手数料無料・キャンペーン情報(毎月15名様限定)
〇仲介手数料割引キャンペーン
クオリア千代田御茶ノ水 4階 79.02㎡の口コミ・レビュー
クオリア千代田御茶ノ水 4階 79.02㎡。この物件はまるで洗練された芸術作品のように、あなたの新生活をオーケストラのように彩ります。目を閉じて、心の中に浮かぶのは、南東の光が優しく差し込む明るいリビング、その開放感あふれるLDK18帖に広がる空間です。高い天井の下、あなたは心地よいソファに身を沈め、ふわりと漂うコーヒーの香ばしい香りに包まれながら、静かな午後のひとときを楽しむ姿が想像できます。
…クオリア千代田御茶ノ水 4階 79.02㎡。この物件はまるで洗練された芸術作品のように、あなたの新生活をオーケストラのように彩ります。目を閉じて、心の中に浮かぶのは、南東の光が優しく差し込む明るいリビング、その開放感あふれるLDK18帖に広がる空間です。高い天井の下、あなたは心地よいソファに身を沈め、ふわりと漂うコーヒーの香ばしい香りに包まれながら、静かな午後のひとときを楽しむ姿が想像できます。
クオリア千代田御茶ノ水は、ただの住まいではありません。まるで静謐な楽園のように、心と体を癒すための舞台です。洋室7帖は、落ち着いたトーンのインテリアに囲まれ、まるであなたを優しく包み込むような安らぎを与えます。そこでは、本を手に取り、ページをめくる音が静寂を切り裂いていく感覚が心地よい。木の温もりを感じながら、時折ほのかに聞こえる外の賑わい—それは、歴史と文化が交差する千代田の街が織り成す美しいハーモニーです。
また、洋室5帖や洋室4.4帖は、機能と美しさを両立させた空間で、あなたのライフスタイルに合わせた使い方を可能にします。ここで目を覚ました朝、カーテンを引き開けると、優しい日差しが差し込み、新たな一日が始まります。心躍るような気持ちで、朝食のメニューを考えながら、あなたの手でおいしいパンケーキを焼く音がキッチンから聞こえてくることでしょう。その香りは、あなたを新たな冒険へと誘います。
クオリア千代田御茶ノ水は、アートと文化が息づくこの街の真ん中に位置し、街を歩けば古き良き日本の風情と、現代の煩雑さが美しく融合する様子が見て取れます。東京メトロ丸ノ内線の御茶ノ水駅から徒歩6分というアクセスは、まるであなたの新たな生活を更に特別なものにしてくれるかのようです。エレガントな佇まいを持つ隣接の神田明神で歴史を感じ、ちょっとしたアートの散策を楽しむ。そんな日常がここには待っています。
24時間管理、オートロック、宅配ボックスなどの優れた設備が整ったクオリア千代田御茶ノ水は、安心感と利便性も兼ね備えています。どんな時でも、あなたの心に寄り添う存在であり続けることでしょう。駐車場も完備されており、あなたのライフスタイルの選択肢を広げてくれます。
この特別な空間での新しい生活は、まるで映画のワンシーンのように心に長く残ります。美しい日々の風景の中で、クオリア千代田御茶ノ水はあなたにとっての「家」となり、常に愛され続ける場所となることでしょう。あなたの新しい人生の幕開けが、ここで待っています。
…クオリア千代田御茶ノ水 4階 79.02㎡。この物件はまるで洗練された芸術作品のように、あなたの新生活をオーケストラのように彩ります。目を閉じて、心の中に浮かぶのは、南東の光が優しく差し込む明るいリビング、その開放感あふれるLDK18帖に広がる空間です。高い天井の下、あなたは心地よいソファに身を沈め、ふわりと漂うコーヒーの香ばしい香りに包まれながら、静かな午後のひとときを楽しむ姿が想像できます。
クオリア千代田御茶ノ水は、ただの住まいではありません。まるで静謐な楽園のように、心と体を癒すための舞台です。洋室7帖は、落ち着いたトーンのインテリアに囲まれ、まるであなたを優しく包み込むような安らぎを与えます。そこでは、本を手に取り、ページをめくる音が静寂を切り裂いていく感覚が心地よい。木の温もりを感じながら、時折ほのかに聞こえる外の賑わい—それは、歴史と文化が交差する千代田の街が織り成す美しいハーモニーです。
また、洋室5帖や洋室4.4帖は、機能と美しさを両立させた空間で、あなたのライフスタイルに合わせた使い方を可能にします。ここで目を覚ました朝、カーテンを引き開けると、優しい日差しが差し込み、新たな一日が始まります。心躍るような気持ちで、朝食のメニューを考えながら、あなたの手でおいしいパンケーキを焼く音がキッチンから聞こえてくることでしょう。その香りは、あなたを新たな冒険へと誘います。
クオリア千代田御茶ノ水は、アートと文化が息づくこの街の真ん中に位置し、街を歩けば古き良き日本の風情と、現代の煩雑さが美しく融合する様子が見て取れます。東京メトロ丸ノ内線の御茶ノ水駅から徒歩6分というアクセスは、まるであなたの新たな生活を更に特別なものにしてくれるかのようです。エレガントな佇まいを持つ隣接の神田明神で歴史を感じ、ちょっとしたアートの散策を楽しむ。そんな日常がここには待っています。
24時間管理、オートロック、宅配ボックスなどの優れた設備が整ったクオリア千代田御茶ノ水は、安心感と利便性も兼ね備えています。どんな時でも、あなたの心に寄り添う存在であり続けることでしょう。駐車場も完備されており、あなたのライフスタイルの選択肢を広げてくれます。
この特別な空間での新しい生活は、まるで映画のワンシーンのように心に長く残ります。美しい日々の風景の中で、クオリア千代田御茶ノ水はあなたにとっての「家」となり、常に愛され続ける場所となることでしょう。あなたの新しい人生の幕開けが、ここで待っています。
バイブルスコア
バイブルスコア: 44.6
条件のいい物件です、引っ越しが2か月以内の場合は仮申し込みを検討すべき物件です。
※バイブルスコア詳細はこちら
バイブルスコアとは独自のAI機械学習技術を利用した物件評価システムで、物件のおすすめ度を示します。最高得点は100点で、スコアが高いほど、よりおすすめの物件と評価されています。
写真
契約条件
| 賃料 | 予想金額:340,000〜360,000円程度 | 管理費 | 予想金額:11,000〜15,000円程度 |
| 礼金 | 非公開(アーカイブ) | 敷金 | 非公開(アーカイブ) |
| フリーレント | なし | 平米数 | 79.02㎡ |
| 間取り | 3LDK+WIC | 大型収納 | WIC |
| 契約期間 | 2年 | 方角 | 南東 |
| 更新料 | 1ヶ月 | 契約形態 | 普通賃貸借契約 |
| 取引態様 | 媒介 | 内見状況 | 入居中 |
| 入居時期 | 入居中 | SOHO・事務所 | 不可 |
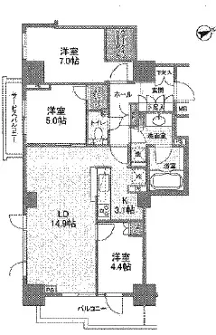
| ペット | 不可 | 間取り内訳 | LDK18帖 洋室7帖 洋室5帖 洋室4.4帖 |
| キャンペーン情報・備考 | 本情報は賃料改定交渉の資料作成、収益物件の利回り試算、周辺エリアや最寄り駅の坪単価分析、次回募集開始時期の予測などにご活用いただけます。 | ||
※「どの不動産に頼めばいいのか分からない」「信頼できる営業マンの話を聞きたい」「一番親切な会社と契約したい」とお悩みの方におすすめなのが「高級賃貸バイブル」です。
高級賃貸バイブルは業界10年以上の熟練スタッフ群がお客様ファーストで対応します。
下記ボタンから、まずは無料でご相談下さい。
※内覧をご希望の際には、どうぞ物件のエントランス前にてお待ち合わせくださいませ。ご内覧後は、同じ場所でお別れとさせていただきます。お客様のご都合に合わせたスムーズなご案内を心がけておりますので、ご質問等がございましたら何なりとお申し付けください。 物件概要
| 物件名 |
| 築年月 |
|
|---|---|---|---|
| 所在地 | |||
| 交通 | |||
| 総戸数 |
| 総階数 |
|
| 構造 |
| ||
地図
物件までの道のりは、「拡大地図を表示」をクリックしてナビ機能をご利用ください。
部屋設備












建物設備

24時間管理

TVモニターホン

エレベーター

オートロック

宅配ボックス

敷地内ゴミ置場

管理人

駐車場平置き

駐車場機械式

駐輪場
クオリア千代田御茶ノ水の現在募集中のお部屋
- No rooms found for this property.
























