
| 賃料 | 予想金額:88,000〜108,000円程度 | 管理費 | 予想金額:6,000〜10,000円程度 |
| 礼金/敷金 | 非公開(アーカイブ) | 平米数 | 25.84㎡ |
| 初期費用概算(参考) | 目安:223,900〜323,900 円 | みなし賃料(月額・参考) | 99,665〜119,665 円 |
| 備考 | 本ページは過去募集のアーカイブです。表示の金額は周辺相場・過去募集を踏まえた参考レンジであり、実際の契約金額・条件ではありません。 | ||
※上記みなし賃料(月額)は仲介手数料割引・無料&キャッシュバックを加味した高級賃貸バイブル限定の金額です。一般的なみなし賃料とは異なります。
【建物ページ】パークアクシス西ヶ原の詳細・最新空室はこちら▶▶選ばれる理由
仲介手数料無料・キャンペーン情報(毎月15名様限定)
〇引っ越しお祝い金19600円プレゼント(キャッシュバック)
〇仲介手数料無料キャンペーン
パークアクシス西ヶ原 401の口コミ・レビュー
パークアクシス西ヶ原 401。この名は、あなたの新しい生活の舞台の幕開けを告げる魔法のような響きを持っています。扉を開けると、まるで映画の主演者にでもなったかのように、銀幕の一幕が展開されるのを感じることでしょう。この特別な場所は、東京都北区西ケ原2-45-10に位置し、北東の方向に広がる景色にあなたを優しく包み込みます。
パークアクシス西ヶ原 401は、わずか25.84㎡の空間に、無限の可能性…パークアクシス西ヶ原 401。この名は、あなたの新しい生活の舞台の幕開けを告げる魔法のような響きを持っています。扉を開けると、まるで映画の主演者にでもなったかのように、銀幕の一幕が展開されるのを感じることでしょう。この特別な場所は、東京都北区西ケ原2-45-10に位置し、北東の方向に広がる景色にあなたを優しく包み込みます。
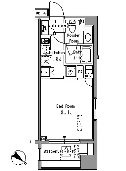
パークアクシス西ヶ原 401は、わずか25.84㎡の空間に、無限の可能性を秘めています。そこには、洗練されたデザインが施され、心地よい洋室8.1帖とコンパクトながら機能的なキッチン1.8帖が調和し、居心地の良い住空間を生み出しています。内部に足を踏み入れると、光が柔らかく差し込み、どこか懐かしい香りが漂い、一瞬にして心を奪われることでしょう。
この空間は、オートロックやTVモニターホンといった先端設備が整い、あなたの安全とプライバシーを守ります。毎朝、新鮮な空気を吸い込むたびに、豊かな自然に囲まれた環境が、あなたを新たな冒険へと誘います。バイク置場や駐輪場も完備されており、駐車場は平置きと機械式の二つのスタイルを選べる贅沢さが、あなたの毎日をサポートしてくれることでしょう。
そして、パークアクシス西ヶ原 401に住むことは、周囲の文化や歴史と深く結びつくことでもあります。この地域は、東京都の北部に位置し、江戸時代からの歴史を育んできた場所。散策すれば、古き良き日本の面影が残る風情ある街並みや、静かな公園が広がり、優雅な時間を過ごすことができるのです。
あなたがキッチンで料理をする時、その香ばしい匂いは、まるで小さなレストランのよう。新鮮な素材が奏でるハーモニーが、居心地の良い洋室へと広がって行く様子が目に浮かびます。陽射しが差し込む中で、友人たちと語らうひととき、そんな瞬間がまるで名作映画の一場面のように刻まれることでしょう。
パークアクシス西ヶ原 401は、単なる住まいではなく、あなたの人生の舞台です。一歩足を踏み入れれば、そこに広がるのは、あなた自身の物語。新しい生活の一歩を、ここから始めてみてはいかがでしょうか。あなたの心の琴線に触れるこの場所で、日々の彩りを見つけながら、特別な時間を育み、新たな感動を見つけ出すことでしょう。
パークアクシス西ヶ原 401は、わずか25.84㎡の空間に、無限の可能性…パークアクシス西ヶ原 401。この名は、あなたの新しい生活の舞台の幕開けを告げる魔法のような響きを持っています。扉を開けると、まるで映画の主演者にでもなったかのように、銀幕の一幕が展開されるのを感じることでしょう。この特別な場所は、東京都北区西ケ原2-45-10に位置し、北東の方向に広がる景色にあなたを優しく包み込みます。
パークアクシス西ヶ原 401は、わずか25.84㎡の空間に、無限の可能性を秘めています。そこには、洗練されたデザインが施され、心地よい洋室8.1帖とコンパクトながら機能的なキッチン1.8帖が調和し、居心地の良い住空間を生み出しています。内部に足を踏み入れると、光が柔らかく差し込み、どこか懐かしい香りが漂い、一瞬にして心を奪われることでしょう。
この空間は、オートロックやTVモニターホンといった先端設備が整い、あなたの安全とプライバシーを守ります。毎朝、新鮮な空気を吸い込むたびに、豊かな自然に囲まれた環境が、あなたを新たな冒険へと誘います。バイク置場や駐輪場も完備されており、駐車場は平置きと機械式の二つのスタイルを選べる贅沢さが、あなたの毎日をサポートしてくれることでしょう。
そして、パークアクシス西ヶ原 401に住むことは、周囲の文化や歴史と深く結びつくことでもあります。この地域は、東京都の北部に位置し、江戸時代からの歴史を育んできた場所。散策すれば、古き良き日本の面影が残る風情ある街並みや、静かな公園が広がり、優雅な時間を過ごすことができるのです。
あなたがキッチンで料理をする時、その香ばしい匂いは、まるで小さなレストランのよう。新鮮な素材が奏でるハーモニーが、居心地の良い洋室へと広がって行く様子が目に浮かびます。陽射しが差し込む中で、友人たちと語らうひととき、そんな瞬間がまるで名作映画の一場面のように刻まれることでしょう。
パークアクシス西ヶ原 401は、単なる住まいではなく、あなたの人生の舞台です。一歩足を踏み入れれば、そこに広がるのは、あなた自身の物語。新しい生活の一歩を、ここから始めてみてはいかがでしょうか。あなたの心の琴線に触れるこの場所で、日々の彩りを見つけながら、特別な時間を育み、新たな感動を見つけ出すことでしょう。
バイブルスコア
バイブルスコア: 98.9
レア物件です、すぐ仮押さえしましょう!
このお部屋は、現在ご入居中のため空室情報はございません。ただし、将来的に募集が開始される際、バイブルスコアにおいて非常に高い評価が期待されます。特にご興味をお持ちの方は、今のうちにブックマークやお気に入りに登録していただくと、募集開始のお知らせをすぐに受け取ることができます。是非ともご検討くださいませ。
※バイブルスコア詳細はこちら
バイブルスコアとは独自のAI機械学習技術を利用した物件評価システムで、物件のおすすめ度を示します。最高得点は100点で、スコアが高いほど、よりおすすめの物件と評価されています。
写真
現在写真が登録されていません契約条件
| 賃料 | 予想金額:88,000〜108,000円程度 | 管理費 | 予想金額:6,000〜10,000円程度 |
| 礼金 | 非公開(アーカイブ) | 敷金 | 非公開(アーカイブ) |
| フリーレント | なし | 平米数 | 25.84㎡ |
| 間取り | 1K | 大型収納 | |
| 契約期間 | 2年 | 方角 | 北東 |
| 更新料 | 1ヶ月 | 契約形態 | 普通賃貸借契約 |
| 取引態様 | 媒介 | 内見状況 | 入居中 |
| 入居時期 | 入居中 | SOHO・事務所 | |
| ペット | ペット可 | 間取り内訳 | 洋:8.1 K:1.8 |
| キャンペーン情報・備考 | 本情報は賃料改定交渉の資料作成、収益物件の利回り試算、周辺エリアや最寄り駅の坪単価分析、次回募集開始時期の予測などにご活用いただけます。 | ||
※「どの不動産に頼めばいいのか分からない」「信頼できる営業マンの話を聞きたい」「一番親切な会社と契約したい」とお悩みの方におすすめなのが「高級賃貸バイブル」です。
高級賃貸バイブルは業界10年以上の熟練スタッフ群がお客様ファーストで対応します。
下記ボタンから、まずは無料でご相談下さい。
※内覧をご希望の際には、どうぞ物件のエントランス前にてお待ち合わせくださいませ。ご内覧後は、同じ場所でお別れとさせていただきます。お客様のご都合に合わせたスムーズなご案内を心がけておりますので、ご質問等がございましたら何なりとお申し付けください。 物件概要
| 物件名 |
| 築年月 |
|
|---|---|---|---|
| 所在地 | |||
| 交通 | |||
| 総戸数 |
| 総階数 |
|
| 構造 |
| ||
地図
物件までの道のりは、「拡大地図を表示」をクリックしてナビ機能をご利用ください。
部屋設備















建物設備

TVモニターホン

エレベーター

オートロック

バイク置場

宅配ボックス

敷地内ゴミ置場

管理人

駐車場平置き

駐車場機械式

駐輪場
パークアクシス西ヶ原の現在募集中のお部屋
- No rooms found for this property.
