
| 賃料 | 予想金額:475,000〜495,000円程度 | 管理費 | 予想金額:13,000〜17,000円程度 |
| 礼金/敷金 | 非公開(アーカイブ) | 平米数 | 57.72㎡ |
| 初期費用概算(参考) | 目安:1,778,000〜1,878,000 円 | みなし賃料(月額・参考) | 517,979〜537,979 円 |
| 備考 | 本ページは過去募集のアーカイブです。表示の金額は周辺相場・過去募集を踏まえた参考レンジであり、実際の契約金額・条件ではありません。 | ||
※上記みなし賃料(月額)は仲介手数料割引・無料&キャッシュバックを加味した高級賃貸バイブル限定の金額です。一般的なみなし賃料とは異なります。
【建物ページ】中目黒アトラスタワーの詳細・最新空室はこちら▶▶選ばれる理由
仲介手数料無料・キャンペーン情報(毎月15名様限定)
〇仲介手数料割引キャンペーン
中目黒アトラスタワー 38階 57.72㎡の口コミ・レビュー
中目黒アトラスタワー 38階 57.72㎡は、まるで現代の宮殿のように、あなたを待ちわびている魅惑の空間です。この美しいタワーは、優雅な西向きの眺望を誇り、都会の喧騒を忘れさせる静謐さを提供いたします。38階から見下ろす景色は、四季折々の表情を見せる美しい山々と、 glitteringな都市の灯りが織りなす絶美のコントラスト。まるで一幅の絵画を見ているかのような、息を呑む瞬間が日常に溶け込むのです…中目黒アトラスタワー 38階 57.72㎡は、まるで現代の宮殿のように、あなたを待ちわびている魅惑の空間です。この美しいタワーは、優雅な西向きの眺望を誇り、都会の喧騒を忘れさせる静謐さを提供いたします。38階から見下ろす景色は、四季折々の表情を見せる美しい山々と、 glitteringな都市の灯りが織りなす絶美のコントラスト。まるで一幅の絵画を見ているかのような、息を呑む瞬間が日常に溶け込むのです。
入居した瞬間、あなたはこの物件に秘められた温もりと、心地よい香りを感じることでしょう。高級感あふれるフロントサービスは、まるで家族のようにあなたを迎え入れてくれるでしょう。24時間管理されているため、心の平穏を手に入れつつ、何かあればすぐに頼りたくなる存在です。TVモニターホンやオートロックは、あなたのプライバシーを守りつつ、安心感をもたらしてくれます。
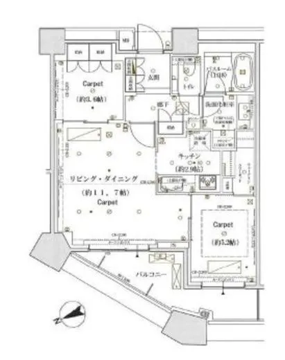
中目黒アトラスタワー 38階 57.72㎡の内部は、感性を刺激する美しいデザインが施されています。LDK11.7帖、洋室5.2帖、洋室3.6帖の間取りは、まるで贅沢なキャンバスのように、あなたのライフスタイルを彩ります。陽光が優しく差し込むリビングでは、朝のコーヒーの香りが漂い、バルコニーに出れば、爽やかな風が髪を撫でることでしょう。その瞬間は、まさに映画のワンシーンのように、あなたの心に焼き付くことでしょう。
さらに、このタワーにはゲストルームやラウンジもあり、友人を招いて豊かな時間を共にすることができます。ふたりで語り合う夜、タワーの窓から見える夜景は、きっと会話の補助線となり、心の距離を縮めてくれることでしょう。美味しい料理とともに、独特なディスプレイで彩られた空間は、心地よい音楽が流れる中で、あたかも夢の中にいるかのような、至福の時間を提供します。
周辺には、歴史と文化が息づく中目黒の街が広がっています。散策すれば、アートギャラリーや隠れ家的なカフェが点在し、あなたの感性をさらに刺激してくれるのです。美しい川沿いの桜並木では、春には花びらが舞い散り、秋には紅葉が色づく様子が、あなたの目を楽しませてくれます。この街での生活は、まさに心豊かなアートの一部となり、あなたの人生をより深めてくれることでしょう。
中目黒アトラスタワー 38階 57.72㎡での生活は、ただの住まいではなく、あなたの人生を特別なものに変える場所です。高級感と心地よさが調和したこの空間で、あなた自身の物語を紡いでみてはいかがでしょうか。どんな瞬間も特別に感じられるこのタワーは、あなたの新たな舞台となることを心より願っています。
入居した瞬間、あなたはこの物件に秘められた温もりと、心地よい香りを感じることでしょう。高級感あふれるフロントサービスは、まるで家族のようにあなたを迎え入れてくれるでしょう。24時間管理されているため、心の平穏を手に入れつつ、何かあればすぐに頼りたくなる存在です。TVモニターホンやオートロックは、あなたのプライバシーを守りつつ、安心感をもたらしてくれます。
中目黒アトラスタワー 38階 57.72㎡の内部は、感性を刺激する美しいデザインが施されています。LDK11.7帖、洋室5.2帖、洋室3.6帖の間取りは、まるで贅沢なキャンバスのように、あなたのライフスタイルを彩ります。陽光が優しく差し込むリビングでは、朝のコーヒーの香りが漂い、バルコニーに出れば、爽やかな風が髪を撫でることでしょう。その瞬間は、まさに映画のワンシーンのように、あなたの心に焼き付くことでしょう。
さらに、このタワーにはゲストルームやラウンジもあり、友人を招いて豊かな時間を共にすることができます。ふたりで語り合う夜、タワーの窓から見える夜景は、きっと会話の補助線となり、心の距離を縮めてくれることでしょう。美味しい料理とともに、独特なディスプレイで彩られた空間は、心地よい音楽が流れる中で、あたかも夢の中にいるかのような、至福の時間を提供します。
周辺には、歴史と文化が息づく中目黒の街が広がっています。散策すれば、アートギャラリーや隠れ家的なカフェが点在し、あなたの感性をさらに刺激してくれるのです。美しい川沿いの桜並木では、春には花びらが舞い散り、秋には紅葉が色づく様子が、あなたの目を楽しませてくれます。この街での生活は、まさに心豊かなアートの一部となり、あなたの人生をより深めてくれることでしょう。
中目黒アトラスタワー 38階 57.72㎡での生活は、ただの住まいではなく、あなたの人生を特別なものに変える場所です。高級感と心地よさが調和したこの空間で、あなた自身の物語を紡いでみてはいかがでしょうか。どんな瞬間も特別に感じられるこのタワーは、あなたの新たな舞台となることを心より願っています。
バイブルスコア
バイブルスコア: 39.9
平均的なスコアです。
※バイブルスコア詳細はこちら
バイブルスコアとは独自のAI機械学習技術を利用した物件評価システムで、物件のおすすめ度を示します。最高得点は100点で、スコアが高いほど、よりおすすめの物件と評価されています。
写真
契約条件
| 賃料 | 予想金額:475,000〜495,000円程度 | 管理費 | 予想金額:13,000〜17,000円程度 |
| 礼金 | 非公開(アーカイブ) | 敷金 | 非公開(アーカイブ) |
| フリーレント | なし | 平米数 | 57.72㎡ |
| 間取り | 2LDK+WIC | 大型収納 | WIC |
| 契約期間 | 4年間 | 方角 | 西 |
| 更新料 | 契約期間を参照 | 契約形態 | 定期借家契約 4年間 |
| 取引態様 | 媒介 | 内見状況 | 入居中 |
| 入居時期 | 入居中 | SOHO・事務所 | 不可 |
| ペット | 可 | 間取り内訳 | LDK11.7帖 洋室5.2帖 洋室3.6帖 |
| キャンペーン情報・備考 | 本情報は賃料改定交渉の資料作成、収益物件の利回り試算、周辺エリアや最寄り駅の坪単価分析、次回募集開始時期の予測などにご活用いただけます。 | ||
※「どの不動産に頼めばいいのか分からない」「信頼できる営業マンの話を聞きたい」「一番親切な会社と契約したい」とお悩みの方におすすめなのが「高級賃貸バイブル」です。
高級賃貸バイブルは業界10年以上の熟練スタッフ群がお客様ファーストで対応します。
下記ボタンから、まずは無料でご相談下さい。
※内覧をご希望の際には、どうぞ物件のエントランス前にてお待ち合わせくださいませ。ご内覧後は、同じ場所でお別れとさせていただきます。お客様のご都合に合わせたスムーズなご案内を心がけておりますので、ご質問等がございましたら何なりとお申し付けください。 物件概要
| 物件名 |
| 築年月 |
|
|---|---|---|---|
| 所在地 | |||
| 交通 | |||
| 総戸数 |
| 総階数 |
|
| 構造 |
| ||
地図
物件までの道のりは、「拡大地図を表示」をクリックしてナビ機能をご利用ください。
部屋設備












建物設備

24時間管理

TVモニターホン

エレベーター

オートロック

ゲストルーム

バイク置場

フロントサービス

ラウンジ

宅配ボックス

敷地内ゴミ置場

管理人

駐車場平置き

駐車場機械式

駐輪場
中目黒アトラスタワーの現在募集中のお部屋
- No rooms found for this property.















