
| 賃料 | 予想金額:188,000〜208,000円程度 | 管理費 | 予想金額:23,000〜27,000円程度 |
| 礼金/敷金 | 非公開(アーカイブ) | 平米数 | 45.9㎡ |
| 初期費用概算(参考) | 目安:858,900〜958,900 円 | みなし賃料(月額・参考) | 227,810〜247,810 円 |
| 備考 | 本ページは過去募集のアーカイブです。表示の金額は周辺相場・過去募集を踏まえた参考レンジであり、実際の契約金額・条件ではありません。 | ||
※上記みなし賃料(月額)は仲介手数料割引・無料&キャッシュバックを加味した高級賃貸バイブル限定の金額です。一般的なみなし賃料とは異なります。
【建物ページ】パークハウス千駄ヶ谷の詳細・最新空室はこちら▶▶選ばれる理由
仲介手数料無料・キャンペーン情報(毎月15名様限定)
〇引っ越しお祝い金39600円プレゼント(キャッシュバック)
〇仲介手数料無料キャンペーン
パークハウス千駄ヶ谷 4階 45.9㎡の口コミ・レビュー
この特別な空間の中心には、LDK12.7帖の広がりがあり、そこでは毎朝、美味しいコーヒーの香りが漂ってきます…パークハウス千駄ヶ谷 4階 45.9㎡。これが、あなたを待ち侘びる心の拠り所です。四季折々の色彩を映す窓辺から、南東の光が差し込み、まるで朝焼けのように心を包み込みます。ここは単なる住まいではなく、一つの物語が始まる場所。東京の喧騒がほんの少し背後に引いて、静寂なる安らぎを抱いています。
この特別な空間の中心には、LDK12.7帖の広がりがあり、そこでは毎朝、美味しいコーヒーの香りが漂ってきます。その香りは、まるで自分だけのカフェがあるかのように、朝の始まりを優雅に演出します。優しい日差しが差し込むリビングで、大切な人と共に過ごす時間は、まるで映画のワンシーンのように、心の中に美しい記憶として刻まれます。
洋室6.2帖の空間は、まるで夢の中で出会う場所のように、あなたの心を優しく包み込みます。夜、穏やかな月明かりが窓から差し込み、静かにまどろむ時間は、深い眠りへと誘います。ここでの生活は、日々の小さな幸せを見つける旅そのもの。デザイナーズの美しい内装が、あなたの個性を引き立て、一歩踏み入れるたびに新たな世界を感じることでしょう。
さらに、パークハウス千駄ヶ谷には、あなたの安心と快適な生活を支える設備が揃っています。オートロックや宅配ボックス、管理人の存在が、心の余裕を与え、まるで大切な宝物を守るかのように、安心感を育みます。ここでの生活はただ過ごすだけのものではなく、心の豊かさを千駄ヶ谷の街と共に謳歌することなのです。
周囲には、文化と歴史が溢れ、まるで時を見つめる絵画のように美しい街並みが広がります。東京メトロ副都心線 北参道駅から徒歩3分という贅沢な立地は、現代のアートシーンや歴史的な名所に瞬時にアクセスできる特権。千駄ヶ谷の街で、人々の営みと伝統を肌で感じながら、心豊かな毎日を送ることができるのです。
パークハウス千駄ヶ谷 4階 45.9㎡。この場所で新たな生活の扉を開いてみませんか?時間が経つのを忘れるほどに心を満たす、あなただけの特別な物語が、ここから始まります。日々の生活が映画のシーンのように、美しく、豊かに彩られ、あなたを迎え入れることでしょう。この場所で、あなたの新しい人生の幕が上がることを、私は心から楽しみにしています。
バイブルスコア
バイブルスコア: 53.2
条件のいい物件です、引っ越しが2か月以内の場合は仮申し込みを検討すべき物件です。
このお部屋は、現在ご入居中のため空室情報はございません。ただし、将来的に募集が開始される際、バイブルスコアにおいて非常に高い評価が期待されます。特にご興味をお持ちの方は、今のうちにブックマークやお気に入りに登録していただくと、募集開始のお知らせをすぐに受け取ることができます。是非ともご検討くださいませ。
※バイブルスコア詳細はこちら
バイブルスコアとは独自のAI機械学習技術を利用した物件評価システムで、物件のおすすめ度を示します。最高得点は100点で、スコアが高いほど、よりおすすめの物件と評価されています。
写真
契約条件
| 賃料 | 予想金額:188,000〜208,000円程度 | 管理費 | 予想金額:23,000〜27,000円程度 |
| 礼金 | 非公開(アーカイブ) | 敷金 | 非公開(アーカイブ) |
| フリーレント | なし | 平米数 | 45.9㎡ |
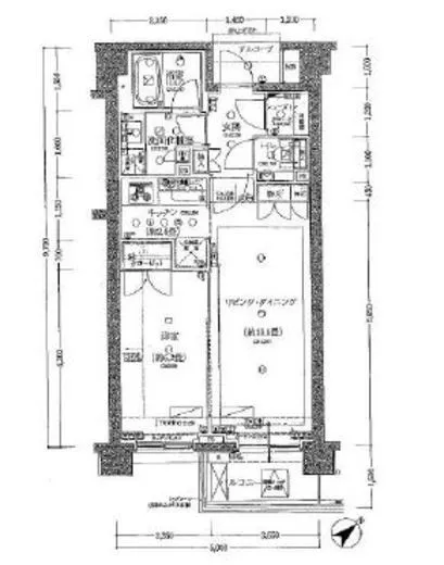
| 間取り | 1LDK+SIC | 大型収納 | SIC |
| 契約期間 | 2年 | 方角 | 南東 |
| 更新料 | 1ヶ月 | 契約形態 | 普通賃貸借契約 |
| 取引態様 | 媒介 | 内見状況 | 入居中 |
| 入居時期 | 入居中 | SOHO・事務所 | 不可 |
| ペット | 不可 | 間取り内訳 | LDK12.7帖 洋室6.2帖 |
| キャンペーン情報・備考 | 本情報は賃料改定交渉の資料作成、収益物件の利回り試算、周辺エリアや最寄り駅の坪単価分析、次回募集開始時期の予測などにご活用いただけます。 | ||
※「どの不動産に頼めばいいのか分からない」「信頼できる営業マンの話を聞きたい」「一番親切な会社と契約したい」とお悩みの方におすすめなのが「高級賃貸バイブル」です。
高級賃貸バイブルは業界10年以上の熟練スタッフ群がお客様ファーストで対応します。
下記ボタンから、まずは無料でご相談下さい。
※内覧をご希望の際には、どうぞ物件のエントランス前にてお待ち合わせくださいませ。ご内覧後は、同じ場所でお別れとさせていただきます。お客様のご都合に合わせたスムーズなご案内を心がけておりますので、ご質問等がございましたら何なりとお申し付けください。 物件概要
| 物件名 |
| 築年月 |
|
|---|---|---|---|
| 所在地 | |||
| 交通 | |||
| 総戸数 |
| 総階数 |
|
| 構造 |
| ||
地図
物件までの道のりは、「拡大地図を表示」をクリックしてナビ機能をご利用ください。
部屋設備











建物設備

TVモニターホン

エレベーター

オートロック

バイク置場

宅配ボックス

敷地内ゴミ置場

管理人

駐車場機械式

駐輪場
パークハウス千駄ヶ谷の現在募集中のお部屋
- パークハウス千駄ヶ谷 2階 74.32㎡ - 間取り: 2LDK+WIC - 賃料: 40万円





















