
| 賃料 | 予想金額:300,000〜320,000円程度 | 管理費 | 予想金額:500〜4,500円程度 |
| 礼金/敷金 | 非公開(アーカイブ) | 平米数 | 60.51㎡ |
| 初期費用概算(参考) | 目安:2,060,250〜2,160,250 円 | みなし賃料(月額・参考) | 340,005〜360,005 円 |
| 備考 | 本ページは過去募集のアーカイブです。表示の金額は周辺相場・過去募集を踏まえた参考レンジであり、実際の契約金額・条件ではありません。 | ||
※上記みなし賃料(月額)は仲介手数料割引・無料&キャッシュバックを加味した高級賃貸バイブル限定の金額です。一般的なみなし賃料とは異なります。
【建物ページ】銀座タワーの詳細・最新空室はこちら▶▶選ばれる理由
仲介手数料無料・キャンペーン情報(毎月15名様限定)
〇仲介手数料割引キャンペーン
銀座タワー 1703の口コミ・レビュー
銀座タワー 1703、ここはまるで都市の真ん中に浮かぶ宝石のような存在です。東京都中央区銀座という華やかな舞台の上で、あなたに特別な生活をお届けします。この美しいタワーは、高さにして1703の背を誇り、窓からの眺望は日々変わる街の景色に心を踊らせます。
入った瞬間、まるで異世界に誘われるかのような、洗練されたデザイン空間が広がります。リビングダイニングは8.7帖の心地よい広さを持ち、大きな窓から…銀座タワー 1703、ここはまるで都市の真ん中に浮かぶ宝石のような存在です。東京都中央区銀座という華やかな舞台の上で、あなたに特別な生活をお届けします。この美しいタワーは、高さにして1703の背を誇り、窓からの眺望は日々変わる街の景色に心を踊らせます。
入った瞬間、まるで異世界に誘われるかのような、洗練されたデザイン空間が広がります。リビングダイニングは8.7帖の心地よい広さを持ち、大きな窓から差し込む光が照らす空間は、まるで舞台のスポットライトのよう。朝の目覚めには、カーテンを開けると、銀座の朝日が優しく迎え入れてくれます。風に乗って漂う街の香りは、新鮮なコーヒーの香ばしさと共に、日常を特別な一日の始まりへと変えてくれるでしょう。
このタワーの特徴は、贅沢な設備とセキュリティの完璧さです。24時間体制の管理人が、あなたの生活を見守ってくれます。オートロックやTVモニターホンは、安心感を与え、心穏やかな生活をサポートします。エレベーターでの移動もスムーズで、訪れた友人や家族を迎えるのも思いのまま。宅配ボックスも完備されており、忙しい日々の中でも便利さを提供します。
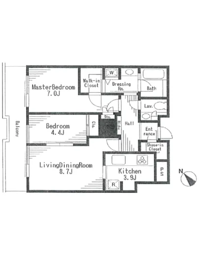
間取りは、洋室が7帖と4.4帖、さらにキッチンが3.9帖ある2LDK仕様です。個々の空間は、それぞれの時間を大切にするためにデザインされており、プライベートも豊かに保たれています。洋室の窓から見える景色は、夜になると明かりが瞬き、まるで無数の星たちがあなたを見守るかのよう。心地よい夜風が吹き抜けて、静かな耳元に響くのは、街のざわめきであり、生活の一部です。
銀座タワー 1703の生活は、まるで映画のワンシーン。大切な人と共に夜の銀座を散策し、高級レストランでのディナーを楽しむ。日中はショッピングやアートギャラリー巡りを存分に楽しめる贅沢さ。文化と歴史が交錯する街の中で、あなたの生活は色鮮やかに彩られ、まるで美しい絵画のように描かれていくことでしょう。
また、立地も抜群です。東京メトロ有楽町線の銀座一丁目駅まで徒歩4分。どこへ行くにもアクセスが便利なこの地点に、現代の利便性と伝統的な文化が融合した生活が待っています。その瞬間、あなたは日常の中に非日常を見出すことでしょう。
銀座タワー 1703は、ただの住まいではなく、あなた自身を映し出すキャンバス。美しさと機能性を兼ね備えたこの空間で、思い描いていた生活を実現し、自分自身を新たに発見してみませんか?ここでの毎日は、あなたの人生をより豊かに、より輝かしいものに変えていくことでしょう。
入った瞬間、まるで異世界に誘われるかのような、洗練されたデザイン空間が広がります。リビングダイニングは8.7帖の心地よい広さを持ち、大きな窓から…銀座タワー 1703、ここはまるで都市の真ん中に浮かぶ宝石のような存在です。東京都中央区銀座という華やかな舞台の上で、あなたに特別な生活をお届けします。この美しいタワーは、高さにして1703の背を誇り、窓からの眺望は日々変わる街の景色に心を踊らせます。
入った瞬間、まるで異世界に誘われるかのような、洗練されたデザイン空間が広がります。リビングダイニングは8.7帖の心地よい広さを持ち、大きな窓から差し込む光が照らす空間は、まるで舞台のスポットライトのよう。朝の目覚めには、カーテンを開けると、銀座の朝日が優しく迎え入れてくれます。風に乗って漂う街の香りは、新鮮なコーヒーの香ばしさと共に、日常を特別な一日の始まりへと変えてくれるでしょう。
このタワーの特徴は、贅沢な設備とセキュリティの完璧さです。24時間体制の管理人が、あなたの生活を見守ってくれます。オートロックやTVモニターホンは、安心感を与え、心穏やかな生活をサポートします。エレベーターでの移動もスムーズで、訪れた友人や家族を迎えるのも思いのまま。宅配ボックスも完備されており、忙しい日々の中でも便利さを提供します。
間取りは、洋室が7帖と4.4帖、さらにキッチンが3.9帖ある2LDK仕様です。個々の空間は、それぞれの時間を大切にするためにデザインされており、プライベートも豊かに保たれています。洋室の窓から見える景色は、夜になると明かりが瞬き、まるで無数の星たちがあなたを見守るかのよう。心地よい夜風が吹き抜けて、静かな耳元に響くのは、街のざわめきであり、生活の一部です。
銀座タワー 1703の生活は、まるで映画のワンシーン。大切な人と共に夜の銀座を散策し、高級レストランでのディナーを楽しむ。日中はショッピングやアートギャラリー巡りを存分に楽しめる贅沢さ。文化と歴史が交錯する街の中で、あなたの生活は色鮮やかに彩られ、まるで美しい絵画のように描かれていくことでしょう。
また、立地も抜群です。東京メトロ有楽町線の銀座一丁目駅まで徒歩4分。どこへ行くにもアクセスが便利なこの地点に、現代の利便性と伝統的な文化が融合した生活が待っています。その瞬間、あなたは日常の中に非日常を見出すことでしょう。
銀座タワー 1703は、ただの住まいではなく、あなた自身を映し出すキャンバス。美しさと機能性を兼ね備えたこの空間で、思い描いていた生活を実現し、自分自身を新たに発見してみませんか?ここでの毎日は、あなたの人生をより豊かに、より輝かしいものに変えていくことでしょう。
バイブルスコア
バイブルスコア: 18.2
高級な物件でない場合は割高な物件です。。
※バイブルスコア詳細はこちら
バイブルスコアとは独自のAI機械学習技術を利用した物件評価システムで、物件のおすすめ度を示します。最高得点は100点で、スコアが高いほど、よりおすすめの物件と評価されています。
写真
契約条件
| 賃料 | 予想金額:300,000〜320,000円程度 | 管理費 | 予想金額:500〜4,500円程度 |
| 礼金 | 非公開(アーカイブ) | 敷金 | 非公開(アーカイブ) |
| フリーレント | なし | 平米数 | 60.51㎡ |
| 間取り | 2LDK | 大型収納 | WIC+SIC |
| 契約期間 |
| 方角 | 北西 |
| 更新料 | 契約形態 | 普通賃貸借契約 | |
| 取引態様 | 媒介 | 内見状況 | 入居中 |
| 入居時期 | 入居中 | SOHO・事務所 | |
| ペット | 間取り内訳 | 洋:7 洋:4.4 LD:8.7 K:3.9 | |
| キャンペーン情報・備考 | 本情報は賃料改定交渉の資料作成、収益物件の利回り試算、周辺エリアや最寄り駅の坪単価分析、次回募集開始時期の予測などにご活用いただけます。 | ||
※「どの不動産に頼めばいいのか分からない」「信頼できる営業マンの話を聞きたい」「一番親切な会社と契約したい」とお悩みの方におすすめなのが「高級賃貸バイブル」です。
高級賃貸バイブルは業界10年以上の熟練スタッフ群がお客様ファーストで対応します。
下記ボタンから、まずは無料でご相談下さい。
※内覧をご希望の際には、どうぞ物件のエントランス前にてお待ち合わせくださいませ。ご内覧後は、同じ場所でお別れとさせていただきます。お客様のご都合に合わせたスムーズなご案内を心がけておりますので、ご質問等がございましたら何なりとお申し付けください。 物件概要
| 物件名 |
| 築年月 |
|
|---|---|---|---|
| 所在地 | |||
| 交通 | |||
| 総戸数 |
| 総階数 |
|
| 構造 |
| ||
地図
物件までの道のりは、「拡大地図を表示」をクリックしてナビ機能をご利用ください。
部屋設備


















建物設備

24時間管理

TVモニターホン

エレベーター

オートロック

バイク置場

ラウンジ

宅配ボックス

敷地内ゴミ置場

管理人

駐車場平置き

駐車場機械式

駐輪場
銀座タワーの現在募集中のお部屋
- No rooms found for this property.
















