
| 賃料 | 予想金額:104,000〜124,000円程度 | 管理費 | 予想金額:8,000〜12,000円程度 |
| 礼金/敷金 | 非公開(アーカイブ) | 平米数 | 26.5㎡ |
| 初期費用概算(参考) | 目安:455,500〜555,500 円 | みなし賃料(月額・参考) | 122,156〜142,156 円 |
| 備考 | 本ページは過去募集のアーカイブです。表示の金額は周辺相場・過去募集を踏まえた参考レンジであり、実際の契約金額・条件ではありません。 | ||
※上記みなし賃料(月額)は仲介手数料割引・無料&キャッシュバックを加味した高級賃貸バイブル限定の金額です。一般的なみなし賃料とは異なります。
【建物ページ】アールミュゼ南麻布の詳細・最新空室はこちら▶▶選ばれる理由
仲介手数料無料・キャンペーン情報(毎月15名様限定)
〇仲介手数料割引キャンペーン
アールミュゼ南麻布 401の口コミ・レビュー
アールミュゼ南麻布 401は、洗練された生活とアートが融合する特別な空間です。この美しい物件は、東京都港区南麻布1-12-8という恵まれたロケーションに佇み、まるで雄大なキャンバスの上に描かれた一枚の絵画のように、周囲の風景と調和しています。401号室は心地よい西向きの窓から、穏やかな夕日が差し込む時間帯に、やさしい光に包まれながら、日常の喧騒を忘れることができる場所です。
専有面積26.5㎡の…アールミュゼ南麻布 401は、洗練された生活とアートが融合する特別な空間です。この美しい物件は、東京都港区南麻布1-12-8という恵まれたロケーションに佇み、まるで雄大なキャンバスの上に描かれた一枚の絵画のように、周囲の風景と調和しています。401号室は心地よい西向きの窓から、穏やかな夕日が差し込む時間帯に、やさしい光に包まれながら、日常の喧騒を忘れることができる場所です。
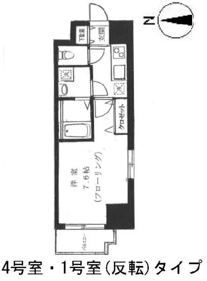
専有面積26.5㎡のこの空間は、まるで自分だけのアトリエのように、あなたの創造性をそっと刺激します。洋室は7.6帖というゆとりある間取りで、寛ぎの時間を演出するだけでなく、あなたの個性を映し出すキャンバスともなるでしょう。洗練されたインテリアに包まれながら、思い思いの時間を過ごすことができます。落ち着いた色合いの壁、優しい質感のフローリングは、まるであなたの心の安らぎを引き寄せるように設計されています。
エレベーターで上がった先には、オートロックで守られた静寂が待っています。これからの生活は、まるで映画のワンシーンのように、洗練された都会生活が繰り広げられます。宅配ボックスも完備されており、まるで小さな贈り物が毎日届くような楽しみを提供してくれるでしょう。
アールミュゼ南麻布 401という名は、単なる住居を超えた、あなたにとっての「サンクチュアリ」となることを約束します。近隣には歴史ある麻布十番の街並みが広がり、昔ながらの和菓子屋や現代的なカフェ、アートギャラリーなどが点在しています。散歩に出かけるだけで、芸術の香りや歴史の暖かさに触れることができ、心が洗われるような体験が広がります。
そして、味覚の旅もお忘れなく。地元のグルメに足を運ぶと、五感を揺さぶる新たな発見が待っています。風味豊かな料理や甘美なスイーツが、あなたの心を満たし、日々の暮らしに彩りを加えてくれることでしょう。
アールミュゼ南麻布 401は、生活の全てを洗練されたスタイルで体現する場所です。ここで新たな物語を紡ぎ出すあなたを、心からお待ち申し上げております。あなたの人生の舞台装置として、アールミュゼ南麻布 401が素晴らしい経験を提供してくれることでしょう。さあ、心のドアを開いて、未来の自分を迎え入れてください。
専有面積26.5㎡の…アールミュゼ南麻布 401は、洗練された生活とアートが融合する特別な空間です。この美しい物件は、東京都港区南麻布1-12-8という恵まれたロケーションに佇み、まるで雄大なキャンバスの上に描かれた一枚の絵画のように、周囲の風景と調和しています。401号室は心地よい西向きの窓から、穏やかな夕日が差し込む時間帯に、やさしい光に包まれながら、日常の喧騒を忘れることができる場所です。
専有面積26.5㎡のこの空間は、まるで自分だけのアトリエのように、あなたの創造性をそっと刺激します。洋室は7.6帖というゆとりある間取りで、寛ぎの時間を演出するだけでなく、あなたの個性を映し出すキャンバスともなるでしょう。洗練されたインテリアに包まれながら、思い思いの時間を過ごすことができます。落ち着いた色合いの壁、優しい質感のフローリングは、まるであなたの心の安らぎを引き寄せるように設計されています。
エレベーターで上がった先には、オートロックで守られた静寂が待っています。これからの生活は、まるで映画のワンシーンのように、洗練された都会生活が繰り広げられます。宅配ボックスも完備されており、まるで小さな贈り物が毎日届くような楽しみを提供してくれるでしょう。
アールミュゼ南麻布 401という名は、単なる住居を超えた、あなたにとっての「サンクチュアリ」となることを約束します。近隣には歴史ある麻布十番の街並みが広がり、昔ながらの和菓子屋や現代的なカフェ、アートギャラリーなどが点在しています。散歩に出かけるだけで、芸術の香りや歴史の暖かさに触れることができ、心が洗われるような体験が広がります。
そして、味覚の旅もお忘れなく。地元のグルメに足を運ぶと、五感を揺さぶる新たな発見が待っています。風味豊かな料理や甘美なスイーツが、あなたの心を満たし、日々の暮らしに彩りを加えてくれることでしょう。
アールミュゼ南麻布 401は、生活の全てを洗練されたスタイルで体現する場所です。ここで新たな物語を紡ぎ出すあなたを、心からお待ち申し上げております。あなたの人生の舞台装置として、アールミュゼ南麻布 401が素晴らしい経験を提供してくれることでしょう。さあ、心のドアを開いて、未来の自分を迎え入れてください。
バイブルスコア
バイブルスコア: 38.2
平均的なスコアです。
※バイブルスコア詳細はこちら
バイブルスコアとは独自のAI機械学習技術を利用した物件評価システムで、物件のおすすめ度を示します。最高得点は100点で、スコアが高いほど、よりおすすめの物件と評価されています。
写真
契約条件
| 賃料 | 予想金額:104,000〜124,000円程度 | 管理費 | 予想金額:8,000〜12,000円程度 |
| 礼金 | 非公開(アーカイブ) | 敷金 | 非公開(アーカイブ) |
| フリーレント | なし | 平米数 | 26.5㎡ |
| 間取り | 1K | 大型収納 | |
| 契約期間 |
| 方角 | 西 |
| 更新料 | 契約形態 | 普通賃貸借契約 | |
| 取引態様 | 媒介 | 内見状況 | 入居中 |
| 入居時期 | 入居中 | SOHO・事務所 | |
| ペット | 間取り内訳 | 洋:7.6 | |
| キャンペーン情報・備考 | 本情報は賃料改定交渉の資料作成、収益物件の利回り試算、周辺エリアや最寄り駅の坪単価分析、次回募集開始時期の予測などにご活用いただけます。 | ||
※「どの不動産に頼めばいいのか分からない」「信頼できる営業マンの話を聞きたい」「一番親切な会社と契約したい」とお悩みの方におすすめなのが「高級賃貸バイブル」です。
高級賃貸バイブルは業界10年以上の熟練スタッフ群がお客様ファーストで対応します。
下記ボタンから、まずは無料でご相談下さい。
※内覧をご希望の際には、どうぞ物件のエントランス前にてお待ち合わせくださいませ。ご内覧後は、同じ場所でお別れとさせていただきます。お客様のご都合に合わせたスムーズなご案内を心がけておりますので、ご質問等がございましたら何なりとお申し付けください。 物件概要
| 物件名 |
| 築年月 |
|
|---|---|---|---|
| 所在地 | |||
| 交通 | |||
| 総戸数 |
| 総階数 |
|
| 構造 |
| ||
地図
物件までの道のりは、「拡大地図を表示」をクリックしてナビ機能をご利用ください。
部屋設備















建物設備

TVモニターホン

エレベーター

オートロック

宅配ボックス

駐輪場
アールミュゼ南麻布の現在募集中のお部屋
- No rooms found for this property.
























