
| 賃料 | 予想金額:1,265,000〜1,285,000円程度 | 管理費 | 予想金額:0〜2,000円程度 |
| 礼金/敷金 | 非公開(アーカイブ) | 平米数 | 152.56㎡ |
| 初期費用概算(参考) | 目安:7,054,000〜7,154,000 円 | みなし賃料(月額・参考) | 1,386,438〜1,406,438 円 |
| 備考 | 本ページは過去募集のアーカイブです。表示の金額は周辺相場・過去募集を踏まえた参考レンジであり、実際の契約金額・条件ではありません。 | ||
※上記みなし賃料(月額)は仲介手数料割引・無料&キャッシュバックを加味した高級賃貸バイブル限定の金額です。一般的なみなし賃料とは異なります。
【建物ページ】ブリスベージュ神宮前の詳細・最新空室はこちら▶▶選ばれる理由
仲介手数料無料・キャンペーン情報(毎月15名様限定)
〇仲介手数料割引キャンペーン
ブリスベージュ神宮前 608の口コミ・レビュー
ブリスベージュ神宮前 608。これがあなたの新しい生活の舞台となる場所です。東京の喧噪から少し離れた、神宮前の静謐な空間に佇むこの高級賃貸物件は、まるで魅惑の宝石のように、上品さと機能性を兼ね備えています。最寄りのJR山手線原宿駅から徒歩3分の距離にありながら、南の心地よい光が部屋を包み込むこの空間で、思い出の一つひとつを紡いでいくことができるのです。
ブリスベージュ神宮前 608の内部に足を踏…ブリスベージュ神宮前 608。これがあなたの新しい生活の舞台となる場所です。東京の喧噪から少し離れた、神宮前の静謐な空間に佇むこの高級賃貸物件は、まるで魅惑の宝石のように、上品さと機能性を兼ね備えています。最寄りのJR山手線原宿駅から徒歩3分の距離にありながら、南の心地よい光が部屋を包み込むこの空間で、思い出の一つひとつを紡いでいくことができるのです。
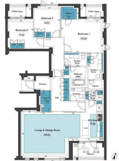
ブリスベージュ神宮前 608の内部に足を踏み入れると、まるでアートギャラリーにいるかのような感覚を覚えます。広がるLDKは23.5帖の壮大さ。大きな窓から差し込む陽光は、空気を優しく明るく照らし、その光の中であなたの肌を撫でる微かな風が心地よさを運びます。オープンキッチンと続くこの空間は、料理の香ばしい香りが漂い、あなたの五感を刺激してきます。7.2帖のキッチンで、友人や家族と共に美味しい料理をシェアする時間は、まるで映画のワンシーンから抜け出したような特別な瞬間です。
個々の寝室も、ブリスベージュ神宮前 608の魅力の一部です。12.4帖、7.4帖、6.7帖と、それぞれの部屋が持つ個性が見事に調和しています。静かな夜、心地よい眠りに誘われる瞬間、枕元にはやわらかな光が宿り、長い一日の疲れを忘れさせてくれます。窓を開けると、外の街並みから流れてくる音楽のようなざわめきが、まるで情緒豊かなメロディーのように耳に心地よく響きます。
住む場所には、ただの居住空間以上の物語があります。ブリスベージュ神宮前 608は、その一つ一つがあなたの生活の一部となるでしょう。エレガントなデザインと最新の設備が織りなすこの空間では、24時間管理の安心感に包まれ、フロントサービスやフィットネスルーム、プール、ラウンジが、特別なひとときを演出します。宅配ボックスや駐輪場など、現代的な利便性も兼ね備えています。
南向きの居住空間で、日の出と共に新たな一日が始まります。朝の光が心を満たし、窓の外には美しい景色が広がっています。周囲の緑と文化的な歴史が融合するこの地区は、アートやクリエイティブな活動に満ちています。ブリスベージュ神宮前 608での生活が、あなた自身の物語を彩るキャンバスとなるのです。
渋谷区神宮前の豊かな文化を感じながら、日々の暮らしを楽しむ。自らの手で自分だけのスタイルを作り出し、世界に一つだけの生活を楽しむことができる場所、それがブリスベージュ神宮前 608です。すべての瞬間が特別で輝くものであるように、あなたの新しい生活の第一歩を踏み出す瞬間が、ついに訪れました。あなたの物語を書き始める準備は整っていますか?
ブリスベージュ神宮前 608の内部に足を踏…ブリスベージュ神宮前 608。これがあなたの新しい生活の舞台となる場所です。東京の喧噪から少し離れた、神宮前の静謐な空間に佇むこの高級賃貸物件は、まるで魅惑の宝石のように、上品さと機能性を兼ね備えています。最寄りのJR山手線原宿駅から徒歩3分の距離にありながら、南の心地よい光が部屋を包み込むこの空間で、思い出の一つひとつを紡いでいくことができるのです。
ブリスベージュ神宮前 608の内部に足を踏み入れると、まるでアートギャラリーにいるかのような感覚を覚えます。広がるLDKは23.5帖の壮大さ。大きな窓から差し込む陽光は、空気を優しく明るく照らし、その光の中であなたの肌を撫でる微かな風が心地よさを運びます。オープンキッチンと続くこの空間は、料理の香ばしい香りが漂い、あなたの五感を刺激してきます。7.2帖のキッチンで、友人や家族と共に美味しい料理をシェアする時間は、まるで映画のワンシーンから抜け出したような特別な瞬間です。
個々の寝室も、ブリスベージュ神宮前 608の魅力の一部です。12.4帖、7.4帖、6.7帖と、それぞれの部屋が持つ個性が見事に調和しています。静かな夜、心地よい眠りに誘われる瞬間、枕元にはやわらかな光が宿り、長い一日の疲れを忘れさせてくれます。窓を開けると、外の街並みから流れてくる音楽のようなざわめきが、まるで情緒豊かなメロディーのように耳に心地よく響きます。
住む場所には、ただの居住空間以上の物語があります。ブリスベージュ神宮前 608は、その一つ一つがあなたの生活の一部となるでしょう。エレガントなデザインと最新の設備が織りなすこの空間では、24時間管理の安心感に包まれ、フロントサービスやフィットネスルーム、プール、ラウンジが、特別なひとときを演出します。宅配ボックスや駐輪場など、現代的な利便性も兼ね備えています。
南向きの居住空間で、日の出と共に新たな一日が始まります。朝の光が心を満たし、窓の外には美しい景色が広がっています。周囲の緑と文化的な歴史が融合するこの地区は、アートやクリエイティブな活動に満ちています。ブリスベージュ神宮前 608での生活が、あなた自身の物語を彩るキャンバスとなるのです。
渋谷区神宮前の豊かな文化を感じながら、日々の暮らしを楽しむ。自らの手で自分だけのスタイルを作り出し、世界に一つだけの生活を楽しむことができる場所、それがブリスベージュ神宮前 608です。すべての瞬間が特別で輝くものであるように、あなたの新しい生活の第一歩を踏み出す瞬間が、ついに訪れました。あなたの物語を書き始める準備は整っていますか?
バイブルスコア
バイブルスコア: 16.5
高級な物件でない場合は割高な物件です。。
※バイブルスコア詳細はこちら
バイブルスコアとは独自のAI機械学習技術を利用した物件評価システムで、物件のおすすめ度を示します。最高得点は100点で、スコアが高いほど、よりおすすめの物件と評価されています。
写真
契約条件
| 賃料 | 予想金額:1,265,000〜1,285,000円程度 | 管理費 | 予想金額:0〜2,000円程度 |
| 礼金 | 非公開(アーカイブ) | 敷金 | 非公開(アーカイブ) |
| フリーレント | なし | 平米数 | 152.56㎡ |
| 間取り | 3LDK | 大型収納 | WIC+SIC |
| 契約期間 | 方角 | 南 | |
| 更新料 | 契約形態 | 定期借家契約 | |
| 取引態様 | 媒介 | 内見状況 | 入居中 |
| 入居時期 | 入居中 | SOHO・事務所 | |
| ペット | 間取り内訳 | LD=23.5 / K=7.2J / BR=12.4J / BR=7.4J / BR=6.7J | |
| キャンペーン情報・備考 | 本情報は賃料改定交渉の資料作成、収益物件の利回り試算、周辺エリアや最寄り駅の坪単価分析、次回募集開始時期の予測などにご活用いただけます。 | ||
※「どの不動産に頼めばいいのか分からない」「信頼できる営業マンの話を聞きたい」「一番親切な会社と契約したい」とお悩みの方におすすめなのが「高級賃貸バイブル」です。
高級賃貸バイブルは業界10年以上の熟練スタッフ群がお客様ファーストで対応します。
下記ボタンから、まずは無料でご相談下さい。
※内覧をご希望の際には、どうぞ物件のエントランス前にてお待ち合わせくださいませ。ご内覧後は、同じ場所でお別れとさせていただきます。お客様のご都合に合わせたスムーズなご案内を心がけておりますので、ご質問等がございましたら何なりとお申し付けください。 物件概要
| 物件名 |
| 築年月 |
|
|---|---|---|---|
| 所在地 | |||
| 交通 |
| ||
| 総戸数 |
| 総階数 |
|
| 構造 |
| ||
地図
物件までの道のりは、「拡大地図を表示」をクリックしてナビ機能をご利用ください。
部屋設備



















建物設備

24時間管理

TVモニターホン

エレベーター

オートロック

バイク置場

フィットネス

フロントサービス

プール

ラウンジ

宅配ボックス

敷地内ゴミ置場

管理人

駐車場平置き

駐車場機械式

駐輪場
ブリスベージュ神宮前の現在募集中のお部屋
- No rooms found for this property.











