
| 賃料 | 予想金額:990,000〜1,010,000円程度 | 管理費 | 予想金額:0〜2,000円程度 |
| 礼金/敷金 | 非公開(アーカイブ) | 平米数 | 150.4㎡ |
| 初期費用概算(参考) | 目安:4,541,500〜4,641,500 円 | みなし賃料(月額・参考) | 1,064,823〜1,084,823 円 |
| 備考 | 本ページは過去募集のアーカイブです。表示の金額は周辺相場・過去募集を踏まえた参考レンジであり、実際の契約金額・条件ではありません。 | ||
※上記みなし賃料(月額)は仲介手数料割引・無料&キャッシュバックを加味した高級賃貸バイブル限定の金額です。一般的なみなし賃料とは異なります。
【建物ページ】代官山桜の丘の詳細・最新空室はこちら▶▶選ばれる理由
仲介手数料無料・キャンペーン情報(毎月15名様限定)
〇仲介手数料割引キャンペーン
代官山桜の丘 403の口コミ・レビュー
代官山桜の丘 403。あなたの新しい生活がこの特別な空間で始まる瞬間を、今ここに描き出します。落ち着いた風情をたたえたこの住まいは、まるであなたを迎え入れる温かい抱擁のようです。代官山の街が綴る美しい物語の一部となり、日々の暮らしを映画のワンシーンのように彩ります。
この403号室は、南東に面した窓から射し込む陽光によって、一日の始まりが優雅に目覚める場所。広々としたLDK29.2帖は、まるで贅…代官山桜の丘 403。あなたの新しい生活がこの特別な空間で始まる瞬間を、今ここに描き出します。落ち着いた風情をたたえたこの住まいは、まるであなたを迎え入れる温かい抱擁のようです。代官山の街が綴る美しい物語の一部となり、日々の暮らしを映画のワンシーンのように彩ります。
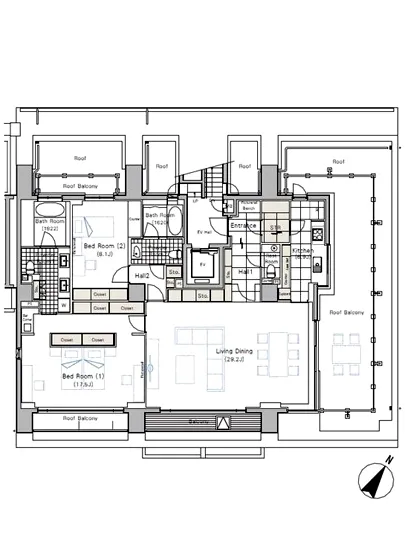
この403号室は、南東に面した窓から射し込む陽光によって、一日の始まりが優雅に目覚める場所。広々としたLDK29.2帖は、まるで贅沢な舞台となり、あなたのアイデアがゆったりと舞うことを許します。朝食を楽しむ時間、友人との語らい、静かな読書のひととき ― どのシーンもここにしかない特別な体験へと変わります。隣接するキッチン6.9帖は、色とりどりの野菜やスパイス、香ばしいパンの香りに包まれ、食材が調理を待ちわびる我が家の心臓部となります。
代官山桜の丘 403には、17.5帖の寝室があり、この広さはまるであなたの夢が広がるためのキャンバス。白い壁面にかけられたアートが、毎晩の安らぎとインスピレーションをもたらし、目を閉じた瞬間、あなたの想像の世界に誘います。さらに、8.1帖の洋室は、家族や来客のために、また、静かな隠れ家として利用できる、多様性を持った空間です。
その周囲には、代官山の洗練された文化と歴史の香りが漂い、たとえば、街の一角に佇むカフェからは、焼き立てのスコーンと淹れたてのコーヒーの香りが漂います。この街は、アートとファッション、そして人々の物語で満ちており、歩を進めるごとに新たな発見が待っていることでしょう。
代官山桜の丘 403の魅力は、ただの居住空間にとどまらず、生活の質を高めるための全てのエッセンスが詰まっています。24時間体制の管理や、オートロック、宅配ボックスなど、快適さを追求した設備が整い、まるで日常が特別な贅沢に昇華されていくかのようです。バイク置場や駐輪場、機械式駐車場も完備しており、利便性は抜群です。
感覚を刺激するこの場所は、あなたの人生の新たな章を、豊かに彩る舞台になることでしょう。代官山桜の丘 403は、ただの住まいではなく、居心地の良い空間から、深い情熱や創造を喚起する場へと変わるのです。この場所で、心ゆくまで人生を楽しむ準備を整えてください。あなたの新しい生活が、ここに息づく日を心から待ち望んでいます。
この403号室は、南東に面した窓から射し込む陽光によって、一日の始まりが優雅に目覚める場所。広々としたLDK29.2帖は、まるで贅…代官山桜の丘 403。あなたの新しい生活がこの特別な空間で始まる瞬間を、今ここに描き出します。落ち着いた風情をたたえたこの住まいは、まるであなたを迎え入れる温かい抱擁のようです。代官山の街が綴る美しい物語の一部となり、日々の暮らしを映画のワンシーンのように彩ります。
この403号室は、南東に面した窓から射し込む陽光によって、一日の始まりが優雅に目覚める場所。広々としたLDK29.2帖は、まるで贅沢な舞台となり、あなたのアイデアがゆったりと舞うことを許します。朝食を楽しむ時間、友人との語らい、静かな読書のひととき ― どのシーンもここにしかない特別な体験へと変わります。隣接するキッチン6.9帖は、色とりどりの野菜やスパイス、香ばしいパンの香りに包まれ、食材が調理を待ちわびる我が家の心臓部となります。
代官山桜の丘 403には、17.5帖の寝室があり、この広さはまるであなたの夢が広がるためのキャンバス。白い壁面にかけられたアートが、毎晩の安らぎとインスピレーションをもたらし、目を閉じた瞬間、あなたの想像の世界に誘います。さらに、8.1帖の洋室は、家族や来客のために、また、静かな隠れ家として利用できる、多様性を持った空間です。
その周囲には、代官山の洗練された文化と歴史の香りが漂い、たとえば、街の一角に佇むカフェからは、焼き立てのスコーンと淹れたてのコーヒーの香りが漂います。この街は、アートとファッション、そして人々の物語で満ちており、歩を進めるごとに新たな発見が待っていることでしょう。
代官山桜の丘 403の魅力は、ただの居住空間にとどまらず、生活の質を高めるための全てのエッセンスが詰まっています。24時間体制の管理や、オートロック、宅配ボックスなど、快適さを追求した設備が整い、まるで日常が特別な贅沢に昇華されていくかのようです。バイク置場や駐輪場、機械式駐車場も完備しており、利便性は抜群です。
感覚を刺激するこの場所は、あなたの人生の新たな章を、豊かに彩る舞台になることでしょう。代官山桜の丘 403は、ただの住まいではなく、居心地の良い空間から、深い情熱や創造を喚起する場へと変わるのです。この場所で、心ゆくまで人生を楽しむ準備を整えてください。あなたの新しい生活が、ここに息づく日を心から待ち望んでいます。
バイブルスコア
バイブルスコア: 10.7
高級な物件でない場合は割高な物件です。。
※バイブルスコア詳細はこちら
バイブルスコアとは独自のAI機械学習技術を利用した物件評価システムで、物件のおすすめ度を示します。最高得点は100点で、スコアが高いほど、よりおすすめの物件と評価されています。
写真
契約条件
| 賃料 | 予想金額:990,000〜1,010,000円程度 | 管理費 | 予想金額:0〜2,000円程度 |
| 礼金 | 非公開(アーカイブ) | 敷金 | 非公開(アーカイブ) |
| フリーレント | なし | 平米数 | 150.4㎡ |
| 間取り | 2LDK | 大型収納 | SIC+Sto |
| 契約期間 |
| 方角 | 南東 |
| 更新料 | 契約形態 | 普通賃貸借契約 | |
| 取引態様 | 媒介 | 内見状況 | 入居中 |
| 入居時期 | 入居中 | SOHO・事務所 | |
| ペット | ペット可 | 間取り内訳 | LD=29.2J / K=6.9J / BR=17.5J / 8.1J |
| キャンペーン情報・備考 | 本情報は賃料改定交渉の資料作成、収益物件の利回り試算、周辺エリアや最寄り駅の坪単価分析、次回募集開始時期の予測などにご活用いただけます。 | ||
※「どの不動産に頼めばいいのか分からない」「信頼できる営業マンの話を聞きたい」「一番親切な会社と契約したい」とお悩みの方におすすめなのが「高級賃貸バイブル」です。
高級賃貸バイブルは業界10年以上の熟練スタッフ群がお客様ファーストで対応します。
下記ボタンから、まずは無料でご相談下さい。
※内覧をご希望の際には、どうぞ物件のエントランス前にてお待ち合わせくださいませ。ご内覧後は、同じ場所でお別れとさせていただきます。お客様のご都合に合わせたスムーズなご案内を心がけておりますので、ご質問等がございましたら何なりとお申し付けください。 物件概要
| 物件名 |
| 築年月 |
|
|---|---|---|---|
| 所在地 | |||
| 交通 | |||
| 総戸数 |
| 総階数 |
|
| 構造 |
| ||
地図
物件までの道のりは、「拡大地図を表示」をクリックしてナビ機能をご利用ください。
部屋設備






















建物設備

24時間管理

TVモニターホン

エレベーター

オートロック

バイク置場

宅配ボックス

敷地内ゴミ置場

管理人

駐車場機械式

駐輪場
代官山桜の丘の現在募集中のお部屋
- No rooms found for this property.















