
| 賃料 | 予想金額:88,000〜108,000円程度 | 管理費 | 予想金額:7,000〜11,000円程度 |
| 礼金/敷金 | 非公開(アーカイブ) | 平米数 | 20.66㎡ |
| 初期費用概算(参考) | 目安:333,000〜433,000 円 | みなし賃料(月額・参考) | 102,938〜122,938 円 |
| 備考 | 本ページは過去募集のアーカイブです。表示の金額は周辺相場・過去募集を踏まえた参考レンジであり、実際の契約金額・条件ではありません。 | ||
※上記みなし賃料(月額)は仲介手数料割引・無料&キャッシュバックを加味した高級賃貸バイブル限定の金額です。一般的なみなし賃料とは異なります。
【建物ページ】トーシンフェニックス赤坂の詳細・最新空室はこちら▶▶選ばれる理由
仲介手数料無料・キャンペーン情報(毎月15名様限定)
〇引っ越しお祝い金10000円プレゼント(キャッシュバック)
〇仲介手数料無料キャンペーン
トーシンフェニックス赤坂 702の口コミ・レビュー
トーシンフェニックス赤坂 702——この名は単なる住所ではなく、都市という舞台の中で一つの物語が紡がれる場所の象徴です。702号室は、まるで洗練された宝石のように輝く存在で、あなたを迎え入れる準備が整っています。専有面積20.66㎡というコンパクトな空間には、想像を超える可能性が秘められています。その中で、生活がまるで映画のワンシーンのように展開されることでしょう。
東を向く大きな窓からは、朝日…トーシンフェニックス赤坂 702——この名は単なる住所ではなく、都市という舞台の中で一つの物語が紡がれる場所の象徴です。702号室は、まるで洗練された宝石のように輝く存在で、あなたを迎え入れる準備が整っています。専有面積20.66㎡というコンパクトな空間には、想像を超える可能性が秘められています。その中で、生活がまるで映画のワンシーンのように展開されることでしょう。
東を向く大きな窓からは、朝日の光が一筋の金色の糸となって差し込み、あなたの目覚めを優しく包み込みます。まるで新たな一日の扉を開くかのように、光とともに幸福感が漂う瞬間です。キッチンの香ばしい匂いが漂う中、朝食の準備を進めていると、食材の新鮮な匂いが心地よく感じられることでしょう。窓の外では、赤坂の街並みが目に飛び込んできて、文化と歴史が交錯する暮らしが始まります。
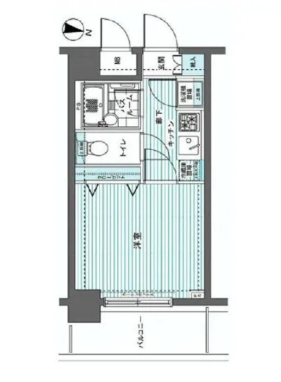
この部屋は、洋室6.3帖の広さの中に、あなたが心からくつろげる場所を提供します。特別な日常の一瞬一瞬が、まるで映画の名シーンのように鮮やかに記憶されるのです。お気に入りのソファに身を沈め、流れる風を感じながら、読書に耽る時間は、まさに至福の瞬間。あなたの心の奥に宿る夢が、この空間で育まれます。
トーシンフェニックス赤坂 702には、現代的な設備も備わっています。TVモニターホンが、訪問者の存在を感じさせてくれ、あなたの安心感を高めます。エレベーターはこの高級感溢れるマンションのアクセントとなり、まるで上品な舞踏会の扉を開けるかのような体験を提供します。オートロックと宅配ボックスが、あなたの日常の中に安全と便利さという二つの翼をもたらします。
生活空間の魅力だけでなく、周辺には歴史と文化が息づいています。東京メトロ千代田線の赤坂駅から徒歩4分の距離には、伝統的な文化やアートが息づく場所が点在し、心を洗うような散策が楽しめます。街を歩けば、心の中にあるアートが自然と呼び起こされ、思い描く日常の一コマ一コマが実現します。
トーシンフェニックス赤坂 702は、あなたの生活を、ただの「暮らし」ではなく、「特別な日常」に変えるためにここに存在しています。あなた自身の物語を、この空間で紡いでみませんか。赤坂の風を感じながら、心豊かな生活が待っています。選ばれた者だけの特権として、あなたにとっての「家」がここにあるのです。
東を向く大きな窓からは、朝日…トーシンフェニックス赤坂 702——この名は単なる住所ではなく、都市という舞台の中で一つの物語が紡がれる場所の象徴です。702号室は、まるで洗練された宝石のように輝く存在で、あなたを迎え入れる準備が整っています。専有面積20.66㎡というコンパクトな空間には、想像を超える可能性が秘められています。その中で、生活がまるで映画のワンシーンのように展開されることでしょう。
東を向く大きな窓からは、朝日の光が一筋の金色の糸となって差し込み、あなたの目覚めを優しく包み込みます。まるで新たな一日の扉を開くかのように、光とともに幸福感が漂う瞬間です。キッチンの香ばしい匂いが漂う中、朝食の準備を進めていると、食材の新鮮な匂いが心地よく感じられることでしょう。窓の外では、赤坂の街並みが目に飛び込んできて、文化と歴史が交錯する暮らしが始まります。
この部屋は、洋室6.3帖の広さの中に、あなたが心からくつろげる場所を提供します。特別な日常の一瞬一瞬が、まるで映画の名シーンのように鮮やかに記憶されるのです。お気に入りのソファに身を沈め、流れる風を感じながら、読書に耽る時間は、まさに至福の瞬間。あなたの心の奥に宿る夢が、この空間で育まれます。
トーシンフェニックス赤坂 702には、現代的な設備も備わっています。TVモニターホンが、訪問者の存在を感じさせてくれ、あなたの安心感を高めます。エレベーターはこの高級感溢れるマンションのアクセントとなり、まるで上品な舞踏会の扉を開けるかのような体験を提供します。オートロックと宅配ボックスが、あなたの日常の中に安全と便利さという二つの翼をもたらします。
生活空間の魅力だけでなく、周辺には歴史と文化が息づいています。東京メトロ千代田線の赤坂駅から徒歩4分の距離には、伝統的な文化やアートが息づく場所が点在し、心を洗うような散策が楽しめます。街を歩けば、心の中にあるアートが自然と呼び起こされ、思い描く日常の一コマ一コマが実現します。
トーシンフェニックス赤坂 702は、あなたの生活を、ただの「暮らし」ではなく、「特別な日常」に変えるためにここに存在しています。あなた自身の物語を、この空間で紡いでみませんか。赤坂の風を感じながら、心豊かな生活が待っています。選ばれた者だけの特権として、あなたにとっての「家」がここにあるのです。
バイブルスコア
バイブルスコア: 35.4
平均的なスコアです。
※バイブルスコア詳細はこちら
バイブルスコアとは独自のAI機械学習技術を利用した物件評価システムで、物件のおすすめ度を示します。最高得点は100点で、スコアが高いほど、よりおすすめの物件と評価されています。
写真
契約条件
| 賃料 | 予想金額:88,000〜108,000円程度 | 管理費 | 予想金額:7,000〜11,000円程度 |
| 礼金 | 非公開(アーカイブ) | 敷金 | 非公開(アーカイブ) |
| フリーレント | なし | 平米数 | 20.66㎡ |
| 間取り | 1K | 大型収納 | |
| 契約期間 |
| 方角 | 東 |
| 更新料 | 契約形態 | 普通賃貸借契約 | |
| 取引態様 | 媒介 | 内見状況 | 入居中 |
| 入居時期 | 入居中 | SOHO・事務所 | |
| ペット | 間取り内訳 | 洋室:6.3 | |
| キャンペーン情報・備考 | 本情報は賃料改定交渉の資料作成、収益物件の利回り試算、周辺エリアや最寄り駅の坪単価分析、次回募集開始時期の予測などにご活用いただけます。 | ||
※「どの不動産に頼めばいいのか分からない」「信頼できる営業マンの話を聞きたい」「一番親切な会社と契約したい」とお悩みの方におすすめなのが「高級賃貸バイブル」です。
高級賃貸バイブルは業界10年以上の熟練スタッフ群がお客様ファーストで対応します。
下記ボタンから、まずは無料でご相談下さい。
※内覧をご希望の際には、どうぞ物件のエントランス前にてお待ち合わせくださいませ。ご内覧後は、同じ場所でお別れとさせていただきます。お客様のご都合に合わせたスムーズなご案内を心がけておりますので、ご質問等がございましたら何なりとお申し付けください。 物件概要
| 物件名 |
| 築年月 |
|
|---|---|---|---|
| 所在地 | |||
| 交通 | |||
| 総戸数 |
| 総階数 |
|
| 構造 |
| ||
地図
物件までの道のりは、「拡大地図を表示」をクリックしてナビ機能をご利用ください。
部屋設備









建物設備

TVモニターホン

エレベーター

オートロック

宅配ボックス

敷地内ゴミ置場

駐輪場
トーシンフェニックス赤坂の現在募集中のお部屋
- No rooms found for this property.







