
| 賃料 | 予想金額:95,000〜115,000円程度 | 管理費 | 予想金額:0〜2,000円程度 |
| 礼金/敷金 | 非公開(アーカイブ) | 平米数 | 20.66㎡ |
| 初期費用概算(参考) | 目安:409,000〜509,000 円 | みなし賃料(月額・参考) | 102,375〜122,375 円 |
| 備考 | 本ページは過去募集のアーカイブです。表示の金額は周辺相場・過去募集を踏まえた参考レンジであり、実際の契約金額・条件ではありません。 | ||
※上記みなし賃料(月額)は仲介手数料割引・無料&キャッシュバックを加味した高級賃貸バイブル限定の金額です。一般的なみなし賃料とは異なります。
【建物ページ】トーシンフェニックス赤坂の詳細・最新空室はこちら▶▶選ばれる理由
仲介手数料無料・キャンペーン情報(毎月15名様限定)
〇仲介手数料割引キャンペーン
トーシンフェニックス赤坂 701の口コミ・レビュー
トーシンフェニックス赤坂 701。この名前はまるで美しいオアシスのように響き、住む人々に安らぎと贅沢な時間を約束します。701という特別な階数は、まるで空中に浮かぶ絵画のように、日々の喧騒から一歩離れた世界への入口を提供してくれます。この物件に足を踏み入れる瞬間、あなたは自分が特別な空間にいることをすぐに感じることでしょう。
東京都港区赤坂2-16-3に位置するトーシンフェニックス赤坂 701は…トーシンフェニックス赤坂 701。この名前はまるで美しいオアシスのように響き、住む人々に安らぎと贅沢な時間を約束します。701という特別な階数は、まるで空中に浮かぶ絵画のように、日々の喧騒から一歩離れた世界への入口を提供してくれます。この物件に足を踏み入れる瞬間、あなたは自分が特別な空間にいることをすぐに感じることでしょう。
東京都港区赤坂2-16-3に位置するトーシンフェニックス赤坂 701は、まるで都会の宝石のように、周囲の喧騒を忘れさせる静けさを抱えています。朝日が差し込む東向きの窓からは、柔らかな光が差し込み、まるで新しい一日を迎えるための祝福のように感じられます。この光景を眺めると、朝のコーヒーがさらに香ばしく、優雅なひとときを演出してくれるでしょう。
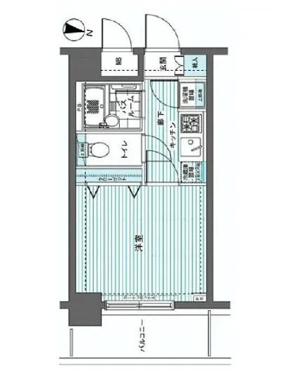
専有面積は20.66㎡、このコンパクトな空間には無限の可能性が広がっています。1Kの間取りは、あなたの想像力をかき立て、心のままにアレンジできる画布のようです。 comfortableなLDK11.6帖は、友人と過ごす時間や一人の静寂を楽しむ場として、あなたの心に寄り添います。洋室4.5帖には、洋風の小物やお気に入りの本を整然と並べ、その一つ一つが物語を紡いでいるかのように感じさせるでしょう。
トーシンフェニックス赤坂 701は、まるで親しい友人のようにあなたを迎え入れます。その温もりを感じるためには、まずはエレベーターで軽やかに701階へ。この瞬間、住まいの扉が開くと、心地よい空気があなたを包み込み、日常のストレスがどこかへ消えてしまうのです。TVモニターホンやオートロックが、安心感を与えてくれますので、心おきなく自分だけの時間を楽しむことができるでしょう。
周囲には東京メトロ千代田線の赤坂駅が徒歩4分の距離にあり、都心の華やかさを感じることができます。歴史と文化が息づく赤坂エリアは、まるで多彩なアートの舞台のよう。美しい庭園や洗練されたグルメ、そして歴史的な名所があなたを待ち受けています。散歩をしていると、ふと聞こえてくる街のざわめきが、まるで音楽の一部のように耳に心地よく響き、心が躍るのを感じることでしょう。
トーシンフェニックス赤坂 701での生活は、まるで映画のワンシーンのようにきらめいています。朝の光がカーテン越しに踊り、午後の柔らかな風が心を癒し、夜になれば星空があなたのベランダを彩ります。この特別な空間で、新たな物語が紡がれていくことでしょう。あなたの新しい生活の舞台、トーシンフェニックス赤坂 701が、心豊かな日々を演出し、人生の新たな章を開くことをお約束いたします。
東京都港区赤坂2-16-3に位置するトーシンフェニックス赤坂 701は…トーシンフェニックス赤坂 701。この名前はまるで美しいオアシスのように響き、住む人々に安らぎと贅沢な時間を約束します。701という特別な階数は、まるで空中に浮かぶ絵画のように、日々の喧騒から一歩離れた世界への入口を提供してくれます。この物件に足を踏み入れる瞬間、あなたは自分が特別な空間にいることをすぐに感じることでしょう。
東京都港区赤坂2-16-3に位置するトーシンフェニックス赤坂 701は、まるで都会の宝石のように、周囲の喧騒を忘れさせる静けさを抱えています。朝日が差し込む東向きの窓からは、柔らかな光が差し込み、まるで新しい一日を迎えるための祝福のように感じられます。この光景を眺めると、朝のコーヒーがさらに香ばしく、優雅なひとときを演出してくれるでしょう。
専有面積は20.66㎡、このコンパクトな空間には無限の可能性が広がっています。1Kの間取りは、あなたの想像力をかき立て、心のままにアレンジできる画布のようです。 comfortableなLDK11.6帖は、友人と過ごす時間や一人の静寂を楽しむ場として、あなたの心に寄り添います。洋室4.5帖には、洋風の小物やお気に入りの本を整然と並べ、その一つ一つが物語を紡いでいるかのように感じさせるでしょう。
トーシンフェニックス赤坂 701は、まるで親しい友人のようにあなたを迎え入れます。その温もりを感じるためには、まずはエレベーターで軽やかに701階へ。この瞬間、住まいの扉が開くと、心地よい空気があなたを包み込み、日常のストレスがどこかへ消えてしまうのです。TVモニターホンやオートロックが、安心感を与えてくれますので、心おきなく自分だけの時間を楽しむことができるでしょう。
周囲には東京メトロ千代田線の赤坂駅が徒歩4分の距離にあり、都心の華やかさを感じることができます。歴史と文化が息づく赤坂エリアは、まるで多彩なアートの舞台のよう。美しい庭園や洗練されたグルメ、そして歴史的な名所があなたを待ち受けています。散歩をしていると、ふと聞こえてくる街のざわめきが、まるで音楽の一部のように耳に心地よく響き、心が躍るのを感じることでしょう。
トーシンフェニックス赤坂 701での生活は、まるで映画のワンシーンのようにきらめいています。朝の光がカーテン越しに踊り、午後の柔らかな風が心を癒し、夜になれば星空があなたのベランダを彩ります。この特別な空間で、新たな物語が紡がれていくことでしょう。あなたの新しい生活の舞台、トーシンフェニックス赤坂 701が、心豊かな日々を演出し、人生の新たな章を開くことをお約束いたします。
バイブルスコア
バイブルスコア: 25.0
平均的なスコアです。
※バイブルスコア詳細はこちら
バイブルスコアとは独自のAI機械学習技術を利用した物件評価システムで、物件のおすすめ度を示します。最高得点は100点で、スコアが高いほど、よりおすすめの物件と評価されています。
写真
契約条件
| 賃料 | 予想金額:95,000〜115,000円程度 | 管理費 | 予想金額:0〜2,000円程度 |
| 礼金 | 非公開(アーカイブ) | 敷金 | 非公開(アーカイブ) |
| フリーレント | なし | 平米数 | 20.66㎡ |
| 間取り | 1K | 大型収納 | |
| 契約期間 |
| 方角 | 東 |
| 更新料 | 契約形態 | 普通賃貸借契約 | |
| 取引態様 | 媒介 | 内見状況 | 入居中 |
| 入居時期 | 入居中 | SOHO・事務所 | |
| ペット | 間取り内訳 | ||
| キャンペーン情報・備考 | 本情報は賃料改定交渉の資料作成、収益物件の利回り試算、周辺エリアや最寄り駅の坪単価分析、次回募集開始時期の予測などにご活用いただけます。 | ||
※「どの不動産に頼めばいいのか分からない」「信頼できる営業マンの話を聞きたい」「一番親切な会社と契約したい」とお悩みの方におすすめなのが「高級賃貸バイブル」です。
高級賃貸バイブルは業界10年以上の熟練スタッフ群がお客様ファーストで対応します。
下記ボタンから、まずは無料でご相談下さい。
※内覧をご希望の際には、どうぞ物件のエントランス前にてお待ち合わせくださいませ。ご内覧後は、同じ場所でお別れとさせていただきます。お客様のご都合に合わせたスムーズなご案内を心がけておりますので、ご質問等がございましたら何なりとお申し付けください。 物件概要
| 物件名 |
| 築年月 |
|
|---|---|---|---|
| 所在地 | |||
| 交通 | |||
| 総戸数 |
| 総階数 |
|
| 構造 |
| ||
地図
物件までの道のりは、「拡大地図を表示」をクリックしてナビ機能をご利用ください。
部屋設備









建物設備

TVモニターホン

エレベーター

オートロック

宅配ボックス

敷地内ゴミ置場

駐輪場
トーシンフェニックス赤坂の現在募集中のお部屋
- No rooms found for this property.







