
| 賃料 | 予想金額:180,000〜200,000円程度 | 管理費 | 予想金額:18,000〜22,000円程度 |
| 礼金/敷金 | 非公開(アーカイブ) | 平米数 | 45.13㎡ |
| 初期費用概算(参考) | 目安:433,200〜533,200 円 | みなし賃料(月額・参考) | 206,108〜226,108 円 |
| 備考 | 本ページは過去募集のアーカイブです。表示の金額は周辺相場・過去募集を踏まえた参考レンジであり、実際の契約金額・条件ではありません。 | ||
※上記みなし賃料(月額)は仲介手数料割引・無料&キャッシュバックを加味した高級賃貸バイブル限定の金額です。一般的なみなし賃料とは異なります。
【建物ページ】グランドメゾン南麻布の詳細・最新空室はこちら▶▶選ばれる理由
仲介手数料無料・キャンペーン情報(毎月15名様限定)
〇引っ越しお祝い金41800円プレゼント(キャッシュバック)
〇仲介手数料無料キャンペーン
グランドメゾン南麻布 604の口コミ・レビュー
グランドメゾン南麻布 604。この名を口にするだけで、心は高鳴り、夢の世界へと誘われます。この特別な空間は、まるで静寂の中に響く美しいメロディのように、あなたを包み込むのです。位置するは東京都港区南麻布、歴史と文化が息づく土地であり、都会の喧騒を忘れさせる安らぎのオアシスです。
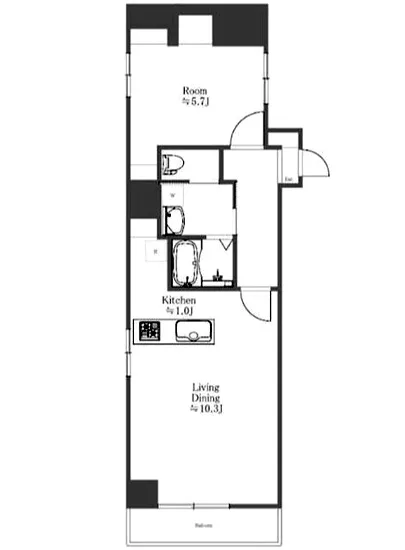
このグランドメゾン南麻布 604は、なんと45.13㎡の広がりを誇る1LDKという配置。玄関を開けた瞬間、洗練された空…グランドメゾン南麻布 604。この名を口にするだけで、心は高鳴り、夢の世界へと誘われます。この特別な空間は、まるで静寂の中に響く美しいメロディのように、あなたを包み込むのです。位置するは東京都港区南麻布、歴史と文化が息づく土地であり、都会の喧騒を忘れさせる安らぎのオアシスです。
このグランドメゾン南麻布 604は、なんと45.13㎡の広がりを誇る1LDKという配置。玄関を開けた瞬間、洗練された空間が広がります。洋室5.7帖の居心地の良さは、まるであなたを優しく包む雲のように柔らかく、心安らぐ時間を提供してくれることでしょう。窓から注がれるやわらかな光が、室内を温かく照らし出し、日々の喜びをかさねる舞台を整えます。
10.3帖のリビングダイニングは、まるで映画のワンシーンのように、家族や友人との忘れられないひとときを演出します。降るような陽光に照らされたこのスペースで、おしゃれなダイニングテーブルの周りに集まるひとたち。笑い声が響き渡り、心地よい香りがバターとともに漂い、まるで特別な食事を共にするための空間が存在するかのようです。
お料理好きな方には、キッチン1帖が小さな宝物のように感じられることでしょう。新鮮な野菜や香草の香りが広がる中、手元を動かし、愛情たっぷりの料理を創り上げる時間は、心の豊かさを育む重要なひとときです。あなたの思い出の数々がこのキッチンで生まれていくのです。
このグランドメゾン南麻布 604は、ただの住まいではありません。それは、あなたの生活を彩る舞台、さらには創造力を掻き立てるアトリエのような存在です。外へ出ると、麻布十番駅から徒歩8分という好立地が待っています。ここには、歴史ある街並みが広がり、洗練されたカフェや高級ブティックが点在する、まさに都会の真の姿を感じられる場所です。周囲にはアートギャラリーや美術館も点在し、文化と洗練の中で暮らす喜びが味わえます。
エレベーターでの上昇は、まるで自分自身が特別な存在であることを再確認させる瞬間。ヴィンテージ感漂う外観は、まるで時を超えて語りかけてくるかのようです。あなたはこの地で、新たな物語を紡いでいくことになるのです。このグランドメゾン南麻布 604の扉を開けたその時から、あなたの人生はさらなる美しさを手に入れることでしょう。あなたを待っているのは、ここにしかない特別な日常。さあ、新しい人生の1ページをここで始めてみませんか。
このグランドメゾン南麻布 604は、なんと45.13㎡の広がりを誇る1LDKという配置。玄関を開けた瞬間、洗練された空…グランドメゾン南麻布 604。この名を口にするだけで、心は高鳴り、夢の世界へと誘われます。この特別な空間は、まるで静寂の中に響く美しいメロディのように、あなたを包み込むのです。位置するは東京都港区南麻布、歴史と文化が息づく土地であり、都会の喧騒を忘れさせる安らぎのオアシスです。
このグランドメゾン南麻布 604は、なんと45.13㎡の広がりを誇る1LDKという配置。玄関を開けた瞬間、洗練された空間が広がります。洋室5.7帖の居心地の良さは、まるであなたを優しく包む雲のように柔らかく、心安らぐ時間を提供してくれることでしょう。窓から注がれるやわらかな光が、室内を温かく照らし出し、日々の喜びをかさねる舞台を整えます。
10.3帖のリビングダイニングは、まるで映画のワンシーンのように、家族や友人との忘れられないひとときを演出します。降るような陽光に照らされたこのスペースで、おしゃれなダイニングテーブルの周りに集まるひとたち。笑い声が響き渡り、心地よい香りがバターとともに漂い、まるで特別な食事を共にするための空間が存在するかのようです。
お料理好きな方には、キッチン1帖が小さな宝物のように感じられることでしょう。新鮮な野菜や香草の香りが広がる中、手元を動かし、愛情たっぷりの料理を創り上げる時間は、心の豊かさを育む重要なひとときです。あなたの思い出の数々がこのキッチンで生まれていくのです。
このグランドメゾン南麻布 604は、ただの住まいではありません。それは、あなたの生活を彩る舞台、さらには創造力を掻き立てるアトリエのような存在です。外へ出ると、麻布十番駅から徒歩8分という好立地が待っています。ここには、歴史ある街並みが広がり、洗練されたカフェや高級ブティックが点在する、まさに都会の真の姿を感じられる場所です。周囲にはアートギャラリーや美術館も点在し、文化と洗練の中で暮らす喜びが味わえます。
エレベーターでの上昇は、まるで自分自身が特別な存在であることを再確認させる瞬間。ヴィンテージ感漂う外観は、まるで時を超えて語りかけてくるかのようです。あなたはこの地で、新たな物語を紡いでいくことになるのです。このグランドメゾン南麻布 604の扉を開けたその時から、あなたの人生はさらなる美しさを手に入れることでしょう。あなたを待っているのは、ここにしかない特別な日常。さあ、新しい人生の1ページをここで始めてみませんか。
バイブルスコア
バイブルスコア: 31.6
平均的なスコアです。
※バイブルスコア詳細はこちら
バイブルスコアとは独自のAI機械学習技術を利用した物件評価システムで、物件のおすすめ度を示します。最高得点は100点で、スコアが高いほど、よりおすすめの物件と評価されています。
写真
契約条件
| 賃料 | 予想金額:180,000〜200,000円程度 | 管理費 | 予想金額:18,000〜22,000円程度 |
| 礼金 | 非公開(アーカイブ) | 敷金 | 非公開(アーカイブ) |
| フリーレント | なし | 平米数 | 45.13㎡ |
| 間取り | 1LDK | 大型収納 | なし |
| 契約期間 | 2年 | 方角 | |
| 更新料 | 1ヶ月 | 契約形態 | 普通賃貸借契約 |
| 取引態様 | 媒介 | 内見状況 | 入居中 |
| 入居時期 | 入居中 | SOHO・事務所 | 不可 |
| ペット | 不可 | 間取り内訳 | 洋:5.7 LD:10.3 K:1 |
| キャンペーン情報・備考 | 本情報は賃料改定交渉の資料作成、収益物件の利回り試算、周辺エリアや最寄り駅の坪単価分析、次回募集開始時期の予測などにご活用いただけます。 | ||
※「どの不動産に頼めばいいのか分からない」「信頼できる営業マンの話を聞きたい」「一番親切な会社と契約したい」とお悩みの方におすすめなのが「高級賃貸バイブル」です。
高級賃貸バイブルは業界10年以上の熟練スタッフ群がお客様ファーストで対応します。
下記ボタンから、まずは無料でご相談下さい。
※内覧をご希望の際には、どうぞ物件のエントランス前にてお待ち合わせくださいませ。ご内覧後は、同じ場所でお別れとさせていただきます。お客様のご都合に合わせたスムーズなご案内を心がけておりますので、ご質問等がございましたら何なりとお申し付けください。 物件概要
| 物件名 |
| 築年月 |
|
|---|---|---|---|
| 所在地 | |||
| 交通 | |||
| 総戸数 | 総階数 |
| |
| 構造 |
| ||
地図
物件までの道のりは、「拡大地図を表示」をクリックしてナビ機能をご利用ください。
部屋設備










建物設備

エレベーター

敷地内ゴミ置場
グランドメゾン南麻布の現在募集中のお部屋
- No rooms found for this property.







