
| 賃料 | 予想金額:440,000〜460,000円程度 | 管理費 | 予想金額:0〜2,000円程度 |
| 礼金/敷金 | 非公開(アーカイブ) | 平米数 | 142.33㎡ |
| 初期費用概算(参考) | 目安:2,066,500〜2,166,500 円 | みなし賃料(月額・参考) | 474,719〜494,719 円 |
| 備考 | 本ページは過去募集のアーカイブです。表示の金額は周辺相場・過去募集を踏まえた参考レンジであり、実際の契約金額・条件ではありません。 | ||
※上記みなし賃料(月額)は仲介手数料割引・無料&キャッシュバックを加味した高級賃貸バイブル限定の金額です。一般的なみなし賃料とは異なります。
【建物ページ】赤坂プラザの詳細・最新空室はこちら▶▶選ばれる理由
仲介手数料無料・キャンペーン情報(毎月15名様限定)
〇仲介手数料割引キャンペーン
赤坂プラザ 305の口コミ・レビュー
赤坂プラザ 305。ここはただの住まいではなく、あなたの人生の舞台。高級感漂うこの空間で、新たな物語が始まります。赤坂の中心、南を向いた窓からは、明るい陽射しが差し込み、まるで大自然のアートがあなたの心を包み込みます。
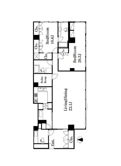
この家の心臓部、リビングダイニングは22.1帖の広さを誇り、広がる景色と共に、あなたの夢を叶えるための空間です。ここでは、家族や友人との笑い声が響き渡り、美味しい料理の香りが漂い…赤坂プラザ 305。ここはただの住まいではなく、あなたの人生の舞台。高級感漂うこの空間で、新たな物語が始まります。赤坂の中心、南を向いた窓からは、明るい陽射しが差し込み、まるで大自然のアートがあなたの心を包み込みます。
この家の心臓部、リビングダイニングは22.1帖の広さを誇り、広がる景色と共に、あなたの夢を叶えるための空間です。ここでは、家族や友人との笑い声が響き渡り、美味しい料理の香りが漂い、まるで映画の一場面のように、心温まるひとときを演出します。ヴィンテージな装飾が、あなたのセンスを引き立て、どこか懐かしさを感じることでしょう。
主寝室は20.5帖の静寂な聖域。どんな日でも、ここであなたは心の平穏を見つけ、疲れた体を優しく癒してくれる存在です。静かな夜を迎え、柔らかな照明があなたの心を包み込み、おやすみの挨拶が交わされる瞬間、夢の世界に誘います。細部までこだわったデザインが、心地よい眠りへと導くのです。
もう一つの居室、10.6帖は、ゲストのための贅沢な空間や、趣味の部屋として自由に使えるスペース。あなたの創造力をかきたて、心を躍らせます。ここでは、色とりどりのインスピレーションが舞い降り、毎日が新しい発見の連続になることでしょう。
赤坂プラザ 305は、ただの住居ではなく、文化と歴史が交差する場所に位置しています。この土地には、華やかな歴史が息づき、あなたがそこに住むことで、その一部となるのです。周辺には美術館やギャラリーが点在し、アートと共に暮らす喜びを味わえます。毎日が美のエッセンスで満ちること請け合いです。
また、24時間管理の安心感は、まるでこの家があなたの守り手のように感じさせます。エレベーターでアクセスするたびに、心地よい風が吹き抜け、あなたの心を軽やかにし、オートロックがさらに安全な生活をサポートします。
駐車場や駐輪場は、あなたのライフスタイルをより便利にするための完璧な選択肢です。何気ない日常が、特別な瞬間に変わる瞬間を提供します。
赤坂プラザ 305。ここには、あなたの人生に寄り添い、感動的な瞬間を生み出す要素が満ちています。新たな生活の始まりはあなたの手の中に。さあ、未来のための扉を開ける準備はできましたか?赤坂プラザ 305で、あなたの夢の物語を紡いでいきましょう。
この家の心臓部、リビングダイニングは22.1帖の広さを誇り、広がる景色と共に、あなたの夢を叶えるための空間です。ここでは、家族や友人との笑い声が響き渡り、美味しい料理の香りが漂い…赤坂プラザ 305。ここはただの住まいではなく、あなたの人生の舞台。高級感漂うこの空間で、新たな物語が始まります。赤坂の中心、南を向いた窓からは、明るい陽射しが差し込み、まるで大自然のアートがあなたの心を包み込みます。
この家の心臓部、リビングダイニングは22.1帖の広さを誇り、広がる景色と共に、あなたの夢を叶えるための空間です。ここでは、家族や友人との笑い声が響き渡り、美味しい料理の香りが漂い、まるで映画の一場面のように、心温まるひとときを演出します。ヴィンテージな装飾が、あなたのセンスを引き立て、どこか懐かしさを感じることでしょう。
主寝室は20.5帖の静寂な聖域。どんな日でも、ここであなたは心の平穏を見つけ、疲れた体を優しく癒してくれる存在です。静かな夜を迎え、柔らかな照明があなたの心を包み込み、おやすみの挨拶が交わされる瞬間、夢の世界に誘います。細部までこだわったデザインが、心地よい眠りへと導くのです。
もう一つの居室、10.6帖は、ゲストのための贅沢な空間や、趣味の部屋として自由に使えるスペース。あなたの創造力をかきたて、心を躍らせます。ここでは、色とりどりのインスピレーションが舞い降り、毎日が新しい発見の連続になることでしょう。
赤坂プラザ 305は、ただの住居ではなく、文化と歴史が交差する場所に位置しています。この土地には、華やかな歴史が息づき、あなたがそこに住むことで、その一部となるのです。周辺には美術館やギャラリーが点在し、アートと共に暮らす喜びを味わえます。毎日が美のエッセンスで満ちること請け合いです。
また、24時間管理の安心感は、まるでこの家があなたの守り手のように感じさせます。エレベーターでアクセスするたびに、心地よい風が吹き抜け、あなたの心を軽やかにし、オートロックがさらに安全な生活をサポートします。
駐車場や駐輪場は、あなたのライフスタイルをより便利にするための完璧な選択肢です。何気ない日常が、特別な瞬間に変わる瞬間を提供します。
赤坂プラザ 305。ここには、あなたの人生に寄り添い、感動的な瞬間を生み出す要素が満ちています。新たな生活の始まりはあなたの手の中に。さあ、未来のための扉を開ける準備はできましたか?赤坂プラザ 305で、あなたの夢の物語を紡いでいきましょう。
バイブルスコア
バイブルスコア: 23.5
平均的なスコアです。
※バイブルスコア詳細はこちら
バイブルスコアとは独自のAI機械学習技術を利用した物件評価システムで、物件のおすすめ度を示します。最高得点は100点で、スコアが高いほど、よりおすすめの物件と評価されています。
写真
現在写真が登録されていません契約条件
| 賃料 | 予想金額:440,000〜460,000円程度 | 管理費 | 予想金額:0〜2,000円程度 |
| 礼金 | 非公開(アーカイブ) | 敷金 | 非公開(アーカイブ) |
| フリーレント | なし | 平米数 | 142.33㎡ |
| 間取り | 2LDK | 大型収納 | |
| 契約期間 |
| 方角 | 南 |
| 更新料 | 契約形態 | 普通賃貸借契約 | |
| 取引態様 | 媒介 | 内見状況 | 入居中 |
| 入居時期 | 入居中 | SOHO・事務所 | |
| ペット | 間取り内訳 | LD=22.1J / BR=20.5J / BR=10.6J | |
| キャンペーン情報・備考 | 本情報は賃料改定交渉の資料作成、収益物件の利回り試算、周辺エリアや最寄り駅の坪単価分析、次回募集開始時期の予測などにご活用いただけます。 | ||
※「どの不動産に頼めばいいのか分からない」「信頼できる営業マンの話を聞きたい」「一番親切な会社と契約したい」とお悩みの方におすすめなのが「高級賃貸バイブル」です。
高級賃貸バイブルは業界10年以上の熟練スタッフ群がお客様ファーストで対応します。
下記ボタンから、まずは無料でご相談下さい。
※内覧をご希望の際には、どうぞ物件のエントランス前にてお待ち合わせくださいませ。ご内覧後は、同じ場所でお別れとさせていただきます。お客様のご都合に合わせたスムーズなご案内を心がけておりますので、ご質問等がございましたら何なりとお申し付けください。 物件概要
| 物件名 |
| 築年月 |
|
|---|---|---|---|
| 所在地 | |||
| 交通 | |||
| 総戸数 |
| 総階数 |
|
| 構造 |
| ||
地図
物件までの道のりは、「拡大地図を表示」をクリックしてナビ機能をご利用ください。
部屋設備












建物設備

24時間管理

エレベーター

オートロック

敷地内ゴミ置場

駐車場平置き

駐輪場
赤坂プラザの現在募集中のお部屋
- No rooms found for this property.
