
| 賃料 | 予想金額:570,000〜590,000円程度 | 管理費 | 予想金額:0〜2,000円程度 |
| 礼金/敷金 | 非公開(アーカイブ) | 平米数 | 75.47㎡ |
| 初期費用概算(参考) | 目安:2,071,500〜2,171,500 円 | みなし賃料(月額・参考) | 602,115〜622,115 円 |
| 備考 | 本ページは過去募集のアーカイブです。表示の金額は周辺相場・過去募集を踏まえた参考レンジであり、実際の契約金額・条件ではありません。 | ||
※上記みなし賃料(月額)は仲介手数料割引・無料&キャッシュバックを加味した高級賃貸バイブル限定の金額です。一般的なみなし賃料とは異なります。
【建物ページ】赤坂タワーレジデンス トップオブザヒルの詳細・最新空室はこちら▶▶選ばれる理由
仲介手数料無料・キャンペーン情報(毎月15名様限定)
〇仲介手数料割引キャンペーン
赤坂タワーレジデンス トップオブザヒル 17階 75.47㎡の口コミ・レビュー
赤坂タワーレジデンス トップオブザヒル 17階 75.47㎡。この高級賃貸物件は、まるで青空の広がるキャンバスの上に描かれた極上のアートのように、あなたを迎え入れます。東京の中心、港区赤坂に位置し、南向きに開けた眺望がインスピレーションを与えてくれることでしょう。
想像してみてください。あなたがこの美しいタワーレジデンスに足を踏み入れる瞬間。エレベーターが到着し、扉が開くと、心地よい色調でまとめ…赤坂タワーレジデンス トップオブザヒル 17階 75.47㎡。この高級賃貸物件は、まるで青空の広がるキャンバスの上に描かれた極上のアートのように、あなたを迎え入れます。東京の中心、港区赤坂に位置し、南向きに開けた眺望がインスピレーションを与えてくれることでしょう。
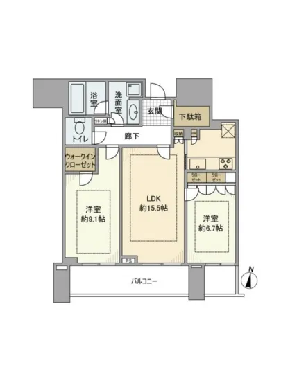
想像してみてください。あなたがこの美しいタワーレジデンスに足を踏み入れる瞬間。エレベーターが到着し、扉が開くと、心地よい色調でまとめられたインテリアが、まるで柔らかな絨毯のようにあなたを包み込みます。LDKは15.5帖という広さを誇り、その空間では光が踊り、空気が澄み渡り、まるで一日中映画のシーンが流れているかのようです。料理の匂いが漂い、友人たちが笑い合う声が響く中で、美味しいワインを傾ける。この瞬間こそ、人生の豊かさが凝縮されたひと時です。
あなたが暮らす赤坂タワーレジデンス トップオブザヒルには、9.1帖の寝室と6.7帖の第二の寝室も併設されています。寝室に入ると、穏やかな光がシャワーのように降り注ぎ、心地よい眠りへと導いてくれます。木の温もりを感じるフローリングが、足元から静かな安らぎを与え、まるで自然の中にいるかのような感覚を味わえます。朝、そよ風がカーテンをやさしく揺らし、心地良い香りのコーヒーがキッチンから漂ってくる。その香りは、あなたの心を弾ませ、今日一日の始まりを祝福してくれるでしょう。
さらに、この物件は24時間管理されており、安心と快適を兼ね備えています。オートロックやTVモニターホンが、心の平安をもたらし、あなたが愛する人々を迎え入れる準備が整っています。ラウンジやゲストルーム、フィットネス施設までを揃えたデザイナーズタワーの中で、友人と特別なひと時を過ごしたり、日々のストレスを忘れて運動に励んだりすることができるのです。
赤坂タワーレジデンス トップオブザヒルの周囲には、歴史が息づく文化的なスポットが点在し、毎日が新しい発見の連続となるでしょう。都内の中心でありながら、静寂も感じられるこの地で、散歩をするだけでも心が洗われる体験が待っています。東京メトロ千代田線赤坂駅から徒歩4分という好立地も、生活の便を最大限に引き立てます。
この物件は、ただの住所ではなく、あなたの心の拠り所、そして日常を特別に変える場所です。赤坂タワーレジデンス トップオブザヒルが提供する暮らしは、まさに贅沢な映画のワンシーンのように鮮烈で、日々の生活に色を添え、人生の新しい章を開いてくれることでしょう。この場所で、あなたの物語を紡いでみませんか。あなたの新たな生活が、ここから始まります。
想像してみてください。あなたがこの美しいタワーレジデンスに足を踏み入れる瞬間。エレベーターが到着し、扉が開くと、心地よい色調でまとめ…赤坂タワーレジデンス トップオブザヒル 17階 75.47㎡。この高級賃貸物件は、まるで青空の広がるキャンバスの上に描かれた極上のアートのように、あなたを迎え入れます。東京の中心、港区赤坂に位置し、南向きに開けた眺望がインスピレーションを与えてくれることでしょう。
想像してみてください。あなたがこの美しいタワーレジデンスに足を踏み入れる瞬間。エレベーターが到着し、扉が開くと、心地よい色調でまとめられたインテリアが、まるで柔らかな絨毯のようにあなたを包み込みます。LDKは15.5帖という広さを誇り、その空間では光が踊り、空気が澄み渡り、まるで一日中映画のシーンが流れているかのようです。料理の匂いが漂い、友人たちが笑い合う声が響く中で、美味しいワインを傾ける。この瞬間こそ、人生の豊かさが凝縮されたひと時です。
あなたが暮らす赤坂タワーレジデンス トップオブザヒルには、9.1帖の寝室と6.7帖の第二の寝室も併設されています。寝室に入ると、穏やかな光がシャワーのように降り注ぎ、心地よい眠りへと導いてくれます。木の温もりを感じるフローリングが、足元から静かな安らぎを与え、まるで自然の中にいるかのような感覚を味わえます。朝、そよ風がカーテンをやさしく揺らし、心地良い香りのコーヒーがキッチンから漂ってくる。その香りは、あなたの心を弾ませ、今日一日の始まりを祝福してくれるでしょう。
さらに、この物件は24時間管理されており、安心と快適を兼ね備えています。オートロックやTVモニターホンが、心の平安をもたらし、あなたが愛する人々を迎え入れる準備が整っています。ラウンジやゲストルーム、フィットネス施設までを揃えたデザイナーズタワーの中で、友人と特別なひと時を過ごしたり、日々のストレスを忘れて運動に励んだりすることができるのです。
赤坂タワーレジデンス トップオブザヒルの周囲には、歴史が息づく文化的なスポットが点在し、毎日が新しい発見の連続となるでしょう。都内の中心でありながら、静寂も感じられるこの地で、散歩をするだけでも心が洗われる体験が待っています。東京メトロ千代田線赤坂駅から徒歩4分という好立地も、生活の便を最大限に引き立てます。
この物件は、ただの住所ではなく、あなたの心の拠り所、そして日常を特別に変える場所です。赤坂タワーレジデンス トップオブザヒルが提供する暮らしは、まさに贅沢な映画のワンシーンのように鮮烈で、日々の生活に色を添え、人生の新しい章を開いてくれることでしょう。この場所で、あなたの物語を紡いでみませんか。あなたの新たな生活が、ここから始まります。
バイブルスコア
バイブルスコア: 8.0
高級な物件でない場合は割高な物件です。。
※バイブルスコア詳細はこちら
バイブルスコアとは独自のAI機械学習技術を利用した物件評価システムで、物件のおすすめ度を示します。最高得点は100点で、スコアが高いほど、よりおすすめの物件と評価されています。
写真
契約条件
| 賃料 | 予想金額:570,000〜590,000円程度 | 管理費 | 予想金額:0〜2,000円程度 |
| 礼金 | 非公開(アーカイブ) | 敷金 | 非公開(アーカイブ) |
| フリーレント | なし | 平米数 | 75.47㎡ |
| 間取り | 2LDK | 大型収納 | WIC+SIC |
| 契約期間 | 方角 | 南 | |
| 更新料 | 契約形態 | 定期借家契約 | |
| 取引態様 | 媒介 | 内見状況 | 入居中 |
| 入居時期 | 入居中 | SOHO・事務所 | |
| ペット | 間取り内訳 | LDK=15.5J BR=9.1J / BR=6.7J | |
| キャンペーン情報・備考 | 本情報は賃料改定交渉の資料作成、収益物件の利回り試算、周辺エリアや最寄り駅の坪単価分析、次回募集開始時期の予測などにご活用いただけます。 | ||
※「どの不動産に頼めばいいのか分からない」「信頼できる営業マンの話を聞きたい」「一番親切な会社と契約したい」とお悩みの方におすすめなのが「高級賃貸バイブル」です。
高級賃貸バイブルは業界10年以上の熟練スタッフ群がお客様ファーストで対応します。
下記ボタンから、まずは無料でご相談下さい。
※内覧をご希望の際には、どうぞ物件のエントランス前にてお待ち合わせくださいませ。ご内覧後は、同じ場所でお別れとさせていただきます。お客様のご都合に合わせたスムーズなご案内を心がけておりますので、ご質問等がございましたら何なりとお申し付けください。 物件概要
| 物件名 |
| 築年月 |
|
|---|---|---|---|
| 所在地 | |||
| 交通 | |||
| 総戸数 |
| 総階数 |
|
| 構造 |
| ||
地図
物件までの道のりは、「拡大地図を表示」をクリックしてナビ機能をご利用ください。
部屋設備

















建物設備

24時間管理

TVモニターホン

エレベーター

オートロック

ゲストルーム

バイク置場

フィットネス

フロントサービス

ラウンジ

宅配ボックス

敷地内ゴミ置場

駐車場平置き

駐車場機械式

駐輪場
赤坂タワーレジデンス トップオブザヒルの現在募集中のお部屋
- 赤坂タワーレジデンス トップオブザヒル 17階 80.05㎡ - 間取り: 2LDK+SIC - 賃料: 63万円
- 赤坂タワーレジデンス トップオブザヒル 31階 83.26㎡ - 間取り: 1SLDK+WIC - 賃料: 65万円
























