
| 賃料 | 予想金額:264,000〜284,000円程度 | 管理費 | 予想金額:0〜2,000円程度 |
| 礼金/敷金 | 非公開(アーカイブ) | 平米数 | 56.64㎡ |
| 初期費用概算(参考) | 目安:1,822,500〜1,922,500 円 | みなし賃料(月額・参考) | 297,302〜317,302 円 |
| 備考 | 本ページは過去募集のアーカイブです。表示の金額は周辺相場・過去募集を踏まえた参考レンジであり、実際の契約金額・条件ではありません。 | ||
※上記みなし賃料(月額)は仲介手数料割引・無料&キャッシュバックを加味した高級賃貸バイブル限定の金額です。一般的なみなし賃料とは異なります。
【建物ページ】THE ITOYAMA TOWER (ザ・イトヤマタワー)の詳細・最新空室はこちら▶▶選ばれる理由
仲介手数料無料・キャンペーン情報(毎月15名様限定)
〇仲介手数料割引キャンペーン
THE ITOYAMA TOWER (ザ・イトヤマタワー) 16階 56.64㎡の口コミ・レビュー
THE ITOYAMA TOWER (ザ・イトヤマタワー) 16階 56.64㎡。この美しい高級賃貸物件は、単なる住まいを超え、あなたの人生に新たな物語を紡ぎ出す舞台として存在します。まるで都会の真ん中に佇む孤高の塔のように、THE ITOYAMA TOWERは、あなたを包み込む温かな光を浴びています。16階の高みから望む景色は、昼夜を問わず、街の鼓動を感じさせるものであり、まるで映画のワンシーン…THE ITOYAMA TOWER (ザ・イトヤマタワー) 16階 56.64㎡。この美しい高級賃貸物件は、単なる住まいを超え、あなたの人生に新たな物語を紡ぎ出す舞台として存在します。まるで都会の真ん中に佇む孤高の塔のように、THE ITOYAMA TOWERは、あなたを包み込む温かな光を浴びています。16階の高みから望む景色は、昼夜を問わず、街の鼓動を感じさせるものであり、まるで映画のワンシーンのように鮮やかです。
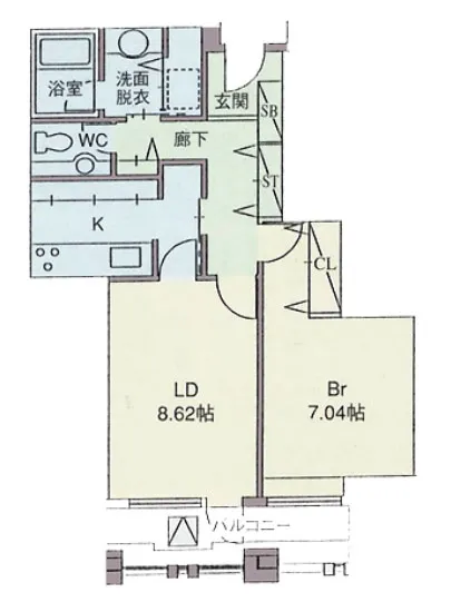
エレベーターに乗り込み、静かに上昇するその瞬間、心の中に期待感が満ち溢れます。目的地に着いたとき、扉が開くと、あなたを待っているのは、全ての感覚を刺激する洗練された空間です。間取りは1LDK、LDは8.62帖、BRは7.04帖。これらの空間は、創造性を広げるキャンバスのようになっており、自分だけのスタイルでコーディネートする楽しみを与えてくれます。LDKの広がりは、家族や友人との歓談の場や、リラックスしたひとときを楽しむための心地よい空間を提供し、何気ない日常を特別な瞬間へと昇華します。
このタワーは、24時間管理のもと、安心と安らぎを約束します。オートロックのエントランスをくぐり、TVモニターホンで訪問者を確認することで、家にいるときの心安らぐ瞬間を作り出すのです。まるで家があなたを守っているかのように、THE ITOYAMA TOWERは、安心感を与え、心を落ち着かせてくれます。
近隣には、歴史的な土地が広がり、文化の薫りが漂っています。イメージの中であなたは、地元のアートギャラリーを訪れ、美しい作品に触れる瞬間を楽しむことができるでしょう。泉岳寺駅から徒歩4分という利便性も、この物件を生活の舞台として選ぶ理由の一つです。通勤やショッピングをスムーズにこなせることで、時間を有効に活用できます。忙しい日々の中でも、ほんの少しの贅沢な時間を見つけることができるのです。
THE ITOYAMA TOWERは、ただの住まいではありません。そこに住むことで、毎日が新たな発見で満たされ、あなた自身が新しい物語の主人公になることを許される場所です。心地よい風が通り抜け、街の喧騒から少し離れたこの場所で、あなたの五感は目覚めます。香り高い朝食の準備をしながら、コーヒーの香りに包まれる瞬間も、ソファに身をゆだね、好きな音楽を流すことで、自分自身に戻る特別な時間を楽しむことができるのです。
この物件の魅力は、住む人の心を開放し、想像力をくすぐるところにあります。YOUR LIFE IS A MOVIE。THE ITOYAMA TOWERでの生活が、あなたの物語に色を添え、日々の生活を特別なものに変えていくことでしょう。
エレベーターに乗り込み、静かに上昇するその瞬間、心の中に期待感が満ち溢れます。目的地に着いたとき、扉が開くと、あなたを待っているのは、全ての感覚を刺激する洗練された空間です。間取りは1LDK、LDは8.62帖、BRは7.04帖。これらの空間は、創造性を広げるキャンバスのようになっており、自分だけのスタイルでコーディネートする楽しみを与えてくれます。LDKの広がりは、家族や友人との歓談の場や、リラックスしたひとときを楽しむための心地よい空間を提供し、何気ない日常を特別な瞬間へと昇華します。
このタワーは、24時間管理のもと、安心と安らぎを約束します。オートロックのエントランスをくぐり、TVモニターホンで訪問者を確認することで、家にいるときの心安らぐ瞬間を作り出すのです。まるで家があなたを守っているかのように、THE ITOYAMA TOWERは、安心感を与え、心を落ち着かせてくれます。
近隣には、歴史的な土地が広がり、文化の薫りが漂っています。イメージの中であなたは、地元のアートギャラリーを訪れ、美しい作品に触れる瞬間を楽しむことができるでしょう。泉岳寺駅から徒歩4分という利便性も、この物件を生活の舞台として選ぶ理由の一つです。通勤やショッピングをスムーズにこなせることで、時間を有効に活用できます。忙しい日々の中でも、ほんの少しの贅沢な時間を見つけることができるのです。
THE ITOYAMA TOWERは、ただの住まいではありません。そこに住むことで、毎日が新たな発見で満たされ、あなた自身が新しい物語の主人公になることを許される場所です。心地よい風が通り抜け、街の喧騒から少し離れたこの場所で、あなたの五感は目覚めます。香り高い朝食の準備をしながら、コーヒーの香りに包まれる瞬間も、ソファに身をゆだね、好きな音楽を流すことで、自分自身に戻る特別な時間を楽しむことができるのです。
この物件の魅力は、住む人の心を開放し、想像力をくすぐるところにあります。YOUR LIFE IS A MOVIE。THE ITOYAMA TOWERでの生活が、あなたの物語に色を添え、日々の生活を特別なものに変えていくことでしょう。
バイブルスコア
バイブルスコア: 13.2
高級な物件でない場合は割高な物件です。。
※バイブルスコア詳細はこちら
バイブルスコアとは独自のAI機械学習技術を利用した物件評価システムで、物件のおすすめ度を示します。最高得点は100点で、スコアが高いほど、よりおすすめの物件と評価されています。
写真
現在写真が登録されていません契約条件
| 賃料 | 予想金額:264,000〜284,000円程度 | 管理費 | 予想金額:0〜2,000円程度 |
| 礼金 | 非公開(アーカイブ) | 敷金 | 非公開(アーカイブ) |
| フリーレント | なし | 平米数 | 56.64㎡ |
| 間取り | 1LDK | 大型収納 | |
| 契約期間 |
| 方角 | |
| 更新料 | 契約形態 | 普通賃貸借契約 | |
| 取引態様 | 媒介 | 内見状況 | 入居中 |
| 入居時期 | 入居中 | SOHO・事務所 | |
| ペット | 間取り内訳 | LD=8.62J / K / BR=7.04J | |
| キャンペーン情報・備考 | 本情報は賃料改定交渉の資料作成、収益物件の利回り試算、周辺エリアや最寄り駅の坪単価分析、次回募集開始時期の予測などにご活用いただけます。 | ||
※「どの不動産に頼めばいいのか分からない」「信頼できる営業マンの話を聞きたい」「一番親切な会社と契約したい」とお悩みの方におすすめなのが「高級賃貸バイブル」です。
高級賃貸バイブルは業界10年以上の熟練スタッフ群がお客様ファーストで対応します。
下記ボタンから、まずは無料でご相談下さい。
※内覧をご希望の際には、どうぞ物件のエントランス前にてお待ち合わせくださいませ。ご内覧後は、同じ場所でお別れとさせていただきます。お客様のご都合に合わせたスムーズなご案内を心がけておりますので、ご質問等がございましたら何なりとお申し付けください。 物件概要
| 物件名 |
| 築年月 |
|
|---|---|---|---|
| 所在地 | |||
| 交通 | |||
| 総戸数 |
| 総階数 |
|
| 構造 |
| ||
地図
物件までの道のりは、「拡大地図を表示」をクリックしてナビ機能をご利用ください。
部屋設備













建物設備

24時間管理

TVモニターホン

エレベーター

オートロック

バイク置場

敷地内ゴミ置場

駐車場平置き

駐車場機械式

駐輪場
THE ITOYAMA TOWER (ザ・イトヤマタワー)の現在募集中のお部屋
- No rooms found for this property.
