
| 賃料 | 予想金額:185,000〜205,000円程度 | 管理費 | 予想金額:0〜2,000円程度 |
| 礼金/敷金 | 非公開(アーカイブ) | 平米数 | 49.27㎡ |
| 初期費用概算(参考) | 目安:724,000〜824,000 円 | みなし賃料(月額・参考) | 197,063〜217,063 円 |
| 備考 | 本ページは過去募集のアーカイブです。表示の金額は周辺相場・過去募集を踏まえた参考レンジであり、実際の契約金額・条件ではありません。 | ||
※上記みなし賃料(月額)は仲介手数料割引・無料&キャッシュバックを加味した高級賃貸バイブル限定の金額です。一般的なみなし賃料とは異なります。
【建物ページ】白金K-FLATの詳細・最新空室はこちら▶▶選ばれる理由
仲介手数料無料・キャンペーン情報(毎月15名様限定)
〇仲介手数料割引キャンペーン
白金K-FLAT 502の口コミ・レビュー
白金K-FLAT 502。私の扉を開けると、まるで時の流れがゆっくりとした映画のワンシーンに包まれるかのように、あなたを迎え入れます。この美しい物件は、東京都港区白金1-26-10に位置し、南向きの穏やかな光が差し込むデザインが、あたかも春の柔らかな日差しのように、心を暖めてくれるでしょう。
この場所に住むということは、日常の喧騒から一歩離れ、都会の中にある静かなオアシスに浸ることであり、その贅…白金K-FLAT 502。私の扉を開けると、まるで時の流れがゆっくりとした映画のワンシーンに包まれるかのように、あなたを迎え入れます。この美しい物件は、東京都港区白金1-26-10に位置し、南向きの穏やかな光が差し込むデザインが、あたかも春の柔らかな日差しのように、心を暖めてくれるでしょう。
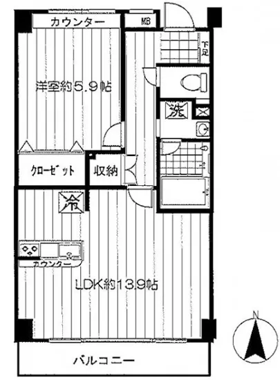
この場所に住むということは、日常の喧騒から一歩離れ、都会の中にある静かなオアシスに浸ることであり、その贅沢さを享受することです。白金K-FLAT 502の専有面積は49.27㎡、その中にはまるで美術館のような空間が広がり、あなたの新しい物語の舞台が整っています。リビングダイニングキッチン(LDK)は13.9帖の広さを誇り、ここで大切な人々との時間を過ごすことができます。窓からの眺めは、季節の移ろいを感じさせ、カラフルな花々や緑に囲まれた日々を演出します。そして、5.9帖の洋室は、夜の静けさに包まれながら、心の深い場所で夢を紡ぐ時間を提供してくれます。
エレベーターで上がった先に待つこの空間は、あなたと日常をつなぐ重要な場所です。オートロックの安心感の中で、訪れる人々には特別な時間を与え、あなた自身はこのスタイリッシュな居住空間に心から安らぐことができるでしょう。TVモニターホンの存在は、まるで守護者のように、家を見守り続けるのです。
白金K-FLAT 502は、洗練された生活を送るための基盤を提供します。敷地内のゴミ置場や駐輪場は、日々の生活を快適にするための配慮がされた設計で、無駄のない動線を実現しています。人々の生活を豊かにするために生まれたこの空間は、あなたを新しい挑戦へと誘ってくれる存在です。
最寄りの白金高輪駅へは、なんと徒歩1分の距離。東京メトロ南北線を利用すれば、ビジネスの中心地へも短時間でアクセスでき、街の喧騒からの逃避行もわずかの歩みで得られます。周囲には、静かなる高級住宅街の風情が漂い、歴史的な名所や文化施設も点在し、知的な刺激に満ちた環境が広がります。
この場所に住むことは、あなた自身の物語の一部となり、毎日を特別なものに変えてくれることでしょう。白金K-FLAT 502は、ただの住まいではなく、あなたの人生の舞台を演出する最高のパートナーです。夜の静寂の中で、外の微かな音楽を聞きながら、心が安らぐ自分だけの空間で、あなただけの特別なひとときをお楽しみください。あなたの新たな生活の扉は、ここ、白金K-FLAT 502で開かれています。
この場所に住むということは、日常の喧騒から一歩離れ、都会の中にある静かなオアシスに浸ることであり、その贅…白金K-FLAT 502。私の扉を開けると、まるで時の流れがゆっくりとした映画のワンシーンに包まれるかのように、あなたを迎え入れます。この美しい物件は、東京都港区白金1-26-10に位置し、南向きの穏やかな光が差し込むデザインが、あたかも春の柔らかな日差しのように、心を暖めてくれるでしょう。
この場所に住むということは、日常の喧騒から一歩離れ、都会の中にある静かなオアシスに浸ることであり、その贅沢さを享受することです。白金K-FLAT 502の専有面積は49.27㎡、その中にはまるで美術館のような空間が広がり、あなたの新しい物語の舞台が整っています。リビングダイニングキッチン(LDK)は13.9帖の広さを誇り、ここで大切な人々との時間を過ごすことができます。窓からの眺めは、季節の移ろいを感じさせ、カラフルな花々や緑に囲まれた日々を演出します。そして、5.9帖の洋室は、夜の静けさに包まれながら、心の深い場所で夢を紡ぐ時間を提供してくれます。
エレベーターで上がった先に待つこの空間は、あなたと日常をつなぐ重要な場所です。オートロックの安心感の中で、訪れる人々には特別な時間を与え、あなた自身はこのスタイリッシュな居住空間に心から安らぐことができるでしょう。TVモニターホンの存在は、まるで守護者のように、家を見守り続けるのです。
白金K-FLAT 502は、洗練された生活を送るための基盤を提供します。敷地内のゴミ置場や駐輪場は、日々の生活を快適にするための配慮がされた設計で、無駄のない動線を実現しています。人々の生活を豊かにするために生まれたこの空間は、あなたを新しい挑戦へと誘ってくれる存在です。
最寄りの白金高輪駅へは、なんと徒歩1分の距離。東京メトロ南北線を利用すれば、ビジネスの中心地へも短時間でアクセスでき、街の喧騒からの逃避行もわずかの歩みで得られます。周囲には、静かなる高級住宅街の風情が漂い、歴史的な名所や文化施設も点在し、知的な刺激に満ちた環境が広がります。
この場所に住むことは、あなた自身の物語の一部となり、毎日を特別なものに変えてくれることでしょう。白金K-FLAT 502は、ただの住まいではなく、あなたの人生の舞台を演出する最高のパートナーです。夜の静寂の中で、外の微かな音楽を聞きながら、心が安らぐ自分だけの空間で、あなただけの特別なひとときをお楽しみください。あなたの新たな生活の扉は、ここ、白金K-FLAT 502で開かれています。
バイブルスコア
バイブルスコア: 22.8
平均的なスコアです。
※バイブルスコア詳細はこちら
バイブルスコアとは独自のAI機械学習技術を利用した物件評価システムで、物件のおすすめ度を示します。最高得点は100点で、スコアが高いほど、よりおすすめの物件と評価されています。
写真
契約条件
| 賃料 | 予想金額:185,000〜205,000円程度 | 管理費 | 予想金額:0〜2,000円程度 |
| 礼金 | 非公開(アーカイブ) | 敷金 | 非公開(アーカイブ) |
| フリーレント | なし | 平米数 | 49.27㎡ |
| 間取り | 1LDK | 大型収納 | |
| 契約期間 |
| 方角 | 南 |
| 更新料 | 契約形態 | 普通賃貸借契約 | |
| 取引態様 | 媒介 | 内見状況 | 入居中 |
| 入居時期 | 入居中 | SOHO・事務所 | |
| ペット | 間取り内訳 | 洋:5.9 LDK:13.9 | |
| キャンペーン情報・備考 | 本情報は賃料改定交渉の資料作成、収益物件の利回り試算、周辺エリアや最寄り駅の坪単価分析、次回募集開始時期の予測などにご活用いただけます。 | ||
※「どの不動産に頼めばいいのか分からない」「信頼できる営業マンの話を聞きたい」「一番親切な会社と契約したい」とお悩みの方におすすめなのが「高級賃貸バイブル」です。
高級賃貸バイブルは業界10年以上の熟練スタッフ群がお客様ファーストで対応します。
下記ボタンから、まずは無料でご相談下さい。
※内覧をご希望の際には、どうぞ物件のエントランス前にてお待ち合わせくださいませ。ご内覧後は、同じ場所でお別れとさせていただきます。お客様のご都合に合わせたスムーズなご案内を心がけておりますので、ご質問等がございましたら何なりとお申し付けください。 物件概要
| 物件名 |
| 築年月 |
|
|---|---|---|---|
| 所在地 | |||
| 交通 | |||
| 総戸数 |
| 総階数 |
|
| 構造 |
| ||
地図
物件までの道のりは、「拡大地図を表示」をクリックしてナビ機能をご利用ください。
部屋設備
















建物設備

TVモニターホン

エレベーター

オートロック

敷地内ゴミ置場

駐輪場
白金K-FLATの現在募集中のお部屋
- No rooms found for this property.









