
| 賃料 | 予想金額:178,000〜198,000円程度 | 管理費 | 予想金額:0〜2,000円程度 |
| 礼金/敷金 | 非公開(アーカイブ) | 平米数 | 49.27㎡ |
| 初期費用概算(参考) | 目安:699,500〜799,500 円 | みなし賃料(月額・参考) | 189,698〜209,698 円 |
| 備考 | 本ページは過去募集のアーカイブです。表示の金額は周辺相場・過去募集を踏まえた参考レンジであり、実際の契約金額・条件ではありません。 | ||
※上記みなし賃料(月額)は仲介手数料割引・無料&キャッシュバックを加味した高級賃貸バイブル限定の金額です。一般的なみなし賃料とは異なります。
【建物ページ】白金K-FLATの詳細・最新空室はこちら▶▶選ばれる理由
仲介手数料無料・キャンペーン情報(毎月15名様限定)
〇仲介手数料割引キャンペーン
白金K-FLAT 402の口コミ・レビュー
白金K-FLAT 402。この物件の名は、まるで貴族に仕える一流の執事のように、あなたを洗練された生活へといざないます。402という番号は、上質な空間の扉を開ける合図。気軽に足を踏み入れると、そこには49.27㎡の洗練された世界が広がります。南向きの窓からは、心地よい光が優しく舞い込み、日常の喧騒を忘れさせてくれるかのようです。まるで、朝の光があなたの一日を祝福するかのように降り注ぎます。
白金…白金K-FLAT 402。この物件の名は、まるで貴族に仕える一流の執事のように、あなたを洗練された生活へといざないます。402という番号は、上質な空間の扉を開ける合図。気軽に足を踏み入れると、そこには49.27㎡の洗練された世界が広がります。南向きの窓からは、心地よい光が優しく舞い込み、日常の喧騒を忘れさせてくれるかのようです。まるで、朝の光があなたの一日を祝福するかのように降り注ぎます。
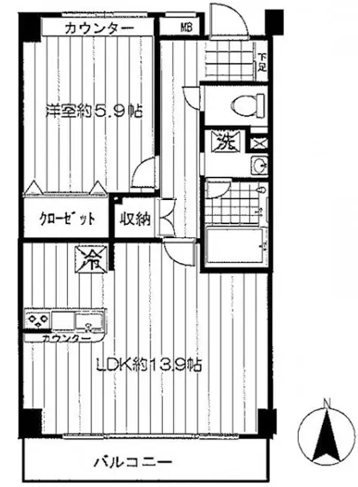
白金K-FLAT 402の洋室は5.9帖で、あなたのプライベートなひとときを温かく包み込みます。その床は足元に柔らかな感触を与え、まるで草原を素足で歩くような解放感を味わえます。一方、13.9帖のLDKは、まさに社交の舞台。友人や家族と共に美味しい料理やワインを囲む光景は、映画のワンシーンのよう。笑い声が響き渡り、その瞬間、その空間が一つのアート作品に変わります。
この物件に身を置くと、五感が目覚めていくのを感じます。目に映るのは、洗練された内装とそのシンプルさが織りなす美。耳には、静寂の中に混じる鳥のさえずりや、遠くから聞こえてくる街のリズム。鼻をくすぐるのは、朝焼けの中に漂うパンの香ばしい香り。あなたはその香りに誘われて、朝のひとときを楽しむ準備を整えたくなるでしょう。
さらに、白金K-FLAT 402は、周囲の歴史と文化と深く結びついています。白金という名は、東京が誇る文化の発信地として知られ、洗練されたアートやグルメがあなたの生活を彩ります。街を歩けば、たちまち高級感あふれるカフェやギャラリーが目に飛び込んできます。ここでは、毎日の暮らしがまるで美術館の一部のように感じられるのです。
また、東京メトロ南北線の白金高輪駅まで徒歩1分という利便性は、まるで人生の舞台裏で支えてくれるスタッフのよう。あなたが出かける準備を整えたその刹那に、快適に次の冒険へと旅立つ手助けをしてくれることでしょう。
白金K-FLAT 402での生活は、ただの居住空間ではありません。それは、あなた自身の物語が展開する場所であり、感情の豊かさと豊かな文化が交差する場でもあります。ここでの毎日は、新たな発見や感動に満ちた瞬間が待ち受けているのです。あなたの人生という美しい作品に、白金K-FLAT 402がどのように彩りを加えるのか、今からワクワクが止まりません。あなたの新しい物語が、ここから始まります。
白金…白金K-FLAT 402。この物件の名は、まるで貴族に仕える一流の執事のように、あなたを洗練された生活へといざないます。402という番号は、上質な空間の扉を開ける合図。気軽に足を踏み入れると、そこには49.27㎡の洗練された世界が広がります。南向きの窓からは、心地よい光が優しく舞い込み、日常の喧騒を忘れさせてくれるかのようです。まるで、朝の光があなたの一日を祝福するかのように降り注ぎます。
白金K-FLAT 402の洋室は5.9帖で、あなたのプライベートなひとときを温かく包み込みます。その床は足元に柔らかな感触を与え、まるで草原を素足で歩くような解放感を味わえます。一方、13.9帖のLDKは、まさに社交の舞台。友人や家族と共に美味しい料理やワインを囲む光景は、映画のワンシーンのよう。笑い声が響き渡り、その瞬間、その空間が一つのアート作品に変わります。
この物件に身を置くと、五感が目覚めていくのを感じます。目に映るのは、洗練された内装とそのシンプルさが織りなす美。耳には、静寂の中に混じる鳥のさえずりや、遠くから聞こえてくる街のリズム。鼻をくすぐるのは、朝焼けの中に漂うパンの香ばしい香り。あなたはその香りに誘われて、朝のひとときを楽しむ準備を整えたくなるでしょう。
さらに、白金K-FLAT 402は、周囲の歴史と文化と深く結びついています。白金という名は、東京が誇る文化の発信地として知られ、洗練されたアートやグルメがあなたの生活を彩ります。街を歩けば、たちまち高級感あふれるカフェやギャラリーが目に飛び込んできます。ここでは、毎日の暮らしがまるで美術館の一部のように感じられるのです。
また、東京メトロ南北線の白金高輪駅まで徒歩1分という利便性は、まるで人生の舞台裏で支えてくれるスタッフのよう。あなたが出かける準備を整えたその刹那に、快適に次の冒険へと旅立つ手助けをしてくれることでしょう。
白金K-FLAT 402での生活は、ただの居住空間ではありません。それは、あなた自身の物語が展開する場所であり、感情の豊かさと豊かな文化が交差する場でもあります。ここでの毎日は、新たな発見や感動に満ちた瞬間が待ち受けているのです。あなたの人生という美しい作品に、白金K-FLAT 402がどのように彩りを加えるのか、今からワクワクが止まりません。あなたの新しい物語が、ここから始まります。
バイブルスコア
バイブルスコア: 27.7
平均的なスコアです。
※バイブルスコア詳細はこちら
バイブルスコアとは独自のAI機械学習技術を利用した物件評価システムで、物件のおすすめ度を示します。最高得点は100点で、スコアが高いほど、よりおすすめの物件と評価されています。
写真
契約条件
| 賃料 | 予想金額:178,000〜198,000円程度 | 管理費 | 予想金額:0〜2,000円程度 |
| 礼金 | 非公開(アーカイブ) | 敷金 | 非公開(アーカイブ) |
| フリーレント | なし | 平米数 | 49.27㎡ |
| 間取り | 1LDK | 大型収納 | |
| 契約期間 |
| 方角 | 南 |
| 更新料 | 契約形態 | 普通賃貸借契約 | |
| 取引態様 | 媒介 | 内見状況 | 入居中 |
| 入居時期 | 入居中 | SOHO・事務所 | |
| ペット | 間取り内訳 | 洋:5.9 LDK:13.9 | |
| キャンペーン情報・備考 | 本情報は賃料改定交渉の資料作成、収益物件の利回り試算、周辺エリアや最寄り駅の坪単価分析、次回募集開始時期の予測などにご活用いただけます。 | ||
※「どの不動産に頼めばいいのか分からない」「信頼できる営業マンの話を聞きたい」「一番親切な会社と契約したい」とお悩みの方におすすめなのが「高級賃貸バイブル」です。
高級賃貸バイブルは業界10年以上の熟練スタッフ群がお客様ファーストで対応します。
下記ボタンから、まずは無料でご相談下さい。
※内覧をご希望の際には、どうぞ物件のエントランス前にてお待ち合わせくださいませ。ご内覧後は、同じ場所でお別れとさせていただきます。お客様のご都合に合わせたスムーズなご案内を心がけておりますので、ご質問等がございましたら何なりとお申し付けください。 物件概要
| 物件名 |
| 築年月 |
|
|---|---|---|---|
| 所在地 | |||
| 交通 | |||
| 総戸数 |
| 総階数 |
|
| 構造 |
| ||
地図
物件までの道のりは、「拡大地図を表示」をクリックしてナビ機能をご利用ください。
部屋設備
















建物設備

TVモニターホン

エレベーター

オートロック

敷地内ゴミ置場

駐輪場
白金K-FLATの現在募集中のお部屋
- No rooms found for this property.









