
| 賃料 | 予想金額:280,000〜300,000円程度 | 管理費 | 予想金額:0〜2,000円程度 |
| 礼金/敷金 | 非公開(アーカイブ) | 平米数 | 54.86㎡ |
| 初期費用概算(参考) | 目安:1,346,500〜1,446,500 円 | みなし賃料(月額・参考) | 303,052〜323,052 円 |
| 備考 | 本ページは過去募集のアーカイブです。表示の金額は周辺相場・過去募集を踏まえた参考レンジであり、実際の契約金額・条件ではありません。 | ||
※上記みなし賃料(月額)は仲介手数料割引・無料&キャッシュバックを加味した高級賃貸バイブル限定の金額です。一般的なみなし賃料とは異なります。
【建物ページ】プラウドタワー白金台の詳細・最新空室はこちら▶▶選ばれる理由
仲介手数料無料・キャンペーン情報(毎月15名様限定)
〇仲介手数料割引キャンペーン
プラウドタワー白金台 12の口コミ・レビュー
プラウドタワー白金台 12は、東京都港区白金台2-9-12に佇む、まるで夢見心地のような理想的な空間です。まるで人間のように、あなたを優しく迎え入れ、この特別な場所での生活を一緒に楽しもう、と語りかけてくるかのようです。12階からの展望は、朝日の柔らかな光が都心の喧騒を忘れさせ、まるであなたを映画の主人公にしてくれる瞬間です。この特別な空間は、54.86㎡の広さに、2LDKの心地よいレイアウトが施…プラウドタワー白金台 12は、東京都港区白金台2-9-12に佇む、まるで夢見心地のような理想的な空間です。まるで人間のように、あなたを優しく迎え入れ、この特別な場所での生活を一緒に楽しもう、と語りかけてくるかのようです。12階からの展望は、朝日の柔らかな光が都心の喧騒を忘れさせ、まるであなたを映画の主人公にしてくれる瞬間です。この特別な空間は、54.86㎡の広さに、2LDKの心地よいレイアウトが施されています。
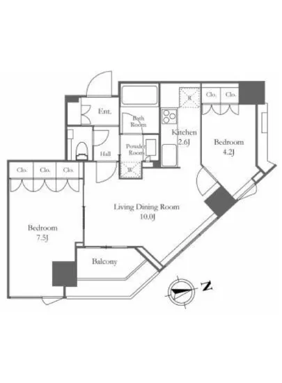
入ると、落ち着いた色合いの壁に包まれた洋室4.2帖と洋室7.5帖が出迎えます。窓から差し込む光が、優雅なカーテンを揺らし、まるで微風が優しく頬を撫でるかのよう。その瞬間、あなたはこの場所が特別である理由を感じ取ることができるでしょう。LDK10.0帖では、楽しいひとときを分かち合い、家族や友人と共に過ごすことができます。キッチン2.6帖は、料理の魔法をかける場所。ここで自然の恵みを感じながら、五感を刺激する香りに包まれた料理を楽しむことができるのです。
プラウドタワー白金台 12は、まるで静かな湖のほとりの家のように、24時間管理の安心感とフロントサービスが日々の生活を心地よく彩ります。オートロックやTVモニターホンが、あなたのプライベートな空間をしっかりと守ってくれるので、心穏やかに過ごせます。共用ラウンジでは、他の住人との交流も生まれることでしょう。時には、静かに本を開き、また時には、友人たちと共に笑顔の絶えないひとときを過ごせる空間です。
周囲は、白金という名を冠するエレガントな街並み。文化的な香りが漂う中、多くの美術館やギャラリーが点在し、アートを愛する心をくすぐります。また、都営地下鉄浅草線の高輪台駅が徒歩3分という便利な立地は、さまざまな東京の魅力をすぐそばに感じられる特権を与えてくれます。あなたの心に響く歴史が息づく街で、新しい日常が始まります。
プラウドタワー白金台 12は、ただの住まいではなく、あなたの心の拠り所となり、人生の物語の舞台となることでしょう。優雅さと便利さが調和したこの空間で、毎日が映画のワンシーンのように美しく展開されていくのを、心待ちにしてください。この物件は、まさにあなたにふさわしい「生活の芸術」を提供する場所なのです。あなたの新しい物語を、この特別な場所から始めてみませんか。
入ると、落ち着いた色合いの壁に包まれた洋室4.2帖と洋室7.5帖が出迎えます。窓から差し込む光が、優雅なカーテンを揺らし、まるで微風が優しく頬を撫でるかのよう。その瞬間、あなたはこの場所が特別である理由を感じ取ることができるでしょう。LDK10.0帖では、楽しいひとときを分かち合い、家族や友人と共に過ごすことができます。キッチン2.6帖は、料理の魔法をかける場所。ここで自然の恵みを感じながら、五感を刺激する香りに包まれた料理を楽しむことができるのです。
プラウドタワー白金台 12は、まるで静かな湖のほとりの家のように、24時間管理の安心感とフロントサービスが日々の生活を心地よく彩ります。オートロックやTVモニターホンが、あなたのプライベートな空間をしっかりと守ってくれるので、心穏やかに過ごせます。共用ラウンジでは、他の住人との交流も生まれることでしょう。時には、静かに本を開き、また時には、友人たちと共に笑顔の絶えないひとときを過ごせる空間です。
周囲は、白金という名を冠するエレガントな街並み。文化的な香りが漂う中、多くの美術館やギャラリーが点在し、アートを愛する心をくすぐります。また、都営地下鉄浅草線の高輪台駅が徒歩3分という便利な立地は、さまざまな東京の魅力をすぐそばに感じられる特権を与えてくれます。あなたの心に響く歴史が息づく街で、新しい日常が始まります。
プラウドタワー白金台 12は、ただの住まいではなく、あなたの心の拠り所となり、人生の物語の舞台となることでしょう。優雅さと便利さが調和したこの空間で、毎日が映画のワンシーンのように美しく展開されていくのを、心待ちにしてください。この物件は、まさにあなたにふさわしい「生活の芸術」を提供する場所なのです。あなたの新しい物語を、この特別な場所から始めてみませんか。
バイブルスコア
バイブルスコア: 15.7
高級な物件でない場合は割高な物件です。。
※バイブルスコア詳細はこちら
バイブルスコアとは独自のAI機械学習技術を利用した物件評価システムで、物件のおすすめ度を示します。最高得点は100点で、スコアが高いほど、よりおすすめの物件と評価されています。
写真
契約条件
| 賃料 | 予想金額:280,000〜300,000円程度 | 管理費 | 予想金額:0〜2,000円程度 |
| 礼金 | 非公開(アーカイブ) | 敷金 | 非公開(アーカイブ) |
| フリーレント | なし | 平米数 | 54.86㎡ |
| 間取り | 2LDK | 大型収納 | WIC |
| 契約期間 |
| 方角 | 東 |
| 更新料 | 契約形態 | 普通賃貸借契約 | |
| 取引態様 | 媒介 | 内見状況 | 入居中 |
| 入居時期 | 入居中 | SOHO・事務所 | |
| ペット | ペット可 | 間取り内訳 | 洋 4.2/洋 7.5/ LD 10.0/ K 2.6/ |
| キャンペーン情報・備考 | 本情報は賃料改定交渉の資料作成、収益物件の利回り試算、周辺エリアや最寄り駅の坪単価分析、次回募集開始時期の予測などにご活用いただけます。 | ||
※「どの不動産に頼めばいいのか分からない」「信頼できる営業マンの話を聞きたい」「一番親切な会社と契約したい」とお悩みの方におすすめなのが「高級賃貸バイブル」です。
高級賃貸バイブルは業界10年以上の熟練スタッフ群がお客様ファーストで対応します。
下記ボタンから、まずは無料でご相談下さい。
※内覧をご希望の際には、どうぞ物件のエントランス前にてお待ち合わせくださいませ。ご内覧後は、同じ場所でお別れとさせていただきます。お客様のご都合に合わせたスムーズなご案内を心がけておりますので、ご質問等がございましたら何なりとお申し付けください。 物件概要
| 物件名 |
| 築年月 |
|
|---|---|---|---|
| 所在地 | |||
| 交通 | |||
| 総戸数 |
| 総階数 |
|
| 構造 |
| ||
地図
物件までの道のりは、「拡大地図を表示」をクリックしてナビ機能をご利用ください。
部屋設備
















建物設備

24時間管理

TVモニターホン

エレベーター

オートロック

バイク置場

フロントサービス

ラウンジ

宅配ボックス

敷地内ゴミ置場

駐車場平置き

駐車場機械式

駐輪場
プラウドタワー白金台の現在募集中のお部屋
- No rooms found for this property.





















