
| 賃料 | 予想金額:375,000〜395,000円程度 | 管理費 | 予想金額:18,000〜22,000円程度 |
| 礼金/敷金 | 非公開(アーカイブ) | 平米数 | 71.95㎡ |
| 初期費用概算(参考) | 目安:1,820,500〜1,920,500 円 | みなし賃料(月額・参考) | 425,948〜445,948 円 |
| 備考 | 本ページは過去募集のアーカイブです。表示の金額は周辺相場・過去募集を踏まえた参考レンジであり、実際の契約金額・条件ではありません。 | ||
※上記みなし賃料(月額)は仲介手数料割引・無料&キャッシュバックを加味した高級賃貸バイブル限定の金額です。一般的なみなし賃料とは異なります。
【建物ページ】プラウドタワー白金台の詳細・最新空室はこちら▶▶選ばれる理由
仲介手数料無料・キャンペーン情報(毎月15名様限定)
〇仲介手数料割引キャンペーン
プラウドタワー白金台 34階 71.95㎡の口コミ・レビュー
プラウドタワー白金台 34階 71.95㎡、この名はただの物件名ではなく、あなたの人生の舞台となる運命の扉です。まるで一枚の絵画の中で、豊かな色彩が描かれたかのように、広がる風景の中であなたを待ち受けています。34階からの眺望は、東京の喧騒を遠くに置き去りにし、まるで雲の上で心を解き放つ瞬間のようです。気高くそびえるタワーは、ただの建物ではなく、あなたに寄り添い、静かに語りかけます。「私と一緒に、…プラウドタワー白金台 34階 71.95㎡、この名はただの物件名ではなく、あなたの人生の舞台となる運命の扉です。まるで一枚の絵画の中で、豊かな色彩が描かれたかのように、広がる風景の中であなたを待ち受けています。34階からの眺望は、東京の喧騒を遠くに置き去りにし、まるで雲の上で心を解き放つ瞬間のようです。気高くそびえるタワーは、ただの建物ではなく、あなたに寄り添い、静かに語りかけます。「私と一緒に、特別な日常を始めませんか?」
白金台という名の通り、この地には歴史と文化が息づいています。周囲には美術館やギャラリーが点在し、アートに触れることで感性が磨かれるでしょう。日々の生活が、まるで映画のワンシーンのように、美しさに溢れた瞬間で彩られるのです。そして、プラウドタワー白金台のラウンジでのひととき、優雅なソファに身を委ねた瞬間、香ばしいコーヒーの香りが漂い、静かな午後のひとときを味わうことができるでしょう。
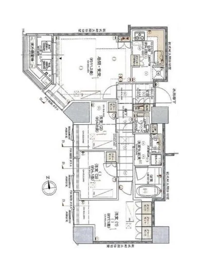
この住まいは、あなたにとってのキャンバスです。LDK 11.2帖の広さは、家族との団欒や友人との集いを華やかに演出します。キッチン4.2帖には、愛情たっぷりの料理が生まれる魔法が宿り、洋室7帖には心の安らぎが宿るでしょう。さらに、4.6帖と4.1帖の洋室は、訪れる人々に温もりをもたらし、あなたの人生のストーリーを共に描くパートナーとなります。
まるで心が踊るような感覚、都会の喧騒が柔らかく包み込む静けさ、そしてその中で感じる自由。それは、プラウドタワー白金台 34階 71.95㎡に住むことによって手に入る贈り物です。西向きの窓から注ぐ柔らかな夕陽は、あなたの日々の疲れを癒す自然の恵み。仕事の後にふと眺めることで、心の深いところまでリフレッシュされるでしょう。
この住まいには、24時間管理の安心感が備わっており、オートロックや宅配ボックスの設備も整っています。まさに現代的な快適さと安全性が共存する空間です。バイク置場や駐車場も完備されており、あなたのライフスタイルに寄り添い、自由な移動をサポートします。
プラウドタワー白金台 34階 71.95㎡は、単なる住まいを超えた、その名の通りの「プラウド」な生活を提供します。ここで過ごすひとときが、あなたにとっての特別な瞬間となり、人生の新たな章を開く鍵となることでしょう。どうか、私と共にこの物語を紡いでいくことをお考えいただければ幸いです。
白金台という名の通り、この地には歴史と文化が息づいています。周囲には美術館やギャラリーが点在し、アートに触れることで感性が磨かれるでしょう。日々の生活が、まるで映画のワンシーンのように、美しさに溢れた瞬間で彩られるのです。そして、プラウドタワー白金台のラウンジでのひととき、優雅なソファに身を委ねた瞬間、香ばしいコーヒーの香りが漂い、静かな午後のひとときを味わうことができるでしょう。
この住まいは、あなたにとってのキャンバスです。LDK 11.2帖の広さは、家族との団欒や友人との集いを華やかに演出します。キッチン4.2帖には、愛情たっぷりの料理が生まれる魔法が宿り、洋室7帖には心の安らぎが宿るでしょう。さらに、4.6帖と4.1帖の洋室は、訪れる人々に温もりをもたらし、あなたの人生のストーリーを共に描くパートナーとなります。
まるで心が踊るような感覚、都会の喧騒が柔らかく包み込む静けさ、そしてその中で感じる自由。それは、プラウドタワー白金台 34階 71.95㎡に住むことによって手に入る贈り物です。西向きの窓から注ぐ柔らかな夕陽は、あなたの日々の疲れを癒す自然の恵み。仕事の後にふと眺めることで、心の深いところまでリフレッシュされるでしょう。
この住まいには、24時間管理の安心感が備わっており、オートロックや宅配ボックスの設備も整っています。まさに現代的な快適さと安全性が共存する空間です。バイク置場や駐車場も完備されており、あなたのライフスタイルに寄り添い、自由な移動をサポートします。
プラウドタワー白金台 34階 71.95㎡は、単なる住まいを超えた、その名の通りの「プラウド」な生活を提供します。ここで過ごすひとときが、あなたにとっての特別な瞬間となり、人生の新たな章を開く鍵となることでしょう。どうか、私と共にこの物語を紡いでいくことをお考えいただければ幸いです。
バイブルスコア
バイブルスコア: 45.2
条件のいい物件です、引っ越しが2か月以内の場合は仮申し込みを検討すべき物件です。
※バイブルスコア詳細はこちら
バイブルスコアとは独自のAI機械学習技術を利用した物件評価システムで、物件のおすすめ度を示します。最高得点は100点で、スコアが高いほど、よりおすすめの物件と評価されています。
写真
契約条件
| 賃料 | 予想金額:375,000〜395,000円程度 | 管理費 | 予想金額:18,000〜22,000円程度 |
| 礼金 | 非公開(アーカイブ) | 敷金 | 非公開(アーカイブ) |
| フリーレント | なし | 平米数 | 71.95㎡ |
| 間取り | 2LDK | 大型収納 | なし |
| 契約期間 | 2年 | 方角 | 西 |
| 更新料 | 1ヶ月 | 契約形態 | 普通賃貸借契約 |
| 取引態様 | 媒介 | 内見状況 | 入居中 |
| 入居時期 | 入居中 | SOHO・事務所 | 不可 |
| ペット | 不可 | 間取り内訳 | LD:11.2 K:4.2 洋:7. 洋:4.6 洋:4.1 |
| キャンペーン情報・備考 | 本情報は賃料改定交渉の資料作成、収益物件の利回り試算、周辺エリアや最寄り駅の坪単価分析、次回募集開始時期の予測などにご活用いただけます。 | ||
※「どの不動産に頼めばいいのか分からない」「信頼できる営業マンの話を聞きたい」「一番親切な会社と契約したい」とお悩みの方におすすめなのが「高級賃貸バイブル」です。
高級賃貸バイブルは業界10年以上の熟練スタッフ群がお客様ファーストで対応します。
下記ボタンから、まずは無料でご相談下さい。
※内覧をご希望の際には、どうぞ物件のエントランス前にてお待ち合わせくださいませ。ご内覧後は、同じ場所でお別れとさせていただきます。お客様のご都合に合わせたスムーズなご案内を心がけておりますので、ご質問等がございましたら何なりとお申し付けください。 物件概要
| 物件名 |
| 築年月 |
|
|---|---|---|---|
| 所在地 | |||
| 交通 | |||
| 総戸数 |
| 総階数 |
|
| 構造 |
| ||
地図
物件までの道のりは、「拡大地図を表示」をクリックしてナビ機能をご利用ください。
部屋設備














建物設備

24時間管理

TVモニターホン

エレベーター

オートロック

バイク置場

フロントサービス

ラウンジ

宅配ボックス

敷地内ゴミ置場

駐車場平置き

駐車場機械式

駐輪場
プラウドタワー白金台の現在募集中のお部屋
- No rooms found for this property.





















