
| 賃料 | 予想金額:265,000〜285,000円程度 | 管理費 | 予想金額:13,000〜17,000円程度 |
| 礼金/敷金 | 非公開(アーカイブ) | 平米数 | 68.02㎡ |
| 初期費用概算(参考) | 目安:1,164,000〜1,264,000 円 | みなし賃料(月額・参考) | 299,563〜319,563 円 |
| 備考 | 本ページは過去募集のアーカイブです。表示の金額は周辺相場・過去募集を踏まえた参考レンジであり、実際の契約金額・条件ではありません。 | ||
※上記みなし賃料(月額)は仲介手数料割引・無料&キャッシュバックを加味した高級賃貸バイブル限定の金額です。一般的なみなし賃料とは異なります。
【建物ページ】クレア白金高輪の詳細・最新空室はこちら▶▶選ばれる理由
仲介手数料無料・キャンペーン情報(毎月15名様限定)
〇仲介手数料割引キャンペーン
クレア白金高輪 201の口コミ・レビュー
「クレア白金高輪 201」は、まるで夢の中の一幕のように、贅沢な日常を約束する特別な空間です。この高級賃貸物件は、あなたの生活に洗練された優雅さをもたらす場所であり、白金の地に根ざす一つのアートのように、あなたを包み込んでくれます。東京都港区白金3-9-7に位置し、南東の陽光が優しく差し込むこの素敵な住まいは、周囲の静寂と調和し、まるで自らが息をするように存在します。
「クレア白金高輪 201」…「クレア白金高輪 201」は、まるで夢の中の一幕のように、贅沢な日常を約束する特別な空間です。この高級賃貸物件は、あなたの生活に洗練された優雅さをもたらす場所であり、白金の地に根ざす一つのアートのように、あなたを包み込んでくれます。東京都港区白金3-9-7に位置し、南東の陽光が優しく差し込むこの素敵な住まいは、周囲の静寂と調和し、まるで自らが息をするように存在します。
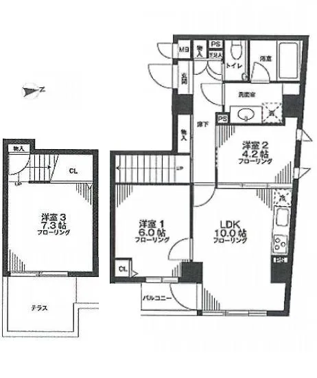
「クレア白金高輪 201」の内部に足を踏み入れると、広がる空間はまさに洗練の極み。68.02㎡の広々とした専有面積を有し、洋室7.3帖、洋室6.0帖、洋室4.2帖、さらには心が躍るLDK10.0帖が、あなたの生活を豊かに彩ります。それぞれの部屋は、まるでアーティストのキャンバスのように多様な表情を持ち、住む方の個性を映し出します。モダンで洗練されたデザインの中にも、温もりを感じさせる柔らかな素材感が漂い、まるで家があなたを優しく迎え入れてくれるかのようです。
白金高輪駅から徒歩6分というアクセスの良さは、都市の喧騒から一歩離れた静かな環境を提供してくれます。この場所は、歴史と文化が息づく地域。洗練されたカフェやアートギャラリーが点在し、散策するだけで心が豊かになり、五感が刺激されます。肌に感じる穏やかな風や、耳に響く優雅な街の音が、心の安らぎを与えてくれるでしょう。
また、「クレア白金高輪 201」には、TVモニターホンやオートロック、宅配ボックスなど、現代的な設備が完備されています。しかしそれらは単なる便利さにとどまらず、住む方が心身ともに安心し、心穏やかに過ごせるための手段でもあります。美しいデザインのエレベーターが静かにあなたを運び、私生活の特別さを演出してくれます。
想像してみてください。朝目覚めたとき、レースカーテン越しに差し込む柔らかな光を浴びながら、軽やかな足取りでLDKへ向かう。深呼吸をすれば、暖かなコーヒーの香りがふわりと漂い、あなたの心をほっこりと満たしてくれます。窓を大きく開ければ、朝の静けさが心地よい音楽のように耳に届くでしょう。日が進むにつれ、夕暮れ時の光が「クレア白金高輪 201」の壁を優しく染める様子は、まるで子供の頃に描いた絵本の一ページのようです。
住むその日から、あなたの生活が映画のワンシーンのように映し出される場所、「クレア白金高輪 201」。その美しく特別な日常が、あなたを待っています。ここでの生活は、毎日が新たな発見と感動に満ちた旅路であり、あなた自身を再発見する場となることでしょう。
「クレア白金高輪 201」…「クレア白金高輪 201」は、まるで夢の中の一幕のように、贅沢な日常を約束する特別な空間です。この高級賃貸物件は、あなたの生活に洗練された優雅さをもたらす場所であり、白金の地に根ざす一つのアートのように、あなたを包み込んでくれます。東京都港区白金3-9-7に位置し、南東の陽光が優しく差し込むこの素敵な住まいは、周囲の静寂と調和し、まるで自らが息をするように存在します。
「クレア白金高輪 201」の内部に足を踏み入れると、広がる空間はまさに洗練の極み。68.02㎡の広々とした専有面積を有し、洋室7.3帖、洋室6.0帖、洋室4.2帖、さらには心が躍るLDK10.0帖が、あなたの生活を豊かに彩ります。それぞれの部屋は、まるでアーティストのキャンバスのように多様な表情を持ち、住む方の個性を映し出します。モダンで洗練されたデザインの中にも、温もりを感じさせる柔らかな素材感が漂い、まるで家があなたを優しく迎え入れてくれるかのようです。
白金高輪駅から徒歩6分というアクセスの良さは、都市の喧騒から一歩離れた静かな環境を提供してくれます。この場所は、歴史と文化が息づく地域。洗練されたカフェやアートギャラリーが点在し、散策するだけで心が豊かになり、五感が刺激されます。肌に感じる穏やかな風や、耳に響く優雅な街の音が、心の安らぎを与えてくれるでしょう。
また、「クレア白金高輪 201」には、TVモニターホンやオートロック、宅配ボックスなど、現代的な設備が完備されています。しかしそれらは単なる便利さにとどまらず、住む方が心身ともに安心し、心穏やかに過ごせるための手段でもあります。美しいデザインのエレベーターが静かにあなたを運び、私生活の特別さを演出してくれます。
想像してみてください。朝目覚めたとき、レースカーテン越しに差し込む柔らかな光を浴びながら、軽やかな足取りでLDKへ向かう。深呼吸をすれば、暖かなコーヒーの香りがふわりと漂い、あなたの心をほっこりと満たしてくれます。窓を大きく開ければ、朝の静けさが心地よい音楽のように耳に届くでしょう。日が進むにつれ、夕暮れ時の光が「クレア白金高輪 201」の壁を優しく染める様子は、まるで子供の頃に描いた絵本の一ページのようです。
住むその日から、あなたの生活が映画のワンシーンのように映し出される場所、「クレア白金高輪 201」。その美しく特別な日常が、あなたを待っています。ここでの生活は、毎日が新たな発見と感動に満ちた旅路であり、あなた自身を再発見する場となることでしょう。
バイブルスコア
バイブルスコア: 19.5
高級な物件でない場合は割高な物件です。。
※バイブルスコア詳細はこちら
バイブルスコアとは独自のAI機械学習技術を利用した物件評価システムで、物件のおすすめ度を示します。最高得点は100点で、スコアが高いほど、よりおすすめの物件と評価されています。
写真
契約条件
| 賃料 | 予想金額:265,000〜285,000円程度 | 管理費 | 予想金額:13,000〜17,000円程度 |
| 礼金 | 非公開(アーカイブ) | 敷金 | 非公開(アーカイブ) |
| フリーレント | なし | 平米数 | 68.02㎡ |
| 間取り | 3LDK | 大型収納 | |
| 契約期間 |
| 方角 | 南東 |
| 更新料 | 契約形態 | 普通賃貸借契約 | |
| 取引態様 | 媒介 | 内見状況 | 入居中 |
| 入居時期 | 入居中 | SOHO・事務所 | |
| ペット | 間取り内訳 | 洋室7.3畳 洋室6.0畳 洋室4.2畳 LDK10.0畳 | |
| キャンペーン情報・備考 | 本情報は賃料改定交渉の資料作成、収益物件の利回り試算、周辺エリアや最寄り駅の坪単価分析、次回募集開始時期の予測などにご活用いただけます。 | ||
※「どの不動産に頼めばいいのか分からない」「信頼できる営業マンの話を聞きたい」「一番親切な会社と契約したい」とお悩みの方におすすめなのが「高級賃貸バイブル」です。
高級賃貸バイブルは業界10年以上の熟練スタッフ群がお客様ファーストで対応します。
下記ボタンから、まずは無料でご相談下さい。
※内覧をご希望の際には、どうぞ物件のエントランス前にてお待ち合わせくださいませ。ご内覧後は、同じ場所でお別れとさせていただきます。お客様のご都合に合わせたスムーズなご案内を心がけておりますので、ご質問等がございましたら何なりとお申し付けください。 物件概要
| 物件名 |
| 築年月 |
|
|---|---|---|---|
| 所在地 | |||
| 交通 | |||
| 総戸数 |
| 総階数 |
|
| 構造 |
| ||
地図
物件までの道のりは、「拡大地図を表示」をクリックしてナビ機能をご利用ください。
部屋設備















建物設備

TVモニターホン

エレベーター

オートロック

宅配ボックス

敷地内ゴミ置場

駐輪場
クレア白金高輪の現在募集中のお部屋
- No rooms found for this property.



















