
| 賃料 | 予想金額:610,000〜630,000円程度 | 管理費 | 予想金額:0〜2,000円程度 |
| 礼金/敷金 | 非公開(アーカイブ) | 平米数 | 152.06㎡ |
| 初期費用概算(参考) | 目安:2,831,500〜2,931,500 円 | みなし賃料(月額・参考) | 657,115〜677,115 円 |
| 備考 | 本ページは過去募集のアーカイブです。表示の金額は周辺相場・過去募集を踏まえた参考レンジであり、実際の契約金額・条件ではありません。 | ||
※上記みなし賃料(月額)は仲介手数料割引・無料&キャッシュバックを加味した高級賃貸バイブル限定の金額です。一般的なみなし賃料とは異なります。
【建物ページ】ベナード高輪の詳細・最新空室はこちら▶▶選ばれる理由
仲介手数料無料・キャンペーン情報(毎月15名様限定)
〇仲介手数料割引キャンペーン
ベナード高輪 201の口コミ・レビュー
「ベナード高輪 201」は、あなたの人生に新たな色彩を添える特別な舞台です。東京都港区高輪3-12-16にひっそりと佇むこの物件は、まるで優雅な女性が舞踏会の主役を待つように、洗練された佇まいを誇っています。152.06㎡の広大な空間が、あなたの心に響くメロディを奏でることでしょう。
南向きの窓から差し込む柔らかな陽光は、まるで晨光の中で花が開くように、心を温かく包み込みます。リビングダイニング…「ベナード高輪 201」は、あなたの人生に新たな色彩を添える特別な舞台です。東京都港区高輪3-12-16にひっそりと佇むこの物件は、まるで優雅な女性が舞踏会の主役を待つように、洗練された佇まいを誇っています。152.06㎡の広大な空間が、あなたの心に響くメロディを奏でることでしょう。
南向きの窓から差し込む柔らかな陽光は、まるで晨光の中で花が開くように、心を温かく包み込みます。リビングダイニングは広々とした25.7帖。ここには家族の笑い声や、友人との語らいが響き、思い出の一コマを彩っていきます。そよ風に乗って、素敵な香りが運ばれてくるような感覚を味わえるでしょう。
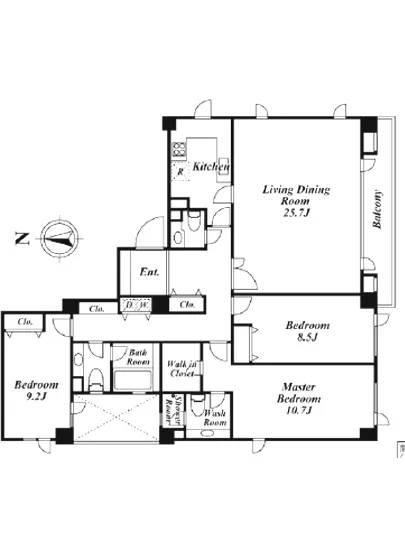
ベナード高輪 201の各寝室は、あなたのプライベートな時間を豊かにするためにデザインされています。10.7帖、9.2帖、そして8.5帖の隠れ家には、自分だけの宝物や夢を詰め込むことができ、夜の静寂の中で思索に耽ることが可能です。ここでのひとときは、まるで心地よい波音を聞きながら読書にふけるビーチサイドの情景のように、安らぎをもたらしてくれることでしょう。
また、ベナード高輪 201の魅力は、その設備にもあります。TVモニターホンからエレベーター、オートロックのセキュリティまで、まるであなたを守る騎士のように守られています。宅配ボックスは、大切な荷物を待つ小さな贈り物のように、あなたのもとへと届けられます。そして、敷地内のゴミ置場や駐車場、駐輪場まで整っており、生活の利便性を高めています。
この物件の周辺には、歴史と文化が織り交ぜられた街並みが広がっています。品川の古き良き歴史とモダンなアートが共存するこのエリアは、歩くたびに新たな発見に満ちています。高輪台駅から徒歩3分の位置にあり、都会の喧騒から一歩距離を置いた静けさを保ちながら、都心の利便性も享受できるのです。
ベナード高輪 201での生活は、まさに人生の一本の映画のようです。朝の光がバルコニーから差し込み、あなたを静かに起こし、愛しい朝食を共にする瞬間。午後は友人とお気に入りのワインを片手に、リビングで笑い合う時間。夜には、星空を眺めながら、静かな感謝の気持ちが溢れてくることでしょう。
心と身体が共鳴するこの場所で、あなたの新しい物語が始まります。ベナード高輪 201は、ただの住まいではなく、あなたの人生そのものを豊かにするための舞台です。さあ、この美しい舞台に足を踏み入れ、人生の新たな一頁を刻んでみませんか。
南向きの窓から差し込む柔らかな陽光は、まるで晨光の中で花が開くように、心を温かく包み込みます。リビングダイニング…「ベナード高輪 201」は、あなたの人生に新たな色彩を添える特別な舞台です。東京都港区高輪3-12-16にひっそりと佇むこの物件は、まるで優雅な女性が舞踏会の主役を待つように、洗練された佇まいを誇っています。152.06㎡の広大な空間が、あなたの心に響くメロディを奏でることでしょう。
南向きの窓から差し込む柔らかな陽光は、まるで晨光の中で花が開くように、心を温かく包み込みます。リビングダイニングは広々とした25.7帖。ここには家族の笑い声や、友人との語らいが響き、思い出の一コマを彩っていきます。そよ風に乗って、素敵な香りが運ばれてくるような感覚を味わえるでしょう。
ベナード高輪 201の各寝室は、あなたのプライベートな時間を豊かにするためにデザインされています。10.7帖、9.2帖、そして8.5帖の隠れ家には、自分だけの宝物や夢を詰め込むことができ、夜の静寂の中で思索に耽ることが可能です。ここでのひとときは、まるで心地よい波音を聞きながら読書にふけるビーチサイドの情景のように、安らぎをもたらしてくれることでしょう。
また、ベナード高輪 201の魅力は、その設備にもあります。TVモニターホンからエレベーター、オートロックのセキュリティまで、まるであなたを守る騎士のように守られています。宅配ボックスは、大切な荷物を待つ小さな贈り物のように、あなたのもとへと届けられます。そして、敷地内のゴミ置場や駐車場、駐輪場まで整っており、生活の利便性を高めています。
この物件の周辺には、歴史と文化が織り交ぜられた街並みが広がっています。品川の古き良き歴史とモダンなアートが共存するこのエリアは、歩くたびに新たな発見に満ちています。高輪台駅から徒歩3分の位置にあり、都会の喧騒から一歩距離を置いた静けさを保ちながら、都心の利便性も享受できるのです。
ベナード高輪 201での生活は、まさに人生の一本の映画のようです。朝の光がバルコニーから差し込み、あなたを静かに起こし、愛しい朝食を共にする瞬間。午後は友人とお気に入りのワインを片手に、リビングで笑い合う時間。夜には、星空を眺めながら、静かな感謝の気持ちが溢れてくることでしょう。
心と身体が共鳴するこの場所で、あなたの新しい物語が始まります。ベナード高輪 201は、ただの住まいではなく、あなたの人生そのものを豊かにするための舞台です。さあ、この美しい舞台に足を踏み入れ、人生の新たな一頁を刻んでみませんか。
バイブルスコア
バイブルスコア: 47.0
条件のいい物件です、引っ越しが2か月以内の場合は仮申し込みを検討すべき物件です。
※バイブルスコア詳細はこちら
バイブルスコアとは独自のAI機械学習技術を利用した物件評価システムで、物件のおすすめ度を示します。最高得点は100点で、スコアが高いほど、よりおすすめの物件と評価されています。
写真
契約条件
| 賃料 | 予想金額:610,000〜630,000円程度 | 管理費 | 予想金額:0〜2,000円程度 |
| 礼金 | 非公開(アーカイブ) | 敷金 | 非公開(アーカイブ) |
| フリーレント | なし | 平米数 | 152.06㎡ |
| 間取り | 2LDK | 大型収納 | WIC |
| 契約期間 |
| 方角 | 南 |
| 更新料 | 契約形態 | 普通賃貸借契約 | |
| 取引態様 | 媒介 | 内見状況 | 入居中 |
| 入居時期 | 入居中 | SOHO・事務所 | |
| ペット | 間取り内訳 | LD=25.7 / BR=10.7 / BR=9.2J / BR=8.5 | |
| キャンペーン情報・備考 | 本情報は賃料改定交渉の資料作成、収益物件の利回り試算、周辺エリアや最寄り駅の坪単価分析、次回募集開始時期の予測などにご活用いただけます。 | ||
※「どの不動産に頼めばいいのか分からない」「信頼できる営業マンの話を聞きたい」「一番親切な会社と契約したい」とお悩みの方におすすめなのが「高級賃貸バイブル」です。
高級賃貸バイブルは業界10年以上の熟練スタッフ群がお客様ファーストで対応します。
下記ボタンから、まずは無料でご相談下さい。
※内覧をご希望の際には、どうぞ物件のエントランス前にてお待ち合わせくださいませ。ご内覧後は、同じ場所でお別れとさせていただきます。お客様のご都合に合わせたスムーズなご案内を心がけておりますので、ご質問等がございましたら何なりとお申し付けください。 物件概要
| 物件名 |
| 築年月 |
|
|---|---|---|---|
| 所在地 | |||
| 交通 | |||
| 総戸数 | 総階数 |
| |
| 構造 |
| ||
地図
物件までの道のりは、「拡大地図を表示」をクリックしてナビ機能をご利用ください。
部屋設備














建物設備

TVモニターホン

エレベーター

オートロック

宅配ボックス

敷地内ゴミ置場

駐車場平置き

駐輪場
ベナード高輪の現在募集中のお部屋
- No rooms found for this property.






















