
| 賃料 | 予想金額:210,000〜230,000円程度 | 管理費 | 予想金額:18,000〜22,000円程度 |
| 礼金/敷金 | 非公開(アーカイブ) | 平米数 | 56.74㎡ |
| 初期費用概算(参考) | 目安:841,500〜941,500 円 | みなし賃料(月額・参考) | 243,990〜263,990 円 |
| 備考 | 本ページは過去募集のアーカイブです。表示の金額は周辺相場・過去募集を踏まえた参考レンジであり、実際の契約金額・条件ではありません。 | ||
※上記みなし賃料(月額)は仲介手数料割引・無料&キャッシュバックを加味した高級賃貸バイブル限定の金額です。一般的なみなし賃料とは異なります。
【建物ページ】ウェリス高輪の詳細・最新空室はこちら▶▶選ばれる理由
仲介手数料無料・キャンペーン情報(毎月15名様限定)
〇仲介手数料割引キャンペーン
ウェリス高輪 201の口コミ・レビュー
ウェリス高輪 201。そう、あなたの新たな生活の舞台がここに、そっと佇んでおります。南西に広がる窓からは、温かな日差しが差し込み、心を解きほぐすように優しく包み込みます。白金高輪駅からわずか徒歩5分という立地は、忙しい日常の中でもあなたに静寂と安息をもたらします。高輪という地名は、歴史と文化が深く根付くエリア。古き良き時代の香りを感じながら、現代的な洗練も味わえる特別な場所です。
ウェリス高輪 …ウェリス高輪 201。そう、あなたの新たな生活の舞台がここに、そっと佇んでおります。南西に広がる窓からは、温かな日差しが差し込み、心を解きほぐすように優しく包み込みます。白金高輪駅からわずか徒歩5分という立地は、忙しい日常の中でもあなたに静寂と安息をもたらします。高輪という地名は、歴史と文化が深く根付くエリア。古き良き時代の香りを感じながら、現代的な洗練も味わえる特別な場所です。
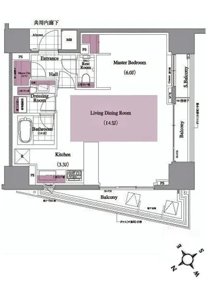
ウェリス高輪 201は、まるで優雅な舞踏会の会場のように、あなたを迎え入れます。専有面積56.74㎡、心を躍らせる1LDKの間取りは、洋室23.8帖と広々としたLDK14.5帖、さらにはゆっくりと安らげるベッドルーム6帖をそなえており、まるでプライベートなアートスペースのように配置されています。その中で、あなたの生活はきっと、多彩な色彩に満ちていることでしょう。
ドアを開けると、ふわりと濃厚なコーヒーの香りが漂い、まるでカフェのような温もりを感じることでしょう。大きな窓からは爽やかな風が吹き込み、道行く人々の笑い声や、心地よい鳥のさえずりが聴こえてきます。手触りの良いフローリングを素足で感じ、気持ちの良い温もりが足先から全身を包み込むのです。
ウェリス高輪 201には、デザインにこだわった洗練された設備が整っており、TVモニターホンやオートロックが安心感を与えてくれるだけでなく、宅配ボックスも完備されているため、忙しい日常でも心に余裕が生まれます。エレベーターでの移動も滑らかで、まるで空を舞うかのような感覚を味わえます。この特別な空間は、あなたの第一歩を映し出す大切なステージとなることでしょう。
また、近隣には美術館や文化施設も点在し、週末にはアートに触れたり、歴史的な散策を楽しんだりすることができる贅沢さも魅力です。まるで映画のワンシーンのように、友人を招いておしゃれなディナーを開いたり、静かな午後に読書に耽る自分を思い描いてみてください。その瞬間、その場所が持つ独自のエネルギーが、あなたの心を軽やかに羽ばたかせてくれるのです。
ウェリス高輪 201は、ただの住まいではなく、あなたの生活を豊かに彩る舞台です。ここでの毎日は、ひとつひとつの瞬間が特別な思い出に変わり、あなた自身をより深く感じさせてくれることでしょう。さあ、新しいスタートを切る準備は整いましたか。この素晴らしい空間で、心豊かな日々を過ごしてみませんか。あなたのお越しを、静かに、しかし確かな期待を持ってお待ちしております。
ウェリス高輪 …ウェリス高輪 201。そう、あなたの新たな生活の舞台がここに、そっと佇んでおります。南西に広がる窓からは、温かな日差しが差し込み、心を解きほぐすように優しく包み込みます。白金高輪駅からわずか徒歩5分という立地は、忙しい日常の中でもあなたに静寂と安息をもたらします。高輪という地名は、歴史と文化が深く根付くエリア。古き良き時代の香りを感じながら、現代的な洗練も味わえる特別な場所です。
ウェリス高輪 201は、まるで優雅な舞踏会の会場のように、あなたを迎え入れます。専有面積56.74㎡、心を躍らせる1LDKの間取りは、洋室23.8帖と広々としたLDK14.5帖、さらにはゆっくりと安らげるベッドルーム6帖をそなえており、まるでプライベートなアートスペースのように配置されています。その中で、あなたの生活はきっと、多彩な色彩に満ちていることでしょう。
ドアを開けると、ふわりと濃厚なコーヒーの香りが漂い、まるでカフェのような温もりを感じることでしょう。大きな窓からは爽やかな風が吹き込み、道行く人々の笑い声や、心地よい鳥のさえずりが聴こえてきます。手触りの良いフローリングを素足で感じ、気持ちの良い温もりが足先から全身を包み込むのです。
ウェリス高輪 201には、デザインにこだわった洗練された設備が整っており、TVモニターホンやオートロックが安心感を与えてくれるだけでなく、宅配ボックスも完備されているため、忙しい日常でも心に余裕が生まれます。エレベーターでの移動も滑らかで、まるで空を舞うかのような感覚を味わえます。この特別な空間は、あなたの第一歩を映し出す大切なステージとなることでしょう。
また、近隣には美術館や文化施設も点在し、週末にはアートに触れたり、歴史的な散策を楽しんだりすることができる贅沢さも魅力です。まるで映画のワンシーンのように、友人を招いておしゃれなディナーを開いたり、静かな午後に読書に耽る自分を思い描いてみてください。その瞬間、その場所が持つ独自のエネルギーが、あなたの心を軽やかに羽ばたかせてくれるのです。
ウェリス高輪 201は、ただの住まいではなく、あなたの生活を豊かに彩る舞台です。ここでの毎日は、ひとつひとつの瞬間が特別な思い出に変わり、あなた自身をより深く感じさせてくれることでしょう。さあ、新しいスタートを切る準備は整いましたか。この素晴らしい空間で、心豊かな日々を過ごしてみませんか。あなたのお越しを、静かに、しかし確かな期待を持ってお待ちしております。
バイブルスコア
バイブルスコア: 66.8
かなり条件の良い物件です、即仮押さえをおすすめする物件です!
このお部屋は、現在ご入居中のため空室情報はございません。ただし、将来的に募集が開始される際、バイブルスコアにおいて非常に高い評価が期待されます。特にご興味をお持ちの方は、今のうちにブックマークやお気に入りに登録していただくと、募集開始のお知らせをすぐに受け取ることができます。是非ともご検討くださいませ。
※バイブルスコア詳細はこちら
バイブルスコアとは独自のAI機械学習技術を利用した物件評価システムで、物件のおすすめ度を示します。最高得点は100点で、スコアが高いほど、よりおすすめの物件と評価されています。
写真
契約条件
| 賃料 | 予想金額:210,000〜230,000円程度 | 管理費 | 予想金額:18,000〜22,000円程度 |
| 礼金 | 非公開(アーカイブ) | 敷金 | 非公開(アーカイブ) |
| フリーレント | なし | 平米数 | 56.74㎡ |
| 間取り | 1LDK | 大型収納 | |
| 契約期間 | 方角 | 南西 | |
| 更新料 | 契約形態 | 定期借家契約 | |
| 取引態様 | 媒介 | 内見状況 | 入居中 |
| 入居時期 | 入居中 | SOHO・事務所 | |
| ペット | 間取り内訳 | 洋室23.8(K=3.3 / LD=14.5 / bedroom=6) | |
| キャンペーン情報・備考 | 本情報は賃料改定交渉の資料作成、収益物件の利回り試算、周辺エリアや最寄り駅の坪単価分析、次回募集開始時期の予測などにご活用いただけます。 | ||
※「どの不動産に頼めばいいのか分からない」「信頼できる営業マンの話を聞きたい」「一番親切な会社と契約したい」とお悩みの方におすすめなのが「高級賃貸バイブル」です。
高級賃貸バイブルは業界10年以上の熟練スタッフ群がお客様ファーストで対応します。
下記ボタンから、まずは無料でご相談下さい。
※内覧をご希望の際には、どうぞ物件のエントランス前にてお待ち合わせくださいませ。ご内覧後は、同じ場所でお別れとさせていただきます。お客様のご都合に合わせたスムーズなご案内を心がけておりますので、ご質問等がございましたら何なりとお申し付けください。 物件概要
| 物件名 |
| 築年月 |
|
|---|---|---|---|
| 所在地 | |||
| 交通 | |||
| 総戸数 |
| 総階数 |
|
| 構造 |
| ||
地図
物件までの道のりは、「拡大地図を表示」をクリックしてナビ機能をご利用ください。
部屋設備
















建物設備

TVモニターホン

エレベーター

オートロック

宅配ボックス

敷地内ゴミ置場

駐車場機械式

駐輪場
ウェリス高輪の現在募集中のお部屋
- ウェリス高輪 9階 83.32㎡ - 間取り: 3LDK - 賃料: 44万円



















