
| 賃料 | 予想金額:80,000〜100,000円程度 | 管理費 | 予想金額:6,000〜10,000円程度 |
| 礼金/敷金 | 非公開(アーカイブ) | 平米数 | 24.15㎡ |
| 初期費用概算(参考) | 目安:368,500〜468,500 円 | みなし賃料(月額・参考) | 94,844〜114,844 円 |
| 備考 | 本ページは過去募集のアーカイブです。表示の金額は周辺相場・過去募集を踏まえた参考レンジであり、実際の契約金額・条件ではありません。 | ||
※上記みなし賃料(月額)は仲介手数料割引・無料&キャッシュバックを加味した高級賃貸バイブル限定の金額です。一般的なみなし賃料とは異なります。
【建物ページ】プレール・ドゥーク高輪の詳細・最新空室はこちら▶▶選ばれる理由
仲介手数料無料・キャンペーン情報(毎月15名様限定)
〇仲介手数料割引キャンペーン
プレール・ドゥーク高輪 501の口コミ・レビュー
プレール・ドゥーク高輪 501。この名は、まるで優雅なワルツの旋律のように、あなたの心に響きます。高輪の地に佇むこの物件は、北を向き、朝陽に照らされることなく、大人のための静謐な世界を創り出しています。専有面積は24.15㎡と、丁寧に設計された空間が、あなたを包み込むように広がります。ここでの生活は、まるで美しい映画の一幕。どんなシーンが展開されるのか、期待に胸が弾むことでしょう。
あなたがプレ…プレール・ドゥーク高輪 501。この名は、まるで優雅なワルツの旋律のように、あなたの心に響きます。高輪の地に佇むこの物件は、北を向き、朝陽に照らされることなく、大人のための静謐な世界を創り出しています。専有面積は24.15㎡と、丁寧に設計された空間が、あなたを包み込むように広がります。ここでの生活は、まるで美しい映画の一幕。どんなシーンが展開されるのか、期待に胸が弾むことでしょう。
あなたがプレール・ドゥーク高輪 501 の扉を開ける瞬間、柔らかな木の温もりが感じられる洋室6.8帖が、あなたを迎え入れます。穏やかな光が差し込み、静寂の中にふわりと浮かぶ香りは、アロマのように心地よく、日常を忘れさせます。隅々にまで行き届いたディテールが、あなたの感覚を刺激し、心を落ち着かせます。
この高級賃貸物件には、心強い設備がそろっています。TVモニターホンが、まるで忠実な番犬のように、来訪者を見張る姿は安心感を与え、オートロックの扉は、貴族の城塞のごとく、あなたを外界の喧騒から守ります。宅配ボックスでは、日常の小さな幸せであるお届け物を、待ちきれない心で迎え入れることができ、エレベーターでさえも、その旅の一部として、あなたを軽やかに目的地へと運んでくれます。
また、プレール・ドゥーク高輪 501 の周辺には、歴史と文化が息づいています。近くにそびえる美術館や、隠れた名店が、日常を特別なものに変えてくれます。白金高輪駅まで徒歩4分という距離感も、まるでリズミカルな足音が響き渡る街の中で、あなたの心を自由に羽ばたかせてくれるでしょう。文化の薫りに包まれたこの街で、新たな発見や刺激に心躍らせる毎日を想像してみてください。
プレール・ドゥーク高輪 501は、ただの住まいではなく、あなたの心の故郷となる場所です。ここでの生活は、一瞬一瞬が特別な映画のワンシーンとなり、毎日が新たな物語へと続いていくことでしょう。この場所で、あなたらしい人生を描いてみませんか?
あなたがプレ…プレール・ドゥーク高輪 501。この名は、まるで優雅なワルツの旋律のように、あなたの心に響きます。高輪の地に佇むこの物件は、北を向き、朝陽に照らされることなく、大人のための静謐な世界を創り出しています。専有面積は24.15㎡と、丁寧に設計された空間が、あなたを包み込むように広がります。ここでの生活は、まるで美しい映画の一幕。どんなシーンが展開されるのか、期待に胸が弾むことでしょう。
あなたがプレール・ドゥーク高輪 501 の扉を開ける瞬間、柔らかな木の温もりが感じられる洋室6.8帖が、あなたを迎え入れます。穏やかな光が差し込み、静寂の中にふわりと浮かぶ香りは、アロマのように心地よく、日常を忘れさせます。隅々にまで行き届いたディテールが、あなたの感覚を刺激し、心を落ち着かせます。
この高級賃貸物件には、心強い設備がそろっています。TVモニターホンが、まるで忠実な番犬のように、来訪者を見張る姿は安心感を与え、オートロックの扉は、貴族の城塞のごとく、あなたを外界の喧騒から守ります。宅配ボックスでは、日常の小さな幸せであるお届け物を、待ちきれない心で迎え入れることができ、エレベーターでさえも、その旅の一部として、あなたを軽やかに目的地へと運んでくれます。
また、プレール・ドゥーク高輪 501 の周辺には、歴史と文化が息づいています。近くにそびえる美術館や、隠れた名店が、日常を特別なものに変えてくれます。白金高輪駅まで徒歩4分という距離感も、まるでリズミカルな足音が響き渡る街の中で、あなたの心を自由に羽ばたかせてくれるでしょう。文化の薫りに包まれたこの街で、新たな発見や刺激に心躍らせる毎日を想像してみてください。
プレール・ドゥーク高輪 501は、ただの住まいではなく、あなたの心の故郷となる場所です。ここでの生活は、一瞬一瞬が特別な映画のワンシーンとなり、毎日が新たな物語へと続いていくことでしょう。この場所で、あなたらしい人生を描いてみませんか?
バイブルスコア
バイブルスコア: 46.5
条件のいい物件です、引っ越しが2か月以内の場合は仮申し込みを検討すべき物件です。
※バイブルスコア詳細はこちら
バイブルスコアとは独自のAI機械学習技術を利用した物件評価システムで、物件のおすすめ度を示します。最高得点は100点で、スコアが高いほど、よりおすすめの物件と評価されています。
写真
契約条件
| 賃料 | 予想金額:80,000〜100,000円程度 | 管理費 | 予想金額:6,000〜10,000円程度 |
| 礼金 | 非公開(アーカイブ) | 敷金 | 非公開(アーカイブ) |
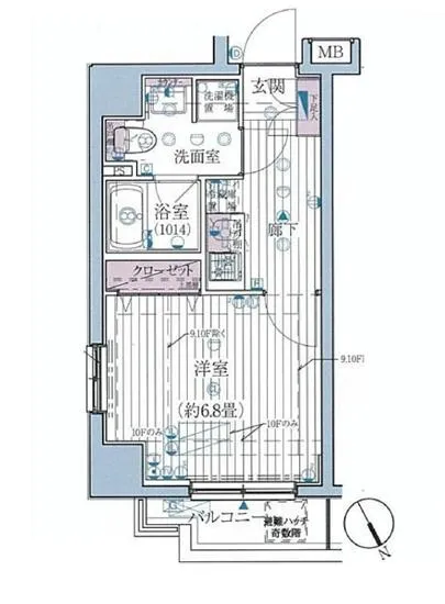
| フリーレント | なし | 平米数 | 24.15㎡ |
| 間取り | 1K | 大型収納 | |
| 契約期間 |
| 方角 | 北 |
| 更新料 | 契約形態 | 普通賃貸借契約 | |
| 取引態様 | 媒介 | 内見状況 | 入居中 |
| 入居時期 | 入居中 | SOHO・事務所 | |
| ペット | 間取り内訳 | 洋室6.8 | |
| キャンペーン情報・備考 | 本情報は賃料改定交渉の資料作成、収益物件の利回り試算、周辺エリアや最寄り駅の坪単価分析、次回募集開始時期の予測などにご活用いただけます。 | ||
※「どの不動産に頼めばいいのか分からない」「信頼できる営業マンの話を聞きたい」「一番親切な会社と契約したい」とお悩みの方におすすめなのが「高級賃貸バイブル」です。
高級賃貸バイブルは業界10年以上の熟練スタッフ群がお客様ファーストで対応します。
下記ボタンから、まずは無料でご相談下さい。
※内覧をご希望の際には、どうぞ物件のエントランス前にてお待ち合わせくださいませ。ご内覧後は、同じ場所でお別れとさせていただきます。お客様のご都合に合わせたスムーズなご案内を心がけておりますので、ご質問等がございましたら何なりとお申し付けください。 物件概要
| 物件名 |
| 築年月 |
|
|---|---|---|---|
| 所在地 | |||
| 交通 | |||
| 総戸数 |
| 総階数 |
|
| 構造 |
| ||
地図
物件までの道のりは、「拡大地図を表示」をクリックしてナビ機能をご利用ください。
部屋設備














建物設備

TVモニターホン

エレベーター

オートロック

宅配ボックス

敷地内ゴミ置場

駐輪場
プレール・ドゥーク高輪の現在募集中のお部屋
- No rooms found for this property.









