
| 賃料 | 予想金額:210,000〜230,000円程度 | 管理費 | 予想金額:0〜2,000円程度 |
| 礼金/敷金 | 非公開(アーカイブ) | 平米数 | 57.15㎡ |
| 初期費用概算(参考) | 目安:1,031,500〜1,131,500 円 | みなし賃料(月額・参考) | 227,948〜247,948 円 |
| 備考 | 本ページは過去募集のアーカイブです。表示の金額は周辺相場・過去募集を踏まえた参考レンジであり、実際の契約金額・条件ではありません。 | ||
※上記みなし賃料(月額)は仲介手数料割引・無料&キャッシュバックを加味した高級賃貸バイブル限定の金額です。一般的なみなし賃料とは異なります。
【建物ページ】グランドメゾン麻布十番館の詳細・最新空室はこちら▶▶選ばれる理由
仲介手数料無料・キャンペーン情報(毎月15名様限定)
〇仲介手数料割引キャンペーン
グランドメゾン麻布十番館 1003の口コミ・レビュー
グランドメゾン麻布十番館 1003という名を冠したこの特別な住まいは、まるで都会の中の静かなオアシスのような存在です。東京都港区麻布十番に位置し、地元の文化や歴史が息づくこの場所は、あなたを新たな生活の舞台に誘います。南向きの住空間は、柔らかな日差しが心地よく差し込み、朝の光を浴びながら1日の始まりを迎えることができます。これからの生活は、まさに映画のワンシーンのような体験となるでしょう。
入る…グランドメゾン麻布十番館 1003という名を冠したこの特別な住まいは、まるで都会の中の静かなオアシスのような存在です。東京都港区麻布十番に位置し、地元の文化や歴史が息づくこの場所は、あなたを新たな生活の舞台に誘います。南向きの住空間は、柔らかな日差しが心地よく差し込み、朝の光を浴びながら1日の始まりを迎えることができます。これからの生活は、まさに映画のワンシーンのような体験となるでしょう。
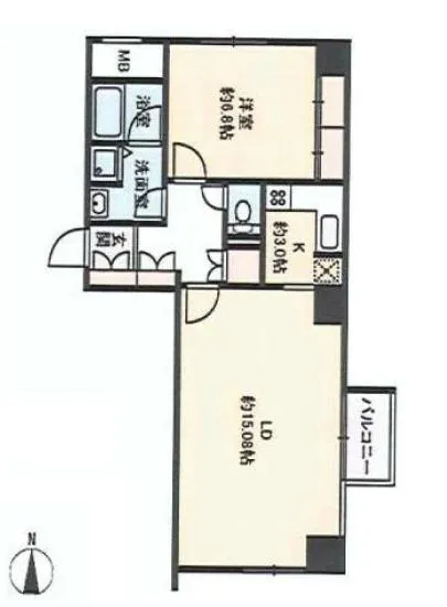
入る前からその存在感を放つグランドメゾン麻布十番館 1003は、57.15㎡の広々とした空間を持ち、1LDKの設計はあなたにとっての理想の隠れ家を提供します。洋室は6.8帖、LDKは15.08帖という贅沢な広さで、あなたの毎日を豊かに彩ります。家に足を踏み入れると、柔らかな光が優しく包み込み、どこか懐かしい温もりを感じさせてくれます。思わず深呼吸をすると、あたたかいコーヒーの香りが漂い、心をリフレッシュさせることでしょう。
エレベーターでの上昇は、まるで特別な儀式のように心を高鳴らせ、オートロックによる安心感はカメリアの花びらのようにあなたの日常に優雅さを添えます。敷地内のゴミ置場や駐輪場は、細やかな配慮が行き届いていることを物語り、生活の便利さをさらに高めます。
グランドメゾン麻布十番館 1003の隣には、洗練されたカフェやレストランが立ち並び、まるで一流の映画のセットの中にいるかのような気分を存分に味わうことができます。麻布十番駅から徒歩1分という立地は、都市の喧騒からもすぐに逃げられる絶妙な距離を保ち、また、歴史的な名所も近くにあります。創業100年以上の老舗和菓子店や、アートギャラリーも徒歩圏内にあり、日常生活の中で豊かな感性を育んでいくことができます。
この住まいは、ただの居住空間ではなく、あなたの人生を映画のように演出するための舞台です。友人を招いてのディナーは、LDKの広さを存分に生かした記憶に残る素敵なひとときになります。ワインの香りと笑い声が響き渡り、幸せな空気が漂うことでしょう。そして、ゆったりとした洋室でのくつろぎの時間は、まるで自分だけの秘密の隠れ家にいるかのような非日常を感じさせてくれます。
グランドメゾン麻布十番館 1003は、あなたの新たな物語の始まりを告げる場所です。心が求めるすべてがここに詰まっています。日々の生活が、まるで夢の中にいるかのような素晴らしい体験へと変貌することを、ぜひ実感してみてください。
入る…グランドメゾン麻布十番館 1003という名を冠したこの特別な住まいは、まるで都会の中の静かなオアシスのような存在です。東京都港区麻布十番に位置し、地元の文化や歴史が息づくこの場所は、あなたを新たな生活の舞台に誘います。南向きの住空間は、柔らかな日差しが心地よく差し込み、朝の光を浴びながら1日の始まりを迎えることができます。これからの生活は、まさに映画のワンシーンのような体験となるでしょう。
入る前からその存在感を放つグランドメゾン麻布十番館 1003は、57.15㎡の広々とした空間を持ち、1LDKの設計はあなたにとっての理想の隠れ家を提供します。洋室は6.8帖、LDKは15.08帖という贅沢な広さで、あなたの毎日を豊かに彩ります。家に足を踏み入れると、柔らかな光が優しく包み込み、どこか懐かしい温もりを感じさせてくれます。思わず深呼吸をすると、あたたかいコーヒーの香りが漂い、心をリフレッシュさせることでしょう。
エレベーターでの上昇は、まるで特別な儀式のように心を高鳴らせ、オートロックによる安心感はカメリアの花びらのようにあなたの日常に優雅さを添えます。敷地内のゴミ置場や駐輪場は、細やかな配慮が行き届いていることを物語り、生活の便利さをさらに高めます。
グランドメゾン麻布十番館 1003の隣には、洗練されたカフェやレストランが立ち並び、まるで一流の映画のセットの中にいるかのような気分を存分に味わうことができます。麻布十番駅から徒歩1分という立地は、都市の喧騒からもすぐに逃げられる絶妙な距離を保ち、また、歴史的な名所も近くにあります。創業100年以上の老舗和菓子店や、アートギャラリーも徒歩圏内にあり、日常生活の中で豊かな感性を育んでいくことができます。
この住まいは、ただの居住空間ではなく、あなたの人生を映画のように演出するための舞台です。友人を招いてのディナーは、LDKの広さを存分に生かした記憶に残る素敵なひとときになります。ワインの香りと笑い声が響き渡り、幸せな空気が漂うことでしょう。そして、ゆったりとした洋室でのくつろぎの時間は、まるで自分だけの秘密の隠れ家にいるかのような非日常を感じさせてくれます。
グランドメゾン麻布十番館 1003は、あなたの新たな物語の始まりを告げる場所です。心が求めるすべてがここに詰まっています。日々の生活が、まるで夢の中にいるかのような素晴らしい体験へと変貌することを、ぜひ実感してみてください。
バイブルスコア
バイブルスコア: 64.1
かなり条件の良い物件です、即仮押さえをおすすめする物件です!
このお部屋は、現在ご入居中のため空室情報はございません。ただし、将来的に募集が開始される際、バイブルスコアにおいて非常に高い評価が期待されます。特にご興味をお持ちの方は、今のうちにブックマークやお気に入りに登録していただくと、募集開始のお知らせをすぐに受け取ることができます。是非ともご検討くださいませ。
※バイブルスコア詳細はこちら
バイブルスコアとは独自のAI機械学習技術を利用した物件評価システムで、物件のおすすめ度を示します。最高得点は100点で、スコアが高いほど、よりおすすめの物件と評価されています。
写真
契約条件
| 賃料 | 予想金額:210,000〜230,000円程度 | 管理費 | 予想金額:0〜2,000円程度 |
| 礼金 | 非公開(アーカイブ) | 敷金 | 非公開(アーカイブ) |
| フリーレント | なし | 平米数 | 57.15㎡ |
| 間取り | 1LDK | 大型収納 | |
| 契約期間 |
| 方角 | 南 |
| 更新料 | 契約形態 | 普通賃貸借契約 | |
| 取引態様 | 媒介 | 内見状況 | 入居中 |
| 入居時期 | 入居中 | SOHO・事務所 | |
| ペット | 間取り内訳 | 洋:6.8 LDK:15.08 | |
| キャンペーン情報・備考 | 本情報は賃料改定交渉の資料作成、収益物件の利回り試算、周辺エリアや最寄り駅の坪単価分析、次回募集開始時期の予測などにご活用いただけます。 | ||
※「どの不動産に頼めばいいのか分からない」「信頼できる営業マンの話を聞きたい」「一番親切な会社と契約したい」とお悩みの方におすすめなのが「高級賃貸バイブル」です。
高級賃貸バイブルは業界10年以上の熟練スタッフ群がお客様ファーストで対応します。
下記ボタンから、まずは無料でご相談下さい。
※内覧をご希望の際には、どうぞ物件のエントランス前にてお待ち合わせくださいませ。ご内覧後は、同じ場所でお別れとさせていただきます。お客様のご都合に合わせたスムーズなご案内を心がけておりますので、ご質問等がございましたら何なりとお申し付けください。 物件概要
| 物件名 |
| 築年月 |
|
|---|---|---|---|
| 所在地 | |||
| 交通 | |||
| 総戸数 |
| 総階数 |
|
| 構造 |
| ||
地図
物件までの道のりは、「拡大地図を表示」をクリックしてナビ機能をご利用ください。
部屋設備









建物設備

エレベーター

オートロック

敷地内ゴミ置場

駐輪場
グランドメゾン麻布十番館の現在募集中のお部屋
- No rooms found for this property.




















