
| 賃料 | 予想金額:551,000〜571,000円程度 | 管理費 | 予想金額:0〜2,000円程度 |
| 礼金/敷金 | 非公開(アーカイブ) | 平米数 | 153.6㎡ |
| 初期費用概算(参考) | 目安:3,688,000〜3,788,000 円 | みなし賃料(月額・参考) | 617,188〜637,188 円 |
| 備考 | 本ページは過去募集のアーカイブです。表示の金額は周辺相場・過去募集を踏まえた参考レンジであり、実際の契約金額・条件ではありません。 | ||
※上記みなし賃料(月額)は仲介手数料割引・無料&キャッシュバックを加味した高級賃貸バイブル限定の金額です。一般的なみなし賃料とは異なります。
【建物ページ】ペガサス青山レジデンスの詳細・最新空室はこちら▶▶選ばれる理由
仲介手数料無料・キャンペーン情報(毎月15名様限定)
〇仲介手数料割引キャンペーン
ペガサス青山レジデンス 310の口コミ・レビュー
ペガサス青山レジデンス 310。この名は、まるで空を舞う神話の生き物のように、高雅で洗練された暮らしの象徴です。この特別な場所は、東京都港区赤坂8-5-40に位置し、北東の優雅な風を受けながら、暮らす者に詩情あふれる生活を約束します。
このペガサス青山レジデンス 310は、あなたを異世界へと誘う扉を開きます。専有面積153.6㎡、その広大な空間は住まう人々の心を満たし、自分だけのアートを描くキャ…ペガサス青山レジデンス 310。この名は、まるで空を舞う神話の生き物のように、高雅で洗練された暮らしの象徴です。この特別な場所は、東京都港区赤坂8-5-40に位置し、北東の優雅な風を受けながら、暮らす者に詩情あふれる生活を約束します。
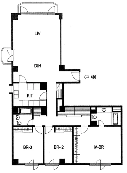
このペガサス青山レジデンス 310は、あなたを異世界へと誘う扉を開きます。専有面積153.6㎡、その広大な空間は住まう人々の心を満たし、自分だけのアートを描くキャンバスとなることでしょう。LDKは27.9帖もの広さを誇り、家族や友人と共に過ごすかけがえのないひとときに、まるで映画のワンシーンが現実となったかのような実感を与えてくれます。柔らかな光が射し込むこの空間で、朝のコーヒーの香ばしさや、夜のワインの芳醇な香りが交錯し、五感を刺激することでしょう。特に、そのLDKに面する窓から見える、都会の喧騒を遠くに感じる静謐な眺望もまた一つの贅沢です。
続いて、洋室へと足を運んでみてください。ここには、それぞれが個性を持つ3つの洋室が広がります。洋13.9帖、洋8.7帖、洋6.5帖のそれぞれが、それぞれの夢や希望を包み込む巣のような存在であり、静寂に包まれた安らぎの時間を提供します。心地よい風が吹き抜ける窓辺に座り、好きな本を片手に、日々のストレスを忘れてみてはいかがでしょうか。その瞬間、時間が止まったかのように感じることでしょう。
ペガサス青山レジデンス 310の魅力は、単なる居住空間にとどまりません。この物件は、エレベーターとオートロックを備えた洗練されたエントランスを持っており、あなたのプライバシーと安全をしっかりと守ります。ヴィンテージな雰囲気は、まるでその歴史が語りかけてくるかのようです。また、敷地内ゴミ置場や駐車場平置き、駐輪場など、暮らしを支える充実の設備も魅力の一つです。
最寄りの東京メトロ半蔵門線 青山一丁目駅から徒歩わずか2分。忙しい日常の中で、すぐにアクセスできる利便性は、まるで心強いサポーターのように、あなたの生活を豊かに彩ります。青山の街並みは、その洗練さとともに、文化や芸術が息づく場所であり、歴史を感じさせる散策コースが数多く存在します。アートギャラリーやカフェが並ぶ通りを歩きながら、心の豊かさを一層深めることでしょう。
ペガサス青山レジデンス 310での生活は、まさに人生のハイライトのようなものです。ここには、ただの住まいではなく、あなたの物語を描くための舞台が待っています。物件があなたに語りかけるのは、「さあ、共にこの人生を楽しもう」というメッセージです。あなたの新たな伝説が始まる場所、ペガサス青山レジデンス 310にぜひお越しください。
このペガサス青山レジデンス 310は、あなたを異世界へと誘う扉を開きます。専有面積153.6㎡、その広大な空間は住まう人々の心を満たし、自分だけのアートを描くキャ…ペガサス青山レジデンス 310。この名は、まるで空を舞う神話の生き物のように、高雅で洗練された暮らしの象徴です。この特別な場所は、東京都港区赤坂8-5-40に位置し、北東の優雅な風を受けながら、暮らす者に詩情あふれる生活を約束します。
このペガサス青山レジデンス 310は、あなたを異世界へと誘う扉を開きます。専有面積153.6㎡、その広大な空間は住まう人々の心を満たし、自分だけのアートを描くキャンバスとなることでしょう。LDKは27.9帖もの広さを誇り、家族や友人と共に過ごすかけがえのないひとときに、まるで映画のワンシーンが現実となったかのような実感を与えてくれます。柔らかな光が射し込むこの空間で、朝のコーヒーの香ばしさや、夜のワインの芳醇な香りが交錯し、五感を刺激することでしょう。特に、そのLDKに面する窓から見える、都会の喧騒を遠くに感じる静謐な眺望もまた一つの贅沢です。
続いて、洋室へと足を運んでみてください。ここには、それぞれが個性を持つ3つの洋室が広がります。洋13.9帖、洋8.7帖、洋6.5帖のそれぞれが、それぞれの夢や希望を包み込む巣のような存在であり、静寂に包まれた安らぎの時間を提供します。心地よい風が吹き抜ける窓辺に座り、好きな本を片手に、日々のストレスを忘れてみてはいかがでしょうか。その瞬間、時間が止まったかのように感じることでしょう。
ペガサス青山レジデンス 310の魅力は、単なる居住空間にとどまりません。この物件は、エレベーターとオートロックを備えた洗練されたエントランスを持っており、あなたのプライバシーと安全をしっかりと守ります。ヴィンテージな雰囲気は、まるでその歴史が語りかけてくるかのようです。また、敷地内ゴミ置場や駐車場平置き、駐輪場など、暮らしを支える充実の設備も魅力の一つです。
最寄りの東京メトロ半蔵門線 青山一丁目駅から徒歩わずか2分。忙しい日常の中で、すぐにアクセスできる利便性は、まるで心強いサポーターのように、あなたの生活を豊かに彩ります。青山の街並みは、その洗練さとともに、文化や芸術が息づく場所であり、歴史を感じさせる散策コースが数多く存在します。アートギャラリーやカフェが並ぶ通りを歩きながら、心の豊かさを一層深めることでしょう。
ペガサス青山レジデンス 310での生活は、まさに人生のハイライトのようなものです。ここには、ただの住まいではなく、あなたの物語を描くための舞台が待っています。物件があなたに語りかけるのは、「さあ、共にこの人生を楽しもう」というメッセージです。あなたの新たな伝説が始まる場所、ペガサス青山レジデンス 310にぜひお越しください。
バイブルスコア
バイブルスコア: 25
平均的なスコアです。
※バイブルスコア詳細はこちら
バイブルスコアとは独自のAI機械学習技術を利用した物件評価システムで、物件のおすすめ度を示します。最高得点は100点で、スコアが高いほど、よりおすすめの物件と評価されています。
写真
現在写真が登録されていません契約条件
| 賃料 | 予想金額:551,000〜571,000円程度 | 管理費 | 予想金額:0〜2,000円程度 |
| 礼金 | 非公開(アーカイブ) | 敷金 | 非公開(アーカイブ) |
| フリーレント | なし | 平米数 | 153.6㎡ |
| 間取り | 3LDK | 大型収納 | |
| 契約期間 |
| 方角 | 北東 |
| 更新料 | 契約形態 | 普通賃貸借契約 | |
| 取引態様 | 媒介 | 内見状況 | 入居中 |
| 入居時期 | 入居中 | SOHO・事務所 | |
| ペット | ペット可 | 間取り内訳 | LDK27.9 / 洋13.9 / 洋8.7 / 洋6.5 |
| キャンペーン情報・備考 | 本情報は賃料改定交渉の資料作成、収益物件の利回り試算、周辺エリアや最寄り駅の坪単価分析、次回募集開始時期の予測などにご活用いただけます。 | ||
※「どの不動産に頼めばいいのか分からない」「信頼できる営業マンの話を聞きたい」「一番親切な会社と契約したい」とお悩みの方におすすめなのが「高級賃貸バイブル」です。
高級賃貸バイブルは業界10年以上の熟練スタッフ群がお客様ファーストで対応します。
下記ボタンから、まずは無料でご相談下さい。
※内覧をご希望の際には、どうぞ物件のエントランス前にてお待ち合わせくださいませ。ご内覧後は、同じ場所でお別れとさせていただきます。お客様のご都合に合わせたスムーズなご案内を心がけておりますので、ご質問等がございましたら何なりとお申し付けください。 物件概要
| 物件名 |
| 築年月 |
|
|---|---|---|---|
| 所在地 | |||
| 交通 | |||
| 総戸数 | 総階数 |
| |
| 構造 |
| ||
地図
物件までの道のりは、「拡大地図を表示」をクリックしてナビ機能をご利用ください。
部屋設備












建物設備

エレベーター

オートロック

敷地内ゴミ置場

駐車場平置き

駐輪場
ペガサス青山レジデンスの現在募集中のお部屋
- No rooms found for this property.
