
| 賃料 | 予想金額:125,000〜145,000円程度 | 管理費 | 予想金額:3,000〜7,000円程度 |
| 礼金/敷金 | 非公開(アーカイブ) | 平米数 | 35.62㎡ |
| 初期費用概算(参考) | 目安:538,000〜638,000 円 | みなし賃料(月額・参考) | 139,438〜159,438 円 |
| 備考 | 本ページは過去募集のアーカイブです。表示の金額は周辺相場・過去募集を踏まえた参考レンジであり、実際の契約金額・条件ではありません。 | ||
※上記みなし賃料(月額)は仲介手数料割引・無料&キャッシュバックを加味した高級賃貸バイブル限定の金額です。一般的なみなし賃料とは異なります。
【建物ページ】ジェイパークステーション田町の詳細・最新空室はこちら▶▶選ばれる理由
仲介手数料無料・キャンペーン情報(毎月15名様限定)
〇仲介手数料割引キャンペーン
ジェイパークステーション田町 505の口コミ・レビュー
ジェイパークステーション田町 505。この名を携えた物件は、まるで洗練された都会のオアシスであり、あなたの新しい生活の舞台を提供します。東京都港区芝5-19-5という特別な場所で、生活のすべてが手の届く範囲に広がるこのマンションは、ただの住まいを超えた特別な存在です。
最寄駅の都営地下鉄三田線三田駅から徒歩1分の立地は、あなたにとって日常の喧騒から逃れられる憩いの時間を約束します。まるで朝の光に…ジェイパークステーション田町 505。この名を携えた物件は、まるで洗練された都会のオアシスであり、あなたの新しい生活の舞台を提供します。東京都港区芝5-19-5という特別な場所で、生活のすべてが手の届く範囲に広がるこのマンションは、ただの住まいを超えた特別な存在です。
最寄駅の都営地下鉄三田線三田駅から徒歩1分の立地は、あなたにとって日常の喧騒から逃れられる憩いの時間を約束します。まるで朝の光に包まれた街に、一歩足を踏み入れる瞬間、その瞬間がまるで映画のワンシーンのように感じることでしょう。変わりゆく季節と共に、街の表情が移り変わる様子を、窓の外から感じることができるのです。
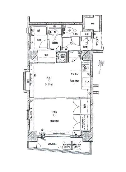
ジェイパークステーション田町 505の内部に足を踏み入れると、まずあなたを迎えるのは、広々としたスペースを持つ1DKの間取りです。7.8帖のダイニングキッチン(DK)は、料理の香ばしい匂いが漂う中で、友人たちとの楽しいひとときを過ごすための舞台です。ここでは、音楽が流れる中、笑い声や食材が鍋の中で踊る音が交じり合い、心を豊かにする時間が流れます。そして、6帖の寝室(BR)では、リラックスした空間で心地よい眠りに誘われることでしょう。
このマンションは、あなたを日々のストレスから解放してくれる美しい場所です。オートロックや宅配ボックスなどのセキュリティ設備が整っているため、安全で安心な生活を送ることができます。また、エレベーターでスムーズに移動できる利便性も、忙しい現代人にとって重要な要素です。白い壁にシンプルなデザインの中に、あなた自身のスタイルを加えていく楽しみも待っています。
周囲には、歴史の香り漂う芝公園や、文化的な魅力に溢れたアートギャラリーが建ち並び、生活の中で多くの刺激を受けることができます。風にそよぐ木々の音や、街の賑わいが心に響き、あなたの感性を豊かにしてくれることでしょう。周辺のカフェでは、芳醇なコーヒーの香りが漂い、食べる喜びがふくらむ瞬間も楽しむことができます。
ジェイパークステーション田町 505での生活は、単なる日常ではなく、心に残るストーリーの始まりです。あなたがこの場所で過ごすことで、日々の生活に新たな彩りが加わり、未来への期待が膨らむことでしょう。この場所が、あなたにとっての新しい家族となり、共に素敵な時間を分かち合うことを心より願っております。
最寄駅の都営地下鉄三田線三田駅から徒歩1分の立地は、あなたにとって日常の喧騒から逃れられる憩いの時間を約束します。まるで朝の光に…ジェイパークステーション田町 505。この名を携えた物件は、まるで洗練された都会のオアシスであり、あなたの新しい生活の舞台を提供します。東京都港区芝5-19-5という特別な場所で、生活のすべてが手の届く範囲に広がるこのマンションは、ただの住まいを超えた特別な存在です。
最寄駅の都営地下鉄三田線三田駅から徒歩1分の立地は、あなたにとって日常の喧騒から逃れられる憩いの時間を約束します。まるで朝の光に包まれた街に、一歩足を踏み入れる瞬間、その瞬間がまるで映画のワンシーンのように感じることでしょう。変わりゆく季節と共に、街の表情が移り変わる様子を、窓の外から感じることができるのです。
ジェイパークステーション田町 505の内部に足を踏み入れると、まずあなたを迎えるのは、広々としたスペースを持つ1DKの間取りです。7.8帖のダイニングキッチン(DK)は、料理の香ばしい匂いが漂う中で、友人たちとの楽しいひとときを過ごすための舞台です。ここでは、音楽が流れる中、笑い声や食材が鍋の中で踊る音が交じり合い、心を豊かにする時間が流れます。そして、6帖の寝室(BR)では、リラックスした空間で心地よい眠りに誘われることでしょう。
このマンションは、あなたを日々のストレスから解放してくれる美しい場所です。オートロックや宅配ボックスなどのセキュリティ設備が整っているため、安全で安心な生活を送ることができます。また、エレベーターでスムーズに移動できる利便性も、忙しい現代人にとって重要な要素です。白い壁にシンプルなデザインの中に、あなた自身のスタイルを加えていく楽しみも待っています。
周囲には、歴史の香り漂う芝公園や、文化的な魅力に溢れたアートギャラリーが建ち並び、生活の中で多くの刺激を受けることができます。風にそよぐ木々の音や、街の賑わいが心に響き、あなたの感性を豊かにしてくれることでしょう。周辺のカフェでは、芳醇なコーヒーの香りが漂い、食べる喜びがふくらむ瞬間も楽しむことができます。
ジェイパークステーション田町 505での生活は、単なる日常ではなく、心に残るストーリーの始まりです。あなたがこの場所で過ごすことで、日々の生活に新たな彩りが加わり、未来への期待が膨らむことでしょう。この場所が、あなたにとっての新しい家族となり、共に素敵な時間を分かち合うことを心より願っております。
バイブルスコア
バイブルスコア: 55.6
条件のいい物件です、引っ越しが2か月以内の場合は仮申し込みを検討すべき物件です。
このお部屋は、現在ご入居中のため空室情報はございません。ただし、将来的に募集が開始される際、バイブルスコアにおいて非常に高い評価が期待されます。特にご興味をお持ちの方は、今のうちにブックマークやお気に入りに登録していただくと、募集開始のお知らせをすぐに受け取ることができます。是非ともご検討くださいませ。
※バイブルスコア詳細はこちら
バイブルスコアとは独自のAI機械学習技術を利用した物件評価システムで、物件のおすすめ度を示します。最高得点は100点で、スコアが高いほど、よりおすすめの物件と評価されています。
写真
契約条件
| 賃料 | 予想金額:125,000〜145,000円程度 | 管理費 | 予想金額:3,000〜7,000円程度 |
| 礼金 | 非公開(アーカイブ) | 敷金 | 非公開(アーカイブ) |
| フリーレント | なし | 平米数 | 35.62㎡ |
| 間取り | 1DK | 大型収納 | |
| 契約期間 | 2年 | 方角 | 北 |
| 更新料 | 1ヶ月 | 契約形態 | 普通賃貸借契約 |
| 取引態様 | 媒介 | 内見状況 | 入居中 |
| 入居時期 | 入居中 | SOHO・事務所 | |
| ペット | 間取り内訳 | DK=7.8J / BR=6J | |
| キャンペーン情報・備考 | 本情報は賃料改定交渉の資料作成、収益物件の利回り試算、周辺エリアや最寄り駅の坪単価分析、次回募集開始時期の予測などにご活用いただけます。 | ||
※「どの不動産に頼めばいいのか分からない」「信頼できる営業マンの話を聞きたい」「一番親切な会社と契約したい」とお悩みの方におすすめなのが「高級賃貸バイブル」です。
高級賃貸バイブルは業界10年以上の熟練スタッフ群がお客様ファーストで対応します。
下記ボタンから、まずは無料でご相談下さい。
※内覧をご希望の際には、どうぞ物件のエントランス前にてお待ち合わせくださいませ。ご内覧後は、同じ場所でお別れとさせていただきます。お客様のご都合に合わせたスムーズなご案内を心がけておりますので、ご質問等がございましたら何なりとお申し付けください。 物件概要
| 物件名 |
| 築年月 |
|
|---|---|---|---|
| 所在地 | |||
| 交通 | |||
| 総戸数 |
| 総階数 |
|
| 構造 |
| ||
地図
物件までの道のりは、「拡大地図を表示」をクリックしてナビ機能をご利用ください。
部屋設備












建物設備

TVモニターホン

エレベーター

オートロック

宅配ボックス

敷地内ゴミ置場

駐輪場
ジェイパークステーション田町の現在募集中のお部屋
- No rooms found for this property.




























