
| 賃料 | 予想金額:530,000〜550,000円程度 | 管理費 | 予想金額:0〜2,000円程度 |
| 礼金/敷金 | 非公開(アーカイブ) | 平米数 | 141.63㎡ |
| 初期費用概算(参考) | 目安:3,551,500〜3,651,500 円 | みなし賃料(月額・参考) | 593,781〜613,781 円 |
| 備考 | 本ページは過去募集のアーカイブです。表示の金額は周辺相場・過去募集を踏まえた参考レンジであり、実際の契約金額・条件ではありません。 | ||
※上記みなし賃料(月額)は仲介手数料割引・無料&キャッシュバックを加味した高級賃貸バイブル限定の金額です。一般的なみなし賃料とは異なります。
【建物ページ】メゾン白金の詳細・最新空室はこちら▶▶選ばれる理由
仲介手数料無料・キャンペーン情報(毎月15名様限定)
〇仲介手数料割引キャンペーン
メゾン白金(5-6) 201の口コミ・レビュー
メゾン白金(5-6) 201は、まるで洗練されたカリスマが街の中心に佇むかのように、東京都港区白金台にその姿を現しています。この物件は、ただの居住空間ではなく、あなたの心に深く響く場所、その名の通りの「メゾン」(家)なのです。最寄りの白金台駅から徒歩6分の距離には、静謐な街並みと豊かな自然が交錯し、都心の喧騒から一歩離れたリトリートのような存在感があります。
141.63㎡の広大な専有面積を持ち…メゾン白金(5-6) 201は、まるで洗練されたカリスマが街の中心に佇むかのように、東京都港区白金台にその姿を現しています。この物件は、ただの居住空間ではなく、あなたの心に深く響く場所、その名の通りの「メゾン」(家)なのです。最寄りの白金台駅から徒歩6分の距離には、静謐な街並みと豊かな自然が交錯し、都心の喧騒から一歩離れたリトリートのような存在感があります。
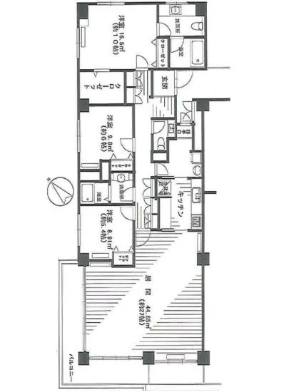
141.63㎡の広大な専有面積を持ち、あなたの生活を包み込むような3LDKの魅力がここには詰まっています。27.0帖のLDKは、太陽の光が南西の窓から優しく差し込み、暖かな色合いに満ちた空間を演出します。友人を招いて楽しいひとときを過ごしたり、家族が集う大切な場所へと変貌を遂げることでしょう。LDKの一角では、ふっくらと焼き上がったパンの香ばしい香りが漂い、朝食の時間を特別なものにしてくれます。
他の部屋も、それぞれに個性が光ります。10.0帖の洋室は、まるで静かな書斎のように、あなたの思考を深めるための空間として活用できます。6.0帖と5.4帖の洋室は、子どもたちの遊び場や、趣味のコーナーとしてもご利用いただけるでしょう。各部屋からは優雅な風が通り抜け、耳を澄ませば、近隣の木々が揺れる音が心地よいハーモニーを奏でます。
メゾン白金(5-6) 201は、ヴィンテージ感あふれる美しいデザインが施され、歴史や文化の香りを感じさせる特別な空間です。周囲には多くの美術館やギャラリーが点在し、芸術との出会いが日常の一部として融合しています。日々の散策の中で、あなた自身がその一部となり、心を豊かにしていくのです。
エレベーターやオートロックという便利な設備も整っており、安心感をもたらしてくれます。敷地内にはゴミ置場や駐車場、駐輪場も完備され、日々の生活もスムーズです。また、低層の建物は、周囲の自然と調和し、まるで大きな木の下で暮らしているような安心感を与えてくれます。
メゾン白金(5-6) 201での生活は、まるで映画のワンシーンのように、日常の一瞬一瞬が特別なものとなることでしょう。ここに住むことで、あなたの人生に新たな彩りが加わり、自分自身のアートを描くような豊かな時間が流れていくのです。この場所があなたの新たな物語の始まりとなることを心から願っています。
141.63㎡の広大な専有面積を持ち…メゾン白金(5-6) 201は、まるで洗練されたカリスマが街の中心に佇むかのように、東京都港区白金台にその姿を現しています。この物件は、ただの居住空間ではなく、あなたの心に深く響く場所、その名の通りの「メゾン」(家)なのです。最寄りの白金台駅から徒歩6分の距離には、静謐な街並みと豊かな自然が交錯し、都心の喧騒から一歩離れたリトリートのような存在感があります。
141.63㎡の広大な専有面積を持ち、あなたの生活を包み込むような3LDKの魅力がここには詰まっています。27.0帖のLDKは、太陽の光が南西の窓から優しく差し込み、暖かな色合いに満ちた空間を演出します。友人を招いて楽しいひとときを過ごしたり、家族が集う大切な場所へと変貌を遂げることでしょう。LDKの一角では、ふっくらと焼き上がったパンの香ばしい香りが漂い、朝食の時間を特別なものにしてくれます。
他の部屋も、それぞれに個性が光ります。10.0帖の洋室は、まるで静かな書斎のように、あなたの思考を深めるための空間として活用できます。6.0帖と5.4帖の洋室は、子どもたちの遊び場や、趣味のコーナーとしてもご利用いただけるでしょう。各部屋からは優雅な風が通り抜け、耳を澄ませば、近隣の木々が揺れる音が心地よいハーモニーを奏でます。
メゾン白金(5-6) 201は、ヴィンテージ感あふれる美しいデザインが施され、歴史や文化の香りを感じさせる特別な空間です。周囲には多くの美術館やギャラリーが点在し、芸術との出会いが日常の一部として融合しています。日々の散策の中で、あなた自身がその一部となり、心を豊かにしていくのです。
エレベーターやオートロックという便利な設備も整っており、安心感をもたらしてくれます。敷地内にはゴミ置場や駐車場、駐輪場も完備され、日々の生活もスムーズです。また、低層の建物は、周囲の自然と調和し、まるで大きな木の下で暮らしているような安心感を与えてくれます。
メゾン白金(5-6) 201での生活は、まるで映画のワンシーンのように、日常の一瞬一瞬が特別なものとなることでしょう。ここに住むことで、あなたの人生に新たな彩りが加わり、自分自身のアートを描くような豊かな時間が流れていくのです。この場所があなたの新たな物語の始まりとなることを心から願っています。
バイブルスコア
バイブルスコア: 20.8
平均的なスコアです。
※バイブルスコア詳細はこちら
バイブルスコアとは独自のAI機械学習技術を利用した物件評価システムで、物件のおすすめ度を示します。最高得点は100点で、スコアが高いほど、よりおすすめの物件と評価されています。
写真
現在写真が登録されていません契約条件
| 賃料 | 予想金額:530,000〜550,000円程度 | 管理費 | 予想金額:0〜2,000円程度 |
| 礼金 | 非公開(アーカイブ) | 敷金 | 非公開(アーカイブ) |
| フリーレント | なし | 平米数 | 141.63㎡ |
| 間取り | 3LDK | 大型収納 | |
| 契約期間 |
| 方角 | 南西 |
| 更新料 | 契約形態 | 普通賃貸借契約 | |
| 取引態様 | 媒介 | 内見状況 | 入居中 |
| 入居時期 | 入居中 | SOHO・事務所 | |
| ペット | ペット可 | 間取り内訳 | 洋:10.0 洋:6.0 洋:5.4 LDK:27.0 |
| キャンペーン情報・備考 | 本情報は賃料改定交渉の資料作成、収益物件の利回り試算、周辺エリアや最寄り駅の坪単価分析、次回募集開始時期の予測などにご活用いただけます。 | ||
※「どの不動産に頼めばいいのか分からない」「信頼できる営業マンの話を聞きたい」「一番親切な会社と契約したい」とお悩みの方におすすめなのが「高級賃貸バイブル」です。
高級賃貸バイブルは業界10年以上の熟練スタッフ群がお客様ファーストで対応します。
下記ボタンから、まずは無料でご相談下さい。
※内覧をご希望の際には、どうぞ物件のエントランス前にてお待ち合わせくださいませ。ご内覧後は、同じ場所でお別れとさせていただきます。お客様のご都合に合わせたスムーズなご案内を心がけておりますので、ご質問等がございましたら何なりとお申し付けください。 物件概要
| 物件名 |
| 築年月 |
|
|---|---|---|---|
| 所在地 | |||
| 交通 | |||
| 総戸数 | 総階数 |
| |
| 構造 |
| ||
地図
物件までの道のりは、「拡大地図を表示」をクリックしてナビ機能をご利用ください。
部屋設備












建物設備

エレベーター

オートロック

敷地内ゴミ置場

駐車場平置き

駐輪場
メゾン白金(5-6)の現在募集中のお部屋
- No rooms found for this property.
