
| 賃料 | 予想金額:290,000〜310,000円程度 | 管理費 | 予想金額:0〜2,000円程度 |
| 礼金/敷金 | 非公開(アーカイブ) | 平米数 | 56.64㎡ |
| 初期費用概算(参考) | 目安:1,391,500〜1,491,500 円 | みなし賃料(月額・参考) | 313,781〜333,781 円 |
| 備考 | 本ページは過去募集のアーカイブです。表示の金額は周辺相場・過去募集を踏まえた参考レンジであり、実際の契約金額・条件ではありません。 | ||
※上記みなし賃料(月額)は仲介手数料割引・無料&キャッシュバックを加味した高級賃貸バイブル限定の金額です。一般的なみなし賃料とは異なります。
【建物ページ】ザ・パークハウス愛宕虎ノ門の詳細・最新空室はこちら▶▶選ばれる理由
仲介手数料無料・キャンペーン情報(毎月15名様限定)
〇仲介手数料割引キャンペーン
ザ・パークハウス愛宕虎ノ門 508の口コミ・レビュー
ザ・パークハウス愛宕虎ノ門 508。まるで都会の喧騒を忘れさせる隠れ家のように、あなたを優雅な生活へと誘います。この特別な住まいは、北西の静かな風が心地よく、見えないキャンバスの上で描かれる人生の絵画に、あなた自身の色を加えていくことでしょう。
この住まいに足を踏み入れると、まず感じるのは温もり。オートロックの扉を開けると、優雅にデザインされた内装があなたを迎え入れ、まるでアートギャラリーの中に…ザ・パークハウス愛宕虎ノ門 508。まるで都会の喧騒を忘れさせる隠れ家のように、あなたを優雅な生活へと誘います。この特別な住まいは、北西の静かな風が心地よく、見えないキャンバスの上で描かれる人生の絵画に、あなた自身の色を加えていくことでしょう。
この住まいに足を踏み入れると、まず感じるのは温もり。オートロックの扉を開けると、優雅にデザインされた内装があなたを迎え入れ、まるでアートギャラリーの中にいるかのよう。不意に、デザイナーズの粋が感じられるその空間から、風が通り抜け、心地よい香りのフレグランスが鼻をくすぐります。愛宕虎ノ門の静寂に包まれたこの場所で、あなたの心は解きほぐされていくことでしょう。
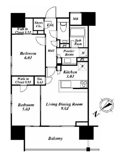
専有面積56.64㎡の空間は、2LDKというレイアウトを持ち、洋室5.0帖と洋室6.0帖があなたの個々の世界を演出。LD9.0帖とK3.0帖は、友人を招いての晩餐会や、愛する人との語らいの場として、華やかに彩ることができます。想像してみてください、夜の帳が下りると、このリビングルームはキャンドルの柔らかな明かりに照らされ、優しい音楽が流れる中で、心地よい会話が続く情景。味わい深い料理の香りが漂い、上品なワインのグラスが交わされると、まるで映画のワンシーンのように、思い出に残る瞬間が生まれるのです。
ザ・パークハウス愛宕虎ノ門 508の魅力はその立地にもあります。東京メトロ日比谷線の神谷町駅から徒歩3分という距離は、忙しい日常を過ごすあなたにとって、まるで空から降りてきた隕石のように、便利さという贈り物を与えてくれます。周囲には、歴史を感じる老舗のお店や、洗練されたカフェ、アートギャラリーが点在し、心躍る探検の旅が待っています。この地での生活は、まるで時代の流れを映し出す鏡のように、あなたの感性を豊かにしてくれるでしょう。
静かなバイク置場や、便利な宅配ボックス、駐車場の機械式設備は、現代のライフスタイルに遊び心を持たせる便利さを提供します。ザ・パークハウス愛宕虎ノ門 508はただの住まいではなく、あなたの新しい物語の舞台。あなた自身でこの家を育てていく感覚は、まるで大切な宝物を抱えるような幸福感に包まれます。
この高級賃貸物件は、日常を特別に変える魔法のような存在です。ザ・パークハウス愛宕虎ノ門 508で、あなたの人生を一層豊かに彩ってみませんか。ここには、あなたの未来の笑顔と、心温まる瞬間が待っています。あなたの新しい生活が、その先の物語へと続くことを、心から期待しています。
この住まいに足を踏み入れると、まず感じるのは温もり。オートロックの扉を開けると、優雅にデザインされた内装があなたを迎え入れ、まるでアートギャラリーの中に…ザ・パークハウス愛宕虎ノ門 508。まるで都会の喧騒を忘れさせる隠れ家のように、あなたを優雅な生活へと誘います。この特別な住まいは、北西の静かな風が心地よく、見えないキャンバスの上で描かれる人生の絵画に、あなた自身の色を加えていくことでしょう。
この住まいに足を踏み入れると、まず感じるのは温もり。オートロックの扉を開けると、優雅にデザインされた内装があなたを迎え入れ、まるでアートギャラリーの中にいるかのよう。不意に、デザイナーズの粋が感じられるその空間から、風が通り抜け、心地よい香りのフレグランスが鼻をくすぐります。愛宕虎ノ門の静寂に包まれたこの場所で、あなたの心は解きほぐされていくことでしょう。
専有面積56.64㎡の空間は、2LDKというレイアウトを持ち、洋室5.0帖と洋室6.0帖があなたの個々の世界を演出。LD9.0帖とK3.0帖は、友人を招いての晩餐会や、愛する人との語らいの場として、華やかに彩ることができます。想像してみてください、夜の帳が下りると、このリビングルームはキャンドルの柔らかな明かりに照らされ、優しい音楽が流れる中で、心地よい会話が続く情景。味わい深い料理の香りが漂い、上品なワインのグラスが交わされると、まるで映画のワンシーンのように、思い出に残る瞬間が生まれるのです。
ザ・パークハウス愛宕虎ノ門 508の魅力はその立地にもあります。東京メトロ日比谷線の神谷町駅から徒歩3分という距離は、忙しい日常を過ごすあなたにとって、まるで空から降りてきた隕石のように、便利さという贈り物を与えてくれます。周囲には、歴史を感じる老舗のお店や、洗練されたカフェ、アートギャラリーが点在し、心躍る探検の旅が待っています。この地での生活は、まるで時代の流れを映し出す鏡のように、あなたの感性を豊かにしてくれるでしょう。
静かなバイク置場や、便利な宅配ボックス、駐車場の機械式設備は、現代のライフスタイルに遊び心を持たせる便利さを提供します。ザ・パークハウス愛宕虎ノ門 508はただの住まいではなく、あなたの新しい物語の舞台。あなた自身でこの家を育てていく感覚は、まるで大切な宝物を抱えるような幸福感に包まれます。
この高級賃貸物件は、日常を特別に変える魔法のような存在です。ザ・パークハウス愛宕虎ノ門 508で、あなたの人生を一層豊かに彩ってみませんか。ここには、あなたの未来の笑顔と、心温まる瞬間が待っています。あなたの新しい生活が、その先の物語へと続くことを、心から期待しています。
バイブルスコア
バイブルスコア: 25.0
平均的なスコアです。
※バイブルスコア詳細はこちら
バイブルスコアとは独自のAI機械学習技術を利用した物件評価システムで、物件のおすすめ度を示します。最高得点は100点で、スコアが高いほど、よりおすすめの物件と評価されています。
写真
契約条件
| 賃料 | 予想金額:290,000〜310,000円程度 | 管理費 | 予想金額:0〜2,000円程度 |
| 礼金 | 非公開(アーカイブ) | 敷金 | 非公開(アーカイブ) |
| フリーレント | なし | 平米数 | 56.64㎡ |
| 間取り | 2LDK | 大型収納 | |
| 契約期間 | 方角 | 北西 | |
| 更新料 | 契約形態 | 定期借家契約 | |
| 取引態様 | 媒介 | 内見状況 | 入居中 |
| 入居時期 | 入居中 | SOHO・事務所 | |
| ペット | 間取り内訳 | 洋室5.0帖 洋室6.0帖 LD9.0帖 K3.0帖 | |
| キャンペーン情報・備考 | 本情報は賃料改定交渉の資料作成、収益物件の利回り試算、周辺エリアや最寄り駅の坪単価分析、次回募集開始時期の予測などにご活用いただけます。 | ||
※「どの不動産に頼めばいいのか分からない」「信頼できる営業マンの話を聞きたい」「一番親切な会社と契約したい」とお悩みの方におすすめなのが「高級賃貸バイブル」です。
高級賃貸バイブルは業界10年以上の熟練スタッフ群がお客様ファーストで対応します。
下記ボタンから、まずは無料でご相談下さい。
※内覧をご希望の際には、どうぞ物件のエントランス前にてお待ち合わせくださいませ。ご内覧後は、同じ場所でお別れとさせていただきます。お客様のご都合に合わせたスムーズなご案内を心がけておりますので、ご質問等がございましたら何なりとお申し付けください。 物件概要
| 物件名 |
| 築年月 |
|
|---|---|---|---|
| 所在地 | |||
| 交通 | |||
| 総戸数 |
| 総階数 |
|
| 構造 |
| ||
地図
物件までの道のりは、「拡大地図を表示」をクリックしてナビ機能をご利用ください。
部屋設備

















建物設備

TVモニターホン

エレベーター

オートロック

バイク置場

宅配ボックス

敷地内ゴミ置場

駐車場機械式

駐輪場
ザ・パークハウス愛宕虎ノ門の現在募集中のお部屋
- ザ・パークハウス愛宕虎ノ門 4階 61.66㎡ - 間取り: 2LDK+WIC+SIC - 賃料: 38万円
- ザ・パークハウス愛宕虎ノ門 14階 56.91㎡ - 間取り: 2LDK+WIC - 賃料: 39万円






























