
| 賃料 | 予想金額:230,000〜250,000円程度 | 管理費 | 予想金額:14,000〜18,000円程度 |
| 礼金/敷金 | 非公開(アーカイブ) | 平米数 | 45.6㎡ |
| 初期費用概算(参考) | 目安:726,000〜826,000 円 | みなし賃料(月額・参考) | 257,167〜277,167 円 |
| 備考 | 本ページは過去募集のアーカイブです。表示の金額は周辺相場・過去募集を踏まえた参考レンジであり、実際の契約金額・条件ではありません。 | ||
※上記みなし賃料(月額)は仲介手数料割引・無料&キャッシュバックを加味した高級賃貸バイブル限定の金額です。一般的なみなし賃料とは異なります。
【建物ページ】ザ・パークハウス芝公園の詳細・最新空室はこちら▶▶選ばれる理由
仲介手数料無料・キャンペーン情報(毎月15名様限定)
〇仲介手数料割引キャンペーン
ザ・パークハウス芝公園 201の口コミ・レビュー
ザ・パークハウス芝公園 201。あなたに語りかけるこの場所は、まるで都会のオアシスのように、心の休息を与える特別な空間です。所在地は東京都港区芝公園3-6-24、都心の喧騒を忘れさせる静寂がここには息づいています。北を向く窓からは、穏やかな風が流れ込み、日々の忙しさを忘れさせる自然光が溢れ出します。
一歩足を踏み入れれば、心地よい香りが迎えてくれます。新鮮な空気とともに、街の活気が微かに感じられ…ザ・パークハウス芝公園 201。あなたに語りかけるこの場所は、まるで都会のオアシスのように、心の休息を与える特別な空間です。所在地は東京都港区芝公園3-6-24、都心の喧騒を忘れさせる静寂がここには息づいています。北を向く窓からは、穏やかな風が流れ込み、日々の忙しさを忘れさせる自然光が溢れ出します。
一歩足を踏み入れれば、心地よい香りが迎えてくれます。新鮮な空気とともに、街の活気が微かに感じられる特別な瞬間。45.6㎡の広さには、ふんわりとしたやさしい温もりが広がり、あなたの大切な時間を包み込むでしょう。極上の居住空間、ザ・パークハウス芝公園 201は、単なる住まいであるだけでなく、生活の舞台としての役割を果たすのです。
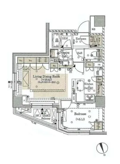
洋室5.1帖の空間は、心を落ち着けるための隠れ家。自分だけの時間を大切にし、読書や瞑想にふけるのも良いでしょう。そこには、優雅なインテリアが生まれる余地があり、あなたの好みに合わせてカスタマイズできる楽しみも待っています。続いて、LDK10.4帖のリビングは、家族や友人との会話を弾ませる社交の場。光溢れる窓辺で、コーヒーの香ばしい香りを嗅ぎながら、笑い声が響く様子が目に浮かんできます。
ザ・パークハウス芝公園 201の心に宿る物語は、ただの住まいを超えています。エレベーターに乗り込む瞬間、まるで映画の主人公になったかのような高揚感が漂います。オートロックで守られた安心感は、あなたのプライバシーを大切にし、宅配ボックスがあることで現代の生活様式にも柔軟に対応します。さらに、駐輪場完備の利便性は、都会の風を感じながら自由に動き回る喜びを与えてくれることでしょう。
周辺には豊かな歴史と文化が息づいており、芝公園はその名の通り、緑と文化の交差点。古き良き時代の日本の風情が感じられる一方で、洗練されたアートスペースやカフェも点在しています。近くの神谷町駅からは、東京メトロ日比谷線で都心の喧騒へ容易にアクセスでき、生活の便利さが最大限に引き出されています。
ザ・パークハウス芝公園 201は、あなたの心に寄り添い、日々の生活を豊かにするための特別な場所です。ここには、あなた自身の物語を紡ぐための広大なキャンバスが広がっています。どうぞ、この夢のような住環境に身を委ね、生活の美しい瞬間を感じ取ってください。あなたの新たな章が、ここから始まります。
一歩足を踏み入れれば、心地よい香りが迎えてくれます。新鮮な空気とともに、街の活気が微かに感じられ…ザ・パークハウス芝公園 201。あなたに語りかけるこの場所は、まるで都会のオアシスのように、心の休息を与える特別な空間です。所在地は東京都港区芝公園3-6-24、都心の喧騒を忘れさせる静寂がここには息づいています。北を向く窓からは、穏やかな風が流れ込み、日々の忙しさを忘れさせる自然光が溢れ出します。
一歩足を踏み入れれば、心地よい香りが迎えてくれます。新鮮な空気とともに、街の活気が微かに感じられる特別な瞬間。45.6㎡の広さには、ふんわりとしたやさしい温もりが広がり、あなたの大切な時間を包み込むでしょう。極上の居住空間、ザ・パークハウス芝公園 201は、単なる住まいであるだけでなく、生活の舞台としての役割を果たすのです。
洋室5.1帖の空間は、心を落ち着けるための隠れ家。自分だけの時間を大切にし、読書や瞑想にふけるのも良いでしょう。そこには、優雅なインテリアが生まれる余地があり、あなたの好みに合わせてカスタマイズできる楽しみも待っています。続いて、LDK10.4帖のリビングは、家族や友人との会話を弾ませる社交の場。光溢れる窓辺で、コーヒーの香ばしい香りを嗅ぎながら、笑い声が響く様子が目に浮かんできます。
ザ・パークハウス芝公園 201の心に宿る物語は、ただの住まいを超えています。エレベーターに乗り込む瞬間、まるで映画の主人公になったかのような高揚感が漂います。オートロックで守られた安心感は、あなたのプライバシーを大切にし、宅配ボックスがあることで現代の生活様式にも柔軟に対応します。さらに、駐輪場完備の利便性は、都会の風を感じながら自由に動き回る喜びを与えてくれることでしょう。
周辺には豊かな歴史と文化が息づいており、芝公園はその名の通り、緑と文化の交差点。古き良き時代の日本の風情が感じられる一方で、洗練されたアートスペースやカフェも点在しています。近くの神谷町駅からは、東京メトロ日比谷線で都心の喧騒へ容易にアクセスでき、生活の便利さが最大限に引き出されています。
ザ・パークハウス芝公園 201は、あなたの心に寄り添い、日々の生活を豊かにするための特別な場所です。ここには、あなた自身の物語を紡ぐための広大なキャンバスが広がっています。どうぞ、この夢のような住環境に身を委ね、生活の美しい瞬間を感じ取ってください。あなたの新たな章が、ここから始まります。
バイブルスコア
バイブルスコア: 37.9
平均的なスコアです。
※バイブルスコア詳細はこちら
バイブルスコアとは独自のAI機械学習技術を利用した物件評価システムで、物件のおすすめ度を示します。最高得点は100点で、スコアが高いほど、よりおすすめの物件と評価されています。
写真
契約条件
| 賃料 | 予想金額:230,000〜250,000円程度 | 管理費 | 予想金額:14,000〜18,000円程度 |
| 礼金 | 非公開(アーカイブ) | 敷金 | 非公開(アーカイブ) |
| フリーレント | なし | 平米数 | 45.6㎡ |
| 間取り | 1LDK | 大型収納 | なし |
| 契約期間 | 2年 | 方角 | 北 |
| 更新料 | 1ヶ月 | 契約形態 | 普通賃貸借契約 |
| 取引態様 | 媒介 | 内見状況 | 入居中 |
| 入居時期 | 入居中 | SOHO・事務所 | 不可 |
| ペット | 不可 | 間取り内訳 | 洋室5.1畳 LDK10.4畳 |
| キャンペーン情報・備考 | 本情報は賃料改定交渉の資料作成、収益物件の利回り試算、周辺エリアや最寄り駅の坪単価分析、次回募集開始時期の予測などにご活用いただけます。 | ||
※「どの不動産に頼めばいいのか分からない」「信頼できる営業マンの話を聞きたい」「一番親切な会社と契約したい」とお悩みの方におすすめなのが「高級賃貸バイブル」です。
高級賃貸バイブルは業界10年以上の熟練スタッフ群がお客様ファーストで対応します。
下記ボタンから、まずは無料でご相談下さい。
※内覧をご希望の際には、どうぞ物件のエントランス前にてお待ち合わせくださいませ。ご内覧後は、同じ場所でお別れとさせていただきます。お客様のご都合に合わせたスムーズなご案内を心がけておりますので、ご質問等がございましたら何なりとお申し付けください。 物件概要
| 物件名 |
| 築年月 |
|
|---|---|---|---|
| 所在地 | |||
| 交通 | |||
| 総戸数 |
| 総階数 |
|
| 構造 |
| ||
地図
物件までの道のりは、「拡大地図を表示」をクリックしてナビ機能をご利用ください。
部屋設備
















建物設備

TVモニターホン

エレベーター

オートロック

宅配ボックス

敷地内ゴミ置場

駐輪場
ザ・パークハウス芝公園の現在募集中のお部屋
- No rooms found for this property.






