
| 賃料 | 予想金額:85,000〜105,000円程度 | 管理費 | 予想金額:7,000〜11,000円程度 |
| 礼金/敷金 | 非公開(アーカイブ) | 平米数 | 22.4㎡ |
| 初期費用概算(参考) | 目安:482,500〜582,500 円 | みなし賃料(月額・参考) | 103,115〜123,115 円 |
| 備考 | 本ページは過去募集のアーカイブです。表示の金額は周辺相場・過去募集を踏まえた参考レンジであり、実際の契約金額・条件ではありません。 | ||
※上記みなし賃料(月額)は仲介手数料割引・無料&キャッシュバックを加味した高級賃貸バイブル限定の金額です。一般的なみなし賃料とは異なります。
【建物ページ】グランドガーラ芝公園の詳細・最新空室はこちら▶▶選ばれる理由
仲介手数料無料・キャンペーン情報(毎月15名様限定)
〇仲介手数料割引キャンペーン
グランドガーラ芝公園 909の口コミ・レビュー
グランドガーラ芝公園 909。あなたが新たに迎え入れるこの特別な住まいは、まるで大都会の真ん中に佇む宝石のように、静謐さと華やかさを兼ね備えています。東京都港区芝3-4-18に位置し、南向きの窓からは日差しが優しく降り注ぎ、朝の光に包まれる時間が、まるで映画のワンシーンのように心に残ります。あなたの日常が、ここから始まるのです。
この物件は、22.4㎡のスペースに1Kの間取りで、洋室6.9帖とK…グランドガーラ芝公園 909。あなたが新たに迎え入れるこの特別な住まいは、まるで大都会の真ん中に佇む宝石のように、静謐さと華やかさを兼ね備えています。東京都港区芝3-4-18に位置し、南向きの窓からは日差しが優しく降り注ぎ、朝の光に包まれる時間が、まるで映画のワンシーンのように心に残ります。あなたの日常が、ここから始まるのです。
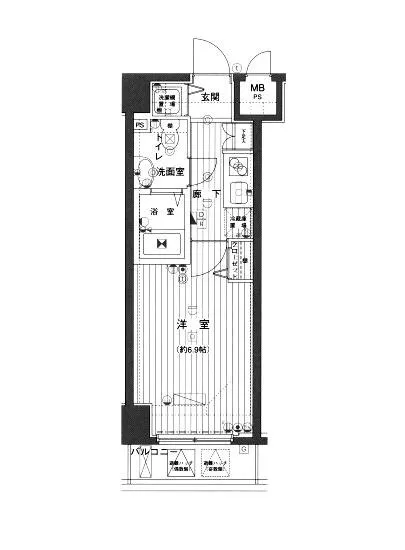
この物件は、22.4㎡のスペースに1Kの間取りで、洋室6.9帖とK2.5帖が巧みに配置されています。その広さの中には、無限の可能性が広がっています。スムーズに流れる空気、心地よい光が交わり、あなたの居場所を作り上げるのです。朝起きた瞬間、柔らかなベッドの感触、そして香ばしいコーヒーの香りに包まれ、ここから始まる一日のストーリーを思い描いてみてください。
グランドガーラ芝公園 909のエレベーターに乗って、各階へのアクセスもスムーズ。オートロックによる安心感は、まるであなたを守る盾のように感じられ、周囲の喧騒を忘れさせてくれます。宅配ボックスが完備されているため、忙しい日常の中でも、しっかりとしたサポートが受けられます。敷地内のゴミ置場、駐車場の平置きや機械式、駐輪場も整っており、あなたのライフスタイルをしっかりと支えてくれることでしょう。
そして、この地の歴史的な背景や文化へのアクセスも魅力のひとつです。近くには、芝公園の豊かな緑が広がり、都会の喧騒を忘れさせる癒しの空間が待っています。散策路を歩くたびに感じる風のささやき、葉が触れ合う音、さらには四季折々の花々が広がる景色は、視覚だけでなく、嗅覚をも刺激し、心を満たしてくれることでしょう。
また、このグランドガーラ芝公園 909は、都営地下鉄三田線芝公園駅から徒歩2分という絶好の位置にあり、ビジネスエリアへのアクセスも良好です。この便利さは、まるで生活の軸を支える大黒柱のように感じられ、あなたの夢と実生活との架け橋となります。忙しい日々の中でも、少しの贅沢を感じるひとときを大切にしてほしいのです。
この住まい、グランドガーラ芝公園 909は単なる居住空間以上のものです。まるであなたを歓迎する親しい友人のように、日常の中での幸せを見つけ出させてくれます。さあ、この特別な場所で、あなた自身の物語を描く準備はできていますか?あなたの新しい生活が、ここから始まります。
この物件は、22.4㎡のスペースに1Kの間取りで、洋室6.9帖とK…グランドガーラ芝公園 909。あなたが新たに迎え入れるこの特別な住まいは、まるで大都会の真ん中に佇む宝石のように、静謐さと華やかさを兼ね備えています。東京都港区芝3-4-18に位置し、南向きの窓からは日差しが優しく降り注ぎ、朝の光に包まれる時間が、まるで映画のワンシーンのように心に残ります。あなたの日常が、ここから始まるのです。
この物件は、22.4㎡のスペースに1Kの間取りで、洋室6.9帖とK2.5帖が巧みに配置されています。その広さの中には、無限の可能性が広がっています。スムーズに流れる空気、心地よい光が交わり、あなたの居場所を作り上げるのです。朝起きた瞬間、柔らかなベッドの感触、そして香ばしいコーヒーの香りに包まれ、ここから始まる一日のストーリーを思い描いてみてください。
グランドガーラ芝公園 909のエレベーターに乗って、各階へのアクセスもスムーズ。オートロックによる安心感は、まるであなたを守る盾のように感じられ、周囲の喧騒を忘れさせてくれます。宅配ボックスが完備されているため、忙しい日常の中でも、しっかりとしたサポートが受けられます。敷地内のゴミ置場、駐車場の平置きや機械式、駐輪場も整っており、あなたのライフスタイルをしっかりと支えてくれることでしょう。
そして、この地の歴史的な背景や文化へのアクセスも魅力のひとつです。近くには、芝公園の豊かな緑が広がり、都会の喧騒を忘れさせる癒しの空間が待っています。散策路を歩くたびに感じる風のささやき、葉が触れ合う音、さらには四季折々の花々が広がる景色は、視覚だけでなく、嗅覚をも刺激し、心を満たしてくれることでしょう。
また、このグランドガーラ芝公園 909は、都営地下鉄三田線芝公園駅から徒歩2分という絶好の位置にあり、ビジネスエリアへのアクセスも良好です。この便利さは、まるで生活の軸を支える大黒柱のように感じられ、あなたの夢と実生活との架け橋となります。忙しい日々の中でも、少しの贅沢を感じるひとときを大切にしてほしいのです。
この住まい、グランドガーラ芝公園 909は単なる居住空間以上のものです。まるであなたを歓迎する親しい友人のように、日常の中での幸せを見つけ出させてくれます。さあ、この特別な場所で、あなた自身の物語を描く準備はできていますか?あなたの新しい生活が、ここから始まります。
バイブルスコア
バイブルスコア: 26.5
平均的なスコアです。
※バイブルスコア詳細はこちら
バイブルスコアとは独自のAI機械学習技術を利用した物件評価システムで、物件のおすすめ度を示します。最高得点は100点で、スコアが高いほど、よりおすすめの物件と評価されています。
写真
契約条件
| 賃料 | 予想金額:85,000〜105,000円程度 | 管理費 | 予想金額:7,000〜11,000円程度 |
| 礼金 | 非公開(アーカイブ) | 敷金 | 非公開(アーカイブ) |
| フリーレント | なし | 平米数 | 22.4㎡ |
| 間取り | 1K | 大型収納 | |
| 契約期間 |
| 方角 | 南 |
| 更新料 | 契約形態 | 普通賃貸借契約 | |
| 取引態様 | 媒介 | 内見状況 | 入居中 |
| 入居時期 | 入居中 | SOHO・事務所 | |
| ペット | 間取り内訳 | 洋室6.9畳 K2.5畳 | |
| キャンペーン情報・備考 | 本情報は賃料改定交渉の資料作成、収益物件の利回り試算、周辺エリアや最寄り駅の坪単価分析、次回募集開始時期の予測などにご活用いただけます。 | ||
※「どの不動産に頼めばいいのか分からない」「信頼できる営業マンの話を聞きたい」「一番親切な会社と契約したい」とお悩みの方におすすめなのが「高級賃貸バイブル」です。
高級賃貸バイブルは業界10年以上の熟練スタッフ群がお客様ファーストで対応します。
下記ボタンから、まずは無料でご相談下さい。
※内覧をご希望の際には、どうぞ物件のエントランス前にてお待ち合わせくださいませ。ご内覧後は、同じ場所でお別れとさせていただきます。お客様のご都合に合わせたスムーズなご案内を心がけておりますので、ご質問等がございましたら何なりとお申し付けください。 物件概要
| 物件名 |
| 築年月 |
|
|---|---|---|---|
| 所在地 | |||
| 交通 | |||
| 総戸数 |
| 総階数 |
|
| 構造 |
| ||
地図
物件までの道のりは、「拡大地図を表示」をクリックしてナビ機能をご利用ください。
部屋設備












建物設備

TVモニターホン

エレベーター

オートロック

宅配ボックス

敷地内ゴミ置場

駐車場平置き

駐車場機械式

駐輪場
グランドガーラ芝公園の現在募集中のお部屋
- No rooms found for this property.






























