
| 賃料 | 予想金額:385,000〜405,000円程度 | 管理費 | 予想金額:0〜2,000円程度 |
| 礼金/敷金 | 非公開(アーカイブ) | 平米数 | 99.98㎡ |
| 初期費用概算(参考) | 目安:1,819,000〜1,919,000 円 | みなし賃料(月額・参考) | 415,708〜435,708 円 |
| 備考 | 本ページは過去募集のアーカイブです。表示の金額は周辺相場・過去募集を踏まえた参考レンジであり、実際の契約金額・条件ではありません。 | ||
※上記みなし賃料(月額)は仲介手数料割引・無料&キャッシュバックを加味した高級賃貸バイブル限定の金額です。一般的なみなし賃料とは異なります。
【建物ページ】グラード西麻布の詳細・最新空室はこちら▶▶選ばれる理由
仲介手数料無料・キャンペーン情報(毎月15名様限定)
〇仲介手数料割引キャンペーン
グラード西麻布 301の口コミ・レビュー
グラード西麻布 301、ここはまさにあなたのために設計された天空の隠れ家。南向きのこの特別な住まいは、東京都港区西麻布1-15-4の中心に位置し、まるで現代の貴族が住まう城のようにそびえ立っています。99.98㎡の広大な空間は、あなたの生活を豊かに彩るキャンバス。陽光が溢れ、温かな光が室内に優しく降り注ぎ、部屋の隅々まで心地よい温もりを届けます。
この住まいの中に一歩足を踏み入れれば、広々とした…グラード西麻布 301、ここはまさにあなたのために設計された天空の隠れ家。南向きのこの特別な住まいは、東京都港区西麻布1-15-4の中心に位置し、まるで現代の貴族が住まう城のようにそびえ立っています。99.98㎡の広大な空間は、あなたの生活を豊かに彩るキャンバス。陽光が溢れ、温かな光が室内に優しく降り注ぎ、部屋の隅々まで心地よい温もりを届けます。
この住まいの中に一歩足を踏み入れれば、広々としたLDK 12.5帖があなたを迎え入れます。そこには、家族や友人とのひとときを彩るための理想的な空間が広がり、日々の生活がまるで映画のワンシーンのように感じられることでしょう。香ばしいコーヒーの香りが漂うキッチン 3.6帖からは、あなたの好きなレシピに心を込めた料理の数々が生まれ、食卓を囲む皆の笑顔が見えるようです。食材の鮮やかな色合いが、まるでアート作品のように美しく、視覚を楽しませてくれます。
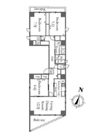
グラード西麻布 301には、7.5帖の洋室が二つと6.6帖の洋室が一つ、そしてそれぞれの部屋は静寂に包まれています。一日の疲れを癒すための特別な避難所として、どの部屋もあなたに安らぎを提供します。柔らかな布団に包まれた瞬間、心地よい眠りに誘われ、夢の世界へと旅立つことでしょう。
生活の利便性もさることながら、このエレガンスあふれる住まいには、自分自身を大切にするための設備が揃っています。TVモニターホンでの安心感、オートロックでのプライバシーの確保、さらには宅配ボックスで荷物の受け取りもスムーズ。敷地内のゴミ置場や駐輪場も、生活における手間を軽減し、あなたの自由な時間を奪いません。
グラード西麻布 301から数分の距離には、乃木坂駅が存在し、都会の喧騒にアクセスしながらも、少し足を延ばせば静謐な公園や文化施設が点在しています。ここ西麻布は、芸術や文化の背景に溢れ、豊かな歴史に支えられた地域です。夜になると、周囲のビルに灯る街の明かりが、星空のようにあなたを包み込み、思わず深呼吸したくなるような美しさを感じさせてくれます。
ぜひ、グラード西麻布 301で新たな生活を手に入れ、あなたの人生をより豊かに彩る瞬間を体感してください。賢明な選択が、心の豊かさを育むのです。あなたの新たな物語がここから始まることを、心より願っております。
この住まいの中に一歩足を踏み入れれば、広々とした…グラード西麻布 301、ここはまさにあなたのために設計された天空の隠れ家。南向きのこの特別な住まいは、東京都港区西麻布1-15-4の中心に位置し、まるで現代の貴族が住まう城のようにそびえ立っています。99.98㎡の広大な空間は、あなたの生活を豊かに彩るキャンバス。陽光が溢れ、温かな光が室内に優しく降り注ぎ、部屋の隅々まで心地よい温もりを届けます。
この住まいの中に一歩足を踏み入れれば、広々としたLDK 12.5帖があなたを迎え入れます。そこには、家族や友人とのひとときを彩るための理想的な空間が広がり、日々の生活がまるで映画のワンシーンのように感じられることでしょう。香ばしいコーヒーの香りが漂うキッチン 3.6帖からは、あなたの好きなレシピに心を込めた料理の数々が生まれ、食卓を囲む皆の笑顔が見えるようです。食材の鮮やかな色合いが、まるでアート作品のように美しく、視覚を楽しませてくれます。
グラード西麻布 301には、7.5帖の洋室が二つと6.6帖の洋室が一つ、そしてそれぞれの部屋は静寂に包まれています。一日の疲れを癒すための特別な避難所として、どの部屋もあなたに安らぎを提供します。柔らかな布団に包まれた瞬間、心地よい眠りに誘われ、夢の世界へと旅立つことでしょう。
生活の利便性もさることながら、このエレガンスあふれる住まいには、自分自身を大切にするための設備が揃っています。TVモニターホンでの安心感、オートロックでのプライバシーの確保、さらには宅配ボックスで荷物の受け取りもスムーズ。敷地内のゴミ置場や駐輪場も、生活における手間を軽減し、あなたの自由な時間を奪いません。
グラード西麻布 301から数分の距離には、乃木坂駅が存在し、都会の喧騒にアクセスしながらも、少し足を延ばせば静謐な公園や文化施設が点在しています。ここ西麻布は、芸術や文化の背景に溢れ、豊かな歴史に支えられた地域です。夜になると、周囲のビルに灯る街の明かりが、星空のようにあなたを包み込み、思わず深呼吸したくなるような美しさを感じさせてくれます。
ぜひ、グラード西麻布 301で新たな生活を手に入れ、あなたの人生をより豊かに彩る瞬間を体感してください。賢明な選択が、心の豊かさを育むのです。あなたの新たな物語がここから始まることを、心より願っております。
バイブルスコア
バイブルスコア: 55.0
条件のいい物件です、引っ越しが2か月以内の場合は仮申し込みを検討すべき物件です。
このお部屋は、現在ご入居中のため空室情報はございません。ただし、将来的に募集が開始される際、バイブルスコアにおいて非常に高い評価が期待されます。特にご興味をお持ちの方は、今のうちにブックマークやお気に入りに登録していただくと、募集開始のお知らせをすぐに受け取ることができます。是非ともご検討くださいませ。
※バイブルスコア詳細はこちら
バイブルスコアとは独自のAI機械学習技術を利用した物件評価システムで、物件のおすすめ度を示します。最高得点は100点で、スコアが高いほど、よりおすすめの物件と評価されています。
写真
契約条件
| 賃料 | 予想金額:385,000〜405,000円程度 | 管理費 | 予想金額:0〜2,000円程度 |
| 礼金 | 非公開(アーカイブ) | 敷金 | 非公開(アーカイブ) |
| フリーレント | なし | 平米数 | 99.98㎡ |
| 間取り | 3LDK | 大型収納 | DEN |
| 契約期間 |
| 方角 | 南 |
| 更新料 | 契約形態 | 普通賃貸借契約 | |
| 取引態様 | 媒介 | 内見状況 | 入居中 |
| 入居時期 | 入居中 | SOHO・事務所 | 事務所(SOHO)可 |
| ペット | ペット可 | 間取り内訳 | 洋:7.5、7.5、6.6 LD:12.5 K:3.6 |
| キャンペーン情報・備考 | 本情報は賃料改定交渉の資料作成、収益物件の利回り試算、周辺エリアや最寄り駅の坪単価分析、次回募集開始時期の予測などにご活用いただけます。 | ||
※「どの不動産に頼めばいいのか分からない」「信頼できる営業マンの話を聞きたい」「一番親切な会社と契約したい」とお悩みの方におすすめなのが「高級賃貸バイブル」です。
高級賃貸バイブルは業界10年以上の熟練スタッフ群がお客様ファーストで対応します。
下記ボタンから、まずは無料でご相談下さい。
※内覧をご希望の際には、どうぞ物件のエントランス前にてお待ち合わせくださいませ。ご内覧後は、同じ場所でお別れとさせていただきます。お客様のご都合に合わせたスムーズなご案内を心がけておりますので、ご質問等がございましたら何なりとお申し付けください。 物件概要
| 物件名 |
| 築年月 |
|
|---|---|---|---|
| 所在地 | |||
| 交通 | |||
| 総戸数 |
| 総階数 |
|
| 構造 |
| ||
地図
物件までの道のりは、「拡大地図を表示」をクリックしてナビ機能をご利用ください。
部屋設備















建物設備

TVモニターホン

エレベーター

オートロック

宅配ボックス

敷地内ゴミ置場

駐輪場
グラード西麻布の現在募集中のお部屋
- No rooms found for this property.











