
| 賃料 | 予想金額:71,000〜91,000円程度 | 管理費 | 予想金額:1,500〜5,500円程度 |
| 礼金/敷金 | 非公開(アーカイブ) | 平米数 | 18.96㎡ |
| 初期費用概算(参考) | 目安:332,000〜432,000 円 | みなし賃料(月額・参考) | 81,260〜101,260 円 |
| 備考 | 本ページは過去募集のアーカイブです。表示の金額は周辺相場・過去募集を踏まえた参考レンジであり、実際の契約金額・条件ではありません。 | ||
※上記みなし賃料(月額)は仲介手数料割引・無料&キャッシュバックを加味した高級賃貸バイブル限定の金額です。一般的なみなし賃料とは異なります。
【建物ページ】パークウェル麻布の詳細・最新空室はこちら▶▶選ばれる理由
仲介手数料無料・キャンペーン情報(毎月15名様限定)
〇仲介手数料割引キャンペーン
パークウェル麻布 401の口コミ・レビュー
パークウェル麻布 401。あなたの新たな住まいが、まるで特別な舞台に立つように、その名を呼びかけます。東京都港区東麻布2-20-9に位置し、優雅な西向きの窓からは、穏やかな陽光が差し込むことでしょう。ここはただの住居ではなく、生活そのものが映画の一シーンに変わる場所です。専有面積18.96㎡のその空間は、あなたの感情を刺激し、心の奥底に響く安らぎを提供します。
パークウェル麻布 401の扉を開け…パークウェル麻布 401。あなたの新たな住まいが、まるで特別な舞台に立つように、その名を呼びかけます。東京都港区東麻布2-20-9に位置し、優雅な西向きの窓からは、穏やかな陽光が差し込むことでしょう。ここはただの住居ではなく、生活そのものが映画の一シーンに変わる場所です。専有面積18.96㎡のその空間は、あなたの感情を刺激し、心の奥底に響く安らぎを提供します。
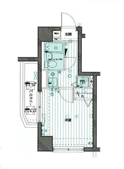
パークウェル麻布 401の扉を開けると、広がるのは心地よい風と共に浸透するフレッシュな香り。新しい生活がここから始まることを、まるでお祝いするかのように告げています。ゆったりとした1Kの間取りは、あなたの生活を豊かに彩る準備が整っています。LDK11.6帖の広々としたスペースでは、心弾む料理の時間を過ごしたり、お気に入りの映画を観たり、独りの静寂を楽しむことができるでしょう。洋室4.5帖も、あなたの思い描く夢の拠り所として機能します。思い思いにインテリアをアレンジし、個性を表現してください。
この高級賃貸物件は、ただの場所ではなく、まるで友人のように寄り添ってくれる存在でもあります。エレベーターで上がると、オートロックの安心感があなたを包み込み、宅配ボックスに届いた贈り物も、どこか特別な気持ちで迎えることができます。駐輪場があることで、日々の冒険に出かける準備も整い、街の魅力を存分に楽しむことができるでしょう。
周囲には、文化と歴史が息づく麻布の街が広がります。徒歩7分の東京メトロ南北線麻布十番駅を利用すれば、都会の喧騒から解放され、あなたの心の故郷へと導いてくれます。周りには美術館やギャラリー、歴史的な建物が点在し、散策する度に新たな発見が待っています。四季折々の変化に敏感なこの街は、常にあなたの感性を研ぎ澄ませてくれるでしょう。
夜になると、パークウェル麻布 401の窓からは、街の灯りが星空のように輝き、まるで夢の中のような幻想的な景色が広がります。音楽が響き渡るような静けさの中で、心躍るひらめきを得ることができるのです。新しい朝が訪れる頃、心に秘めた計画を形にするためのエネルギーが満ちてくるでしょう。
この物件は、住む人に新たな物語を紡ぐための舞台を提供します。パークウェル麻布 401という名の下で、あなた自身の人生のストーリーを描き出し、感動的なシーンを一つ一つ刻み込んでいくことができるのです。どうぞ、この魅力的な空間で、心に響く新しい生活を始めてみませんか。あなたの未来が、ここで待っています。
パークウェル麻布 401の扉を開け…パークウェル麻布 401。あなたの新たな住まいが、まるで特別な舞台に立つように、その名を呼びかけます。東京都港区東麻布2-20-9に位置し、優雅な西向きの窓からは、穏やかな陽光が差し込むことでしょう。ここはただの住居ではなく、生活そのものが映画の一シーンに変わる場所です。専有面積18.96㎡のその空間は、あなたの感情を刺激し、心の奥底に響く安らぎを提供します。
パークウェル麻布 401の扉を開けると、広がるのは心地よい風と共に浸透するフレッシュな香り。新しい生活がここから始まることを、まるでお祝いするかのように告げています。ゆったりとした1Kの間取りは、あなたの生活を豊かに彩る準備が整っています。LDK11.6帖の広々としたスペースでは、心弾む料理の時間を過ごしたり、お気に入りの映画を観たり、独りの静寂を楽しむことができるでしょう。洋室4.5帖も、あなたの思い描く夢の拠り所として機能します。思い思いにインテリアをアレンジし、個性を表現してください。
この高級賃貸物件は、ただの場所ではなく、まるで友人のように寄り添ってくれる存在でもあります。エレベーターで上がると、オートロックの安心感があなたを包み込み、宅配ボックスに届いた贈り物も、どこか特別な気持ちで迎えることができます。駐輪場があることで、日々の冒険に出かける準備も整い、街の魅力を存分に楽しむことができるでしょう。
周囲には、文化と歴史が息づく麻布の街が広がります。徒歩7分の東京メトロ南北線麻布十番駅を利用すれば、都会の喧騒から解放され、あなたの心の故郷へと導いてくれます。周りには美術館やギャラリー、歴史的な建物が点在し、散策する度に新たな発見が待っています。四季折々の変化に敏感なこの街は、常にあなたの感性を研ぎ澄ませてくれるでしょう。
夜になると、パークウェル麻布 401の窓からは、街の灯りが星空のように輝き、まるで夢の中のような幻想的な景色が広がります。音楽が響き渡るような静けさの中で、心躍るひらめきを得ることができるのです。新しい朝が訪れる頃、心に秘めた計画を形にするためのエネルギーが満ちてくるでしょう。
この物件は、住む人に新たな物語を紡ぐための舞台を提供します。パークウェル麻布 401という名の下で、あなた自身の人生のストーリーを描き出し、感動的なシーンを一つ一つ刻み込んでいくことができるのです。どうぞ、この魅力的な空間で、心に響く新しい生活を始めてみませんか。あなたの未来が、ここで待っています。
バイブルスコア
バイブルスコア: 33.2
平均的なスコアです。
※バイブルスコア詳細はこちら
バイブルスコアとは独自のAI機械学習技術を利用した物件評価システムで、物件のおすすめ度を示します。最高得点は100点で、スコアが高いほど、よりおすすめの物件と評価されています。
写真
契約条件
| 賃料 | 予想金額:71,000〜91,000円程度 | 管理費 | 予想金額:1,500〜5,500円程度 |
| 礼金 | 非公開(アーカイブ) | 敷金 | 非公開(アーカイブ) |
| フリーレント | なし | 平米数 | 18.96㎡ |
| 間取り | 1K | 大型収納 | |
| 契約期間 |
| 方角 | 西 |
| 更新料 | 契約形態 | 普通賃貸借契約 | |
| 取引態様 | 媒介 | 内見状況 | 入居中 |
| 入居時期 | 入居中 | SOHO・事務所 | |
| ペット | 間取り内訳 | ||
| キャンペーン情報・備考 | 本情報は賃料改定交渉の資料作成、収益物件の利回り試算、周辺エリアや最寄り駅の坪単価分析、次回募集開始時期の予測などにご活用いただけます。 | ||
※「どの不動産に頼めばいいのか分からない」「信頼できる営業マンの話を聞きたい」「一番親切な会社と契約したい」とお悩みの方におすすめなのが「高級賃貸バイブル」です。
高級賃貸バイブルは業界10年以上の熟練スタッフ群がお客様ファーストで対応します。
下記ボタンから、まずは無料でご相談下さい。
※内覧をご希望の際には、どうぞ物件のエントランス前にてお待ち合わせくださいませ。ご内覧後は、同じ場所でお別れとさせていただきます。お客様のご都合に合わせたスムーズなご案内を心がけておりますので、ご質問等がございましたら何なりとお申し付けください。 物件概要
| 物件名 |
| 築年月 |
|
|---|---|---|---|
| 所在地 | |||
| 交通 | |||
| 総戸数 |
| 総階数 |
|
| 構造 |
| ||
地図
物件までの道のりは、「拡大地図を表示」をクリックしてナビ機能をご利用ください。
部屋設備






建物設備

TVモニターホン

エレベーター

オートロック

宅配ボックス

敷地内ゴミ置場

駐輪場
パークウェル麻布の現在募集中のお部屋
- No rooms found for this property.




















